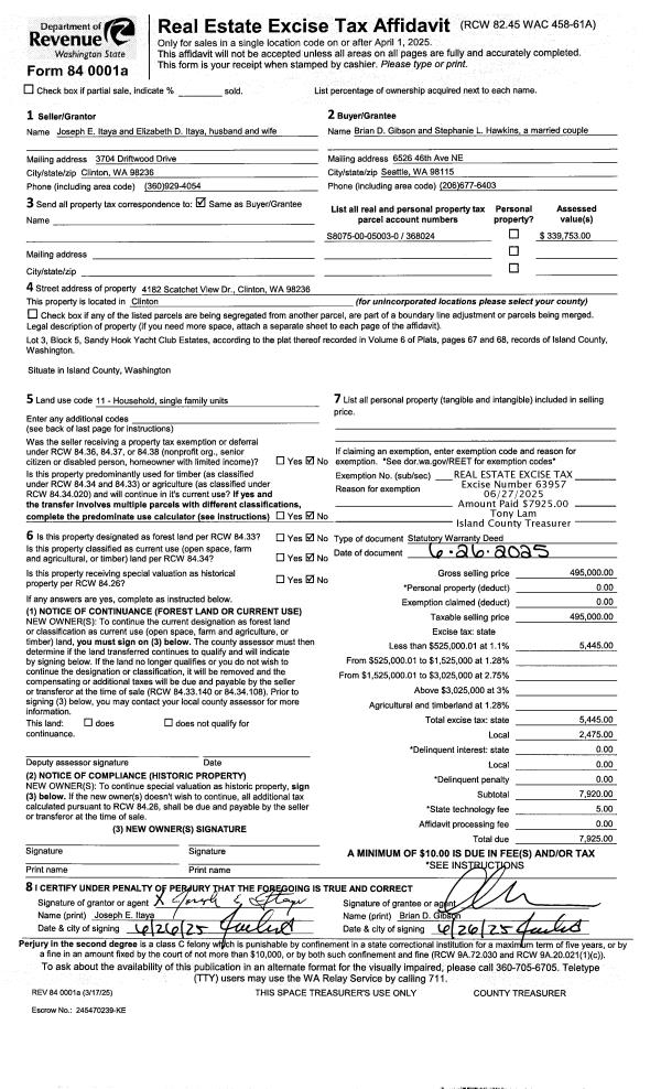
Property
Account |
| Property ID: | 368024 | Abbreviated Legal Description: | SANDY HOOK LOT 3 BLK 5 |
| Geographic ID: | S8075-00-05003-0 | Agent Code: | |
| Type: | Real | | |
| Tax Area: | 710 - APPRAISER-S Whid Schl Dist, outside Langley, improved & 1 acre or less | Land Use Code | 11 |
| Open Space: | N | DFL | N |
| Historic Property: | N | Remodel Property: | N |
| Multi-Family Redevelopment: | N | | |
| Township: | | Section: | |
| Range: | |
Location |
| Address: | 4182 SCATCHET VIEW DR CLINTON, WA 98236 | Mapsco: | |
| Neighborhood: | Cycle 4 | Map ID: | 708 |
| Neighborhood CD: | 4 |
Owner |
| Name: | GIBSON, BRIAN D | Owner ID: | 317141 |
| Mailing Address: | STEPHANIE L HAWKINS 6526 46TH AVE NW SEATTLE, WA 98115 | % Ownership: | 100.0000000000% |
| | | Exemptions: | |
Taxes and Assessment Details
Values
| (+) Improvement Homesite Value: | + | $0 | |
| (+) Improvement Non-Homesite Value: | + | $108,071 | |
| (+) Land Homesite Value: | + | $0 | |
| (+) Land Non-Homesite Value: | + | $240,000 | |
| (+) Curr Use (HS): | + | $0 | $0 |
| (+) Curr Use (NHS): | + | $0 | $0 |
| | | -------------------------- | |
| (=) Market Value: | = | $348,071 | |
| (–) Productivity Loss: | – | $0 | |
| | | -------------------------- | |
| (=) Subtotal: | = | $348,071 | |
| (+) Senior Appraised Value: | + | $0 | |
| (+) Non-Senior Appraised Value: | + | $348,071 | |
| | | -------------------------- | |
| (=) Total Appraised Value: | = | $348,071 | |
| (–) Senior Exemption Loss: | – | $0 | |
| (–) Exemption Loss: | – | $0 | |
| | | -------------------------- | |
| (=) Taxable Value: | = | $348,071 | |
Taxing Jurisdiction
| Owner: | GIBSON, BRIAN D | | |
| % Ownership: | 100.0000000000% | | |
| Total Value: | $348,071 | | |
| Tax Area: | 710 - APPRAISER-S Whid Schl Dist, outside Langley, improved & 1 acre or less |
| CF | Conservation Futures | 0.0313996660 | $348,071 | $348,071 | $10.93 | | |
| FIRE3 | Fire & Rescue Dist #3 S Whidbey GEN | 1.2130821753 | $348,071 | $348,071 | $422.24 | | |
| HOBOND | Hospital BOND | 0.1893405597 | $348,071 | $348,071 | $65.90 | | |
| HOGEN | Hospital GEN | 0.3848777722 | $348,071 | $348,071 | $133.96 | | |
| CE | County Current Expense | 0.3674210519 | $348,071 | $348,071 | $127.89 | | |
| CR | County Roads | 0.4614296361 | $348,071 | $348,071 | $160.61 | | |
| ISLANDEMS | Hospital GEN (EMS) | 0.4952018576 | $348,071 | $348,071 | $172.37 | | |
| LIB | Library Sno-Isle GEN | 0.3039084203 | $348,071 | $348,071 | $105.78 | | |
| PORTWHID | Port of S Whidbey GEN | 0.1086004714 | $348,071 | $348,071 | $37.80 | | |
| SCH206BOND | School 206 BOND | 0.5960237832 | $348,071 | $348,071 | $207.46 | | |
| SCH206CAP | School 206 CP | 0.3066144020 | $348,071 | $348,071 | $106.72 | | |
| SCH206MO | School 206 Enrichment | 0.4808755445 | $348,071 | $348,071 | $167.38 | | |
| ST | State School | 1.4761226122 | $348,071 | $348,071 | $513.80 | | |
| ST2 | State School Part 2 | 0.7953803475 | $348,071 | $348,071 | $276.85 | | |
| SWHIDPRBD | P & R S Whidbey BOND | 0.0144185398 | $348,071 | $348,071 | $5.02 | | |
| SWHIDPRBD3 | P & R S Whidbey BOND3 | 0.1483535547 | $348,071 | $348,071 | $51.64 | | |
| SWHIDPRMT | P & R S Whidbey GEN | 0.4600000000 | $348,071 | $348,071 | $160.11 | | |
| | Total Tax Rate: | 7.8330503944 | | | | | |
| | | | | Taxes w/Current Exemptions: | $2,726.46 | | |
| | | | | Taxes w/o Exemptions: | $2,726.46 | | |
Improvement / Building
| Improvement #1: | RESIDENTIAL | State Code: | Y | 912.0 sqft | Value: | $108,071 |
| Bathrooms: | 1 | Bedrooms: | 2 | | Ceiling: | DRYWALL PAINTED | Exterior Wall/Cover: | PLY/HARDBOARD T-111 | | Floor Covering: | CARPET/VINYL 80-20 | Floor Structure: | WOOD W/SUBFLOOR | | Foundation: | CONCRETE | Heating: | FHA ELECTRIC | | Interior Finish: | DRYWALL PAINT | Plumbing Fixture Cnt: | 6 | | Roof Slope: | 4" IN 12" | Roof Structure/Cover: | CJ ASPHALT |
|
| | Type | Description | Class CD | Sub Class CD | Year Built | Area |
| | BAS | BASE/MAIN FLOOR | 2 | 0 | 1976 | 912.0 |
| | OWP | OPEN WOOD PORCH W/STEPS | 2 | 0 | 1976 | 300.0 |
Sketch
Property Image
Land
| 1 | 13 | SQ (06001-08000) | 0.0000 | 0.00 | 0.00 | 0.00 | 1.00 | $240,000 | $0 |
Roll Value History
| 2026 | N/A | N/A | N/A | N/A | N/A |
| 2025 | $108,071 | $240,000 | $0 | $348,071 | $348,071 |
| 2024 | $109,753 | $230,000 | $0 | $339,753 | $339,753 |
| 2023 | $111,434 | $230,000 | $0 | $341,434 | $341,434 |
| 2022 | $102,426 | $200,000 | $0 | $302,426 | $302,426 |
| 2021 | $90,395 | $150,000 | $0 | $240,395 | $240,395 |
| 2020 | $87,042 | $140,000 | $0 | $227,042 | $227,042 |
| 2019 | $62,899 | $180,000 | $0 | $242,899 | $242,899 |
| 2018 | $63,126 | $170,000 | $0 | $233,126 | $233,126 |
| 2017 | $63,580 | $150,000 | $0 | $213,580 | $213,580 |
| 2016 | $64,489 | $130,000 | $0 | $194,489 | $194,489 |
| 2015 | $65,397 | $100,000 | $0 | $165,397 | $165,397 |
| 2014 | $65,611 | $100,000 | $0 | $165,611 | $165,611 |
| 2013 | $66,689 | $85,000 | $0 | $151,689 | $151,689 |
| 2012 | $67,573 | $122,400 | $0 | $189,973 | $189,973 |
| 2011 | $68,457 | $144,000 | $0 | $212,457 | $212,457 |
| 2010 | $76,305 | $144,000 | $0 | $220,305 | $220,305 |
| 2009 | $79,550 | $180,000 | $0 | $259,550 | $259,550 |
| 2008 | $68,937 | $180,000 | $0 | $248,937 | $248,937 |
| 2007 | $69,918 | $180,000 | $0 | $249,918 | $249,918 |
Deed and Sales History
| 1 | 06/26/2025 | WD | Warranty Deed | ITAYA, JOSEPH E | GIBSON, BRIAN D | | | $495,000.00 | 63957 | 4587522 |
| 2 | 09/07/2005 | WD | Warranty Deed | BRIAN CARLSON FAMILY TRUST, | ITAYA, JOSEPH E | | | $180,000.00 | 54695 | 4148035 |
| 3 | 08/10/2005 | WD | Warranty Deed | VONHADEN TRUSTEE, BRAD | BRIAN CARLSON FAMILY TRUST, | | | $0.00 | 54310 | 4146062 |
| 4 | 07/17/2005 | WD | Warranty Deed | CARLSON, BRIAN D | VONHADEN TRUSTEE, BRAD | | | $0.00 | 53628 | 4142341 |
| 5 | 01/14/2004 | WD | Warranty Deed | MOE, ROBERT G | CARLSON, BRIAN D | | | $150,000.00 | 40178 | 4088648 |
| 6 | 01/13/2004 | ESTSEPPROP | Establish Separate Property | CARLSON, BRIAN D | CARLSON, BRIAN D | | | $0.00 | 40179 | 4088649 |
| 7 | 08/01/1992 | QCD | Quit Claim Deed | ALBERT, JOSEPH A | MOE, ROBERT G | | | $0.00 | 23397 | 92016554 |
| 8 | 08/01/1992 | WD | Warranty Deed | MOE, CLARENCE R | ALBERT, JOSEPH A | | | $90,000.00 | 23399 | 92016556 |
| 9 | 11/01/1991 | QCD | Quit Claim Deed | MOE, CLARENCE R | MOE, CLARENCE R | | | $0.00 | 14328 | 92014636 |
| 10 | 09/01/1991 | QCD | Quit Claim Deed | MOE, CLARENCE R | MOE, CLARENCE R | | | $0.00 | 13307 | 91014079 |
| 11 | 10/01/1987 | QCD | Quit Claim Deed | MOE, CLARENCE A | MOE, CLARENCE R | | | $0.00 | 73545 | 87015485 |
| 12 | 01/01/1900 | OTHER | Other - Misc. Documents | Unknown | MOE, CLARENCE A | | | $0.00 | 0 | 0 |
Payout Agreement
| No payout information available.. |