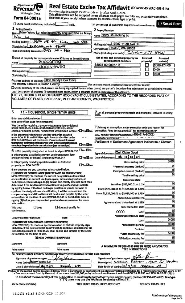
Property
Account |
| Property ID: | 369176 | Abbreviated Legal Description: | SANDY HOOK LOT 77 BLK 8 |
| Geographic ID: | S8075-00-08077-0 | Agent Code: | |
| Type: | Real | | |
| Tax Area: | 710 - APPRAISER-S Whid Schl Dist, outside Langley, improved & 1 acre or less | Land Use Code | 11 |
| Open Space: | N | DFL | N |
| Historic Property: | N | Remodel Property: | N |
| Multi-Family Redevelopment: | N | | |
| Township: | | Section: | |
| Range: | |
Location |
| Address: | 8053 SANDY HOOK DR CLINTON, WA 98236 | Mapsco: | |
| Neighborhood: | Cycle 4 | Map ID: | 710 |
| Neighborhood CD: | 4 |
Owner |
| Name: | LO, HARRY CHUN-SUNG | Owner ID: | 314953 |
| Mailing Address: | 21520 SE 28TH LN SAMMAMISH, WA 98075 | % Ownership: | 100.0000000000% |
| | | Exemptions: | |
Taxes and Assessment Details
Values
| (+) Improvement Homesite Value: | + | $0 | |
| (+) Improvement Non-Homesite Value: | + | $314,835 | |
| (+) Land Homesite Value: | + | $0 | |
| (+) Land Non-Homesite Value: | + | $425,000 | |
| (+) Curr Use (HS): | + | $0 | $0 |
| (+) Curr Use (NHS): | + | $0 | $0 |
| | | -------------------------- | |
| (=) Market Value: | = | $739,835 | |
| (–) Productivity Loss: | – | $0 | |
| | | -------------------------- | |
| (=) Subtotal: | = | $739,835 | |
| (+) Senior Appraised Value: | + | $0 | |
| (+) Non-Senior Appraised Value: | + | $739,835 | |
| | | -------------------------- | |
| (=) Total Appraised Value: | = | $739,835 | |
| (–) Senior Exemption Loss: | – | $0 | |
| (–) Exemption Loss: | – | $0 | |
| | | -------------------------- | |
| (=) Taxable Value: | = | $739,835 | |
Taxing Jurisdiction
| Owner: | LO, HARRY CHUN-SUNG | | |
| % Ownership: | 100.0000000000% | | |
| Total Value: | $739,835 | | |
| Tax Area: | 710 - APPRAISER-S Whid Schl Dist, outside Langley, improved & 1 acre or less |
| CF | Conservation Futures | 0.0313996660 | $739,835 | $739,835 | $23.23 | | |
| FIRE3 | Fire & Rescue Dist #3 S Whidbey GEN | 1.2130821753 | $739,835 | $739,835 | $897.48 | | |
| HOBOND | Hospital BOND | 0.1893405597 | $739,835 | $739,835 | $140.08 | | |
| HOGEN | Hospital GEN | 0.3848777722 | $739,835 | $739,835 | $284.75 | | |
| CE | County Current Expense | 0.3674210519 | $739,835 | $739,835 | $271.83 | | |
| CR | County Roads | 0.4614296361 | $739,835 | $739,835 | $341.38 | | |
| ISLANDEMS | Hospital GEN (EMS) | 0.4952018576 | $739,835 | $739,835 | $366.37 | | |
| LIB | Library Sno-Isle GEN | 0.3039084203 | $739,835 | $739,835 | $224.84 | | |
| PORTWHID | Port of S Whidbey GEN | 0.1086004714 | $739,835 | $739,835 | $80.35 | | |
| SCH206BOND | School 206 BOND | 0.5960237832 | $739,835 | $739,835 | $440.96 | | |
| SCH206CAP | School 206 CP | 0.3066144020 | $739,835 | $739,835 | $226.84 | | |
| SCH206MO | School 206 Enrichment | 0.4808755445 | $739,835 | $739,835 | $355.77 | | |
| ST | State School | 1.4761226122 | $739,835 | $739,835 | $1,092.09 | | |
| ST2 | State School Part 2 | 0.7953803475 | $739,835 | $739,835 | $588.45 | | |
| SWHIDPRBD | P & R S Whidbey BOND | 0.0144185398 | $739,835 | $739,835 | $10.67 | | |
| SWHIDPRBD3 | P & R S Whidbey BOND3 | 0.1483535547 | $739,835 | $739,835 | $109.76 | | |
| SWHIDPRMT | P & R S Whidbey GEN | 0.4600000000 | $739,835 | $739,835 | $340.32 | | |
| | Total Tax Rate: | 7.8330503944 | | | | | |
| | | | | Taxes w/Current Exemptions: | $5,795.17 | | |
| | | | | Taxes w/o Exemptions: | $5,795.17 | | |
Improvement / Building
| Improvement #1: | RESIDENTIAL | State Code: | Y | 2016.0 sqft | Value: | $314,835 |
| Bathrooms: | 2 | Bedrooms: | 2 | | Ceiling: | BEAM PAINTED | Exterior Wall/Cover: | WOOD SIDING | | Floor Covering: | HARDWOOD/CARP 20-80 | Floor Structure: | WOOD W/SUBFLOOR | | Foundation: | CONCRETE | Heating: | FHA ELECTRIC | | Interior Finish: | DRYWALL PAINT | Plumbing Fixture Cnt: | 9 | | Roof Slope: | 3" IN 12" | Roof Structure/Cover: | BEAM ALUMINUM HEAVY |
|
| | Type | Description | Class CD | Sub Class CD | Year Built | Area |
| | BAS | BASE/MAIN FLOOR | 3 | 0 | 1978 | 1026.0 |
| | OP4 | OPEN PORCH W/CEILING-ROOF | 3 | 0 | 1978 | 80.0 |
| | DGR | DETACHED GARAGE | 3 | 0 | 1978 | 528.0 |
| | UPS | UPPER STORY | 3 | 0 | 1978 | 990.0 |
| | OWP | OPEN WOOD PORCH W/STEPS | 3 | 0 | 1978 | 760.5 |
| | BAW | BALCONY WOOD RAIL | 3 | 0 | 1978 | 45.0 |
Sketch
| No sketches available for this property. |
Property Image
Land
| 1 | LB | LOW BANK | 0.0000 | 0.00 | 75.00 | 0.00 | 1.00 | $425,000 | $0 |
Roll Value History
| 2026 | N/A | N/A | N/A | N/A | N/A |
| 2025 | $314,835 | $425,000 | $0 | $739,835 | $739,835 |
| 2024 | $313,474 | $375,000 | $0 | $688,474 | $688,474 |
| 2023 | $317,640 | $375,000 | $0 | $692,640 | $692,640 |
| 2022 | $291,399 | $300,000 | $0 | $591,399 | $591,399 |
| 2021 | $256,674 | $240,000 | $0 | $496,674 | $496,674 |
| 2020 | $222,492 | $240,000 | $0 | $462,492 | $462,492 |
| 2019 | $171,132 | $275,000 | $0 | $446,132 | $446,132 |
| 2018 | $171,694 | $200,000 | $0 | $371,694 | $371,694 |
| 2017 | $172,815 | $175,000 | $0 | $347,815 | $347,815 |
| 2016 | $175,061 | $175,000 | $0 | $350,061 | $350,061 |
| 2015 | $177,303 | $175,000 | $0 | $352,303 | $352,303 |
| 2014 | $162,559 | $224,798 | $0 | $387,357 | $387,357 |
| 2013 | $165,781 | $224,798 | $0 | $390,579 | $390,579 |
| 2012 | $168,282 | $224,798 | $0 | $393,080 | $393,080 |
| 2011 | $170,783 | $224,798 | $0 | $395,581 | $395,581 |
| 2010 | $179,945 | $224,798 | $0 | $404,743 | $404,743 |
| 2009 | $187,930 | $299,730 | $0 | $487,660 | $487,660 |
| 2008 | $190,438 | $344,689 | $0 | $535,127 | $535,127 |
| 2007 | $192,945 | $285,825 | $0 | $478,770 | $478,770 |
Deed and Sales History
| 1 | 12/13/2024 | QCD | Quit Claim Deed | LO, MARY WONG | LO, HARRY CHUN-SUNG | | | $0.00 | 62162 | 4580673 |
| 2 | 10/09/2003 | DECREE | Divorce Decree/Legal Separation | LO, HARRY C | LO, HARRY C | | | $0.00 | 70033 | 0 |
| 3 | 05/01/1981 | EXECUTORD | Executor Deed | BROBERG, ROBERT C | LO, HARRY C | | | $150,000.00 | 11450 | 382963 |
| 4 | 04/01/1981 | CD | DNU - Correction Deed | MOORE, GEORGE A | BROBERG, ROBERT C | | | $0.00 | 11113 | 381799 |
| 5 | 04/01/1981 | EZ | Easement | MOORE, GEORGE A | MOORE, GEORGE A | | | $0.00 | 11114 | 381800 |
| 6 | 04/01/1981 | CD | DNU - Correction Deed | BROBERG, ROBERT C | MOORE, GEORGE A | | | $0.00 | 11115 | 381801 |
| 7 | 01/01/1900 | OTHER | Other - Misc. Documents | Unknown | BROBERG, ROBERT C | | | $0.00 | 0 | 0 |
Payout Agreement
| No payout information available.. |