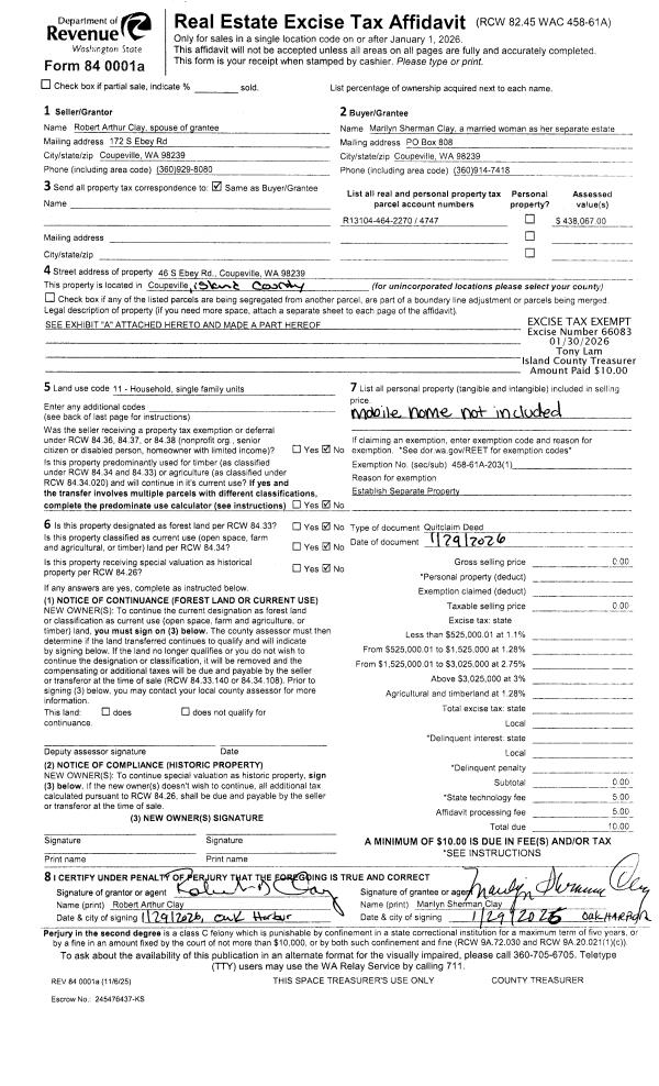
Property
Account |
| Property ID: | 369862 | Abbreviated Legal Description: | SANDY PT LOT 25 BLK 1 & N10' OF LOT 26 BLK 1 TGW ADJ VAC KLA-HOW-YA AVE |
| Geographic ID: | S8080-00-01025-0 | Agent Code: | |
| Type: | Real | | |
| Tax Area: | 710 - APPRAISER-S Whid Schl Dist, outside Langley, improved & 1 acre or less | Land Use Code | 11 |
| Open Space: | N | DFL | N |
| Historic Property: | N | Remodel Property: | N |
| Multi-Family Redevelopment: | N | | |
| Township: | | Section: | |
| Range: | |
Location |
| Address: | 4815 KLAHOWYA WALK LANGLEY, WA 98260 | Mapsco: | |
| Neighborhood: | Cycle 4 | Map ID: | 722 |
| Neighborhood CD: | 4 |
Owner |
| Name: | LAW, CYNTHIA B | Owner ID: | 268047 |
| Mailing Address: | 10586 MANITOU PARK BLVD NE BAINBRIDGE ISLAND, WA 98110 | % Ownership: | 100.0000000000% |
| | | Exemptions: | |
Taxes and Assessment Details
Values
| (+) Improvement Homesite Value: | + | $0 | |
| (+) Improvement Non-Homesite Value: | + | $180,295 | |
| (+) Land Homesite Value: | + | $0 | |
| (+) Land Non-Homesite Value: | + | $490,000 | |
| (+) Curr Use (HS): | + | $0 | $0 |
| (+) Curr Use (NHS): | + | $0 | $0 |
| | | -------------------------- | |
| (=) Market Value: | = | $670,295 | |
| (–) Productivity Loss: | – | $0 | |
| | | -------------------------- | |
| (=) Subtotal: | = | $670,295 | |
| (+) Senior Appraised Value: | + | $0 | |
| (+) Non-Senior Appraised Value: | + | $670,295 | |
| | | -------------------------- | |
| (=) Total Appraised Value: | = | $670,295 | |
| (–) Senior Exemption Loss: | – | $0 | |
| (–) Exemption Loss: | – | $0 | |
| | | -------------------------- | |
| (=) Taxable Value: | = | $670,295 | |
Taxing Jurisdiction
| Owner: | LAW, CYNTHIA B | | |
| % Ownership: | 100.0000000000% | | |
| Total Value: | $670,295 | | |
| Tax Area: | 710 - APPRAISER-S Whid Schl Dist, outside Langley, improved & 1 acre or less |
| CF | Conservation Futures | 0.0313996660 | $670,295 | $670,295 | $21.05 | | |
| FIRE3 | Fire & Rescue Dist #3 S Whidbey GEN | 1.2130821753 | $670,295 | $670,295 | $813.12 | | |
| HOBOND | Hospital BOND | 0.1893405597 | $670,295 | $670,295 | $126.91 | | |
| HOGEN | Hospital GEN | 0.3848777722 | $670,295 | $670,295 | $257.98 | | |
| CE | County Current Expense | 0.3674210519 | $670,295 | $670,295 | $246.28 | | |
| CR | County Roads | 0.4614296361 | $670,295 | $670,295 | $309.29 | | |
| ISLANDEMS | Hospital GEN (EMS) | 0.4952018576 | $670,295 | $670,295 | $331.93 | | |
| LIB | Library Sno-Isle GEN | 0.3039084203 | $670,295 | $670,295 | $203.71 | | |
| PORTWHID | Port of S Whidbey GEN | 0.1086004714 | $670,295 | $670,295 | $72.79 | | |
| SCH206BOND | School 206 BOND | 0.5960237832 | $670,295 | $670,295 | $399.51 | | |
| SCH206CAP | School 206 CP | 0.3066144020 | $670,295 | $670,295 | $205.52 | | |
| SCH206MO | School 206 Enrichment | 0.4808755445 | $670,295 | $670,295 | $322.33 | | |
| ST | State School | 1.4761226122 | $670,295 | $670,295 | $989.44 | | |
| ST2 | State School Part 2 | 0.7953803475 | $670,295 | $670,295 | $533.14 | | |
| SWHIDPRBD | P & R S Whidbey BOND | 0.0144185398 | $670,295 | $670,295 | $9.66 | | |
| SWHIDPRBD3 | P & R S Whidbey BOND3 | 0.1483535547 | $670,295 | $670,295 | $99.44 | | |
| SWHIDPRMT | P & R S Whidbey GEN | 0.4600000000 | $670,295 | $670,295 | $308.34 | | |
| | Total Tax Rate: | 7.8330503944 | | | | | |
| | | | | Taxes w/Current Exemptions: | $5,250.44 | | |
| | | | | Taxes w/o Exemptions: | $5,250.44 | | |
Improvement / Building
| Improvement #1: | RESIDENTIAL | State Code: | Y | 1160.0 sqft | Value: | $180,295 |
| Bathrooms: | 1 | Bedrooms: | 3 | | Ceiling: | PLYWOOD PAINTED | Exterior Wall/Cover: | WOOD SIDING | | Floor Covering: | CARPET/VINYL 60-40 | Floor Structure: | WOOD W/SUBFLOOR | | Foundation: | CONCRETE | Heating: | OIL HEATERS | | Interior Finish: | DRYWALL PAINT | Plumbing Fixture Cnt: | 6 | | Roof Slope: | 5" IN 12" | Roof Structure/Cover: | CJ ASPHALT |
|
| | Type | Description | Class CD | Sub Class CD | Year Built | Area |
| | BAS | BASE/MAIN FLOOR | 3 | 0 | 1943 | 800.0 |
| | UPH | HALF STORY | 3 | 0 | 1943 | 360.0 |
| | OWP | OPEN WOOD PORCH W/STEPS | 3 | 0 | 1943 | 214.0 |
| | OWP | OPEN WOOD PORCH W/STEPS | 3 | 0 | 1943 | 480.0 |
| | oUTI | UTILITY | 3 | 0 | 1943 | 152.0 |
Sketch
Property Image
Land
| 1 | 12 | SQ (00000-06000) | 0.0000 | 0.00 | 0.00 | 0.00 | 1.00 | $490,000 | $0 |
Roll Value History
| 2026 | N/A | N/A | N/A | N/A | N/A |
| 2025 | $180,295 | $490,000 | $0 | $670,295 | $670,295 |
| 2024 | $182,675 | $490,000 | $0 | $672,675 | $672,675 |
| 2023 | $185,055 | $490,000 | $0 | $675,055 | $675,055 |
| 2022 | $169,837 | $480,000 | $0 | $649,837 | $649,837 |
| 2021 | $149,718 | $400,000 | $0 | $549,718 | $549,718 |
| 2020 | $119,035 | $400,000 | $0 | $519,035 | $519,035 |
| 2019 | $86,541 | $425,000 | $0 | $511,541 | $511,541 |
| 2018 | $86,863 | $385,000 | $0 | $471,863 | $471,863 |
| 2017 | $87,507 | $385,000 | $0 | $472,507 | $472,507 |
| 2016 | $88,795 | $385,000 | $0 | $473,795 | $473,795 |
| 2015 | $90,084 | $385,000 | $0 | $475,084 | $475,084 |
| 2014 | $39,284 | $346,500 | $0 | $385,784 | $385,784 |
| 2013 | $40,328 | $346,500 | $0 | $386,828 | $386,828 |
| 2012 | $41,373 | $346,500 | $0 | $387,873 | $387,873 |
| 2011 | $42,418 | $385,000 | $0 | $427,418 | $427,418 |
| 2010 | $53,455 | $385,000 | $0 | $438,455 | $438,455 |
| 2009 | $55,154 | $414,000 | $0 | $469,154 | $469,154 |
| 2008 | $56,575 | $460,000 | $0 | $516,575 | $516,575 |
| 2007 | $57,939 | $460,000 | $0 | $517,939 | $517,939 |
Deed and Sales History
| 1 | 11/12/2025 | QCD | Quit Claim Deed | LAW, CYNTHIA B | LAW FAMILY, LLC | | | $10.00 | 65559 | 4593933 |
| 2 | 10/21/2019 | SPWARDEED | Special Warranty Deed | LAW, LAWRENCE H / CYNTHIA B | LAW, CYNTHIA B | | | $0.00 | 40851 | 4474210 |
| 3 | 12/01/1991 | QCD | Quit Claim Deed | LAW, LAURENCE H | LAW, LAWRENCE H | | | $0.00 | 20141 | 92000519 |
| 4 | 01/01/1900 | OTHER | Other - Misc. Documents | Unknown | LAW, LAURENCE H | | | $0.00 | 0 | 0 |
Payout Agreement
| No payout information available.. |