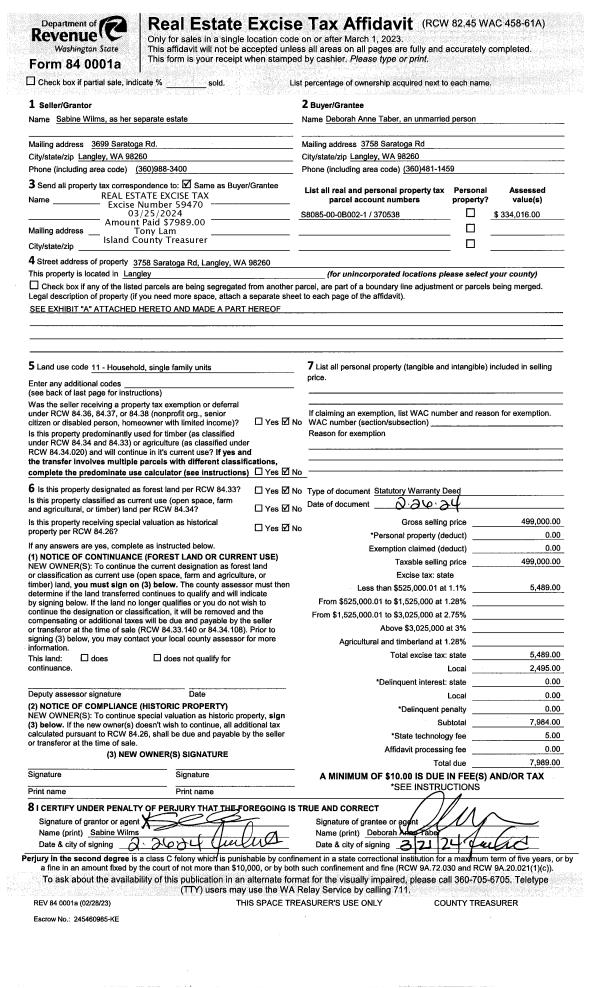
Property
Account |
| Property ID: | 370538 | Abbreviated Legal Description: | SARATOGA IN LOT 2 BLK B: BG NE CR SE 1/4 BLK 4 S102' S72*E188.5' NELY TO NEW CO RD NWLY TP E238'FR TPB W TPB |
| Geographic ID: | S8085-00-0B002-1 | Agent Code: | |
| Type: | Real | | |
| Tax Area: | 730 - APPRAISER-S Whid Schl Dist, Special District, improved & less than 1 acre | Land Use Code | 11 |
| Open Space: | N | DFL | N |
| Historic Property: | N | Remodel Property: | N |
| Multi-Family Redevelopment: | N | | |
| Township: | | Section: | |
| Range: | |
Location |
| Address: | 3758 SARATOGA RD LANGLEY, WA 98260 | Mapsco: | |
| Neighborhood: | Cycle 4 | Map ID: | 880 |
| Neighborhood CD: | 4 |
Owner |
| Name: | TABER, DEBORAH ANNE | Owner ID: | 311739 |
| Mailing Address: | 3758 SARATOGA RD LANGLEY, WA 98260 | % Ownership: | 100.0000000000% |
| | | Exemptions: | |
Taxes and Assessment Details
Values
| (+) Improvement Homesite Value: | + | $0 | |
| (+) Improvement Non-Homesite Value: | + | $145,428 | |
| (+) Land Homesite Value: | + | $0 | |
| (+) Land Non-Homesite Value: | + | $240,000 | |
| (+) Curr Use (HS): | + | $0 | $0 |
| (+) Curr Use (NHS): | + | $0 | $0 |
| | | -------------------------- | |
| (=) Market Value: | = | $385,428 | |
| (–) Productivity Loss: | – | $0 | |
| | | -------------------------- | |
| (=) Subtotal: | = | $385,428 | |
| (+) Senior Appraised Value: | + | $0 | |
| (+) Non-Senior Appraised Value: | + | $385,428 | |
| | | -------------------------- | |
| (=) Total Appraised Value: | = | $385,428 | |
| (–) Senior Exemption Loss: | – | $0 | |
| (–) Exemption Loss: | – | $0 | |
| | | -------------------------- | |
| (=) Taxable Value: | = | $385,428 | |
Taxing Jurisdiction
| Owner: | TABER, DEBORAH ANNE | | |
| % Ownership: | 100.0000000000% | | |
| Total Value: | $385,428 | | |
| Tax Area: | 730 - APPRAISER-S Whid Schl Dist, Special District, improved & less than 1 acre |
| CF | Conservation Futures | 0.0313996660 | $385,428 | $385,428 | $12.10 | | |
| FIRE3 | Fire & Rescue Dist #3 S Whidbey GEN | 1.2130821753 | $385,428 | $385,428 | $467.56 | | |
| HOBOND | Hospital BOND | 0.1893405597 | $385,428 | $385,428 | $72.98 | | |
| HOGEN | Hospital GEN | 0.3848777722 | $385,428 | $385,428 | $148.34 | | |
| CE | County Current Expense | 0.3674210519 | $385,428 | $385,428 | $141.61 | | |
| CR | County Roads | 0.4614296361 | $385,428 | $385,428 | $177.85 | | |
| ISLANDEMS | Hospital GEN (EMS) | 0.4952018576 | $385,428 | $385,428 | $190.86 | | |
| LIB | Library Sno-Isle GEN | 0.3039084203 | $385,428 | $385,428 | $117.13 | | |
| PORTWHID | Port of S Whidbey GEN | 0.1086004714 | $385,428 | $385,428 | $41.86 | | |
| SCH206BOND | School 206 BOND | 0.5960237832 | $385,428 | $385,428 | $229.72 | | |
| SCH206CAP | School 206 CP | 0.3066144020 | $385,428 | $385,428 | $118.18 | | |
| SCH206MO | School 206 Enrichment | 0.4808755445 | $385,428 | $385,428 | $185.34 | | |
| ST | State School | 1.4761226122 | $385,428 | $385,428 | $568.94 | | |
| ST2 | State School Part 2 | 0.7953803475 | $385,428 | $385,428 | $306.56 | | |
| SWHIDPRBD | P & R S Whidbey BOND | 0.0144185398 | $385,428 | $385,428 | $5.56 | | |
| SWHIDPRBD3 | P & R S Whidbey BOND3 | 0.1483535547 | $385,428 | $385,428 | $57.18 | | |
| SWHIDPRMT | P & R S Whidbey GEN | 0.4600000000 | $385,428 | $385,428 | $177.30 | | |
| | Total Tax Rate: | 7.8330503944 | | | | | |
| | | | | Taxes w/Current Exemptions: | $3,019.07 | | |
| | | | | Taxes w/o Exemptions: | $3,019.07 | | |
Improvement / Building
| Improvement #1: | RESIDENTIAL | State Code: | Y | 551.0 sqft | Value: | $145,428 |
| Bathrooms: | 1 | Bedrooms: | 1 | | Ceiling: | DRYWALL PAINTED | Exterior Wall/Cover: | PLY/HARDBOARD T-111 | | Floor Covering: | VINYL/HARDWOOD 60-40 | Floor Structure: | WOOD W/SUBFLOOR | | Foundation: | CONCRETE | Heating: | WALL HEAT ELECTRIC | | Interior Finish: | DRYWALL PAINT | Plumbing Fixture Cnt: | 6 | | Roof Slope: | 12" IN 12" | Roof Structure/Cover: | CJ ALUMINIUM HEAVY |
|
| | Type | Description | Class CD | Sub Class CD | Year Built | Area |
| | BAS | BASE/MAIN FLOOR | 3 | 0 | 2009 | 389.0 |
| | UPH | HALF STORY | 3 | 0 | 2009 | 162.0 |
| | OWP | OPEN WOOD PORCH W/STEPS | 3 | 0 | 2009 | 138.0 |
| | CPD | OPEN CARPORT DIRT FLOOR | 3 | 0 | 2009 | 300.0 |
| | ENP | ENCLOSED PORCH | 3 | 0 | 2009 | 192.0 |
Sketch
| No sketches available for this property. |
Property Image
Land
| 1 | 16 | AC (00.51-01.00) | 0.8200 | 35719.20 | 0.00 | 0.00 | 1.00 | $240,000 | $0 |
Roll Value History
| 2026 | N/A | N/A | N/A | N/A | N/A |
| 2025 | $145,428 | $240,000 | $0 | $385,428 | $385,428 |
| 2024 | $92,939 | $240,000 | $0 | $332,939 | $332,939 |
| 2023 | $94,016 | $240,000 | $0 | $334,016 | $334,016 |
| 2022 | $86,109 | $240,000 | $0 | $326,109 | $326,109 |
| 2021 | $75,726 | $135,000 | $0 | $210,726 | $210,726 |
| 2020 | $73,075 | $135,000 | $0 | $208,075 | $208,075 |
| 2019 | $50,490 | $150,000 | $0 | $200,490 | $200,490 |
| 2018 | $50,628 | $150,000 | $0 | $200,628 | $200,628 |
| 2017 | $44,980 | $125,000 | $0 | $169,980 | $169,980 |
| 2016 | $43,043 | $125,000 | $0 | $168,043 | $168,043 |
| 2015 | $43,473 | $100,000 | $0 | $143,473 | $143,473 |
| 2014 | $27,552 | $75,000 | $0 | $102,552 | $102,552 |
| 2013 | $27,845 | $75,000 | $0 | $102,845 | $102,845 |
| 2012 | $28,139 | $97,750 | $0 | $125,889 | $125,889 |
| 2011 | $28,431 | $115,000 | $0 | $143,431 | $143,431 |
| 2010 | $30,121 | $115,000 | $0 | $145,121 | $145,121 |
| 2009 | $13,527 | $80,000 | $0 | $93,527 | $93,527 |
| 2008 | $0 | $56,250 | $0 | $56,250 | $56,250 |
| 2007 | $0 | $56,250 | $0 | $56,250 | $56,250 |
Deed and Sales History
| 1 | 02/26/2024 | WD | Warranty Deed | WILMS, SABINE | TABER, DEBORAH ANNE | | | $499,000.00 | 59470 | 4570534 |
| 2 | 03/30/2018 | WD | Warranty Deed | BEERS, STEVEN R | WILMS, SABINE | | | $277,500.00 | 33522 | 4441846 |
| 3 | 09/12/2005 | WD | Warranty Deed | CORNELIUS, FRED E JR & ANN | BEERS, STEVEN R | | | $28,000.00 | 54602 | 4147625 |
| 4 | 01/01/1900 | OTHER | Other - Misc. Documents | Unknown | CORNELIUS, FRED E JR & ANN | | | $0.00 | 0 | 0 |
Payout Agreement
| No payout information available.. |