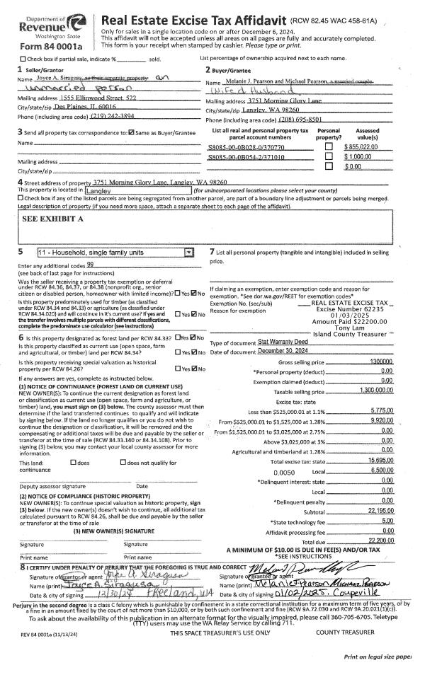
Property
Account |
| Property ID: | 371010 | Abbreviated Legal Description: | SARATOGA 1/5 INT LOT 54 BLK B BCH RTS 96D88 116D705 117D606 |
| Geographic ID: | S8085-00-0B054-2 | Agent Code: | |
| Type: | Real | | |
| Tax Area: | 730 - APPRAISER-S Whid Schl Dist, Special District, improved & less than 1 acre | Land Use Code | 99 |
| Open Space: | N | DFL | N |
| Historic Property: | N | Remodel Property: | N |
| Multi-Family Redevelopment: | N | | |
| Township: | | Section: | |
| Range: | |
Location |
| Address: | | Mapsco: | |
| Neighborhood: | Cycle 4 | Map ID: | 880 |
| Neighborhood CD: | 4 |
Owner |
| Name: | PEARSON, MELANIE J | Owner ID: | 315041 |
| Mailing Address: | MICHAEL PEARSON 3751 MORNING GLORY LN LANGLEY, WA 98260 | % Ownership: | 100.0000000000% |
| | | Exemptions: | |
Taxes and Assessment Details
Values
| (+) Improvement Homesite Value: | + | $0 | |
| (+) Improvement Non-Homesite Value: | + | $0 | |
| (+) Land Homesite Value: | + | $0 | |
| (+) Land Non-Homesite Value: | + | $1,000 | |
| (+) Curr Use (HS): | + | $0 | $0 |
| (+) Curr Use (NHS): | + | $0 | $0 |
| | | -------------------------- | |
| (=) Market Value: | = | $1,000 | |
| (–) Productivity Loss: | – | $0 | |
| | | -------------------------- | |
| (=) Subtotal: | = | $1,000 | |
| (+) Senior Appraised Value: | + | $0 | |
| (+) Non-Senior Appraised Value: | + | $1,000 | |
| | | -------------------------- | |
| (=) Total Appraised Value: | = | $1,000 | |
| (–) Senior Exemption Loss: | – | $0 | |
| (–) Exemption Loss: | – | $0 | |
| | | -------------------------- | |
| (=) Taxable Value: | = | $1,000 | |
Taxing Jurisdiction
| Owner: | PEARSON, MELANIE J | | |
| % Ownership: | 100.0000000000% | | |
| Total Value: | $1,000 | | |
| Tax Area: | 730 - APPRAISER-S Whid Schl Dist, Special District, improved & less than 1 acre |
| CF | Conservation Futures | 0.0313996660 | $1,000 | $1,000 | $0.03 | | |
| FIRE3 | Fire & Rescue Dist #3 S Whidbey GEN | 1.2130821753 | $1,000 | $1,000 | $1.21 | | |
| HOBOND | Hospital BOND | 0.1893405597 | $1,000 | $1,000 | $0.19 | | |
| HOGEN | Hospital GEN | 0.3848777722 | $1,000 | $1,000 | $0.38 | | |
| CE | County Current Expense | 0.3674210519 | $1,000 | $1,000 | $0.37 | | |
| CR | County Roads | 0.4614296361 | $1,000 | $1,000 | $0.46 | | |
| ISLANDEMS | Hospital GEN (EMS) | 0.4952018576 | $1,000 | $1,000 | $0.50 | | |
| LIB | Library Sno-Isle GEN | 0.3039084203 | $1,000 | $1,000 | $0.30 | | |
| PORTWHID | Port of S Whidbey GEN | 0.1086004714 | $1,000 | $1,000 | $0.11 | | |
| SCH206BOND | School 206 BOND | 0.5960237832 | $1,000 | $1,000 | $0.60 | | |
| SCH206CAP | School 206 CP | 0.3066144020 | $1,000 | $1,000 | $0.31 | | |
| SCH206MO | School 206 Enrichment | 0.4808755445 | $1,000 | $1,000 | $0.48 | | |
| ST | State School | 1.4761226122 | $1,000 | $1,000 | $1.48 | | |
| ST2 | State School Part 2 | 0.7953803475 | $1,000 | $1,000 | $0.80 | | |
| SWHIDPRBD | P & R S Whidbey BOND | 0.0144185398 | $1,000 | $1,000 | $0.01 | | |
| SWHIDPRBD3 | P & R S Whidbey BOND3 | 0.1483535547 | $1,000 | $1,000 | $0.15 | | |
| SWHIDPRMT | P & R S Whidbey GEN | 0.4600000000 | $1,000 | $1,000 | $0.46 | | |
| | Total Tax Rate: | 7.8330503944 | | | | | |
| | | | | Taxes w/Current Exemptions: | $7.84 | | |
| | | | | Taxes w/o Exemptions: | $7.84 | | |
Improvement / Building
Sketch
| No sketches available for this property. |
Property Image
Land
| 1 | 12 | SQ (00000-06000) | 0.0000 | 0.00 | 0.00 | 0.00 | 1.00 | $1,000 | $0 |
Roll Value History
| 2026 | N/A | N/A | N/A | N/A | N/A |
| 2025 | $0 | $1,000 | $0 | $1,000 | $1,000 |
| 2024 | $0 | $1,000 | $0 | $1,000 | $1,000 |
| 2023 | $0 | $1,000 | $0 | $1,000 | $1,000 |
| 2022 | $0 | $1,000 | $0 | $1,000 | $1,000 |
| 2021 | $0 | $1,000 | $0 | $1,000 | $1,000 |
| 2020 | $0 | $1,000 | $0 | $1,000 | $1,000 |
| 2019 | $0 | $1,000 | $0 | $1,000 | $1,000 |
| 2018 | $0 | $1,000 | $0 | $1,000 | $1,000 |
| 2017 | $0 | $1,000 | $0 | $1,000 | $1,000 |
| 2016 | $0 | $1,000 | $0 | $1,000 | $1,000 |
| 2015 | $0 | $1,000 | $0 | $1,000 | $1,000 |
| 2014 | $0 | $2,300 | $0 | $2,300 | $2,300 |
| 2013 | $0 | $2,300 | $0 | $2,300 | $2,300 |
| 2012 | $0 | $2,300 | $0 | $2,300 | $2,300 |
| 2011 | $0 | $2,300 | $0 | $2,300 | $2,300 |
| 2010 | $0 | $2,300 | $0 | $2,300 | $2,300 |
| 2009 | $0 | $2,400 | $0 | $2,400 | $2,400 |
| 2008 | $0 | $2,400 | $0 | $2,400 | $2,400 |
| 2007 | $0 | $2,400 | $0 | $2,400 | $2,400 |
Deed and Sales History
| 1 | 12/30/2024 | WD | Warranty Deed | SIRAGUSA, JOYCE A | PEARSON, MELANIE J | | | $1,300,000.00 | 62235 | 4580930 |
|   | |
| 2 | 09/20/2024 | WD | Warranty Deed | W PROPERTIES LLC | SIRAGUSA, JOYCE A | | | | 60385 | 4573702 |
| 3 | 09/03/1998 | WD | Warranty Deed | NICHOLS, WILSON O | WHITNEY, DONALD E | | | $0.00 | 73036 | 97014321 |
| 4 | 05/01/1995 | QCD | Quit Claim Deed | NICHOLS, WILSON O | NICHOLS, WILSON O | | | $0.00 | 51887 | 95008737 |
| 5 | 05/01/1995 | QCD | Quit Claim Deed | NICHOLS, FRANK T | NICHOLS, WILSON O | | | $0.00 | 51886 | 95008736 |
| 6 | 08/01/1994 | WD | Warranty Deed | ROBERTSON, JAMES A | NICHOLS, FRANK T | | | $1,008.00 | 43170 | 94017034 |
| 7 | 10/01/1992 | WD | Warranty Deed | ANDERSON, DWIGHT | ROBERTSON, JAMES A | | | $940.00 | 24003 | 92019446 |
| 8 | 07/01/1981 | REC | Real Estate Contract | BROOKS, CHESTER W | ANDERSON, DWIGHT | | | $2,357.00 | 12058 | 385023 |
| 9 | 01/01/1900 | OTHER | Other - Misc. Documents | Unknown | WHITNEY, DONALD E | | | $0.00 | 73036 | 97014321 |
| 10 | 01/01/1900 | OTHER | Other - Misc. Documents | WHITNEY, DONALD E | BROOKS, CHESTER W | | | $0.00 | 0 | 0 |
Payout Agreement
| No payout information available.. |