Property
Account |
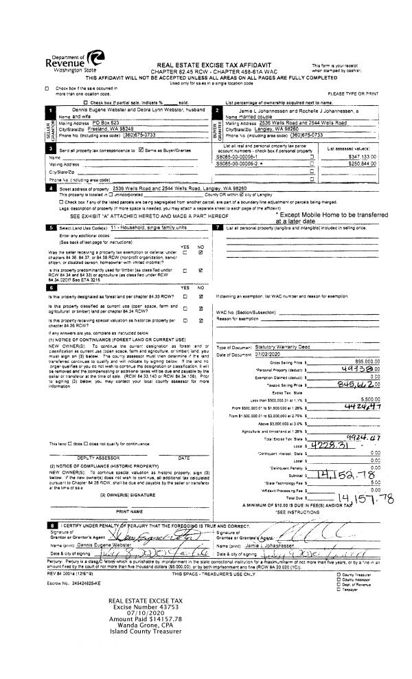
| Property ID: | 371760 | Abbreviated Legal Description: | SARATOGA N/2 OF LOT 6 EX PT LY NELY OF SWLY LN WELLS RD |
| Geographic ID: | S8085-00-00006-1 | Agent Code: | |
| Type: | Real | | |
| Tax Area: | 712 - APPRAISER-S Whid Schl Dist, outside Langley, improved, greater than 1 acre | Land Use Code | 11 |
| Open Space: | N | DFL | N |
| Historic Property: | N | Remodel Property: | N |
| Multi-Family Redevelopment: | N | | |
| Township: | | Section: | |
| Range: | |
Location |
| Address: | 2536 WELLS RD LANGLEY, WA 98260 | Mapsco: | |
| Neighborhood: | Cycle 4 | Map ID: | 879 |
| Neighborhood CD: | 4 |
Owner |
| Name: | JOHANNESSEN, JAMIE L | Owner ID: | 295143 |
| Mailing Address: | ROCHELLE J JOHANNESSEN 2536 WELLS RD LANGLEY, WA 98260 | % Ownership: | 100.0000000000% |
| | | Exemptions: | |
Taxes and Assessment Details
Values
| (+) Improvement Homesite Value: | + | $0 | |
| (+) Improvement Non-Homesite Value: | + | $208,186 | |
| (+) Land Homesite Value: | + | $0 | |
| (+) Land Non-Homesite Value: | + | $290,000 | |
| (+) Curr Use (HS): | + | $0 | $0 |
| (+) Curr Use (NHS): | + | $0 | $0 |
| | | -------------------------- | |
| (=) Market Value: | = | $498,186 | |
| (–) Productivity Loss: | – | $0 | |
| | | -------------------------- | |
| (=) Subtotal: | = | $498,186 | |
| (+) Senior Appraised Value: | + | $0 | |
| (+) Non-Senior Appraised Value: | + | $498,186 | |
| | | -------------------------- | |
| (=) Total Appraised Value: | = | $498,186 | |
| (–) Senior Exemption Loss: | – | $0 | |
| (–) Exemption Loss: | – | $0 | |
| | | -------------------------- | |
| (=) Taxable Value: | = | $498,186 | |
Taxing Jurisdiction
| Owner: | JOHANNESSEN, JAMIE L | | |
| % Ownership: | 100.0000000000% | | |
| Total Value: | $498,186 | | |
| Tax Area: | 712 - APPRAISER-S Whid Schl Dist, outside Langley, improved, greater than 1 acre |
| CF | Conservation Futures | 0.0313996660 | $498,186 | $498,186 | $15.64 | | |
| FIRE3 | Fire & Rescue Dist #3 S Whidbey GEN | 1.2130821753 | $498,186 | $498,186 | $604.34 | | |
| HOBOND | Hospital BOND | 0.1893405597 | $498,186 | $498,186 | $94.33 | | |
| HOGEN | Hospital GEN | 0.3848777722 | $498,186 | $498,186 | $191.74 | | |
| CE | County Current Expense | 0.3674210519 | $498,186 | $498,186 | $183.04 | | |
| CR | County Roads | 0.4614296361 | $498,186 | $498,186 | $229.88 | | |
| ISLANDEMS | Hospital GEN (EMS) | 0.4952018576 | $498,186 | $498,186 | $246.70 | | |
| LIB | Library Sno-Isle GEN | 0.3039084203 | $498,186 | $498,186 | $151.40 | | |
| PORTWHID | Port of S Whidbey GEN | 0.1086004714 | $498,186 | $498,186 | $54.10 | | |
| SCH206BOND | School 206 BOND | 0.5960237832 | $498,186 | $498,186 | $296.93 | | |
| SCH206CAP | School 206 CP | 0.3066144020 | $498,186 | $498,186 | $152.75 | | |
| SCH206MO | School 206 Enrichment | 0.4808755445 | $498,186 | $498,186 | $239.57 | | |
| ST | State School | 1.4761226122 | $498,186 | $498,186 | $735.38 | | |
| ST2 | State School Part 2 | 0.7953803475 | $498,186 | $498,186 | $396.25 | | |
| SWHIDPRBD | P & R S Whidbey BOND | 0.0144185398 | $498,186 | $498,186 | $7.18 | | |
| SWHIDPRBD3 | P & R S Whidbey BOND3 | 0.1483535547 | $498,186 | $498,186 | $73.91 | | |
| SWHIDPRMT | P & R S Whidbey GEN | 0.4600000000 | $498,186 | $498,186 | $229.17 | | |
| | Total Tax Rate: | 7.8330503944 | | | | | |
| | | | | Taxes w/Current Exemptions: | $3,902.31 | | |
| | | | | Taxes w/o Exemptions: | $3,902.31 | | |
Improvement / Building
| Improvement #1: | RESIDENTIAL | State Code: | Y | 1404.0 sqft | Value: | $208,186 |
| Bathrooms: | 2 | Bedrooms: | 2 | | Ceiling: | DRY WALL SPRAYED | Exterior Wall/Cover: | VINYL | | Floor Covering: | CERAMIC TILE/CPT 40-60 | Floor Structure: | WOOD W/SUBFLOOR | | Foundation: | CONCRETE | Heating: | WALL HEAT ELECTRIC | | Interior Finish: | DRYWALL PAINT | Plumbing Fixture Cnt: | 9 | | Roof Slope: | 4" IN 12" | Roof Structure/Cover: | CJ ALUMINIUM HEAVY |
|
| | Type | Description | Class CD | Sub Class CD | Year Built | Area |
| | BAS | BASE/MAIN FLOOR | 3 | 0 | 1981 | 936.0 |
| | UB8 | BASEMENT UNFINISHED 8" | 3 | 0 | 1981 | 936.0 |
| | LOF | LOFT | 3 | 0 | 1981 | 468.0 |
| | oPOL | POLE BARN | 3 | 0 | 1981 | 0.0 |
| | OWP | OPEN WOOD PORCH W/STEPS | 3 | 0 | 1981 | 606.6 |
Sketch
Property Image
Land
| 1 | 32 | AC (03.01-09.99) | 0.0000 | 0.00 | 0.00 | 0.00 | 1.00 | $290,000 | $0 |
Roll Value History
| 2026 | N/A | N/A | N/A | N/A | N/A |
| 2025 | $208,186 | $290,000 | $0 | $498,186 | $498,186 |
| 2024 | $211,055 | $290,000 | $0 | $501,055 | $501,055 |
| 2023 | $213,923 | $290,000 | $0 | $503,923 | $503,923 |
| 2022 | $197,745 | $290,000 | $0 | $487,745 | $487,745 |
| 2021 | $176,210 | $230,000 | $0 | $406,210 | $406,210 |
| 2020 | $157,133 | $190,000 | $0 | $347,133 | $347,133 |
| 2019 | $117,924 | $165,000 | $0 | $282,924 | $282,924 |
| 2018 | $118,305 | $165,000 | $0 | $283,305 | $283,305 |
| 2017 | $119,068 | $165,000 | $0 | $284,068 | $284,068 |
| 2016 | $120,593 | $165,000 | $0 | $285,593 | $285,593 |
| 2015 | $122,119 | $165,000 | $0 | $287,119 | $287,119 |
| 2014 | $106,627 | $124,500 | $0 | $231,127 | $231,127 |
| 2013 | $107,970 | $124,500 | $0 | $232,470 | $232,470 |
| 2012 | $109,312 | $124,500 | $0 | $233,812 | $233,812 |
| 2011 | $110,654 | $124,500 | $0 | $235,154 | $235,154 |
| 2010 | $82,790 | $124,500 | $0 | $207,290 | $207,290 |
| 2009 | $86,841 | $182,600 | $0 | $269,441 | $269,441 |
| 2008 | $68,285 | $256,884 | $0 | $325,169 | $325,169 |
| 2007 | $89,267 | $274,500 | $0 | $363,767 | $363,767 |
Deed and Sales History
| 1 | 07/02/2020 | WD | Warranty Deed | WEBSTER, DENNIS EUGENE | JOHANNESSEN, JAMIE L | | | $845,662.00 | 43753 | 4490991 |
|   | |
| 2 | 05/20/2014 | TRUSTEED | Trustee's Deed | WEBSTER TRUSTEE, DENNIS EUGENE | WEBSTER, DENNIS EUGENE | | | $0.00 | 15349 | 4359657 |
| 3 | 06/26/2010 | QCD | Quit Claim Deed | WEBSTER, DENNIS E | WEBSTER TRUSTEE, DENNIS EUGENE | | | $0.00 | 1857 | 4277929 |
| 4 | 11/01/1989 | WD | Warranty Deed | COLLONS, LESTER L | WEBSTER, DENNIS E | | | $73,800.00 | 95008 | 89016191 |
| 5 | 04/01/1983 | REC | Real Estate Contract | STORY, JOHN L | COLLONS, LESTER L | | | $75,000.00 | 31116 | 408918 |
| 6 | 08/01/1977 | EXECUTORD | Executor Deed | LINCOLN, THOMAS H | STORY, JOHN L | | | $0.00 | 73939 | 0 |
| 7 | 01/01/1900 | OTHER | Other - Misc. Documents | Unknown | LINCOLN, THOMAS H | | | $0.00 | 0 | 0 |
Payout Agreement
| No payout information available.. |