Property
Account |
| Property ID: | 372778 | Abbreviated Legal Description: | SARATOGA BCH 1 LOT 57 |
| Geographic ID: | S8090-00-00057-0 | Agent Code: | |
| Type: | Real | | |
| Tax Area: | 710 - APPRAISER-S Whid Schl Dist, outside Langley, improved & 1 acre or less | Land Use Code | 11 |
| Open Space: | N | DFL | N |
| Historic Property: | N | Remodel Property: | N |
| Multi-Family Redevelopment: | N | | |
| Township: | | Section: | |
| Range: | |
Location |
| Address: | 3363 HARBOR VIEW DR LANGLEY, WA 98260 | Mapsco: | |
| Neighborhood: | Cycle 3 | Map ID: | 379 |
| Neighborhood CD: | 3 |
Owner |
| Name: | MANLEY, MARK | Owner ID: | 316269 |
| Mailing Address: | MICHELLE MANLEY 3945 HAMILTON PARK DR SAN JOSE, CA 95103 | % Ownership: | 100.0000000000% |
| | | Exemptions: | |
Taxes and Assessment Details
Values
| (+) Improvement Homesite Value: | + | $0 | |
| (+) Improvement Non-Homesite Value: | + | $144,787 | |
| (+) Land Homesite Value: | + | $0 | |
| (+) Land Non-Homesite Value: | + | $240,000 | |
| (+) Curr Use (HS): | + | $0 | $0 |
| (+) Curr Use (NHS): | + | $0 | $0 |
| | | -------------------------- | |
| (=) Market Value: | = | $384,787 | |
| (–) Productivity Loss: | – | $0 | |
| | | -------------------------- | |
| (=) Subtotal: | = | $384,787 | |
| (+) Senior Appraised Value: | + | $0 | |
| (+) Non-Senior Appraised Value: | + | $384,787 | |
| | | -------------------------- | |
| (=) Total Appraised Value: | = | $384,787 | |
| (–) Senior Exemption Loss: | – | $0 | |
| (–) Exemption Loss: | – | $0 | |
| | | -------------------------- | |
| (=) Taxable Value: | = | $384,787 | |
Taxing Jurisdiction
| Owner: | MANLEY, MARK | | |
| % Ownership: | 100.0000000000% | | |
| Total Value: | $384,787 | | |
| Tax Area: | 710 - APPRAISER-S Whid Schl Dist, outside Langley, improved & 1 acre or less |
| CF | Conservation Futures | 0.0313996660 | $384,787 | $384,787 | $12.08 | | |
| FIRE3 | Fire & Rescue Dist #3 S Whidbey GEN | 1.2130821753 | $384,787 | $384,787 | $466.78 | | |
| HOBOND | Hospital BOND | 0.1893405597 | $384,787 | $384,787 | $72.86 | | |
| HOGEN | Hospital GEN | 0.3848777722 | $384,787 | $384,787 | $148.10 | | |
| CE | County Current Expense | 0.3674210519 | $384,787 | $384,787 | $141.38 | | |
| CR | County Roads | 0.4614296361 | $384,787 | $384,787 | $177.55 | | |
| ISLANDEMS | Hospital GEN (EMS) | 0.4952018576 | $384,787 | $384,787 | $190.55 | | |
| LIB | Library Sno-Isle GEN | 0.3039084203 | $384,787 | $384,787 | $116.94 | | |
| PORTWHID | Port of S Whidbey GEN | 0.1086004714 | $384,787 | $384,787 | $41.79 | | |
| SCH206BOND | School 206 BOND | 0.5960237832 | $384,787 | $384,787 | $229.34 | | |
| SCH206CAP | School 206 CP | 0.3066144020 | $384,787 | $384,787 | $117.98 | | |
| SCH206MO | School 206 Enrichment | 0.4808755445 | $384,787 | $384,787 | $185.03 | | |
| ST | State School | 1.4761226122 | $384,787 | $384,787 | $567.99 | | |
| ST2 | State School Part 2 | 0.7953803475 | $384,787 | $384,787 | $306.05 | | |
| SWHIDPRBD | P & R S Whidbey BOND | 0.0144185398 | $384,787 | $384,787 | $5.55 | | |
| SWHIDPRBD3 | P & R S Whidbey BOND3 | 0.1483535547 | $384,787 | $384,787 | $57.08 | | |
| SWHIDPRMT | P & R S Whidbey GEN | 0.4600000000 | $384,787 | $384,787 | $177.00 | | |
| | Total Tax Rate: | 7.8330503944 | | | | | |
| | | | | Taxes w/Current Exemptions: | $3,014.05 | | |
| | | | | Taxes w/o Exemptions: | $3,014.05 | | |
Improvement / Building
| Improvement #1: | RESIDENTIAL | State Code: | Y | 768.0 sqft | Value: | $113,691 |
| Bathrooms: | 1 | Bedrooms: | 1 | | Ceiling: | DRY WALL SPRAYED | Cooling: | HEAT PUMP/CONV/V | | Exterior Wall/Cover: | WOOD SIDING | Floor Covering: | HARDWOOD 100% | | Floor Structure: | WOOD W/SUBFLOOR | Foundation: | CONCRETE | | Interior Finish: | DRYWALL PAINT | Plumbing Fixture Cnt: | 5 | | Roof Slope: | 18" IN 12" | Roof Structure/Cover: | BEAM WOOD SHAKES |
|
| | Type | Description | Class CD | Sub Class CD | Year Built | Area |
| | BAS | BASE/MAIN FLOOR | 3 | 0 | 1968 | 768.0 |
| | OWR | OPEN WOOD PORCH W/STEPS/ROOF | 3 | 0 | 1968 | 312.0 |
| Improvement #2: | RESIDENTIAL | State Code: | Y | 360.0 sqft | Value: | $31,096 |
| Bathrooms: | 1 | Ceiling: | PLYWOOD PAINTED | | Cooling: | (NONE) | Exterior Wall/Cover: | PLY/HARDBOARD T-111 | | Floor Covering: | HARDWOOD/CARP 60-40 | Floor Structure: | WOOD W/SUBFLOOR | | Foundation: | CONCRETE | Interior Finish: | (NONE) | | Plumbing Fixture Cnt: | 4 | Roof Slope: | 5" IN 12" | | Roof Structure/Cover: | CJ ASPHALT |   |   |
|
| | Type | Description | Class CD | Sub Class CD | Year Built | Area |
| | BAS | BASE/MAIN FLOOR | 2 | 0 | 1972 | 360.0 |
| | OWP | OPEN WOOD PORCH W/STEPS | 3 | 0 | 1972 | 80.0 |
Sketch
Property Image
Land
| 1 | 15 | SQ (12001-21780) | 0.0000 | 0.00 | 0.00 | 0.00 | 1.00 | $240,000 | $0 |
Roll Value History
| 2026 | N/A | N/A | N/A | N/A | N/A |
| 2025 | $144,787 | $240,000 | $0 | $384,787 | $384,787 |
| 2024 | $147,502 | $260,000 | $0 | $407,502 | $407,502 |
| 2023 | $150,218 | $280,000 | $0 | $430,218 | $430,218 |
| 2022 | $136,889 | $210,000 | $0 | $346,889 | $85,411 |
| 2021 | $121,153 | $150,000 | $0 | $271,153 | $82,023 |
| 2020 | $118,635 | $130,000 | $0 | $248,635 | $81,437 |
| 2019 | $85,559 | $160,000 | $0 | $245,559 | $74,235 |
| 2018 | $85,920 | $120,000 | $0 | $205,920 | $74,324 |
| 2017 | $86,642 | $120,000 | $0 | $206,642 | $74,500 |
| 2016 | $88,084 | $90,000 | $0 | $178,084 | $74,852 |
| 2015 | $89,526 | $65,000 | $0 | $154,526 | $73,653 |
| 2014 | $90,970 | $65,000 | $0 | $155,970 | $74,443 |
| 2013 | $89,091 | $65,000 | $0 | $154,091 | $64,154 |
| 2012 | $90,238 | $68,850 | $0 | $159,088 | $64,154 |
| 2011 | $91,384 | $81,000 | $0 | $172,384 | $64,154 |
| 2010 | $98,612 | $90,000 | $0 | $188,612 | $65,330 |
| 2009 | $93,564 | $119,081 | $0 | $212,645 | $55,466 |
| 2008 | $93,962 | $120,000 | $0 | $213,962 | $55,466 |
| 2007 | $95,252 | $120,000 | $0 | $215,252 | $55,466 |
Deed and Sales History
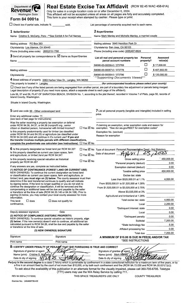
| 1 | 04/23/2025 | PRD | Personal Representatives Deed | CRISTINE S MCCARTY, PR | MANLEY, MARK | | | $450,000.00 | 63257 | 4584975 |
|   | |
| 2 | 07/01/1988 | WD | Warranty Deed | KELLOGG, RICHARD W | SCHWEITZER, KAARIN | | | $34,750.00 | 82488 | 88009398 |
| 3 | 01/01/1900 | OTHER | Other - Misc. Documents | Unknown | KELLOGG, RICHARD W | | | $0.00 | 0 | 0 |
Payout Agreement
| No payout information available.. |