Property
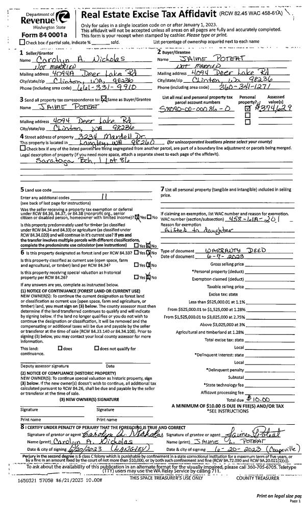
Account |
| Property ID: | 373054 | Abbreviated Legal Description: | SARATOGA BCH 1 LOT 86 |
| Geographic ID: | S8090-00-00086-0 | Agent Code: | |
| Type: | Real | | |
| Tax Area: | 710 - APPRAISER-S Whid Schl Dist, outside Langley, improved & 1 acre or less | Land Use Code | 11 |
| Open Space: | N | DFL | N |
| Historic Property: | N | Remodel Property: | N |
| Multi-Family Redevelopment: | N | | |
| Township: | | Section: | |
| Range: | |
Location |
| Address: | 3234 MARDELL DR LANGLEY, WA 98260 | Mapsco: | |
| Neighborhood: | Cycle 3 | Map ID: | 379 |
| Neighborhood CD: | 3 |
Owner |
| Name: | POTEAT, JAIME | Owner ID: | 309045 |
| Mailing Address: | 4094 DEER LAKE RD CLINTON, WA 98236 | % Ownership: | 100.0000000000% |
| | | Exemptions: | |
Taxes and Assessment Details
Values
| (+) Improvement Homesite Value: | + | $0 | |
| (+) Improvement Non-Homesite Value: | + | $91,364 | |
| (+) Land Homesite Value: | + | $0 | |
| (+) Land Non-Homesite Value: | + | $240,000 | |
| (+) Curr Use (HS): | + | $0 | $0 |
| (+) Curr Use (NHS): | + | $0 | $0 |
| | | -------------------------- | |
| (=) Market Value: | = | $331,364 | |
| (–) Productivity Loss: | – | $0 | |
| | | -------------------------- | |
| (=) Subtotal: | = | $331,364 | |
| (+) Senior Appraised Value: | + | $0 | |
| (+) Non-Senior Appraised Value: | + | $331,364 | |
| | | -------------------------- | |
| (=) Total Appraised Value: | = | $331,364 | |
| (–) Senior Exemption Loss: | – | $0 | |
| (–) Exemption Loss: | – | $0 | |
| | | -------------------------- | |
| (=) Taxable Value: | = | $331,364 | |
Taxing Jurisdiction
| Owner: | POTEAT, JAIME | | |
| % Ownership: | 100.0000000000% | | |
| Total Value: | $331,364 | | |
| Tax Area: | 710 - APPRAISER-S Whid Schl Dist, outside Langley, improved & 1 acre or less |
| CF | Conservation Futures | 0.0313996660 | $331,364 | $331,364 | $10.40 | | |
| FIRE3 | Fire & Rescue Dist #3 S Whidbey GEN | 1.2130821753 | $331,364 | $331,364 | $401.97 | | |
| HOBOND | Hospital BOND | 0.1893405597 | $331,364 | $331,364 | $62.74 | | |
| HOGEN | Hospital GEN | 0.3848777722 | $331,364 | $331,364 | $127.53 | | |
| CE | County Current Expense | 0.3674210519 | $331,364 | $331,364 | $121.75 | | |
| CR | County Roads | 0.4614296361 | $331,364 | $331,364 | $152.90 | | |
| ISLANDEMS | Hospital GEN (EMS) | 0.4952018576 | $331,364 | $331,364 | $164.09 | | |
| LIB | Library Sno-Isle GEN | 0.3039084203 | $331,364 | $331,364 | $100.70 | | |
| PORTWHID | Port of S Whidbey GEN | 0.1086004714 | $331,364 | $331,364 | $35.99 | | |
| SCH206BOND | School 206 BOND | 0.5960237832 | $331,364 | $331,364 | $197.50 | | |
| SCH206CAP | School 206 CP | 0.3066144020 | $331,364 | $331,364 | $101.60 | | |
| SCH206MO | School 206 Enrichment | 0.4808755445 | $331,364 | $331,364 | $159.34 | | |
| ST | State School | 1.4761226122 | $331,364 | $331,364 | $489.13 | | |
| ST2 | State School Part 2 | 0.7953803475 | $331,364 | $331,364 | $263.56 | | |
| SWHIDPRBD | P & R S Whidbey BOND | 0.0144185398 | $331,364 | $331,364 | $4.78 | | |
| SWHIDPRBD3 | P & R S Whidbey BOND3 | 0.1483535547 | $331,364 | $331,364 | $49.16 | | |
| SWHIDPRMT | P & R S Whidbey GEN | 0.4600000000 | $331,364 | $331,364 | $152.43 | | |
| | Total Tax Rate: | 7.8330503944 | | | | | |
| | | | | Taxes w/Current Exemptions: | $2,595.57 | | |
| | | | | Taxes w/o Exemptions: | $2,595.57 | | |
Improvement / Building
| Improvement #1: | MANUFACTURED HOME | State Code: | Y | 1344.0 sqft | Value: | $78,777 |
| Bathrooms: | 0 | Bedrooms: | 0 | | Ceiling: | PLASTER PAINTED | Exterior Wall/Cover: | VINYL | | Floor Covering: | CARPET 100% | Floor Structure: | SLAB ON GRADE | | Foundation: | SLAB | Heating: | FHA ELECTRIC | | Interior Finish: | PLASTER | Plumbing Fixture Cnt: | 1 | | Roof Slope: | FLAT | Roof Structure/Cover: | CJ ALUMINIUM HEAVY |
|
| | Type | Description | Class CD | Sub Class CD | Year Built | Area |
| | BAS | BASE/MAIN FLOOR | 3 | 0 | 1998 | 1344.0 |
| | oSKT | SKIRTING | 3 | 0 | 1998 | 0.0 |
| Improvement #2: | RESIDENTIAL | State Code: | Y | 0.0 sqft | Value: | $12,587 |
| | Type | Description | Class CD | Sub Class CD | Year Built | Area |
| | oMOP | PER MBH | 1 | 0 | 1900 | 0.0 |
| | oOWD | OPEN WD DK | 1 | 0 | 1900 | 0.0 |
| | oOWD | OPEN WD DK | 1 | 0 | 1900 | 0.0 |
| | oSEP | SEPTIC | 1 | 0 | 1900 | 0.0 |
| | oCPD | CARPRT DRT | 1 | 0 | 1900 | 0.0 |
| | oFN1 | WD FNC 6' | 1 | 0 | 1900 | 0.0 |
Sketch
Property Image
Land
| 1 | 15 | SQ (12001-21780) | 0.0000 | 0.00 | 0.00 | 0.00 | 1.00 | $240,000 | $0 |
Roll Value History
| 2026 | N/A | N/A | N/A | N/A | N/A |
| 2025 | $91,364 | $240,000 | $0 | $331,364 | $331,364 |
| 2024 | $92,452 | $260,000 | $0 | $352,452 | $352,452 |
| 2023 | $94,629 | $280,000 | $0 | $374,629 | $374,629 |
| 2022 | $88,888 | $210,000 | $0 | $298,888 | $44,767 |
| 2021 | $80,708 | $150,000 | $0 | $230,708 | $44,767 |
| 2020 | $80,397 | $130,000 | $0 | $210,397 | $44,767 |
| 2019 | $57,575 | $160,000 | $0 | $217,575 | $44,767 |
| 2018 | $58,885 | $120,000 | $0 | $178,885 | $44,767 |
| 2017 | $60,195 | $120,000 | $0 | $180,195 | $44,767 |
| 2016 | $60,851 | $90,000 | $0 | $150,851 | $44,767 |
| 2015 | $62,161 | $65,000 | $0 | $127,161 | $44,767 |
| 2014 | $63,471 | $65,000 | $0 | $128,471 | $61,918 |
| 2013 | $64,782 | $65,000 | $0 | $129,782 | $61,918 |
| 2012 | $66,092 | $68,850 | $0 | $134,942 | $61,918 |
| 2011 | $67,403 | $81,000 | $0 | $148,403 | $61,918 |
| 2010 | $63,705 | $90,000 | $0 | $153,705 | $61,918 |
| 2009 | $66,950 | $120,000 | $0 | $186,950 | $44,767 |
| 2008 | $67,648 | $120,262 | $0 | $187,910 | $44,767 |
| 2007 | $66,297 | $120,000 | $0 | $186,297 | $43,472 |
Deed and Sales History
| 1 | 06/07/2023 | WD | Warranty Deed | NICHOLAS, CAROLYN A | POTEAT, JAIME | | | $0.00 | 57058 | 4561295 |
| 2 | 08/19/2006 | QCD | Quit Claim Deed | NICHOLAS, CAROLYN A | NICHOLAS, CAROLYN A | | | $0.00 | 63710 | 4180294 |
| 3 | 01/20/2006 | QCD | Quit Claim Deed | NICHOLAS, CAROLYN A | NICHOLAS, CAROLYN A | | | $0.00 | 60255 | 4160187 |
| 4 | 09/01/1997 | OTHER | Other - Misc. Documents | YU, CHIU T | NICHOLAS, CAROLYN A | | | $0.00 | 11111111 | 0 |
| 5 | 09/01/1997 | WD | Warranty Deed | NICHOLAS, CAROLYN A | NICHOLAS, CAROLYN A | | | $26,000.00 | 73258 | 97015351 |
| 6 | 01/01/1994 | QCD | Quit Claim Deed | YU, CHIN T | YU, CHIU T | | | $0.00 | 40702 | 94004418 |
| 7 | 10/01/1989 | WD | Warranty Deed | BOLINGER, DELMAR V | YU, CHIN T | | | $8,000.00 | 94349 | 89014228 |
| 8 | 10/01/1987 | QCD | Quit Claim Deed | BOLINGER, DELMAR V | BOLINGER, DELMAR V | | | $0.00 | 73356 | 87014675 |
| 9 | 03/01/1980 | EXECUTORD | Executor Deed | LOUGHEED, ALLAN | BOLINGER, DELMAR V | | | $33,000.00 | 1363 | 367942 |
| 10 | 09/01/1978 | OTHER | Other - Misc. Documents | Unknown | LOUGHEED, ALLAN | | | $13,000.00 | 85345 | 342195 |
Payout Agreement
| No payout information available.. |