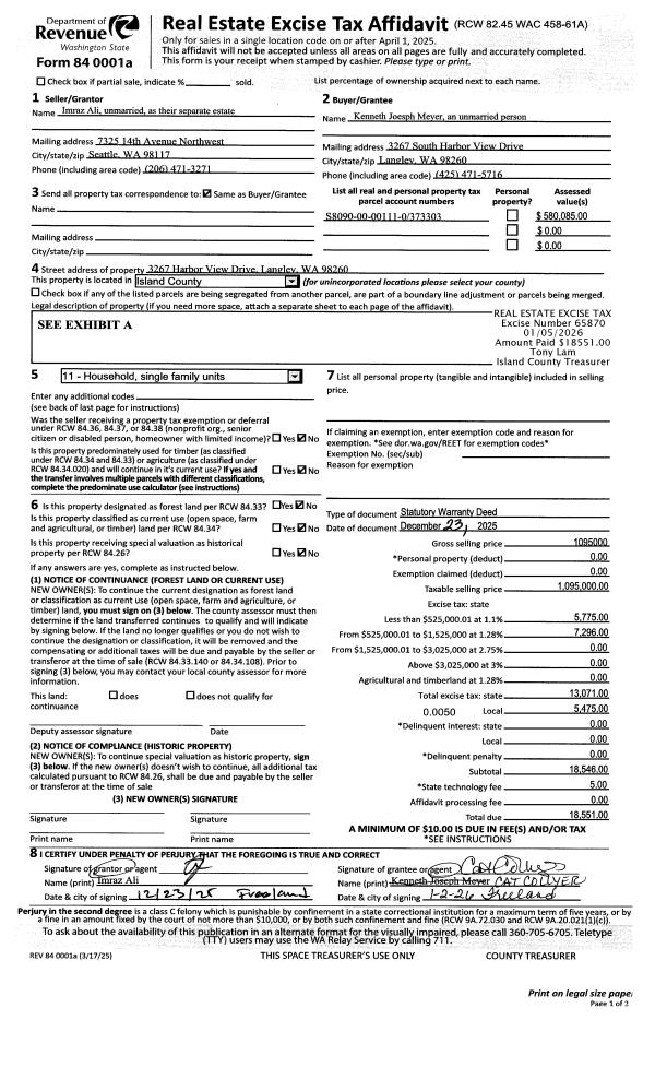
Property
Account |
| Property ID: | 373303 | Abbreviated Legal Description: | SARATOGA BCH 1 LOT 111 |
| Geographic ID: | S8090-00-00111-0 | Agent Code: | |
| Type: | Real | | |
| Tax Area: | 710 - APPRAISER-S Whid Schl Dist, outside Langley, improved & 1 acre or less | Land Use Code | 11 |
| Open Space: | N | DFL | N |
| Historic Property: | N | Remodel Property: | N |
| Multi-Family Redevelopment: | N | | |
| Township: | | Section: | |
| Range: | |
Location |
| Address: | 3267 HARBOR VIEW DR LANGLEY, WA 98260 | Mapsco: | |
| Neighborhood: | Cycle 3 | Map ID: | 379 |
| Neighborhood CD: | 3 |
Owner |
| Name: | ALI, IMRAZ | Owner ID: | 314420 |
| Mailing Address: | 7324 14TH AVE NW SEATTLE, WA 98117 | % Ownership: | 100.0000000000% |
| | | Exemptions: | |
Taxes and Assessment Details
Values
| (+) Improvement Homesite Value: | + | $0 | |
| (+) Improvement Non-Homesite Value: | + | $270,085 | |
| (+) Land Homesite Value: | + | $0 | |
| (+) Land Non-Homesite Value: | + | $310,000 | |
| (+) Curr Use (HS): | + | $0 | $0 |
| (+) Curr Use (NHS): | + | $0 | $0 |
| | | -------------------------- | |
| (=) Market Value: | = | $580,085 | |
| (–) Productivity Loss: | – | $0 | |
| | | -------------------------- | |
| (=) Subtotal: | = | $580,085 | |
| (+) Senior Appraised Value: | + | $0 | |
| (+) Non-Senior Appraised Value: | + | $580,085 | |
| | | -------------------------- | |
| (=) Total Appraised Value: | = | $580,085 | |
| (–) Senior Exemption Loss: | – | $0 | |
| (–) Exemption Loss: | – | $0 | |
| | | -------------------------- | |
| (=) Taxable Value: | = | $580,085 | |
Taxing Jurisdiction
| Owner: | ALI, IMRAZ | | |
| % Ownership: | 100.0000000000% | | |
| Total Value: | $580,085 | | |
| Tax Area: | 710 - APPRAISER-S Whid Schl Dist, outside Langley, improved & 1 acre or less |
| CF | Conservation Futures | 0.0313996660 | $580,085 | $580,085 | $18.21 | | |
| FIRE3 | Fire & Rescue Dist #3 S Whidbey GEN | 1.2130821753 | $580,085 | $580,085 | $703.69 | | |
| HOBOND | Hospital BOND | 0.1893405597 | $580,085 | $580,085 | $109.83 | | |
| HOGEN | Hospital GEN | 0.3848777722 | $580,085 | $580,085 | $223.26 | | |
| CE | County Current Expense | 0.3674210519 | $580,085 | $580,085 | $213.14 | | |
| CR | County Roads | 0.4614296361 | $580,085 | $580,085 | $267.67 | | |
| ISLANDEMS | Hospital GEN (EMS) | 0.4952018576 | $580,085 | $580,085 | $287.26 | | |
| LIB | Library Sno-Isle GEN | 0.3039084203 | $580,085 | $580,085 | $176.29 | | |
| PORTWHID | Port of S Whidbey GEN | 0.1086004714 | $580,085 | $580,085 | $63.00 | | |
| SCH206BOND | School 206 BOND | 0.5960237832 | $580,085 | $580,085 | $345.74 | | |
| SCH206CAP | School 206 CP | 0.3066144020 | $580,085 | $580,085 | $177.86 | | |
| SCH206MO | School 206 Enrichment | 0.4808755445 | $580,085 | $580,085 | $278.95 | | |
| ST | State School | 1.4761226122 | $580,085 | $580,085 | $856.28 | | |
| ST2 | State School Part 2 | 0.7953803475 | $580,085 | $580,085 | $461.39 | | |
| SWHIDPRBD | P & R S Whidbey BOND | 0.0144185398 | $580,085 | $580,085 | $8.36 | | |
| SWHIDPRBD3 | P & R S Whidbey BOND3 | 0.1483535547 | $580,085 | $580,085 | $86.06 | | |
| SWHIDPRMT | P & R S Whidbey GEN | 0.4600000000 | $580,085 | $580,085 | $266.84 | | |
| | Total Tax Rate: | 7.8330503944 | | | | | |
| | | | | Taxes w/Current Exemptions: | $4,543.83 | | |
| | | | | Taxes w/o Exemptions: | $4,543.83 | | |
Improvement / Building
| Improvement #1: | RESIDENTIAL | State Code: | Y | 1152.0 sqft | Value: | $270,085 |
| Bathrooms: | 2 | Bedrooms: | 2 | | Ceiling: | DRYWALL PAINTED | Exterior Wall/Cover: | WOOD SIDING | | Floor Covering: | HARDWOOD 100% | Floor Structure: | WOOD W/SUBFLOOR | | Foundation: | CONCRETE | Interior Finish: | DRYWALL PAINT | | Plumbing Fixture Cnt: | 10 | Roof Slope: | 6" IN 12" | | Roof Structure/Cover: | CJ ALUMINIUM HEAVY |   |   |
|
| | Type | Description | Class CD | Sub Class CD | Year Built | Area |
| | BAS | BASE/MAIN FLOOR | 3 | 0 | 1999 | 1152.0 |
| | OWP | OPEN WOOD PORCH W/STEPS | 3 | 0 | 1999 | 287.3 |
| | OWP | OPEN WOOD PORCH W/STEPS | 3 | 0 | 1999 | 224.0 |
| | OWR | OPEN WOOD PORCH W/STEPS/ROOF | 3 | 0 | 1999 | 84.0 |
| | ENP | ENCLOSED PORCH | 3 | 0 | 1999 | 192.0 |
| | OWP | OPEN WOOD PORCH W/STEPS | 3 | 0 | 1999 | 239.0 |
Sketch
| No sketches available for this property. |
Property Image
Land
| 1 | 15 | SQ (12001-21780) | 0.0000 | 0.00 | 0.00 | 0.00 | 1.00 | $310,000 | $0 |
Roll Value History
| 2026 | N/A | N/A | N/A | N/A | N/A |
| 2025 | $270,085 | $310,000 | $0 | $580,085 | $580,085 |
| 2024 | $286,080 | $310,000 | $0 | $596,080 | $596,080 |
| 2023 | $289,882 | $310,000 | $0 | $599,882 | $599,882 |
| 2022 | $265,936 | $280,000 | $0 | $545,936 | $545,936 |
| 2021 | $234,245 | $180,000 | $0 | $414,245 | $143,504 |
| 2020 | $228,580 | $165,000 | $0 | $393,580 | $143,504 |
| 2019 | $168,759 | $190,000 | $0 | $358,759 | $143,504 |
| 2018 | $169,285 | $150,000 | $0 | $319,285 | $319,285 |
| 2017 | $170,337 | $150,000 | $0 | $320,337 | $320,337 |
| 2016 | $172,441 | $150,000 | $0 | $322,441 | $322,441 |
| 2015 | $174,543 | $85,000 | $0 | $259,543 | $259,543 |
| 2014 | $176,647 | $85,000 | $0 | $261,647 | $261,647 |
| 2013 | $185,788 | $85,000 | $0 | $270,788 | $270,788 |
| 2012 | $187,974 | $107,100 | $0 | $295,074 | $295,074 |
| 2011 | $190,161 | $126,000 | $0 | $316,161 | $316,161 |
| 2010 | $196,192 | $140,000 | $0 | $336,192 | $336,192 |
| 2009 | $204,522 | $155,000 | $0 | $359,522 | $359,522 |
| 2008 | $206,860 | $155,000 | $0 | $361,860 | $361,860 |
| 2007 | $202,085 | $155,000 | $0 | $357,085 | $357,085 |
Deed and Sales History
| 1 | 12/23/2025 | WD | Warranty Deed | ALI, IMRAZ | MEYER, KENNETH JOSEPH | | | $0.00 | 65899 | 4595498 |
| 2 | 12/23/2025 | WD | Warranty Deed | ALI, IMRAZ | MEYER, KENNETH JOSEPH | | | $1,095,000.00 | 65870 | 4595323 |
| 3 | 10/26/2024 | WD | Warranty Deed | MORRISON, WILLIAM | ALI, IMRAZ | | | $450,000.00 | 61722 | 4578847 |
| 4 | 10/22/2024 | PRD | Personal Representatives Deed | ESTATE OF BARBARA G READ | MORRISON, WILLIAM | | | $0.00 | 61659 | 4578624 |
| 5 | 07/28/1998 | WD | Warranty Deed | STONEBERG, TIM & | READ, BARBARA G | | | $40,400.00 | 83047 | 98015838 |
| 6 | 11/01/1995 | WD | Warranty Deed | RUSSELL, KEITH J | STONEBERG, TIM & | | | $29,500.00 | 53924 | 95017972 |
| 7 | 11/01/1993 | WD | Warranty Deed | DETHMAN-WOOD, MARY E | RUSSELL, KEITH J | | | $28,500.00 | 34599 | 93024038 |
| 8 | 09/01/1990 | QCD | Quit Claim Deed | STADLER, RONALD N | DETHMAN-WOOD, MARY E | | | $0.00 | 5550 | 90018551 |
| 9 | 09/01/1990 | WD | Warranty Deed | DETHMAN-WOOD, MARY E | STADLER, RONALD N | | | $16,500.00 | 5551 | 90018552 |
| 10 | 01/01/1984 | QCD | Quit Claim Deed | DETHMAN-WOOD, MARY E | DETHMAN-WOOD, MARY E | | | $0.00 | 40338 | 420859 |
| 11 | 06/01/1982 | QCD | Quit Claim Deed | DETHMAN, G W | DETHMAN-WOOD, MARY E | | | $0.00 | 33682 | 418879 |
| 12 | 01/01/1900 | OTHER | Other - Misc. Documents | Unknown | READ, BARBARA G | | | $0.00 | 83047 | 98015838 |
| 13 | 01/01/1900 | OTHER | Other - Misc. Documents | READ, BARBARA G | DETHMAN, G W | | | $0.00 | 0 | 0 |
Payout Agreement
| No payout information available.. |