Property
Account |
| Property ID: | 373517 | Abbreviated Legal Description: | SARATOGA BCH 1 LOT 132 |
| Geographic ID: | S8090-00-00132-0 | Agent Code: | |
| Type: | Real | | |
| Tax Area: | 710 - APPRAISER-S Whid Schl Dist, outside Langley, improved & 1 acre or less | Land Use Code | 11 |
| Open Space: | N | DFL | N |
| Historic Property: | N | Remodel Property: | N |
| Multi-Family Redevelopment: | N | | |
| Township: | | Section: | |
| Range: | |
Location |
| Address: | 3276 EAST HARBOR RD LANGLEY, WA 98260 | Mapsco: | |
| Neighborhood: | Cycle 3 | Map ID: | 379 |
| Neighborhood CD: | 3 |
Owner |
| Name: | STAMATS, WILLIAM S | Owner ID: | 317090 |
| Mailing Address: | ANNE P STAMATS 3276 EAST HARBOR RD LANGLEY, WA 98260 | % Ownership: | 100.0000000000% |
| | | Exemptions: | |
Taxes and Assessment Details
Values
| (+) Improvement Homesite Value: | + | N/A | |
| (+) Improvement Non-Homesite Value: | + | N/A | |
| (+) Land Homesite Value: | + | N/A | |
| (+) Land Non-Homesite Value: | + | N/A | Ag / Timber Use Value |
| (+) Curr Use (HS): | + | N/A | N/A |
| (+) Curr Use (NHS): | + | N/A | N/A |
| | | -------------------------- | |
| (=) Market Value: | = | N/A | |
| (–) Productivity Loss: | – | N/A | |
| | | -------------------------- | |
| (=) Subtotal: | = | N/A | |
| (+) Senior Appraised Value: | + | N/A | |
| (+) Non-Senior Appraised Value: | + | N/A | |
| | | -------------------------- | |
| (=) Total Appraised Value: | = | N/A | |
| (–) Senior Exemption Loss: | – | N/A | |
| (–) Exemption Loss: | – | N/A | |
| | | -------------------------- | |
| (=) Taxable Value: | = | N/A | |
Taxing Jurisdiction
| Owner: | STAMATS, WILLIAM S | | |
| % Ownership: | 100.0000000000% | | |
| Total Value: | N/A | | |
| Tax Area: | 710 - APPRAISER-S Whid Schl Dist, outside Langley, improved & 1 acre or less |
| CF | Conservation Futures | N/A | N/A | N/A | N/A | | |
| WCD | Whidbey Conservation District | N/A | N/A | N/A | N/A | | |
| FIRE3 | Fire & Rescue Dist #3 S Whidbey GEN | N/A | N/A | N/A | N/A | | |
| HOBOND | Hospital BOND | N/A | N/A | N/A | N/A | | |
| HOGEN | Hospital GEN | N/A | N/A | N/A | N/A | | |
| CE | County Current Expense | N/A | N/A | N/A | N/A | | |
| CR | County Roads | N/A | N/A | N/A | N/A | | |
| ISLANDEMS | Hospital GEN (EMS) | N/A | N/A | N/A | N/A | | |
| LIB | Library Sno-Isle GEN | N/A | N/A | N/A | N/A | | |
| PORTWHID | Port of S Whidbey GEN | N/A | N/A | N/A | N/A | | |
| SCH206CAP | School 206 CP | N/A | N/A | N/A | N/A | | |
| SCH206MO | School 206 Enrichment | N/A | N/A | N/A | N/A | | |
| ST | State School | N/A | N/A | N/A | N/A | | |
| ST2 | State School Part 2 | N/A | N/A | N/A | N/A | | |
| SWHIDPRBD | P & R S Whidbey BOND | N/A | N/A | N/A | N/A | | |
| SWHIDPRBD2 | P & R S Whidbey BOND2 | N/A | N/A | N/A | N/A | | |
| SWHIDPRMT | P & R S Whidbey GEN | N/A | N/A | N/A | N/A | | |
| | Total Tax Rate: | N/A | | | | | |
| | | | | Taxes w/Current Exemptions: | N/A | | |
| | | | | Taxes w/o Exemptions: | N/A | | |
Improvement / Building
| Improvement #1: | MANUFACTURED HOME | State Code: | Y | 1152.0 sqft | Value: | N/A |
| Bathrooms: | 0 | Bedrooms: | 0 | | Ceiling: | PLASTER PAINTED | Cooling: | EVAP NO DUCT | | Exterior Wall/Cover: | VINYL | Floor Covering: | CARPET 100% | | Floor Structure: | SLAB ON GRADE | Foundation: | SLAB | | Heating: | FHA ELECTRIC | Interior Finish: | PLASTER | | Plumbing Fixture Cnt: | 1 | Roof Slope: | FLAT | | Roof Structure/Cover: | CJ ALUMINIUM HEAVY |   |   |
|
| | Type | Description | Class CD | Sub Class CD | Year Built | Area |
| | BAS | BASE/MAIN FLOOR | 4 | 0 | 1978 | 1152.0 |
| | OWP | OPEN WOOD PORCH W/STEPS | 4 | 0 | 1978 | 64.0 |
| | OWP | OPEN WOOD PORCH W/STEPS | 4 | 0 | 1978 | 200.0 |
Sketch
Property Image
Land
| 1 | 15 | SQ (12001-21780) | 0.0000 | 0.00 | 0.00 | 0.00 | 1.00 | N/A | N/A |
Roll Value History
| 2026 | N/A | N/A | N/A | N/A | N/A |
| 2025 | $58,204 | $310,000 | $0 | $368,204 | $368,204 |
| 2024 | $61,268 | $310,000 | $0 | $371,268 | $371,268 |
| 2023 | $55,939 | $310,000 | $0 | $365,939 | $365,939 |
| 2022 | $53,067 | $280,000 | $0 | $333,067 | $333,067 |
| 2021 | $48,242 | $180,000 | $0 | $228,242 | $228,242 |
| 2020 | $49,046 | $165,000 | $0 | $214,046 | $214,046 |
| 2019 | $33,809 | $190,000 | $0 | $223,809 | $223,809 |
| 2018 | $35,419 | $120,000 | $0 | $155,419 | $155,419 |
| 2017 | $37,030 | $120,000 | $0 | $157,030 | $157,030 |
| 2016 | $38,639 | $90,000 | $0 | $128,639 | $128,639 |
| 2015 | $41,055 | $75,000 | $0 | $116,055 | $116,055 |
| 2014 | $29,362 | $65,000 | $0 | $94,362 | $94,362 |
| 2013 | $39,878 | $65,000 | $0 | $104,878 | $41,951 |
| 2012 | $40,952 | $68,850 | $0 | $109,802 | $43,921 |
| 2011 | $42,564 | $81,000 | $0 | $123,564 | $49,426 |
| 2010 | $39,591 | $90,000 | $0 | $129,591 | $129,591 |
| 2009 | $41,871 | $120,000 | $0 | $161,871 | $161,871 |
| 2008 | $43,347 | $120,000 | $0 | $163,347 | $163,347 |
| 2007 | $42,997 | $120,000 | $0 | $162,997 | $162,997 |
Deed and Sales History
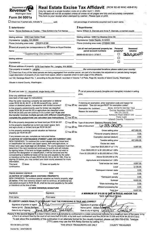
| 1 | 06/23/2025 | WD | Warranty Deed | BARBEAU TTEE, RENEE | STAMATS, WILLIAM S | | | $427,000.00 | 63925 | 4587377 |
| 2 | 10/27/2020 | WD | Warranty Deed | ROETCISDEN TTEE , LAURA E | BARBEAU TTEE, RENEE | | | $330,000.00 | 45850 | 4503237 |
| 3 | 11/23/2020 | QCD | Quit Claim Deed | THE LAURA E ROETCISDEN LIVING TRUST | ROETCISDEN TTEE , LAURA E | | | $0.00 | 45849 | 4503236 |
| 4 | 06/29/2015 | TRUSTEED | Trustee's Deed | ROETCISOENDER, LAURA E | THE LAURA E ROETCISDEN LIVING TRUST | | | $0.00 | 20265 | 4381247 |
| 5 | 08/19/2014 | WD | Warranty Deed | HARRINGTON, PATRICIA R | ROETCISOENDER, LAURA E | | | $165,000.00 | 16668 | 4365009 |
|   | |
| 6 | 07/22/2002 | WD | Warranty Deed | KING, SANDRA | HARRINGTON, PATRICIA R | | | $68,032.00 | 22862 | 4026407 |
| 7 | 07/23/2001 | TRUSTEED | Trustee's Deed | REDFORD, TIMOTHY W | KING, SANDRA | | | $0.00 | 13470 | 20042357 |
| 8 | 09/01/1995 | OTHER | Other - Misc. Documents | REDFORD, TIMOTHY W | REDFORD, TIMOTHY W | | | $0.00 | 66650 | 0 |
| 9 | 12/01/1994 | OTHER | Other - Misc. Documents | DAVIS, BERNICE P | REDFORD, TIMOTHY W | | | $24,120.00 | 45213 | 0 |
| 10 | 12/01/1994 | WD | Warranty Deed | REDFORD, TIMOTHY W | REDFORD, TIMOTHY W | | | $45,880.00 | 45212 | 94026317 |
| 11 | 12/01/1992 | OTHER | Other - Misc. Documents | DAVIS, BERNICE P | DAVIS, BERNICE P | | | $0.00 | 65172 | 0 |
| 12 | 03/01/1989 | OTHER | Other - Misc. Documents | DAVIS, BERNICE P | DAVIS, BERNICE P | | | $0.00 | 90973 | 0 |
| 13 | 05/01/1985 | QCD | Quit Claim Deed | DAVIS, LEONARD B | DAVIS, BERNICE P | | | $0.00 | 51187 | 85004788 |
| 14 | 01/01/1900 | OTHER | Other - Misc. Documents | Unknown | DAVIS, LOYD | | | $17,500.00 | 0 | 0 |
| 15 | 01/01/1900 | OTHER | Other - Misc. Documents | DAVIS, LOYD | DAVIS, LEONARD B | | | $0.00 | 0 | 0 |
Payout Agreement
| No payout information available.. |