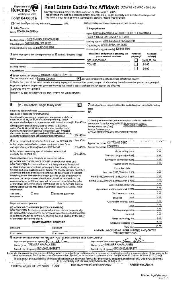
Property
Account |
| Property ID: | 374179 | Abbreviated Legal Description: | SARATOGA BCH 2 LOT 198 |
| Geographic ID: | S8090-02-00198-0 | Agent Code: | |
| Type: | Real | | |
| Tax Area: | 710 - APPRAISER-S Whid Schl Dist, outside Langley, improved & 1 acre or less | Land Use Code | 11 |
| Open Space: | N | DFL | N |
| Historic Property: | N | Remodel Property: | N |
| Multi-Family Redevelopment: | N | | |
| Township: | | Section: | |
| Range: | |
Location |
| Address: | 3426 AQUA LN LANGLEY, WA 98260 | Mapsco: | |
| Neighborhood: | Cycle 3 | Map ID: | 378 |
| Neighborhood CD: | 3 |
Owner |
| Name: | PEDERSEN, JANICE L | Owner ID: | 100470 |
| Mailing Address: | 3426 AQUA LN LANGLEY, WA 98260-8001 | % Ownership: | 100.0000000000% |
| | | Exemptions: | |
Taxes and Assessment Details
Values
| (+) Improvement Homesite Value: | + | $0 | |
| (+) Improvement Non-Homesite Value: | + | $273,853 | |
| (+) Land Homesite Value: | + | $0 | |
| (+) Land Non-Homesite Value: | + | $600,000 | |
| (+) Curr Use (HS): | + | $0 | $0 |
| (+) Curr Use (NHS): | + | $0 | $0 |
| | | -------------------------- | |
| (=) Market Value: | = | $873,853 | |
| (–) Productivity Loss: | – | $0 | |
| | | -------------------------- | |
| (=) Subtotal: | = | $873,853 | |
| (+) Senior Appraised Value: | + | $0 | |
| (+) Non-Senior Appraised Value: | + | $873,853 | |
| | | -------------------------- | |
| (=) Total Appraised Value: | = | $873,853 | |
| (–) Senior Exemption Loss: | – | $0 | |
| (–) Exemption Loss: | – | $0 | |
| | | -------------------------- | |
| (=) Taxable Value: | = | $873,853 | |
Taxing Jurisdiction
| Owner: | PEDERSEN, JANICE L | | |
| % Ownership: | 100.0000000000% | | |
| Total Value: | $873,853 | | |
| Tax Area: | 710 - APPRAISER-S Whid Schl Dist, outside Langley, improved & 1 acre or less |
| CF | Conservation Futures | 0.0313996660 | $873,853 | $873,853 | $27.44 | | |
| FIRE3 | Fire & Rescue Dist #3 S Whidbey GEN | 1.2130821753 | $873,853 | $873,853 | $1,060.06 | | |
| HOBOND | Hospital BOND | 0.1893405597 | $873,853 | $873,853 | $165.46 | | |
| HOGEN | Hospital GEN | 0.3848777722 | $873,853 | $873,853 | $336.33 | | |
| CE | County Current Expense | 0.3674210519 | $873,853 | $873,853 | $321.07 | | |
| CR | County Roads | 0.4614296361 | $873,853 | $873,853 | $403.22 | | |
| ISLANDEMS | Hospital GEN (EMS) | 0.4952018576 | $873,853 | $873,853 | $432.73 | | |
| LIB | Library Sno-Isle GEN | 0.3039084203 | $873,853 | $873,853 | $265.57 | | |
| PORTWHID | Port of S Whidbey GEN | 0.1086004714 | $873,853 | $873,853 | $94.90 | | |
| SCH206BOND | School 206 BOND | 0.5960237832 | $873,853 | $873,853 | $520.84 | | |
| SCH206CAP | School 206 CP | 0.3066144020 | $873,853 | $873,853 | $267.94 | | |
| SCH206MO | School 206 Enrichment | 0.4808755445 | $873,853 | $873,853 | $420.21 | | |
| ST | State School | 1.4761226122 | $873,853 | $873,853 | $1,289.91 | | |
| ST2 | State School Part 2 | 0.7953803475 | $873,853 | $873,853 | $695.05 | | |
| SWHIDPRBD | P & R S Whidbey BOND | 0.0144185398 | $873,853 | $873,853 | $12.60 | | |
| SWHIDPRBD3 | P & R S Whidbey BOND3 | 0.1483535547 | $873,853 | $873,853 | $129.64 | | |
| SWHIDPRMT | P & R S Whidbey GEN | 0.4600000000 | $873,853 | $873,853 | $401.97 | | |
| | Total Tax Rate: | 7.8330503944 | | | | | |
| | | | | Taxes w/Current Exemptions: | $6,844.94 | | |
| | | | | Taxes w/o Exemptions: | $6,844.94 | | |
Improvement / Building
| Improvement #1: | RESIDENTIAL | State Code: | Y | 2263.4 sqft | Value: | $273,853 |
| Bathrooms: | 2 | Bedrooms: | 2 | | Ceiling: | TONGUE & GROOVE | Cooling: | HEAT PUMP/CONV/V | | Exterior Wall/Cover: | PLY/HARDBOARD T-111 | Floor Covering: | CARPET/VINYL 60-40 | | Floor Structure: | WOOD W/SUBFLOOR | Foundation: | CONCRETE | | Interior Finish: | DRYWALL PAINT | Plumbing Fixture Cnt: | 9 | | Roof Slope: | 3" IN 12" | Roof Structure/Cover: | CJ ASPHALT |
|
| | Type | Description | Class CD | Sub Class CD | Year Built | Area |
| | BAS | BASE/MAIN FLOOR | 3 | 0 | 1964 | 1335.4 |
| | UTY | STORAGE/UTILITY | 3 | 0 | 1964 | 24.0 |
| | UPS | UPPER STORY | 3 | 0 | 1964 | 560.0 |
| | OWP | OPEN WOOD PORCH W/STEPS | 3 | 0 | 1964 | 432.1 |
| | OWP | OPEN WOOD PORCH W/STEPS | 3 | 0 | 1964 | 160.0 |
| | OP4 | OPEN PORCH W/CEILING-ROOF | 3 | 0 | 1964 | 96.0 |
| | DGR | DETACHED GARAGE | 3 | 0 | 1964 | 600.0 |
| | LOF | LOFT | 3 | 0 | 1964 | 368.0 |
Sketch
Property Image
Land
| 1 | HB | HIGH BLUFF | 0.0000 | 0.00 | 80.00 | 0.00 | 1.00 | $600,000 | $0 |
Roll Value History
| 2026 | N/A | N/A | N/A | N/A | N/A |
| 2025 | $273,853 | $600,000 | $0 | $873,853 | $873,853 |
| 2024 | $277,592 | $600,000 | $0 | $877,592 | $877,592 |
| 2023 | $281,331 | $550,000 | $0 | $831,331 | $831,331 |
| 2022 | $258,135 | $550,000 | $0 | $808,135 | $808,135 |
| 2021 | $227,416 | $300,000 | $0 | $527,416 | $527,416 |
| 2020 | $222,331 | $300,000 | $0 | $522,331 | $522,331 |
| 2019 | $162,318 | $250,000 | $0 | $412,318 | $412,318 |
| 2018 | $162,857 | $250,000 | $0 | $412,857 | $412,857 |
| 2017 | $163,609 | $250,000 | $0 | $413,609 | $413,609 |
| 2016 | $158,386 | $250,000 | $0 | $408,386 | $408,386 |
| 2015 | $160,497 | $200,000 | $0 | $360,497 | $360,497 |
| 2014 | $162,609 | $200,000 | $0 | $362,609 | $362,609 |
| 2013 | $169,360 | $199,750 | $0 | $369,110 | $369,110 |
| 2012 | $171,207 | $199,750 | $0 | $370,957 | $370,957 |
| 2011 | $173,051 | $199,750 | $0 | $372,801 | $372,801 |
| 2010 | $182,144 | $221,946 | $0 | $404,090 | $404,090 |
| 2009 | $190,812 | $308,660 | $0 | $499,472 | $499,472 |
| 2008 | $190,812 | $357,075 | $0 | $547,887 | $547,887 |
| 2007 | $95,305 | $357,075 | $0 | $452,380 | $452,380 |
Deed and Sales History
| 1 | 02/08/2001 | QCD | Quit Claim Deed | PEDERSEN, JANICE L | PEDERSEN, JANICE L | | | $0.00 | 10423 | 20025195 |
| 2 | 02/05/2001 | QCD | Quit Claim Deed | ROBERTSON, JAMES M | PEDERSEN, JANICE L | | | $0.00 | 10407 | 20025012 |
| 3 | 03/01/1993 | QCD | Quit Claim Deed | ROBERTSON, JAMES M | ROBERTSON, JAMES M | | | $0.00 | 31110 | 93005669 |
| 4 | 12/01/1992 | QCD | Quit Claim Deed | ROBERTSON, JAMES M | ROBERTSON, JAMES M | | | $0.00 | 24765 | 92023484 |
| 5 | 09/01/1992 | QCD | Quit Claim Deed | ROBERTSON, JAMES M | ROBERTSON, JAMES M | | | $0.00 | 23796 | 92018364 |
| 6 | 01/01/1900 | OTHER | Other - Misc. Documents | Unknown | ROBERTSON, JAMES M | | | $0.00 | 0 | 0 |
Payout Agreement
| No payout information available.. |