Property
Account |
| Property ID: | 37427 | Abbreviated Legal Description: | S/2 S/2 SE SE NW EX CO RD TGW SUB TO EZ SP78-139 TRA |
| Geographic ID: | R13326-272-2320 | Agent Code: | |
| Type: | Real | | |
| Tax Area: | 112 - APPRAISER-OH Schl Dist, outside OH, improved, greater than 1 acre | Land Use Code | 39 |
| Open Space: | N | DFL | N |
| Historic Property: | N | Remodel Property: | N |
| Multi-Family Redevelopment: | N | | |
| Township: | 33 | Section: | 26 |
| Range: | R1 |
Location |
| Address: | 632 ERIN PARK RD OAK HARBOR, WA 98277 | Mapsco: | |
| Neighborhood: | 6AcOH-goldie rd | Map ID: | 232 |
| Neighborhood CD: | 6AcOHgolde |
Owner |
| Name: | CHRISTENSEN, RONALD E. | Owner ID: | 277825 |
| Mailing Address: | SUE E CHRISTENSEN 204 E FROSTAD RD OAK HARBOR, WA 98277 | % Ownership: | 100.0000000000% |
| | | Exemptions: | |
Taxes and Assessment Details
Values
| (+) Improvement Homesite Value: | + | $0 | |
| (+) Improvement Non-Homesite Value: | + | $1,332,916 | |
| (+) Land Homesite Value: | + | $0 | |
| (+) Land Non-Homesite Value: | + | $435,600 | |
| (+) Curr Use (HS): | + | $0 | $0 |
| (+) Curr Use (NHS): | + | $0 | $0 |
| | | -------------------------- | |
| (=) Market Value: | = | $1,768,516 | |
| (–) Productivity Loss: | – | $0 | |
| | | -------------------------- | |
| (=) Subtotal: | = | $1,768,516 | |
| (+) Senior Appraised Value: | + | $0 | |
| (+) Non-Senior Appraised Value: | + | $1,768,516 | |
| | | -------------------------- | |
| (=) Total Appraised Value: | = | $1,768,516 | |
| (–) Senior Exemption Loss: | – | $0 | |
| (–) Exemption Loss: | – | $0 | |
| | | -------------------------- | |
| (=) Taxable Value: | = | $1,768,516 | |
Taxing Jurisdiction
| Owner: | CHRISTENSEN, RONALD E. | | |
| % Ownership: | 100.0000000000% | | |
| Total Value: | $1,768,516 | | |
| Tax Area: | 112 - APPRAISER-OH Schl Dist, outside OH, improved, greater than 1 acre |
| CF | Conservation Futures | 0.0320173310 | $1,768,516 | $1,768,516 | $56.62 | | |
| WCD | Whidbey Conservation District | 0.0000000000 | $1,768,516 | $1,768,516 | $0.00 | | |
| CEM1 | Cemetery #1 | 0.0040577009 | $1,768,516 | $1,768,516 | $7.18 | | |
| FIRE2 | Fire & Rescue Dist #2 N Whidbey GEN | 0.5515998868 | $1,768,516 | $1,768,516 | $975.51 | | |
| HOBOND | Hospital BOND | 0.1899917765 | $1,768,516 | $1,768,516 | $336.00 | | |
| HOGEN | Hospital GEN | 0.3914191658 | $1,768,516 | $1,768,516 | $692.23 | | |
| CDD | County Developmental Disabilities | 0.0000000000 | $1,768,516 | $1,768,516 | $0.00 | | |
| CE | County Current Expense | 0.3724427666 | $1,768,516 | $1,768,516 | $658.67 | | |
| COMH | County Mental Health | 0.0000000000 | $1,768,516 | $1,768,516 | $0.00 | | |
| CVR | County Veteran's Relief | 0.0000000000 | $1,768,516 | $1,768,516 | $0.00 | | |
| CR | County Roads | 0.4600155052 | $1,768,516 | $1,768,516 | $813.54 | | |
| ISLANDEMS | Hospital GEN (EMS) | 0.3312302018 | $1,768,516 | $1,768,516 | $585.79 | | |
| LIB | Library Sno-Isle GEN | 0.3243030872 | $1,768,516 | $1,768,516 | $573.54 | | |
| NWHIDPRMT | P & R N Whidbey GEN | 0.1372100148 | $1,768,516 | $1,768,516 | $242.66 | | |
| SCH201MO | School 201 Enrichment | 1.8130855878 | $1,768,516 | $1,768,516 | $3,206.47 | | |
| ST | State School | 1.5818082046 | $1,768,516 | $1,768,516 | $2,797.45 | | |
| ST2 | State School Part 2 | 0.7564532771 | $1,768,516 | $1,768,516 | $1,337.80 | | |
| | Total Tax Rate: | 6.9456345061 | | | | | |
| | | | | Taxes w/Current Exemptions: | $12,283.46 | | |
| | | | | Taxes w/o Exemptions: | $12,283.46 | | |
Improvement / Building
| Improvement #1: | COMMERCIAL | State Code: | F1 | 7410.0 sqft | Value: | $606,227 |
| Bathrooms: | 0 | Bedrooms: | 0 | | Ceiling: | PAINT OPEN FLOOR BAS | Exterior Wall/Cover: | STL/ALUM/SINGWL ST F | | Floor Covering: | CONCRETE SEALER | Floor Structure: | CONCRETE ON GROUND | | Foundation: | SLAB | Heating: | SPACE HEATERS | | Interior Finish: | MANUFACTURING (LIGHT) | Plumbing Fixture Cnt: | 1 | | Roof Structure/Cover: | METAL/OPEN STEEL |   |   |
|
| | Type | Description | Class CD | Sub Class CD | Year Built | Area |
| | BAS | BASE/MAIN FLOOR | 3 | 0 | 2000 | 7410.0 |
| | OP4 | OPEN PORCH W/CEILING-ROOF | 3 | 0 | 2000 | 89.0 |
| | oPV2 | PV/ASPH 3" | 3 | 0 | 2000 | 21500.0 |
| Improvement #2: | COMMERCIAL | State Code: | F1 | 5930.0 sqft | Value: | $431,655 |
| Bathrooms: | 0 | Bedrooms: | 0 | | Ceiling: | SUSPENDED | Cooling: | PACKAGE HEAT & COOL | | Exterior Wall/Cover: | STL/ALUM/SINGWL ST F | Floor Covering: | CONCRETE SEALER | | Floor Structure: | CONCRETE ON GROUND | Foundation: | SLAB | | Interior Finish: | RESEARCH/ENGINEERING | Plumbing Fixture Cnt: | 1 | | Roof Structure/Cover: | METAL/OPEN STEEL |   |   |
|
| | Type | Description | Class CD | Sub Class CD | Year Built | Area |
| | BAS | BASE/MAIN FLOOR | 3 | 0 | 2001 | 5930.0 |
| | OP4 | OPEN PORCH W/CEILING-ROOF | 3 | 0 | 2001 | 70.0 |
| | UTY | STORAGE/UTILITY | 3 | 0 | 2001 | 255.0 |
| Improvement #3: | COMMERCIAL | State Code: | F1 | 4000.0 sqft | Value: | $295,034 |
| Bathrooms: | 0 | Bedrooms: | 0 | | Ceiling: | SUSPENDED | Exterior Wall/Cover: | STL/ALUM/SINGWL ST F | | Floor Covering: | CARPET 100% | Floor Structure: | CONCRETE ON GROUND | | Foundation: | CONCRETE | Heating: | SPACE HEATERS | | Interior Finish: | CHURCH | Plumbing Fixture Cnt: | 1 | | Roof Structure/Cover: | METAL/OPEN STEEL |   |   |
|
| | Type | Description | Class CD | Sub Class CD | Year Built | Area |
| | BAS | BASE/MAIN FLOOR | 3 | 0 | 2002 | 4000.0 |
| | OP2 | OPEN PORCH W/STEPS | 3 | 0 | 2002 | 1012.0 |
Sketch
Property Image
Land
| 1 | 71 | INDUSTRIAL MANUFACTURING | 2.5000 | 108900.00 | 0.00 | 0.00 | 1.00 | $435,600 | $0 |
Roll Value History
| 2026 | N/A | N/A | N/A | N/A | N/A |
| 2025 | $1,235,359 | $490,050 | $0 | $1,725,409 | $1,725,409 |
| 2024 | $1,293,828 | $490,050 | $0 | $1,783,878 | $1,783,878 |
| 2023 | $1,332,916 | $435,600 | $0 | $1,768,516 | $1,768,516 |
| 2022 | $1,155,893 | $435,600 | $0 | $1,591,493 | $1,591,493 |
| 2021 | $1,155,303 | $435,600 | $0 | $1,590,903 | $1,590,903 |
| 2020 | $1,155,228 | $435,600 | $0 | $1,590,828 | $1,590,828 |
| 2019 | $1,145,416 | $326,700 | $0 | $1,472,116 | $1,472,116 |
| 2018 | $1,145,426 | $272,250 | $0 | $1,417,676 | $1,417,676 |
| 2017 | $1,145,446 | $163,350 | $0 | $1,308,796 | $1,308,796 |
| 2016 | $1,197,105 | $163,350 | $0 | $1,360,455 | $1,360,455 |
| 2015 | $1,197,105 | $231,957 | $0 | $1,429,062 | $1,429,062 |
| 2014 | $1,197,105 | $231,957 | $0 | $1,429,062 | $1,429,062 |
| 2013 | $1,197,105 | $231,957 | $0 | $1,429,062 | $1,429,062 |
| 2012 | $1,197,105 | $231,957 | $0 | $1,429,062 | $1,429,062 |
| 2011 | $1,197,105 | $231,957 | $0 | $1,429,062 | $1,429,062 |
| 2010 | $1,279,204 | $231,957 | $0 | $1,511,161 | $1,511,161 |
| 2009 | $1,295,029 | $253,737 | $0 | $1,548,766 | $1,548,766 |
| 2008 | $1,315,965 | $266,805 | $0 | $1,582,770 | $1,582,770 |
| 2007 | $1,335,391 | $266,805 | $0 | $1,602,196 | $1,602,196 |
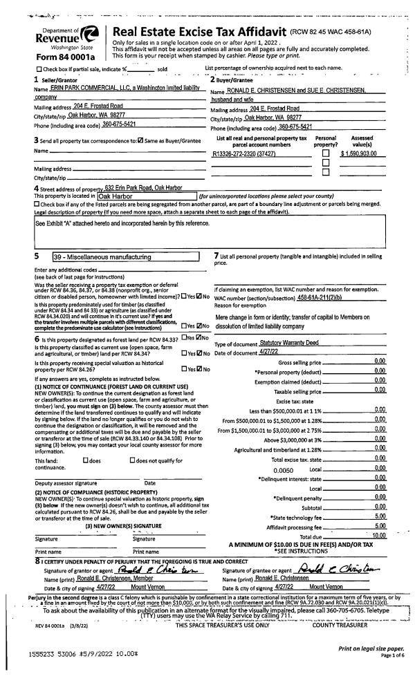
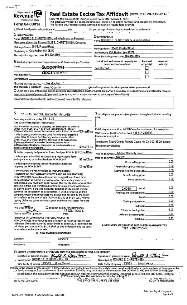
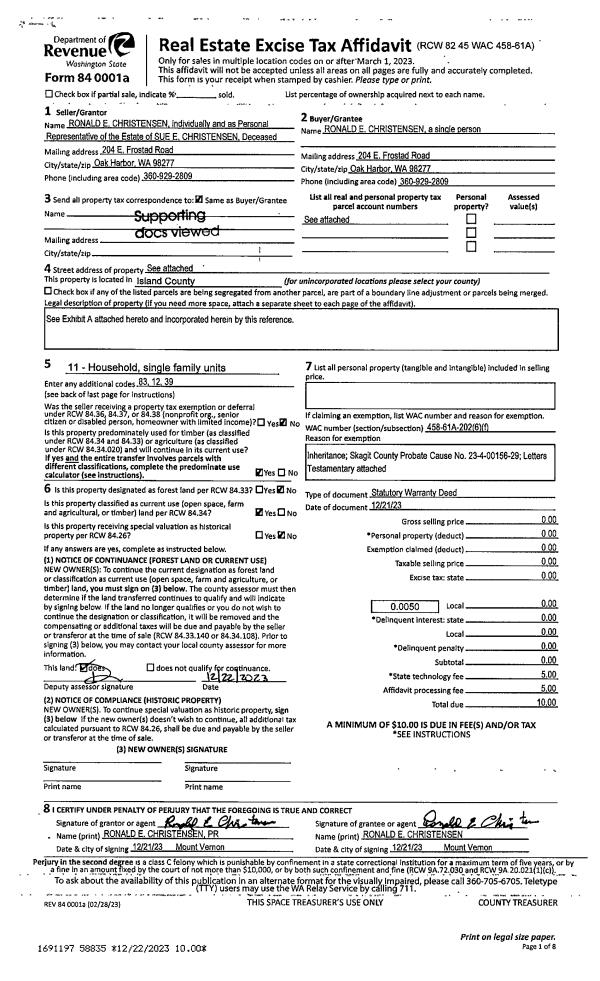
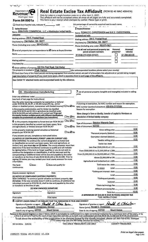
Deed and Sales History
| 1 | 12/18/2023 | WD | Warranty Deed | CHRISTENSEN, RONALD E. | CHRISTENSEN, RONALD E | | | $0.00 | 58835 | 4567919 |
| 2 | 04/27/2022 | WD | Warranty Deed | ERIN PARK COMMERICAL, LLC | CHRISTENSEN, RONALD E. | | | $0.00 | 53006 | 4544754 |
| 3 | 06/20/2016 | WD | Warranty Deed | CHRISTENSEN, RONALD | ERIN PARK COMMERICAL, LLC | | | $0.00 | 25298 | 4403462 |
| 4 | 12/24/2008 | QCD | Quit Claim Deed | ERIN COMMERCIAL DEVELOPMENT LL | CHRISTENSEN, RONALD | | | $0.00 | 83196 | 4241752 |
| 5 | 04/28/2008 | QCD | Quit Claim Deed | CHRISTENSEN, RONALD E | ERIN COMMERCIAL DEVELOPMENT LL | | | $0.00 | 81093 | 4227643 |
| 6 | 05/01/1984 | PACD | Purchaser's Assignment | WHIDBEY, ELECTRIC I | CHRISTENSEN, RONALD E | | | $28,096.00 | 41415 | 424863 |
| 7 | 02/01/1979 | REC | Real Estate Contract | WHIDBEY, ELECTRIC I | WHIDBEY, ELECTRIC I | | | $32,500.00 | 90500 | 346861 |
| 8 | 02/01/1979 | REC | Real Estate Contract | Unknown | WHIDBEY, ELECTRIC I | | | $0.00 | 41414 | 424862 |
Payout Agreement
| No payout information available.. |