Property
Account |
| Property ID: | 374384 | Abbreviated Legal Description: | SARATOGA BCH 3 LOTS 220 & 221 |
| Geographic ID: | S8090-03-00220-0 | Agent Code: | |
| Type: | Real | | |
| Tax Area: | 710 - APPRAISER-S Whid Schl Dist, outside Langley, improved & 1 acre or less | Land Use Code | 11 |
| Open Space: | N | DFL | N |
| Historic Property: | N | Remodel Property: | N |
| Multi-Family Redevelopment: | N | | |
| Township: | | Section: | |
| Range: | |
Location |
| Address: | 3512 EAST HARBOR RD LANGLEY, WA 98260 | Mapsco: | |
| Neighborhood: | Cycle 3 | Map ID: | 378 |
| Neighborhood CD: | 3 |
Owner |
| Name: | COCHRAN FAMILY RENTALS, LLC | Owner ID: | 285899 |
| Mailing Address: | 20935 COUNTY RD 3E LIMON, CO 80828 | % Ownership: | 100.0000000000% |
| | | Exemptions: | |
Taxes and Assessment Details
Values
| (+) Improvement Homesite Value: | + | $0 | |
| (+) Improvement Non-Homesite Value: | + | $52,940 | |
| (+) Land Homesite Value: | + | $0 | |
| (+) Land Non-Homesite Value: | + | $240,000 | |
| (+) Curr Use (HS): | + | $0 | $0 |
| (+) Curr Use (NHS): | + | $0 | $0 |
| | | -------------------------- | |
| (=) Market Value: | = | $292,940 | |
| (–) Productivity Loss: | – | $0 | |
| | | -------------------------- | |
| (=) Subtotal: | = | $292,940 | |
| (+) Senior Appraised Value: | + | $0 | |
| (+) Non-Senior Appraised Value: | + | $292,940 | |
| | | -------------------------- | |
| (=) Total Appraised Value: | = | $292,940 | |
| (–) Senior Exemption Loss: | – | $0 | |
| (–) Exemption Loss: | – | $0 | |
| | | -------------------------- | |
| (=) Taxable Value: | = | $292,940 | |
Taxing Jurisdiction
| Owner: | COCHRAN FAMILY RENTALS, LLC | | |
| % Ownership: | 100.0000000000% | | |
| Total Value: | $292,940 | | |
| Tax Area: | 710 - APPRAISER-S Whid Schl Dist, outside Langley, improved & 1 acre or less |
| CF | Conservation Futures | 0.0313996660 | $292,940 | $292,940 | $9.20 | | |
| FIRE3 | Fire & Rescue Dist #3 S Whidbey GEN | 1.2130821753 | $292,940 | $292,940 | $355.36 | | |
| HOBOND | Hospital BOND | 0.1893405597 | $292,940 | $292,940 | $55.47 | | |
| HOGEN | Hospital GEN | 0.3848777722 | $292,940 | $292,940 | $112.75 | | |
| CE | County Current Expense | 0.3674210519 | $292,940 | $292,940 | $107.63 | | |
| CR | County Roads | 0.4614296361 | $292,940 | $292,940 | $135.17 | | |
| ISLANDEMS | Hospital GEN (EMS) | 0.4952018576 | $292,940 | $292,940 | $145.06 | | |
| LIB | Library Sno-Isle GEN | 0.3039084203 | $292,940 | $292,940 | $89.03 | | |
| PORTWHID | Port of S Whidbey GEN | 0.1086004714 | $292,940 | $292,940 | $31.81 | | |
| SCH206BOND | School 206 BOND | 0.5960237832 | $292,940 | $292,940 | $174.60 | | |
| SCH206CAP | School 206 CP | 0.3066144020 | $292,940 | $292,940 | $89.82 | | |
| SCH206MO | School 206 Enrichment | 0.4808755445 | $292,940 | $292,940 | $140.87 | | |
| ST | State School | 1.4761226122 | $292,940 | $292,940 | $432.42 | | |
| ST2 | State School Part 2 | 0.7953803475 | $292,940 | $292,940 | $233.00 | | |
| SWHIDPRBD | P & R S Whidbey BOND | 0.0144185398 | $292,940 | $292,940 | $4.22 | | |
| SWHIDPRBD3 | P & R S Whidbey BOND3 | 0.1483535547 | $292,940 | $292,940 | $43.46 | | |
| SWHIDPRMT | P & R S Whidbey GEN | 0.4600000000 | $292,940 | $292,940 | $134.75 | | |
| | Total Tax Rate: | 7.8330503944 | | | | | |
| | | | | Taxes w/Current Exemptions: | $2,294.62 | | |
| | | | | Taxes w/o Exemptions: | $2,294.62 | | |
Improvement / Building
| Improvement #1: | MANUFACTURED HOME | State Code: | Y | 1120.0 sqft | Value: | $26,074 |
| Bathrooms: | 0 | Bedrooms: | 0 | | Ceiling: | PLASTER PAINTED | Cooling: | EVAP NO DUCT | | Exterior Wall/Cover: | VINYL | Floor Covering: | CARPET 100% | | Floor Structure: | SLAB ON GRADE | Foundation: | SLAB | | Heating: | FHA ELECTRIC | Interior Finish: | PLASTER | | Plumbing Fixture Cnt: | 1 | Roof Slope: | FLAT | | Roof Structure/Cover: | CJ ALUMINIUM HEAVY |   |   |
|
| | Type | Description | Class CD | Sub Class CD | Year Built | Area |
| | BAS | BASE/MAIN FLOOR | 4 | 0 | 1969 | 1120.0 |
| | ENP | ENCLOSED PORCH | 4 | 0 | 1969 | 432.0 |
| Improvement #2: | RESIDENTIAL | State Code: | Y | 544.0 sqft | Value: | $26,866 |
| Bathrooms: | 0 | Bedrooms: | 0 | | Ceiling: | (NONE) | Exterior Wall/Cover: | PLY/HARDBOARD T-111 | | Floor Covering: | (NONE) | Floor Structure: | WOOD W/SUBFLOOR | | Foundation: | CONCRETE | Interior Finish: | (NONE) | | Plumbing Fixture Cnt: | 1 | Roof Slope: | 3" IN 12" | | Roof Structure/Cover: | CJ ASPHALT |   |   |
|
| | Type | Description | Class CD | Sub Class CD | Year Built | Area |
| | BAS | BASE/MAIN FLOOR | 2 | 0 | 1970 | 544.0 |
| | AGR | ATTACHED GARAGE | 2 | 0 | 1970 | 240.0 |
| | CPD | OPEN CARPORT DIRT FLOOR | 2 | 0 | 1970 | 240.0 |
Sketch
Property Image
Land
| 1 | 15 | SQ (12001-21780) | 0.0000 | 0.00 | 0.00 | 0.00 | 1.00 | $240,000 | $0 |
Roll Value History
| 2026 | N/A | N/A | N/A | N/A | N/A |
| 2025 | $52,940 | $240,000 | $0 | $292,940 | $292,940 |
| 2024 | $55,768 | $260,000 | $0 | $315,768 | $315,768 |
| 2023 | $53,966 | $280,000 | $0 | $333,966 | $333,966 |
| 2022 | $50,578 | $210,000 | $0 | $260,578 | $260,578 |
| 2021 | $45,462 | $150,000 | $0 | $195,462 | $195,462 |
| 2020 | $45,483 | $130,000 | $0 | $175,483 | $175,483 |
| 2019 | $35,705 | $160,000 | $0 | $195,705 | $195,705 |
| 2018 | $47,535 | $120,000 | $0 | $167,535 | $167,535 |
| 2017 | $48,604 | $120,000 | $0 | $168,604 | $168,604 |
| 2016 | $49,933 | $90,000 | $0 | $139,933 | $139,933 |
| 2015 | $51,264 | $65,000 | $0 | $116,264 | $116,264 |
| 2014 | $52,997 | $65,000 | $0 | $117,997 | $117,997 |
| 2013 | $71,940 | $65,000 | $0 | $136,940 | $136,940 |
| 2012 | $73,154 | $68,850 | $0 | $142,004 | $142,004 |
| 2011 | $74,369 | $81,000 | $0 | $155,369 | $155,369 |
| 2010 | $108,893 | $90,000 | $0 | $198,893 | $198,893 |
| 2009 | $114,945 | $120,000 | $0 | $234,945 | $234,945 |
| 2008 | $116,693 | $120,000 | $0 | $236,693 | $236,693 |
| 2007 | $96,324 | $120,000 | $0 | $216,324 | $216,324 |
Deed and Sales History
| 1 | 06/29/2018 | WD | Warranty Deed | BERTO, WARREN STEVEN | COCHRAN FAMILY RENTALS, LLC | | | $105,000.00 | 34878 | 4447545 |
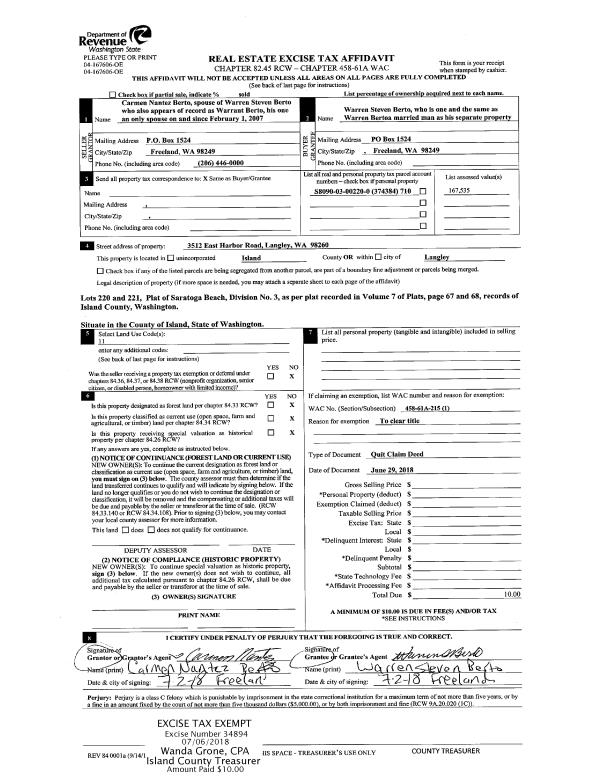
| 2 | 06/29/2018 | QCD | Quit Claim Deed | BERTO, WARREN STEVEN | BERTO, WARREN STEVEN | | | $0.00 | 34894 | 4447544 |
| 3 | 12/09/2015 | PRD | Personal Representatives Deed | BERTO, PEGGY | BERTO, WARREN STEVEN | | | $0.00 | 27030 | 4411949 |
| 4 | 02/15/2008 | QCD | Quit Claim Deed | BERTO, WARREN | BERTO, PEGGY | | | $185,000.00 | 82010 | 4234046 |
| 5 | 02/15/2007 | WD | Warranty Deed | BERTO, PEGGY | BERTO, WARREN | | | $185,000.00 | 70897 | 4196809 |
| 6 | 01/26/2005 | QCD | Quit Claim Deed | BELTZ, DANIEL | BERTO, PEGGY | | | $0.00 | 50442 | 4124746 |
| 7 | 03/01/2004 | WD | Warranty Deed | BERTO, PEGGY R | BELTZ, DANIEL | | | $150,000.00 | 40802 | 4092892 |
| 8 | 08/21/2003 | WD | Warranty Deed | KINDELSPIRE, MICHAEL L | BERTO, PEGGY R | | | $114,500.00 | 33730 | 4072376 |
| 9 | 05/01/1994 | OTHER | Other - Misc. Documents | KINDELSPIRE, MICHAEL L | KINDELSPIRE, MICHAEL L | | | $0.00 | 42095 | 0 |
| 10 | 02/01/1994 | QCD | Quit Claim Deed | BAKER, NORMAN E | KINDELSPIRE, MICHAEL L | | | $0.00 | 42393 | 94013430 |
| 11 | 04/01/1991 | OTHER | Other - Misc. Documents | BAKER, NORMAN E | BAKER, NORMAN E | | | $0.00 | 11286 | 0 |
| 12 | 07/01/1986 | PRD | Personal Representatives Deed | PROCTOR, HAROLD V | BAKER, NORMAN E | | | $0.00 | 61827 | 86008615 |
| 13 | 01/01/1900 | OTHER | Other - Misc. Documents | PROCTOR, HAROLD V | PROCTOR, HAROLD V | | | $0.00 | 0 | 0 |
Payout Agreement
| No payout information available.. |