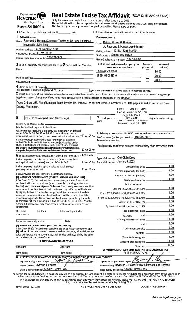
Property
Account |
| Property ID: | 375034 | Abbreviated Legal Description: | Saratoga Beach - 3,s Lot 286 & 287,s Blk 00;s Lot Comb 327/23 AF 4569511s |
| Geographic ID: | S8090-03-00287-0 | Agent Code: | |
| Type: | Real | | |
| Tax Area: | 710 - APPRAISER-S Whid Schl Dist, outside Langley, improved & 1 acre or less | Land Use Code | 11 |
| Open Space: | N | DFL | N |
| Historic Property: | N | Remodel Property: | N |
| Multi-Family Redevelopment: | N | | |
| Township: | | Section: | |
| Range: | |
Location |
| Address: | 3439 E HARBOR RD LANGLEY, WA 98260 | Mapsco: | |
| Neighborhood: | Cycle 3 | Map ID: | 378 |
| Neighborhood CD: | 3 |
Owner |
| Name: | WHEELER, JAMES D | Owner ID: | 308031 |
| Mailing Address: | MIRANDA B WHEELER 3919 SOUTHVIEW DR SAN DIEGO, CA 92117 | % Ownership: | 100.0000000000% |
| | | Exemptions: | |
Taxes and Assessment Details
Values
| (+) Improvement Homesite Value: | + | $0 | |
| (+) Improvement Non-Homesite Value: | + | $16,406 | |
| (+) Land Homesite Value: | + | $0 | |
| (+) Land Non-Homesite Value: | + | $130,500 | |
| (+) Curr Use (HS): | + | $0 | $0 |
| (+) Curr Use (NHS): | + | $0 | $0 |
| | | -------------------------- | |
| (=) Market Value: | = | $146,906 | |
| (–) Productivity Loss: | – | $0 | |
| | | -------------------------- | |
| (=) Subtotal: | = | $146,906 | |
| (+) Senior Appraised Value: | + | $0 | |
| (+) Non-Senior Appraised Value: | + | $146,906 | |
| | | -------------------------- | |
| (=) Total Appraised Value: | = | $146,906 | |
| (–) Senior Exemption Loss: | – | $0 | |
| (–) Exemption Loss: | – | $0 | |
| | | -------------------------- | |
| (=) Taxable Value: | = | $146,906 | |
Taxing Jurisdiction
| Owner: | WHEELER, JAMES D | | |
| % Ownership: | 100.0000000000% | | |
| Total Value: | $146,906 | | |
| Tax Area: | 710 - APPRAISER-S Whid Schl Dist, outside Langley, improved & 1 acre or less |
| CF | Conservation Futures | 0.0313996660 | $146,906 | $146,906 | $4.61 | | |
| FIRE3 | Fire & Rescue Dist #3 S Whidbey GEN | 1.2130821753 | $146,906 | $146,906 | $178.21 | | |
| HOBOND | Hospital BOND | 0.1893405597 | $146,906 | $146,906 | $27.82 | | |
| HOGEN | Hospital GEN | 0.3848777722 | $146,906 | $146,906 | $56.54 | | |
| CE | County Current Expense | 0.3674210519 | $146,906 | $146,906 | $53.98 | | |
| CR | County Roads | 0.4614296361 | $146,906 | $146,906 | $67.79 | | |
| ISLANDEMS | Hospital GEN (EMS) | 0.4952018576 | $146,906 | $146,906 | $72.75 | | |
| LIB | Library Sno-Isle GEN | 0.3039084203 | $146,906 | $146,906 | $44.65 | | |
| PORTWHID | Port of S Whidbey GEN | 0.1086004714 | $146,906 | $146,906 | $15.95 | | |
| SCH206BOND | School 206 BOND | 0.5960237832 | $146,906 | $146,906 | $87.56 | | |
| SCH206CAP | School 206 CP | 0.3066144020 | $146,906 | $146,906 | $45.04 | | |
| SCH206MO | School 206 Enrichment | 0.4808755445 | $146,906 | $146,906 | $70.64 | | |
| ST | State School | 1.4761226122 | $146,906 | $146,906 | $216.85 | | |
| ST2 | State School Part 2 | 0.7953803475 | $146,906 | $146,906 | $116.85 | | |
| SWHIDPRBD | P & R S Whidbey BOND | 0.0144185398 | $146,906 | $146,906 | $2.12 | | |
| SWHIDPRBD3 | P & R S Whidbey BOND3 | 0.1483535547 | $146,906 | $146,906 | $21.79 | | |
| SWHIDPRMT | P & R S Whidbey GEN | 0.4600000000 | $146,906 | $146,906 | $67.58 | | |
| | Total Tax Rate: | 7.8330503944 | | | | | |
| | | | | Taxes w/Current Exemptions: | $1,150.73 | | |
| | | | | Taxes w/o Exemptions: | $1,150.73 | | |
Improvement / Building
| Improvement #1: | RESIDENTIAL | State Code: | Y | 2160.0 sqft | Value: | $16,406 |
| Bathrooms: | 1 | Bedrooms: | 2 | | Ceiling: | (NONE) | Exterior Wall/Cover: | (NONE) | | Floor Covering: | (NONE) | Floor Structure: | WOOD W/SUBFLOOR | | Foundation: | SLAB | Heating: | (NONE) | | Interior Finish: | (NONE) | Plumbing Fixture Cnt: | 9 | | Roof Slope: | (NONE) | Roof Structure/Cover: | (NONE) |
|
| | Type | Description | Class CD | Sub Class CD | Year Built | Area |
| | BAS | BASE/MAIN FLOOR | 3 | 0 | 2025 | 816.0 |
| | UPS | UPPER STORY | 3 | 0 | 2025 | 672.0 |
| | DWN | DOWNSTAIRS LIVING AREA | 3 | 0 | 2025 | 672.0 |
| | OP4 | OPEN PORCH W/CEILING-ROOF | 3 | 0 | 2025 | 84.0 |
| | OWR | OPEN WOOD PORCH W/STEPS/ROOF | 3 | 0 | 2025 | 77.0 |
Sketch
| No sketches available for this property. |
Property Image
Land
| 1 | 14 | SQ (08001-12000) | 0.0000 | 0.00 | 0.00 | 0.00 | 1.00 | $18,000 | $0 |
| 2 | 14 | SQ (08001-12000) | 0.0000 | 0.00 | 0.00 | 0.00 | 1.00 | $112,500 | $0 |
Roll Value History
| 2026 | N/A | N/A | N/A | N/A | N/A |
| 2025 | $16,406 | $130,500 | $0 | $146,906 | $146,906 |
| 2024 | $4,000 | $82,000 | $0 | $86,000 | $86,000 |
| 2023 | $4,000 | $70,000 | $0 | $74,000 | $74,000 |
| 2022 | $4,000 | $70,000 | $0 | $74,000 | $74,000 |
| 2021 | $4,000 | $60,000 | $0 | $64,000 | $64,000 |
| 2020 | $4,000 | $60,000 | $0 | $64,000 | $64,000 |
| 2019 | $4,000 | $60,000 | $0 | $64,000 | $64,000 |
| 2018 | $4,000 | $60,000 | $0 | $64,000 | $64,000 |
| 2017 | $4,000 | $60,000 | $0 | $64,000 | $64,000 |
| 2016 | $4,000 | $45,000 | $0 | $49,000 | $49,000 |
| 2015 | $4,000 | $45,000 | $0 | $49,000 | $49,000 |
| 2014 | $4,000 | $45,000 | $0 | $49,000 | $49,000 |
| 2013 | $4,000 | $45,000 | $0 | $49,000 | $49,000 |
| 2012 | $4,000 | $34,425 | $0 | $38,425 | $38,425 |
| 2011 | $4,000 | $40,500 | $0 | $44,500 | $44,500 |
| 2010 | $4,000 | $45,000 | $0 | $49,000 | $49,000 |
| 2009 | $4,000 | $40,000 | $0 | $44,000 | $44,000 |
| 2008 | $4,000 | $40,000 | $0 | $44,000 | $44,000 |
| 2007 | $4,000 | $40,000 | $0 | $44,000 | $44,000 |
Deed and Sales History
| 1 | 03/14/2023 | WD | Warranty Deed | HOUSER, RAYMOND J | WHEELER, JAMES D | | | $115,000.00 | 56144 | 4557874 |
| 2 | 01/09/2023 | QCD | Quit Claim Deed | HOUSER TTEE, RAYMOND | ESTATE OF LAURA R ENSTONE | | | $0.00 | 55628 | 4555775 |
| 3 | 07/20/2002 | QCD | Quit Claim Deed | ENSTONE, LAURA | HOUSER, RAYMOND J | | | $0.00 | 35132 | 4448587 |
| 4 | 10/30/1998 | QCD | Quit Claim Deed | ENSTONE, RENA I | ENSTONE, LAURA | | | $0.00 | 84765 | 98026134 |
| 5 | 06/01/1988 | OTHER | Other - Misc. Documents | ENSTONE, HARRY | ENSTONE, RENA I | | | $0.00 | 62681 | 0 |
| 6 | 11/01/1981 | CD | DNU - Correction Deed | ROOKS, GREG | ENSTONE, HARRY | | | $7,500.00 | 13598 | 0 |
| 7 | 03/01/1980 | EXECUTORD | Executor Deed | ENSTONE, HARRY | ROOKS, GREG | | | $15,000.00 | 1023 | 0 |
| 8 | 01/01/1900 | OTHER | Other - Misc. Documents | Unknown | ENSTONE, HARRY | | | $0.00 | 0 | 0 |
Payout Agreement
| No payout information available.. |