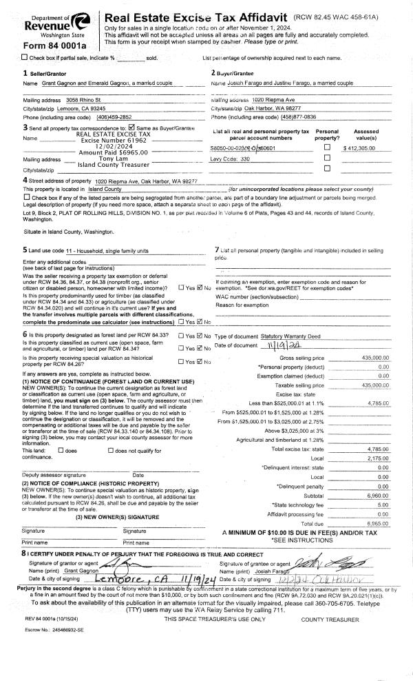
Property
Account |
| Property ID: | 375070 | Abbreviated Legal Description: | SARATOGA BCH 4 LOT 290 |
| Geographic ID: | S8090-04-00290-0 | Agent Code: | |
| Type: | Real | | |
| Tax Area: | 710 - APPRAISER-S Whid Schl Dist, outside Langley, improved & 1 acre or less | Land Use Code | 11 |
| Open Space: | N | DFL | N |
| Historic Property: | N | Remodel Property: | N |
| Multi-Family Redevelopment: | N | | |
| Township: | | Section: | |
| Range: | |
Location |
| Address: | 3448 HOLMES VIEW DR LANGLEY, WA 98260 | Mapsco: | |
| Neighborhood: | Cycle 3 | Map ID: | 378 |
| Neighborhood CD: | 3 |
Owner |
| Name: | HARPER-PECK, SHARON E | Owner ID: | 315182 |
| Mailing Address: | 3448 HOLMES VIEW DR LANGLEY, WA 98260 | % Ownership: | 100.0000000000% |
| | | Exemptions: | |
Taxes and Assessment Details
Values
| (+) Improvement Homesite Value: | + | $0 | |
| (+) Improvement Non-Homesite Value: | + | $212,473 | |
| (+) Land Homesite Value: | + | $0 | |
| (+) Land Non-Homesite Value: | + | $240,000 | |
| (+) Curr Use (HS): | + | $0 | $0 |
| (+) Curr Use (NHS): | + | $0 | $0 |
| | | -------------------------- | |
| (=) Market Value: | = | $452,473 | |
| (–) Productivity Loss: | – | $0 | |
| | | -------------------------- | |
| (=) Subtotal: | = | $452,473 | |
| (+) Senior Appraised Value: | + | $0 | |
| (+) Non-Senior Appraised Value: | + | $452,473 | |
| | | -------------------------- | |
| (=) Total Appraised Value: | = | $452,473 | |
| (–) Senior Exemption Loss: | – | $0 | |
| (–) Exemption Loss: | – | $0 | |
| | | -------------------------- | |
| (=) Taxable Value: | = | $452,473 | |
Taxing Jurisdiction
| Owner: | HARPER-PECK, SHARON E | | |
| % Ownership: | 100.0000000000% | | |
| Total Value: | $452,473 | | |
| Tax Area: | 710 - APPRAISER-S Whid Schl Dist, outside Langley, improved & 1 acre or less |
| CF | Conservation Futures | 0.0313996660 | $452,473 | $452,473 | $14.21 | | |
| FIRE3 | Fire & Rescue Dist #3 S Whidbey GEN | 1.2130821753 | $452,473 | $452,473 | $548.89 | | |
| HOBOND | Hospital BOND | 0.1893405597 | $452,473 | $452,473 | $85.67 | | |
| HOGEN | Hospital GEN | 0.3848777722 | $452,473 | $452,473 | $174.15 | | |
| CE | County Current Expense | 0.3674210519 | $452,473 | $452,473 | $166.25 | | |
| CR | County Roads | 0.4614296361 | $452,473 | $452,473 | $208.78 | | |
| ISLANDEMS | Hospital GEN (EMS) | 0.4952018576 | $452,473 | $452,473 | $224.07 | | |
| LIB | Library Sno-Isle GEN | 0.3039084203 | $452,473 | $452,473 | $137.51 | | |
| PORTWHID | Port of S Whidbey GEN | 0.1086004714 | $452,473 | $452,473 | $49.14 | | |
| SCH206BOND | School 206 BOND | 0.5960237832 | $452,473 | $452,473 | $269.68 | | |
| SCH206CAP | School 206 CP | 0.3066144020 | $452,473 | $452,473 | $138.73 | | |
| SCH206MO | School 206 Enrichment | 0.4808755445 | $452,473 | $452,473 | $217.58 | | |
| ST | State School | 1.4761226122 | $452,473 | $452,473 | $667.91 | | |
| ST2 | State School Part 2 | 0.7953803475 | $452,473 | $452,473 | $359.89 | | |
| SWHIDPRBD | P & R S Whidbey BOND | 0.0144185398 | $452,473 | $452,473 | $6.52 | | |
| SWHIDPRBD3 | P & R S Whidbey BOND3 | 0.1483535547 | $452,473 | $452,473 | $67.13 | | |
| SWHIDPRMT | P & R S Whidbey GEN | 0.4600000000 | $452,473 | $452,473 | $208.14 | | |
| | Total Tax Rate: | 7.8330503944 | | | | | |
| | | | | Taxes w/Current Exemptions: | $3,544.25 | | |
| | | | | Taxes w/o Exemptions: | $3,544.25 | | |
Improvement / Building
| Improvement #1: | RESIDENTIAL | State Code: | Y | 1458.0 sqft | Value: | $212,473 |
| Bathrooms: | 2 | Bedrooms: | 3 | | Ceiling: | DRYWALL PAINTED | Cooling: | HEAT PUMP/CONV/V | | Exterior Wall/Cover: | CEMENT FIBER | Floor Covering: | CARPET/VINYL 80-20 | | Floor Structure: | WOOD W/SUBFLOOR | Foundation: | CONCRETE | | Interior Finish: | DRYWALL PAINT | Plumbing Fixture Cnt: | 9 | | Roof Slope: | 4" IN 12" | Roof Structure/Cover: | CJ ASPHALT |
|
| | Type | Description | Class CD | Sub Class CD | Year Built | Area |
| | BAS | BASE/MAIN FLOOR | 3 | 0 | 1992 | 1458.0 |
| | OWP | OPEN WOOD PORCH W/STEPS | 3 | 0 | 1992 | 448.0 |
| | OWP | OPEN WOOD PORCH W/STEPS | 3 | 0 | 1992 | 32.0 |
| | OWP | OPEN WOOD PORCH W/STEPS | 3 | 0 | 1992 | 404.0 |
Sketch
Property Image
Land
| 1 | 15 | SQ (12001-21780) | 0.0000 | 0.00 | 0.00 | 0.00 | 1.00 | $240,000 | $0 |
Roll Value History
| 2026 | N/A | N/A | N/A | N/A | N/A |
| 2025 | $212,473 | $240,000 | $0 | $452,473 | $452,473 |
| 2024 | $215,633 | $260,000 | $0 | $475,633 | $475,633 |
| 2023 | $216,094 | $280,000 | $0 | $496,094 | $496,094 |
| 2022 | $198,504 | $210,000 | $0 | $408,504 | $408,504 |
| 2021 | $175,062 | $150,000 | $0 | $325,062 | $325,062 |
| 2020 | $170,850 | $130,000 | $0 | $300,850 | $300,850 |
| 2019 | $124,022 | $160,000 | $0 | $284,022 | $284,022 |
| 2018 | $124,445 | $120,000 | $0 | $244,445 | $244,445 |
| 2017 | $125,292 | $120,000 | $0 | $245,292 | $245,292 |
| 2016 | $126,985 | $90,000 | $0 | $216,985 | $216,985 |
| 2015 | $128,677 | $65,000 | $0 | $193,677 | $193,677 |
| 2014 | $130,370 | $65,000 | $0 | $195,370 | $195,370 |
| 2013 | $134,865 | $65,000 | $0 | $199,865 | $199,865 |
| 2012 | $136,559 | $68,850 | $0 | $205,409 | $205,409 |
| 2011 | $138,251 | $81,000 | $0 | $219,251 | $219,251 |
| 2010 | $144,409 | $90,000 | $0 | $234,409 | $234,409 |
| 2009 | $150,816 | $120,000 | $0 | $270,816 | $270,816 |
| 2008 | $152,895 | $120,000 | $0 | $272,895 | $272,895 |
| 2007 | $155,035 | $120,000 | $0 | $275,035 | $275,035 |
Deed and Sales History
| 1 | 01/23/2025 | LACPROBATE | Lack of Probate | HARPER-PECK, RICKY J | HARPER-PECK, SHARON E | | | $0.00 | 62505 | 4581992 |
| 2 | 02/06/2024 | CPADC | Comm Prop Agmnt & Death Cert | HARPER-PECK, RICKY J | HARPER-PECK, SHARON E | | | $0.00 | 62354 | 4579198 |
| 3 | 05/17/2010 | ESTSEPPROP | Establish Separate Property | HARPER-PECK, RICKY J | HARPER-PECK, RICKY J | | | $0.00 | 1185 | 4273938 |
| 4 | 05/17/2010 | WD | Warranty Deed | SMITH II, W R F | HARPER-PECK, RICKY J | | | $199,000.00 | 1184 | 4273937 |
| 5 | 09/20/2007 | TRUSTEED | Trustee's Deed | US BANK NATIONAL ASSOC, | SMITH II, W R F | | | $205,000.00 | 73222 | 4212789 |
| 6 | 04/19/2007 | TRUSTEED | Trustee's Deed | COWLES, JENNIFER D | US BANK NATIONAL ASSOC, | | | $204,521.00 | 71593 | 4202066 |
| 7 | 03/19/2004 | WD | Warranty Deed | CARTER, RONALD C | COWLES, JENNIFER D | | | $150,000.00 | 41195 | 4095560 |
| 8 | 08/12/2003 | DECREE | Divorce Decree/Legal Separation | CARTER, RONALD C | CARTER, RONALD C | | | $0.00 | 33646 | 4071889 |
| 9 | 02/01/1990 | WD | Warranty Deed | FORT, WARD E | CARTER, RONALD C | | | $9,950.00 | 1332 | 90004247 |
| 10 | 01/01/1900 | OTHER | Other - Misc. Documents | Unknown | FORT, WARD E | | | $0.00 | 0 | 0 |
Payout Agreement
| No payout information available.. |