Property
Account |
| Property ID: | 37819 | Abbreviated Legal Description: | 59 - SW SW:BG NE CR SW SW S1*W868' N88*W30' TPB N88* W363' N1*E208' S88*E363' S1 *W208' TPB TGW & SUB EZ AF#91018483 |
| Geographic ID: | R13327-056-1130 | Agent Code: | |
| Type: | Real | | |
| Tax Area: | 112 - APPRAISER-OH Schl Dist, outside OH, improved, greater than 1 acre | Land Use Code | 11 |
| Open Space: | N | DFL | N |
| Historic Property: | N | Remodel Property: | N |
| Multi-Family Redevelopment: | N | | |
| Township: | 33 | Section: | 27 |
| Range: | R1 |
Location |
| Address: | 2843 HELLER RD OAK HARBOR, WA 98277 | Mapsco: | |
| Neighborhood: | Cycle 6 | Map ID: | 234 |
| Neighborhood CD: | 6 |
Owner |
| Name: | KRAFT TTEE, DELORES E | Owner ID: | 312810 |
| Mailing Address: | 2843 HELLER RD OAK HARBOR, WA 98277 | % Ownership: | 100.0000000000% |
| | | Exemptions: | |
Taxes and Assessment Details
Values
| (+) Improvement Homesite Value: | + | $0 | |
| (+) Improvement Non-Homesite Value: | + | $313,315 | |
| (+) Land Homesite Value: | + | $0 | |
| (+) Land Non-Homesite Value: | + | $210,000 | |
| (+) Curr Use (HS): | + | $0 | $0 |
| (+) Curr Use (NHS): | + | $0 | $0 |
| | | -------------------------- | |
| (=) Market Value: | = | $523,315 | |
| (–) Productivity Loss: | – | $0 | |
| | | -------------------------- | |
| (=) Subtotal: | = | $523,315 | |
| (+) Senior Appraised Value: | + | $0 | |
| (+) Non-Senior Appraised Value: | + | $523,315 | |
| | | -------------------------- | |
| (=) Total Appraised Value: | = | $523,315 | |
| (–) Senior Exemption Loss: | – | $0 | |
| (–) Exemption Loss: | – | $0 | |
| | | -------------------------- | |
| (=) Taxable Value: | = | $523,315 | |
Taxing Jurisdiction
| Owner: | KRAFT TTEE, DELORES E | | |
| % Ownership: | 100.0000000000% | | |
| Total Value: | $523,315 | | |
| Tax Area: | 112 - APPRAISER-OH Schl Dist, outside OH, improved, greater than 1 acre |
| CF | Conservation Futures | 0.0313996660 | $523,315 | $523,315 | $16.43 | | |
| CEM1 | Cemetery #1 | 0.0040018856 | $523,315 | $523,315 | $2.09 | | |
| FIRE2 | Fire & Rescue Dist #2 N Whidbey GEN | 0.5381486274 | $523,315 | $523,315 | $281.62 | | |
| HOBOND | Hospital BOND | 0.1893405597 | $523,315 | $523,315 | $99.08 | | |
| HOGEN | Hospital GEN | 0.3848777722 | $523,315 | $523,315 | $201.41 | | |
| CE | County Current Expense | 0.3674210519 | $523,315 | $523,315 | $192.28 | | |
| CR | County Roads | 0.4614296361 | $523,315 | $523,315 | $241.47 | | |
| ISLANDEMS | Hospital GEN (EMS) | 0.4952018576 | $523,315 | $523,315 | $259.15 | | |
| LIB | Library Sno-Isle GEN | 0.3039084203 | $523,315 | $523,315 | $159.04 | | |
| NWHIDPRMT | P & R N Whidbey GEN | 0.1990272349 | $523,315 | $523,315 | $104.15 | | |
| SCH201MO | School 201 Enrichment | 2.3851112745 | $523,315 | $523,315 | $1,248.16 | | |
| ST | State School | 1.4761226122 | $523,315 | $523,315 | $772.48 | | |
| ST2 | State School Part 2 | 0.7953803475 | $523,315 | $523,315 | $416.23 | | |
| | Total Tax Rate: | 7.6313709459 | | | | | |
| | | | | Taxes w/Current Exemptions: | $3,993.59 | | |
| | | | | Taxes w/o Exemptions: | $3,993.59 | | |
Improvement / Building
| Improvement #1: | RESIDENTIAL | State Code: | Y | 2544.0 sqft | Value: | $302,115 |
| Bathrooms: | 2.5 | Bedrooms: | 3 | | Ceiling: | DRY WALL SPRAYED | Exterior Wall/Cover: | CEMENT FIBER | | Floor Covering: | CARPET/VINYL 80-20 | Floor Structure: | WOOD W/SUBFLOOR | | Foundation: | CONCRETE | Heating: | FHA GAS | | Interior Finish: | DRYWALL PAINT | Plumbing Fixture Cnt: | 11 | | Roof Slope: | 4" IN 12" | Roof Structure/Cover: | CJ ASPHALT |
|
| | Type | Description | Class CD | Sub Class CD | Year Built | Area |
| | BAS | BASE/MAIN FLOOR | 3 | 0 | 1972 | 1296.0 |
| | AGR | ATTACHED GARAGE | 3 | 0 | 1972 | 528.0 |
| | OWP | OPEN WOOD PORCH W/STEPS | 3 | 0 | 1972 | 220.0 |
| | OWP | OPEN WOOD PORCH W/STEPS | 3 | 0 | 1972 | 42.0 |
| | DWN | DOWNSTAIRS LIVING AREA | 3 | 0 | 1972 | 1248.0 |
| | OWP | OPEN WOOD PORCH W/STEPS | 3 | 0 | 1972 | 165.0 |
| Improvement #2: | RESIDENTIAL | State Code: | Y | 0.0 sqft | Value: | $11,200 |
Sketch
Property Image
Land
| 1 | 17 | AC (01.01-02.00) | 1.6000 | 69696.00 | 0.00 | 0.00 | 1.00 | $210,000 | $0 |
Roll Value History
| 2026 | N/A | N/A | N/A | N/A | N/A |
| 2025 | $313,315 | $210,000 | $0 | $523,315 | $523,315 |
| 2024 | $306,130 | $210,000 | $0 | $516,130 | $516,130 |
| 2023 | $310,145 | $210,000 | $0 | $520,145 | $520,145 |
| 2022 | $253,982 | $200,000 | $0 | $453,982 | $453,982 |
| 2021 | $224,006 | $140,000 | $0 | $364,006 | $364,006 |
| 2020 | $219,121 | $130,000 | $0 | $349,121 | $349,121 |
| 2019 | $171,162 | $165,000 | $0 | $336,162 | $336,162 |
| 2018 | $171,748 | $150,000 | $0 | $321,748 | $321,748 |
| 2017 | $172,915 | $120,000 | $0 | $292,915 | $292,915 |
| 2016 | $148,457 | $100,000 | $0 | $248,457 | $248,457 |
| 2015 | $150,739 | $100,000 | $0 | $250,739 | $250,739 |
| 2014 | $153,024 | $90,000 | $0 | $243,024 | $243,024 |
| 2013 | $155,307 | $90,000 | $0 | $245,307 | $245,307 |
| 2012 | $157,591 | $80,750 | $0 | $238,341 | $238,341 |
| 2011 | $159,876 | $95,000 | $0 | $254,876 | $254,876 |
| 2010 | $166,171 | $95,000 | $0 | $261,171 | $261,171 |
| 2009 | $173,404 | $105,000 | $0 | $278,404 | $278,404 |
| 2008 | $182,548 | $60,500 | $0 | $243,048 | $243,048 |
| 2007 | $184,876 | $60,500 | $0 | $245,376 | $245,376 |
Deed and Sales History
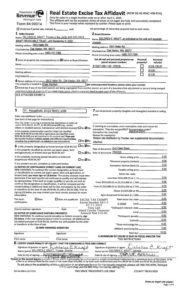
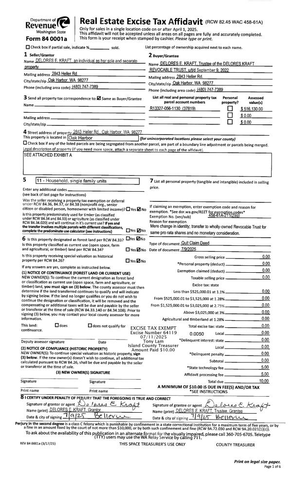
| 1 | 07/09/2025 | QCD | Quit Claim Deed | KRAFT, DELORES E | KRAFT TTEE, DELORES E | | | $0.00 | 64119 | 4588101 |
| 2 | 07/09/2025 | QCD | Quit Claim Deed | KRAFT TTEE, DELORES E | KRAFT, DELORES E | | | $0.00 | 64117 | 4588101 |
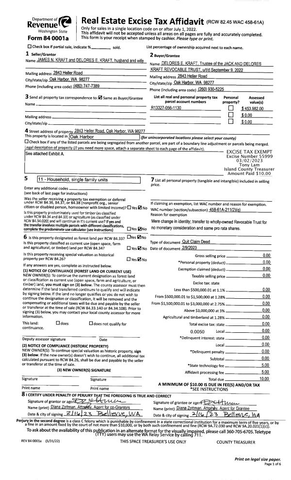
| 3 | 02/09/2023 | QCD | Quit Claim Deed | KRAFT, JAMES N | KRAFT TTEE, DELORES E | | | $0.00 | 55999 | 4557291 |
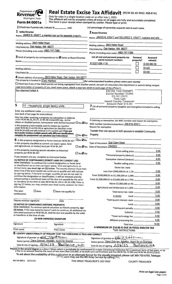
| 4 | 02/09/2023 | QCD | Quit Claim Deed | KRAFT, JAMES N | KRAFT, JAMES N | | | $0.00 | 55995 | 4557285 |
| 5 | 02/09/2023 | QCD | Quit Claim Deed | KRAFT TRUSTEE, JAMES N | KRAFT, JAMES N | | | $0.00 | 55994 | 4557277 |
| 6 | 11/22/1999 | QCD | Quit Claim Deed | KRAFT JTWRS, JAMES N | KRAFT, JAMES N | | | $0.00 | 95270 | 99029206 |
| 7 | 04/02/1999 | QCD | Quit Claim Deed | Unknown | KRAFT JTWRS, JAMES N | | | $0.00 | 91227 | 99008079 |
Payout Agreement
| No payout information available.. |