Property
Account |
| Property ID: | 378941 | Abbreviated Legal Description: | SCAT HD 1 LOT 37 BLK 9 |
| Geographic ID: | S8110-00-09037-0 | Agent Code: | |
| Type: | Real | | |
| Tax Area: | 749 - APPRAISER-S Whid Schl Dist, Special District, vacant & 50 acres or less | Land Use Code | 99 |
| Open Space: | N | DFL | N |
| Historic Property: | N | Remodel Property: | N |
| Multi-Family Redevelopment: | N | | |
| Township: | | Section: | |
| Range: | |
Location |
| Address: | PATOS LN CLINTON, WA 98236 | Mapsco: | |
| Neighborhood: | Cycle 4 | Map ID: | 697 |
| Neighborhood CD: | 4 |
Owner |
| Name: | HOLM, LINDSAY R | Owner ID: | 296399 |
| Mailing Address: | 206 1ST AVE E PACIFIC, WA 98047 | % Ownership: | 100.0000000000% |
| | | Exemptions: | |
Taxes and Assessment Details
Values
| (+) Improvement Homesite Value: | + | $0 | |
| (+) Improvement Non-Homesite Value: | + | $0 | |
| (+) Land Homesite Value: | + | $0 | |
| (+) Land Non-Homesite Value: | + | $50,000 | |
| (+) Curr Use (HS): | + | $0 | $0 |
| (+) Curr Use (NHS): | + | $0 | $0 |
| | | -------------------------- | |
| (=) Market Value: | = | $50,000 | |
| (–) Productivity Loss: | – | $0 | |
| | | -------------------------- | |
| (=) Subtotal: | = | $50,000 | |
| (+) Senior Appraised Value: | + | $0 | |
| (+) Non-Senior Appraised Value: | + | $50,000 | |
| | | -------------------------- | |
| (=) Total Appraised Value: | = | $50,000 | |
| (–) Senior Exemption Loss: | – | $0 | |
| (–) Exemption Loss: | – | $0 | |
| | | -------------------------- | |
| (=) Taxable Value: | = | $50,000 | |
Taxing Jurisdiction
| Owner: | HOLM, LINDSAY R | | |
| % Ownership: | 100.0000000000% | | |
| Total Value: | $50,000 | | |
| Tax Area: | 749 - APPRAISER-S Whid Schl Dist, Special District, vacant & 50 acres or less |
| CF | Conservation Futures | 0.0313996660 | $50,000 | $50,000 | $1.57 | | |
| HOBOND | Hospital BOND | 0.1893405597 | $50,000 | $50,000 | $9.47 | | |
| HOGEN | Hospital GEN | 0.3848777722 | $50,000 | $50,000 | $19.24 | | |
| CE | County Current Expense | 0.3674210519 | $50,000 | $50,000 | $18.37 | | |
| CR | County Roads | 0.4614296361 | $50,000 | $50,000 | $23.07 | | |
| ISLANDEMS | Hospital GEN (EMS) | 0.4952018576 | $50,000 | $50,000 | $24.76 | | |
| LIB | Library Sno-Isle GEN | 0.3039084203 | $50,000 | $50,000 | $15.20 | | |
| PORTWHID | Port of S Whidbey GEN | 0.1086004714 | $50,000 | $50,000 | $5.43 | | |
| SCH206BOND | School 206 BOND | 0.5960237832 | $50,000 | $50,000 | $29.80 | | |
| SCH206CAP | School 206 CP | 0.3066144020 | $50,000 | $50,000 | $15.33 | | |
| SCH206MO | School 206 Enrichment | 0.4808755445 | $50,000 | $50,000 | $24.04 | | |
| ST | State School | 1.4761226122 | $50,000 | $50,000 | $73.81 | | |
| ST2 | State School Part 2 | 0.7953803475 | $50,000 | $50,000 | $39.77 | | |
| SWHIDPRBD | P & R S Whidbey BOND | 0.0144185398 | $50,000 | $50,000 | $0.72 | | |
| SWHIDPRBD3 | P & R S Whidbey BOND3 | 0.1483535547 | $50,000 | $50,000 | $7.42 | | |
| SWHIDPRMT | P & R S Whidbey GEN | 0.4600000000 | $50,000 | $50,000 | $23.00 | | |
| | Total Tax Rate: | 6.6199682191 | | | | | |
| | | | | Taxes w/Current Exemptions: | $331.00 | | |
| | | | | Taxes w/o Exemptions: | $331.00 | | |
Improvement / Building
Sketch
| No sketches available for this property. |
Property Image
Land
| 1 | 15 | SQ (12001-21780) | 0.0000 | 0.00 | 0.00 | 0.00 | 1.00 | $50,000 | $0 |
Roll Value History
| 2026 | N/A | N/A | N/A | N/A | N/A |
| 2025 | $0 | $50,000 | $0 | $50,000 | $50,000 |
| 2024 | $0 | $45,000 | $0 | $45,000 | $45,000 |
| 2023 | $0 | $30,000 | $0 | $30,000 | $30,000 |
| 2022 | $0 | $30,000 | $0 | $30,000 | $30,000 |
| 2021 | $0 | $25,000 | $0 | $25,000 | $25,000 |
| 2020 | $0 | $20,000 | $0 | $20,000 | $20,000 |
| 2019 | $0 | $30,000 | $0 | $30,000 | $30,000 |
| 2018 | $0 | $30,000 | $0 | $30,000 | $30,000 |
| 2017 | $0 | $10,000 | $0 | $10,000 | $10,000 |
| 2016 | $0 | $10,000 | $0 | $10,000 | $10,000 |
| 2015 | $0 | $10,000 | $0 | $10,000 | $10,000 |
| 2014 | $0 | $9,950 | $0 | $9,950 | $9,950 |
| 2013 | $0 | $9,950 | $0 | $9,950 | $9,950 |
| 2012 | $0 | $9,950 | $0 | $9,950 | $9,950 |
| 2011 | $0 | $9,950 | $0 | $9,950 | $9,950 |
| 2010 | $0 | $11,050 | $0 | $11,050 | $11,050 |
| 2009 | $0 | $11,400 | $0 | $11,400 | $11,400 |
| 2008 | $0 | $23,370 | $0 | $23,370 | $23,370 |
| 2007 | $0 | $10,500 | $0 | $10,500 | $10,500 |
Deed and Sales History
| 1 | 12/16/2025 | WD | Warranty Deed | HOLM, LINDSAY R | PLOOF, CHRIS | | | $30,000.00 | 65750 | 4594797 |
| 2 | 11/06/2019 | QCD | Quit Claim Deed | HOLM, SHELLEY R | HOLM, LINDSAY R | | | $0.00 | 45060 | 4498446 |
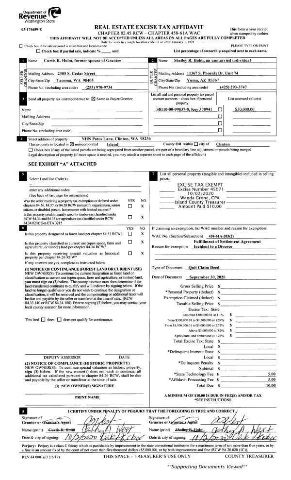
| 3 | 09/30/2020 | QCD | Quit Claim Deed | HOLM, CURTIS R | HOLM, SHELLEY R | | | $0.00 | 45071 | 4498445 |
| 4 | 03/16/2018 | DECREE | Divorce Decree/Legal Separation | HOLM, CURTIS R | HOLM, SHELLEY R | | | | 87757 | |
| 5 | 03/16/2018 | OTHER | Other - Misc. Documents | CONANT, MICHAEL C | HOLM, CURTIS R | | | | 87756 | 4440845 |
| 6 | 09/01/1983 | OTHER | Other - Misc. Documents | HOLM, CURTIS R | CONANT, MICHAEL C | | | $0.00 | 32761 | 0 |
| 7 | 07/01/1980 | EXECUTORD | Executor Deed | CONANT, MICHAEL C | HOLM, CURTIS R | | | $12,000.00 | 2692 | 372331 |
| 8 | 07/01/1979 | TRUSTEED | Trustee's Deed | ROSS, ROBERT B | CONANT, MICHAEL C | | | $7,250.00 | 93937 | 357060 |
| 9 | 01/01/1900 | OTHER | Other - Misc. Documents | Unknown | ROSS, ROBERT B | | | $0.00 | 0 | 0 |
Payout Agreement
| No payout information available.. |