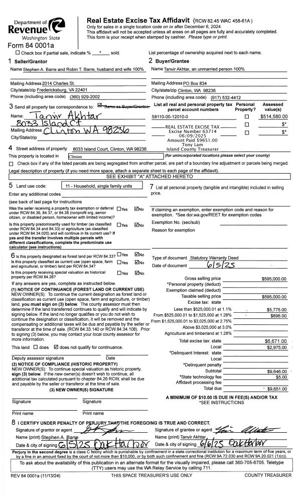
Property
Account |
| Property ID: | 379496 | Abbreviated Legal Description: | SCAT HD 1 LOTS 9 & 10 BLK 12 |
| Geographic ID: | S8110-00-12010-0 | Agent Code: | |
| Type: | Real | | |
| Tax Area: | 740 - APPRAISER-S Whid Schl Dist, Special District, improved & less than 1 acre | Land Use Code | 11 |
| Open Space: | N | DFL | N |
| Historic Property: | N | Remodel Property: | N |
| Multi-Family Redevelopment: | N | | |
| Township: | | Section: | |
| Range: | |
Location |
| Address: | 8033 ISLAND CT CLINTON, WA 98236 | Mapsco: | |
| Neighborhood: | Cycle 4 | Map ID: | 712 |
| Neighborhood CD: | 4 |
Owner |
| Name: | AKHTAR, TANVIR | Owner ID: | 316850 |
| Mailing Address: | 8033 ISLAND CT CLINTON, WA 98236 | % Ownership: | 100.0000000000% |
| | | Exemptions: | |
Taxes and Assessment Details
Values
| (+) Improvement Homesite Value: | + | $0 | |
| (+) Improvement Non-Homesite Value: | + | $305,816 | |
| (+) Land Homesite Value: | + | $0 | |
| (+) Land Non-Homesite Value: | + | $215,000 | |
| (+) Curr Use (HS): | + | $0 | $0 |
| (+) Curr Use (NHS): | + | $0 | $0 |
| | | -------------------------- | |
| (=) Market Value: | = | $520,816 | |
| (–) Productivity Loss: | – | $0 | |
| | | -------------------------- | |
| (=) Subtotal: | = | $520,816 | |
| (+) Senior Appraised Value: | + | $0 | |
| (+) Non-Senior Appraised Value: | + | $520,816 | |
| | | -------------------------- | |
| (=) Total Appraised Value: | = | $520,816 | |
| (–) Senior Exemption Loss: | – | $0 | |
| (–) Exemption Loss: | – | $0 | |
| | | -------------------------- | |
| (=) Taxable Value: | = | $520,816 | |
Taxing Jurisdiction
| Owner: | AKHTAR, TANVIR | | |
| % Ownership: | 100.0000000000% | | |
| Total Value: | $520,816 | | |
| Tax Area: | 740 - APPRAISER-S Whid Schl Dist, Special District, improved & less than 1 acre |
| CF | Conservation Futures | 0.0313996660 | $520,816 | $520,816 | $16.35 | | |
| FIRE3 | Fire & Rescue Dist #3 S Whidbey GEN | 1.2130821753 | $520,816 | $520,816 | $631.79 | | |
| HOBOND | Hospital BOND | 0.1893405597 | $520,816 | $520,816 | $98.61 | | |
| HOGEN | Hospital GEN | 0.3848777722 | $520,816 | $520,816 | $200.45 | | |
| CE | County Current Expense | 0.3674210519 | $520,816 | $520,816 | $191.36 | | |
| CR | County Roads | 0.4614296361 | $520,816 | $520,816 | $240.32 | | |
| ISLANDEMS | Hospital GEN (EMS) | 0.4952018576 | $520,816 | $520,816 | $257.91 | | |
| LIB | Library Sno-Isle GEN | 0.3039084203 | $520,816 | $520,816 | $158.28 | | |
| PORTWHID | Port of S Whidbey GEN | 0.1086004714 | $520,816 | $520,816 | $56.56 | | |
| SCH206BOND | School 206 BOND | 0.5960237832 | $520,816 | $520,816 | $310.42 | | |
| SCH206CAP | School 206 CP | 0.3066144020 | $520,816 | $520,816 | $159.69 | | |
| SCH206MO | School 206 Enrichment | 0.4808755445 | $520,816 | $520,816 | $250.45 | | |
| ST | State School | 1.4761226122 | $520,816 | $520,816 | $768.79 | | |
| ST2 | State School Part 2 | 0.7953803475 | $520,816 | $520,816 | $414.25 | | |
| SWHIDPRBD | P & R S Whidbey BOND | 0.0144185398 | $520,816 | $520,816 | $7.51 | | |
| SWHIDPRBD3 | P & R S Whidbey BOND3 | 0.1483535547 | $520,816 | $520,816 | $77.26 | | |
| SWHIDPRMT | P & R S Whidbey GEN | 0.4600000000 | $520,816 | $520,816 | $239.58 | | |
| | Total Tax Rate: | 7.8330503944 | | | | | |
| | | | | Taxes w/Current Exemptions: | $4,079.58 | | |
| | | | | Taxes w/o Exemptions: | $4,079.58 | | |
Improvement / Building
| Improvement #1: | RESIDENTIAL | State Code: | Y | 2474.0 sqft | Value: | $305,816 |
| Bathrooms: | 2 | Bedrooms: | 2 | | Ceiling: | DRY WALL SPRAYED | Exterior Wall/Cover: | PLY/HARDBOARD T-111 | | Floor Covering: | CARPET/VINYL 80-20 | Floor Structure: | WOOD W/SUBFLOOR | | Foundation: | CONCRETE | Heating: | FHA ELECTRIC | | Interior Finish: | DRYWALL PAINT | Plumbing Fixture Cnt: | 8 | | Roof Slope: | 5" IN 12" | Roof Structure/Cover: | CJ ASPHALT |
|
| | Type | Description | Class CD | Sub Class CD | Year Built | Area |
| | BAS | BASE/MAIN FLOOR | 3 | 0 | 1976 | 1242.0 |
| | DWN | DOWNSTAIRS LIVING AREA | 3 | 0 | 1976 | 1232.0 |
| | ENP | ENCLOSED PORCH | 3 | 0 | 1976 | 20.0 |
| | OWP | OPEN WOOD PORCH W/STEPS | 3 | 0 | 1976 | 310.0 |
| | OWR | OPEN WOOD PORCH W/STEPS/ROOF | 3 | 0 | 1976 | 160.0 |
| | DGR | DETACHED GARAGE | 3 | 0 | 1976 | 690.0 |
| | OP1 | OPEN PORCH SLAB | 3 | 0 | 1976 | 440.0 |
| | OWP | OPEN WOOD PORCH W/STEPS | 3 | 0 | 1976 | 220.0 |
Sketch
Property Image
Land
| 1 | 16 | AC (00.51-01.00) | 0.0000 | 0.00 | 0.00 | 0.00 | 1.00 | $215,000 | $0 |
Roll Value History
| 2026 | N/A | N/A | N/A | N/A | N/A |
| 2025 | $305,816 | $215,000 | $0 | $520,816 | $520,816 |
| 2024 | $309,580 | $205,000 | $0 | $514,580 | $514,580 |
| 2023 | $313,344 | $210,000 | $0 | $523,344 | $523,344 |
| 2022 | $287,156 | $200,000 | $0 | $487,156 | $487,156 |
| 2021 | $252,658 | $140,000 | $0 | $392,658 | $392,658 |
| 2020 | $238,777 | $120,000 | $0 | $358,777 | $358,777 |
| 2019 | $185,461 | $135,000 | $0 | $320,461 | $320,461 |
| 2018 | $186,004 | $120,000 | $0 | $306,004 | $306,004 |
| 2017 | $185,609 | $80,000 | $0 | $265,609 | $265,609 |
| 2016 | $187,767 | $75,000 | $0 | $262,767 | $262,767 |
| 2015 | $173,733 | $75,000 | $0 | $248,733 | $248,733 |
| 2014 | $157,503 | $75,000 | $0 | $232,503 | $232,503 |
| 2013 | $159,550 | $75,000 | $0 | $234,550 | $234,550 |
| 2012 | $161,595 | $78,030 | $0 | $239,625 | $239,625 |
| 2011 | $163,640 | $91,800 | $0 | $255,440 | $255,440 |
| 2010 | $175,916 | $102,000 | $0 | $277,916 | $277,916 |
| 2009 | $182,805 | $136,800 | $0 | $319,605 | $319,605 |
| 2008 | $132,565 | $147,600 | $0 | $280,165 | $280,165 |
| 2007 | $134,330 | $113,000 | $0 | $247,330 | $247,330 |
Deed and Sales History
| 1 | 06/05/2025 | WD | Warranty Deed | BARRE, STEPHEN A | AKHTAR, TANVIR | | | $595,000.00 | 63714 | 4586714 |
| 2 | 02/01/1995 | OTHER | Other - Misc. Documents | BARRE, STEPHEN A | BARRE, STEPHEN A | | | $0.00 | 66215 | 94026068 |
| 3 | 04/01/1993 | WD | Warranty Deed | LETEINTURIER, SABINE ( | BARRE, STEPHEN A | | | $122,000.00 | 31461 | 93007508 |
| 4 | 12/01/1992 | DECREE | Divorce Decree/Legal Separation | CLEGG, HUGH G | LETEINTURIER, SABINE ( | | | $0.00 | 65143 | 0 |
| 5 | 05/01/1988 | WD | Warranty Deed | GARDNER, J M | CLEGG, HUGH G | | | $69,900.00 | 81587 | 88005990 |
| 6 | 11/01/1978 | OTHER | Other - Misc. Documents | Unknown | GARDNER, J M | | | $59,950.00 | 85834 | 343838 |
Payout Agreement
| No payout information available.. |