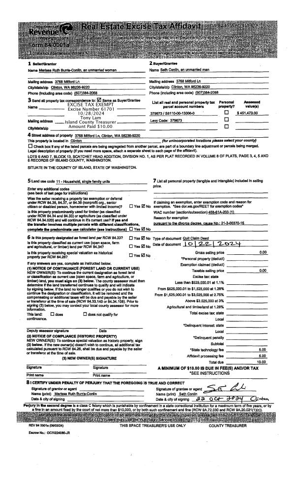
Property
Account |
| Property ID: | 379673 | Abbreviated Legal Description: | Scatchet Head - 1,s Lot 06,s Blk 13;s LOT A LOT COMB AF#4475985s |
| Geographic ID: | S8110-00-13006-0 | Agent Code: | |
| Type: | Real | | |
| Tax Area: | 740 - APPRAISER-S Whid Schl Dist, Special District, improved & less than 1 acre | Land Use Code | 11 |
| Open Space: | N | DFL | N |
| Historic Property: | N | Remodel Property: | N |
| Multi-Family Redevelopment: | N | | |
| Township: | | Section: | |
| Range: | |
Location |
| Address: | 3768 MITFORD LN CLINTON, WA 98236 | Mapsco: | |
| Neighborhood: | Cycle 4 | Map ID: | 712 |
| Neighborhood CD: | 4 |
Owner |
| Name: | CONLIN, SETH | Owner ID: | 266930 |
| Mailing Address: | 3768 MITFORD LN CLINTON, WA 98236 | % Ownership: | 100.0000000000% |
| | | Exemptions: | SNR/DSBL |
Taxes and Assessment Details
Values
| (+) Improvement Homesite Value: | + | $223,725 | |
| (+) Improvement Non-Homesite Value: | + | $0 | |
| (+) Land Homesite Value: | + | $250,000 | |
| (+) Land Non-Homesite Value: | + | $0 | |
| (+) Curr Use (HS): | + | $0 | $0 |
| (+) Curr Use (NHS): | + | $0 | $0 |
| | | -------------------------- | |
| (=) Market Value: | = | $473,725 | |
| (–) Productivity Loss: | – | $0 | |
| | | -------------------------- | |
| (=) Subtotal: | = | $473,725 | |
| (+) Senior Appraised Value: | + | $320,154 | |
| (+) Non-Senior Appraised Value: | + | $0 | |
| | | -------------------------- | |
| (=) Total Appraised Value: | = | $320,154 | |
| (–) Senior Exemption Loss: | – | $192,092 | |
| (–) Exemption Loss: | – | $0 | |
| | | -------------------------- | |
| (=) Taxable Value: | = | $128,062 | |
Taxing Jurisdiction
| Owner: | CONLIN, SETH | | |
| % Ownership: | 100.0000000000% | | |
| Total Value: | $473,725 | | |
| Tax Area: | 740 - APPRAISER-S Whid Schl Dist, Special District, improved & less than 1 acre |
| CF | Conservation Futures | 0.0313996660 | $473,725 | $128,062 | $4.02 | | |
| FIRE3 | Fire & Rescue Dist #3 S Whidbey GEN | 1.2130821753 | $473,725 | $128,062 | $155.35 | | |
| HOBOND | Hospital BOND | 0.0000000000 | $473,725 | $0 | $0.00 | | |
| HOGEN | Hospital GEN | 0.3848777722 | $473,725 | $128,062 | $49.29 | | |
| CE | County Current Expense | 0.3674210519 | $473,725 | $128,062 | $47.05 | | |
| CR | County Roads | 0.4614296361 | $473,725 | $128,062 | $59.09 | | |
| ISLANDEMS | Hospital GEN (EMS) | 0.4952018576 | $473,725 | $128,062 | $63.42 | | |
| LIB | Library Sno-Isle GEN | 0.3039084203 | $473,725 | $128,062 | $38.92 | | |
| PORTWHID | Port of S Whidbey GEN | 0.1086004714 | $473,725 | $128,062 | $13.91 | | |
| SCH206BOND | School 206 BOND | 0.0000000000 | $473,725 | $0 | $0.00 | | |
| SCH206CAP | School 206 CP | 0.0000000000 | $473,725 | $0 | $0.00 | | |
| SCH206MO | School 206 Enrichment | 0.0000000000 | $473,725 | $0 | $0.00 | | |
| ST | State School | 1.4761226122 | $473,725 | $128,062 | $189.04 | | |
| ST2 | State School Part 2 | 0.0000000000 | $473,725 | $0 | $0.00 | | |
| SWHIDPRBD | P & R S Whidbey BOND | 0.0000000000 | $473,725 | $0 | $0.00 | | |
| SWHIDPRBD3 | P & R S Whidbey BOND3 | 0.0000000000 | $473,725 | $0 | $0.00 | | |
| SWHIDPRMT | P & R S Whidbey GEN | 0.4600000000 | $473,725 | $128,062 | $58.91 | | |
| | Total Tax Rate: | 5.3020436630 | | | | | |
| | | | | Taxes w/Current Exemptions: | $679.00 | | |
| | | | | Taxes w/o Exemptions: | $3,710.72 | | |
Improvement / Building
| Improvement #1: | RESIDENTIAL | State Code: | Y | 1560.0 sqft | Value: | $223,725 |
| Bathrooms: | 1.25 | Bedrooms: | 3 | | Ceiling: | TONGUE & GROOVE | Exterior Wall/Cover: | PLY/HARDBOARD T-111 | | Floor Covering: | CARPET/VINYL 80-20 | Floor Structure: | WOOD W/SUBFLOOR | | Foundation: | CONCRETE | Heating: | BASEBOARD ELECTRIC | | Interior Finish: | DRYWALL PAINT | Plumbing Fixture Cnt: | 8 | | Roof Slope: | 4" IN 12" | Roof Structure/Cover: | CJ ASPHALT |
|
| | Type | Description | Class CD | Sub Class CD | Year Built | Area |
| | BAS | BASE/MAIN FLOOR | 3 | 0 | 1990 | 780.0 |
| | UPS | UPPER STORY | 3 | 0 | 1990 | 780.0 |
| | BAW | BALCONY WOOD RAIL | 3 | 0 | 1990 | 130.0 |
| | OWP | OPEN WOOD PORCH W/STEPS | 3 | 0 | 1990 | 90.0 |
| | OWP | OPEN WOOD PORCH W/STEPS | 3 | 0 | 1990 | 210.0 |
Sketch
Property Image
Land
| 1 | 15 | SQ (12001-21780) | 0.3400 | 14810.40 | 0.00 | 0.00 | 1.00 | $250,000 | $0 |
Roll Value History
| 2026 | N/A | N/A | N/A | N/A | N/A |
| 2025 | $223,725 | $250,000 | $0 | $473,725 | $128,062 |
| 2024 | $231,473 | $220,000 | $0 | $451,473 | $128,062 |
| 2023 | $234,358 | $220,000 | $0 | $454,358 | $128,062 |
| 2022 | $214,821 | $220,000 | $0 | $434,821 | $128,062 |
| 2021 | $189,085 | $180,000 | $0 | $369,085 | $128,062 |
| 2020 | $175,644 | $170,000 | $0 | $345,644 | $128,062 |
| 2019 | $128,864 | $190,000 | $0 | $318,864 | $127,546 |
| 2018 | $129,260 | $120,000 | $0 | $249,260 | $120,350 |
| 2017 | $130,053 | $80,000 | $0 | $210,053 | $120,350 |
| 2016 | $131,639 | $75,000 | $0 | $206,639 | $120,350 |
| 2015 | $133,224 | $75,000 | $0 | $208,224 | $120,350 |
| 2014 | $118,885 | $55,000 | $0 | $173,885 | $69,554 |
| 2013 | $120,401 | $55,000 | $0 | $175,401 | $175,401 |
| 2012 | $121,917 | $65,025 | $0 | $186,942 | $186,942 |
| 2011 | $123,433 | $76,500 | $0 | $199,933 | $199,933 |
| 2010 | $130,831 | $85,000 | $0 | $215,831 | $215,831 |
| 2009 | $136,466 | $114,000 | $0 | $250,466 | $250,466 |
| 2008 | $136,364 | $123,000 | $0 | $259,364 | $259,364 |
| 2007 | $137,971 | $88,000 | $0 | $225,971 | $225,971 |
Deed and Sales History
| 1 | 10/22/2024 | QCD | Quit Claim Deed | CONLIN, MARISSA | CONLIN, SETH | | | $0.00 | 61701 | 4578765 |
| 2 | 06/30/2014 | QCD | Quit Claim Deed | CONLIN, MARISSA | CONLIN, SETH | | | $0.00 | 15901 | 4361835 |
| 3 | 06/30/2014 | BARGSLD | Bargain And Sale Deed | FEDERAL HOME LOAN MORTGAGE CORPORATION | CONLIN, SETH | | | $0.00 | 15900 | 4361834 |
| 4 | 02/04/2013 | TRUSTEED | Trustee's Deed | EVEREST, JOSEPH | FEDERAL HOME LOAN MORTGAGE CORPORATION | | | $190,610.00 | 10382 | 4333274 |
| 5 | 06/24/2005 | WD | Warranty Deed | NORTHWEST EXCHANGE AND TRUSTEE | EVEREST, JOSEPH | | | $194,750.00 | 53045 | 4139067 |
| 6 | 06/22/2005 | WD | Warranty Deed | ENELL, DEAN & | NORTHWEST EXCHANGE AND TRUSTEE | | | $0.00 | 52898 | 4138429 |
| 7 | 03/01/1992 | WD | Warranty Deed | BERRY, MARK H | ENELL, DEAN & | | | $87,500.00 | 21163 | 92005667 |
| 8 | 05/01/1989 | WD | Warranty Deed | STIMAC, VINCO J | BERRY, MARK H | | | $9,000.00 | 92060 | 89006994 |
| 9 | 01/01/1900 | OTHER | Other - Misc. Documents | Unknown | STIMAC, VINCO J | | | $0.00 | 0 | 0 |
Payout Agreement
| No payout information available.. |