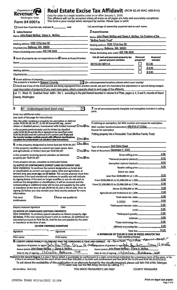
Property
Account |
| Property ID: | 379851 | Abbreviated Legal Description: | SCAT HD 1 LOT 11 BLK 14 |
| Geographic ID: | S8110-00-14011-0 | Agent Code: | |
| Type: | Real | | |
| Tax Area: | 749 - APPRAISER-S Whid Schl Dist, Special District, vacant & 50 acres or less | Land Use Code | 99 |
| Open Space: | N | DFL | N |
| Historic Property: | N | Remodel Property: | N |
| Multi-Family Redevelopment: | N | | |
| Township: | | Section: | |
| Range: | |
Location |
| Address: | | Mapsco: | |
| Neighborhood: | Cycle 4 | Map ID: | 712 |
| Neighborhood CD: | 4 |
Owner |
| Name: | MCREA TTEE, JOHN R | Owner ID: | 306989 |
| Mailing Address: | DIANE A MCREA TTEE 1535 121ST AVE SE BELLEVUE, WA 98005 | % Ownership: | 100.0000000000% |
| | | Exemptions: | |
Taxes and Assessment Details
Values
| (+) Improvement Homesite Value: | + | $0 | |
| (+) Improvement Non-Homesite Value: | + | $0 | |
| (+) Land Homesite Value: | + | $0 | |
| (+) Land Non-Homesite Value: | + | $120,000 | |
| (+) Curr Use (HS): | + | $0 | $0 |
| (+) Curr Use (NHS): | + | $0 | $0 |
| | | -------------------------- | |
| (=) Market Value: | = | $120,000 | |
| (–) Productivity Loss: | – | $0 | |
| | | -------------------------- | |
| (=) Subtotal: | = | $120,000 | |
| (+) Senior Appraised Value: | + | $0 | |
| (+) Non-Senior Appraised Value: | + | $120,000 | |
| | | -------------------------- | |
| (=) Total Appraised Value: | = | $120,000 | |
| (–) Senior Exemption Loss: | – | $0 | |
| (–) Exemption Loss: | – | $0 | |
| | | -------------------------- | |
| (=) Taxable Value: | = | $120,000 | |
Taxing Jurisdiction
| Owner: | MCREA TTEE, JOHN R | | |
| % Ownership: | 100.0000000000% | | |
| Total Value: | $120,000 | | |
| Tax Area: | 749 - APPRAISER-S Whid Schl Dist, Special District, vacant & 50 acres or less |
| CF | Conservation Futures | 0.0313996660 | $120,000 | $120,000 | $3.77 | | |
| HOBOND | Hospital BOND | 0.1893405597 | $120,000 | $120,000 | $22.72 | | |
| HOGEN | Hospital GEN | 0.3848777722 | $120,000 | $120,000 | $46.19 | | |
| CE | County Current Expense | 0.3674210519 | $120,000 | $120,000 | $44.09 | | |
| CR | County Roads | 0.4614296361 | $120,000 | $120,000 | $55.37 | | |
| ISLANDEMS | Hospital GEN (EMS) | 0.4952018576 | $120,000 | $120,000 | $59.42 | | |
| LIB | Library Sno-Isle GEN | 0.3039084203 | $120,000 | $120,000 | $36.47 | | |
| PORTWHID | Port of S Whidbey GEN | 0.1086004714 | $120,000 | $120,000 | $13.03 | | |
| SCH206BOND | School 206 BOND | 0.5960237832 | $120,000 | $120,000 | $71.52 | | |
| SCH206CAP | School 206 CP | 0.3066144020 | $120,000 | $120,000 | $36.79 | | |
| SCH206MO | School 206 Enrichment | 0.4808755445 | $120,000 | $120,000 | $57.71 | | |
| ST | State School | 1.4761226122 | $120,000 | $120,000 | $177.13 | | |
| ST2 | State School Part 2 | 0.7953803475 | $120,000 | $120,000 | $95.45 | | |
| SWHIDPRBD | P & R S Whidbey BOND | 0.0144185398 | $120,000 | $120,000 | $1.73 | | |
| SWHIDPRBD3 | P & R S Whidbey BOND3 | 0.1483535547 | $120,000 | $120,000 | $17.80 | | |
| SWHIDPRMT | P & R S Whidbey GEN | 0.4600000000 | $120,000 | $120,000 | $55.20 | | |
| | Total Tax Rate: | 6.6199682191 | | | | | |
| | | | | Taxes w/Current Exemptions: | $794.39 | | |
| | | | | Taxes w/o Exemptions: | $794.39 | | |
Improvement / Building
Sketch
| No sketches available for this property. |
Property Image
Land
| 1 | 14 | SQ (08001-12000) | 0.0000 | 0.00 | 0.00 | 0.00 | 1.00 | $120,000 | $0 |
Roll Value History
| 2026 | N/A | N/A | N/A | N/A | N/A |
| 2025 | $0 | $120,000 | $0 | $120,000 | $120,000 |
| 2024 | $0 | $100,000 | $0 | $100,000 | $100,000 |
| 2023 | $0 | $100,000 | $0 | $100,000 | $100,000 |
| 2022 | $0 | $100,000 | $0 | $100,000 | $100,000 |
| 2021 | $0 | $80,000 | $0 | $80,000 | $80,000 |
| 2020 | $0 | $6,000 | $0 | $6,000 | $6,000 |
| 2019 | $0 | $7,000 | $0 | $7,000 | $7,000 |
| 2018 | $0 | $7,000 | $0 | $7,000 | $7,000 |
| 2017 | $0 | $5,000 | $0 | $5,000 | $5,000 |
| 2016 | $0 | $5,000 | $0 | $5,000 | $5,000 |
| 2015 | $0 | $5,000 | $0 | $5,000 | $5,000 |
| 2014 | $0 | $40,000 | $0 | $40,000 | $40,000 |
| 2013 | $0 | $40,000 | $0 | $40,000 | $40,000 |
| 2012 | $0 | $41,310 | $0 | $41,310 | $41,310 |
| 2011 | $0 | $41,310 | $0 | $41,310 | $41,310 |
| 2010 | $0 | $45,900 | $0 | $45,900 | $45,900 |
| 2009 | $0 | $46,740 | $0 | $46,740 | $46,740 |
| 2008 | $0 | $50,430 | $0 | $50,430 | $50,430 |
| 2007 | $0 | $30,000 | $0 | $30,000 | $30,000 |
Deed and Sales History
| 1 | 12/07/2022 | QCD | Quit Claim Deed | MCREA, ROGER AND DIANE | MCREA TTEE, JOHN R | | | $0.00 | 55408 | 4554907 |
| 2 | 03/31/2005 | WD | Warranty Deed | HERMAN, RALPH P | MCREA, ROGER AND DIANE | | | $7,000.00 | 51351 | 4130001 |
| 3 | 02/27/2002 | QCD | Quit Claim Deed | Unknown | HERMAN, RALPH P | | | $0.00 | 20921 | 4013865 |
Payout Agreement
| No payout information available.. |