Property
Account |
| Property ID: | 382277 | Abbreviated Legal Description: | SCENIC HTS 2 LOTS 36 & 37 COMB 9/94 |
| Geographic ID: | S8115-02-00036-0 | Agent Code: | |
| Type: | Real | | |
| Tax Area: | 110 - APPRAISER-OH Schl Dist, outside OH, improved & 1 acre or less | Land Use Code | 11 |
| Open Space: | N | DFL | N |
| Historic Property: | N | Remodel Property: | N |
| Multi-Family Redevelopment: | N | | |
| Township: | | Section: | |
| Range: | |
Location |
| Address: | 1212 CANTERBURY LN OAK HARBOR, WA 98277 | Mapsco: | |
| Neighborhood: | Cycle 1 | Map ID: | 122 |
| Neighborhood CD: | 1 |
Owner |
| Name: | BRADFORD, MICHAEL STEVEN | Owner ID: | 310484 |
| Mailing Address: | KATHRYN JEAN BRADFORD 1212 CANTERBURY LN OAK HARBOR, WA 98277 | % Ownership: | 100.0000000000% |
| | | Exemptions: | |
Taxes and Assessment Details
Values
| (+) Improvement Homesite Value: | + | $0 | |
| (+) Improvement Non-Homesite Value: | + | $475,611 | |
| (+) Land Homesite Value: | + | $0 | |
| (+) Land Non-Homesite Value: | + | $300,000 | |
| (+) Curr Use (HS): | + | $0 | $0 |
| (+) Curr Use (NHS): | + | $0 | $0 |
| | | -------------------------- | |
| (=) Market Value: | = | $775,611 | |
| (–) Productivity Loss: | – | $0 | |
| | | -------------------------- | |
| (=) Subtotal: | = | $775,611 | |
| (+) Senior Appraised Value: | + | $0 | |
| (+) Non-Senior Appraised Value: | + | $775,611 | |
| | | -------------------------- | |
| (=) Total Appraised Value: | = | $775,611 | |
| (–) Senior Exemption Loss: | – | $0 | |
| (–) Exemption Loss: | – | $0 | |
| | | -------------------------- | |
| (=) Taxable Value: | = | $775,611 | |
Taxing Jurisdiction
| Owner: | BRADFORD, MICHAEL STEVEN | | |
| % Ownership: | 100.0000000000% | | |
| Total Value: | $775,611 | | |
| Tax Area: | 110 - APPRAISER-OH Schl Dist, outside OH, improved & 1 acre or less |
| CF | Conservation Futures | 0.0313996660 | $775,611 | $775,611 | $24.35 | | |
| CEM1 | Cemetery #1 | 0.0040018856 | $775,611 | $775,611 | $3.10 | | |
| FIRE2 | Fire & Rescue Dist #2 N Whidbey GEN | 0.5381486274 | $775,611 | $775,611 | $417.39 | | |
| HOBOND | Hospital BOND | 0.1893405597 | $775,611 | $775,611 | $146.85 | | |
| HOGEN | Hospital GEN | 0.3848777722 | $775,611 | $775,611 | $298.52 | | |
| CE | County Current Expense | 0.3674210519 | $775,611 | $775,611 | $284.98 | | |
| CR | County Roads | 0.4614296361 | $775,611 | $775,611 | $357.89 | | |
| ISLANDEMS | Hospital GEN (EMS) | 0.4952018576 | $775,611 | $775,611 | $384.08 | | |
| LIB | Library Sno-Isle GEN | 0.3039084203 | $775,611 | $775,611 | $235.71 | | |
| NWHIDPRMT | P & R N Whidbey GEN | 0.1990272349 | $775,611 | $775,611 | $154.37 | | |
| SCH201MO | School 201 Enrichment | 2.3851112745 | $775,611 | $775,611 | $1,849.92 | | |
| ST | State School | 1.4761226122 | $775,611 | $775,611 | $1,144.90 | | |
| ST2 | State School Part 2 | 0.7953803475 | $775,611 | $775,611 | $616.91 | | |
| | Total Tax Rate: | 7.6313709459 | | | | | |
| | | | | Taxes w/Current Exemptions: | $5,918.97 | | |
| | | | | Taxes w/o Exemptions: | $5,918.97 | | |
Improvement / Building
| Improvement #1: | RESIDENTIAL | State Code: | Y | 1844.2 sqft | Value: | $475,611 |
| Bathrooms: | 2 | Bedrooms: | 2 | | Ceiling: | DRYWALL PAINTED | Exterior Wall/Cover: | CEMENT FIBER | | Floor Covering: | CARPET/VINYL 60-40 | Floor Structure: | WOOD W/SUBFLOOR | | Foundation: | CONCRETE | Heating: | FHA GAS | | Interior Finish: | DRYWALL PAINT | Plumbing Fixture Cnt: | 11 | | Roof Slope: | 4" IN 12" | Roof Structure/Cover: | CJ ASPHALT |
|
| | Type | Description | Class CD | Sub Class CD | Year Built | Area |
| | BAS | BASE/MAIN FLOOR | 4 | 0 | 2000 | 1844.2 |
| | OP2 | OPEN PORCH W/STEPS | 4 | 0 | 2000 | 192.0 |
| | OP4 | OPEN PORCH W/CEILING-ROOF | 4 | 0 | 2000 | 170.0 |
| | AGR | ATTACHED GARAGE | 4 | 0 | 2000 | 1090.0 |
| | OP4 | OPEN PORCH W/CEILING-ROOF | 4 | 0 | 2000 | 30.0 |
Sketch
Property Image
Land
| 1 | 16 | AC (00.51-01.00) | 0.7900 | 34412.40 | 0.00 | 0.00 | 1.00 | $300,000 | $0 |
Roll Value History
| 2026 | N/A | N/A | N/A | N/A | N/A |
| 2025 | $475,611 | $300,000 | $0 | $775,611 | $775,611 |
| 2024 | $479,608 | $280,000 | $0 | $759,608 | $759,608 |
| 2023 | $471,611 | $240,000 | $0 | $711,611 | $711,611 |
| 2022 | $347,378 | $220,000 | $0 | $567,378 | $567,378 |
| 2021 | $305,917 | $140,000 | $0 | $445,917 | $445,917 |
| 2020 | $298,110 | $115,000 | $0 | $413,110 | $413,110 |
| 2019 | $219,006 | $200,000 | $0 | $419,006 | $419,006 |
| 2018 | $219,679 | $170,000 | $0 | $389,679 | $389,679 |
| 2017 | $221,435 | $150,000 | $0 | $371,435 | $371,435 |
| 2016 | $224,111 | $120,000 | $0 | $344,111 | $344,111 |
| 2015 | $226,788 | $120,000 | $0 | $346,788 | $346,788 |
| 2014 | $229,463 | $120,000 | $0 | $349,463 | $349,463 |
| 2013 | $232,139 | $110,000 | $0 | $342,139 | $342,139 |
| 2012 | $234,815 | $114,750 | $0 | $349,565 | $349,565 |
| 2011 | $248,758 | $135,000 | $0 | $383,758 | $383,758 |
| 2010 | $260,789 | $135,000 | $0 | $395,789 | $395,789 |
| 2009 | $271,667 | $120,000 | $0 | $391,667 | $391,667 |
| 2008 | $274,894 | $176,175 | $0 | $451,069 | $451,069 |
| 2007 | $275,349 | $176,175 | $0 | $451,524 | $451,524 |
Deed and Sales History
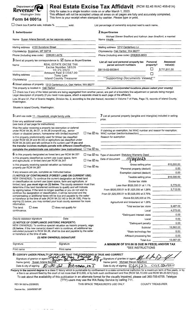
| 1 | 10/20/2023 | WD | Warranty Deed | BENNETT, SUSAN ARLENE | BRADFORD, MICHAEL STEVEN | | | $815,000.00 | 58326 | 4566050 |
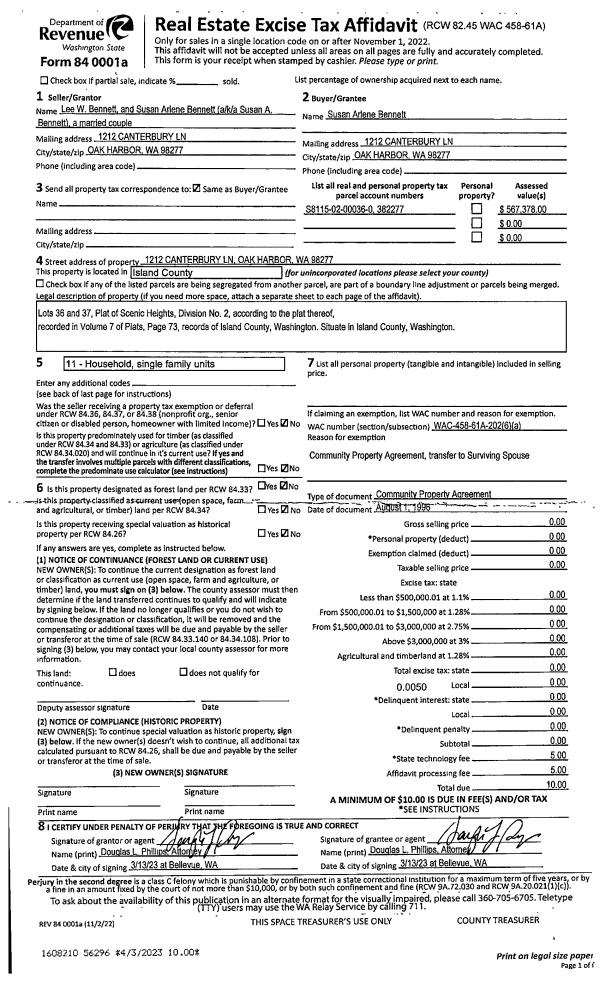
| 2 | 08/01/1999 | CPADC | Comm Prop Agmnt & Death Cert | BENNETT, LEE W | BENNETT, SUSAN ARLENE | | | $0.00 | 56296 | 4555719 |
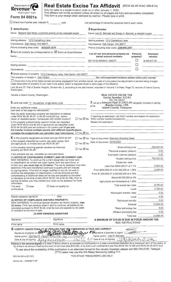
| 3 | 03/02/2022 | WD | Warranty Deed | STULTZ, BARBARA GAIL | BENNETT, LEE W | | | $750,000.00 | 52243 | 4541246 |
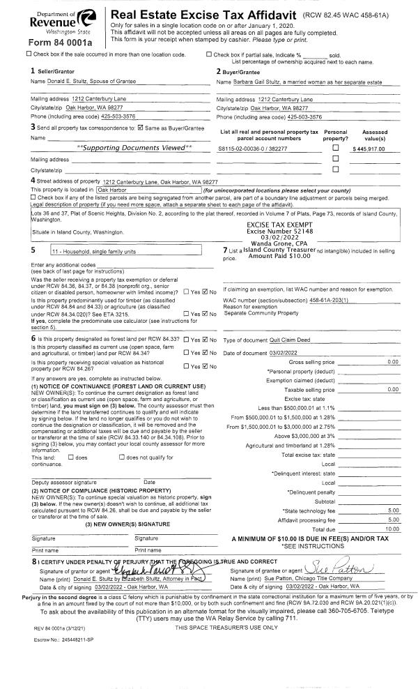
| 4 | 03/02/2022 | QCD | Quit Claim Deed | STULTZ, DONALD E | STULTZ, BARBARA GAIL | | | $0.00 | 52148 | 4540748 |
| 5 | 08/11/1999 | WD | Warranty Deed | MITCHELL, DWIGHT L | STULTZ, DONALD E | | | $70,000.00 | 93296 | 99019021 |
| 6 | 09/01/1994 | OTHER | Other - Misc. Documents | MITCHELL, DWIGHT L | MITCHELL, DWIGHT L | | | $0.00 | 66034 | 94018271 |
| 7 | 07/01/1994 | WD | Warranty Deed | KLEIN, PHILIP W | MITCHELL, DWIGHT L | | | $31,000.00 | 43022 | 94016336 |
| 8 | 08/01/1979 | REC | Real Estate Contract | HITCHEN, HAROLD W | KLEIN, PHILIP W | | | $8,575.00 | 94062 | 357482 |
| 9 | 01/01/1900 | OTHER | Other - Misc. Documents | Unknown | HITCHEN, HAROLD W | | | $0.00 | 0 | 0 |
Payout Agreement
| No payout information available.. |