Property
Account |
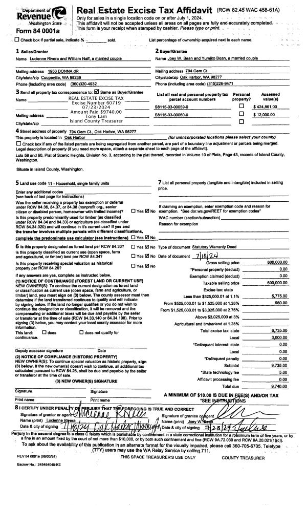
| Property ID: | 382507 | Abbreviated Legal Description: | SCENIC HTS 3 LOT 59 |
| Geographic ID: | S8115-03-00059-0 | Agent Code: | |
| Type: | Real | | |
| Tax Area: | 110 - APPRAISER-OH Schl Dist, outside OH, improved & 1 acre or less | Land Use Code | 11 |
| Open Space: | N | DFL | N |
| Historic Property: | N | Remodel Property: | N |
| Multi-Family Redevelopment: | N | | |
| Township: | | Section: | |
| Range: | |
Location |
| Address: | 794 GEM CT OAK HARBOR, WA 98277 | Mapsco: | |
| Neighborhood: | Cycle 1 | Map ID: | 122 |
| Neighborhood CD: | 1 |
Owner |
| Name: | BEAN, JOEY W | Owner ID: | 313260 |
| Mailing Address: | YUMIKO BEAN 794 GEM CT OAK HARBOR, WA 98277 | % Ownership: | 100.0000000000% |
| | | Exemptions: | |
Taxes and Assessment Details
Values
| (+) Improvement Homesite Value: | + | N/A | |
| (+) Improvement Non-Homesite Value: | + | N/A | |
| (+) Land Homesite Value: | + | N/A | |
| (+) Land Non-Homesite Value: | + | N/A | Ag / Timber Use Value |
| (+) Curr Use (HS): | + | N/A | N/A |
| (+) Curr Use (NHS): | + | N/A | N/A |
| | | -------------------------- | |
| (=) Market Value: | = | N/A | |
| (–) Productivity Loss: | – | N/A | |
| | | -------------------------- | |
| (=) Subtotal: | = | N/A | |
| (+) Senior Appraised Value: | + | N/A | |
| (+) Non-Senior Appraised Value: | + | N/A | |
| | | -------------------------- | |
| (=) Total Appraised Value: | = | N/A | |
| (–) Senior Exemption Loss: | – | N/A | |
| (–) Exemption Loss: | – | N/A | |
| | | -------------------------- | |
| (=) Taxable Value: | = | N/A | |
Taxing Jurisdiction
| Owner: | BEAN, JOEY W | | |
| % Ownership: | 100.0000000000% | | |
| Total Value: | N/A | | |
| Tax Area: | 110 - APPRAISER-OH Schl Dist, outside OH, improved & 1 acre or less |
| CF | Conservation Futures | N/A | N/A | N/A | N/A | | |
| WCD | Whidbey Conservation District | N/A | N/A | N/A | N/A | | |
| CEM1 | Cemetery #1 | N/A | N/A | N/A | N/A | | |
| FIRE2 | Fire & Rescue Dist #2 N Whidbey GEN | N/A | N/A | N/A | N/A | | |
| HOBOND | Hospital BOND | N/A | N/A | N/A | N/A | | |
| HOGEN | Hospital GEN | N/A | N/A | N/A | N/A | | |
| CE | County Current Expense | N/A | N/A | N/A | N/A | | |
| CR | County Roads | N/A | N/A | N/A | N/A | | |
| ISLANDEMS | Hospital GEN (EMS) | N/A | N/A | N/A | N/A | | |
| LIB | Library Sno-Isle GEN | N/A | N/A | N/A | N/A | | |
| NWHIDPRMT | P & R N Whidbey GEN | N/A | N/A | N/A | N/A | | |
| SCH201MO | School 201 Enrichment | N/A | N/A | N/A | N/A | | |
| ST | State School | N/A | N/A | N/A | N/A | | |
| ST2 | State School Part 2 | N/A | N/A | N/A | N/A | | |
| | Total Tax Rate: | N/A | | | | | |
| | | | | Taxes w/Current Exemptions: | N/A | | |
| | | | | Taxes w/o Exemptions: | N/A | | |
Improvement / Building
| Improvement #1: | RESIDENTIAL | State Code: | Y | 1488.0 sqft | Value: | N/A |
| Bathrooms: | 2 | Bedrooms: | 3 | | Ceiling: | DRYWALL PAINTED | Cooling: | REFRIG A/C DUCTS | | Exterior Wall/Cover: | CEMENT FIBER | Floor Covering: | CARPET/VINYL 80-20 | | Floor Structure: | WOOD W/SUBFLOOR | Foundation: | CONCRETE | | Interior Finish: | DRYWALL PAINT | Plumbing Fixture Cnt: | 10 | | Roof Slope: | 4" IN 12" | Roof Structure/Cover: | CJ ASPHALT |
|
| | Type | Description | Class CD | Sub Class CD | Year Built | Area |
| | BAS | BASE/MAIN FLOOR | 3 | 0 | 1993 | 1488.0 |
| | AGR | ATTACHED GARAGE | 3 | 0 | 1993 | 576.0 |
| | OWC | OPEN WOOD PORCH W/STEPS/ROOF/C | 3 | 0 | 1993 | 114.0 |
| | OWP | OPEN WOOD PORCH W/STEPS | 3 | 0 | 1993 | 96.0 |
Sketch
Property Image
Land
| 1 | 15 | SQ (12001-21780) | 0.0000 | 0.00 | 0.00 | 0.00 | 1.00 | N/A | N/A |
Roll Value History
| 2026 | N/A | N/A | N/A | N/A | N/A |
| 2025 | $304,947 | $190,000 | $0 | $494,947 | $494,947 |
| 2024 | $244,861 | $180,000 | $0 | $424,861 | $424,861 |
| 2023 | $248,073 | $180,000 | $0 | $428,073 | $428,073 |
| 2022 | $227,549 | $180,000 | $0 | $407,549 | $407,549 |
| 2021 | $200,397 | $120,000 | $0 | $320,397 | $320,397 |
| 2020 | $195,178 | $100,000 | $0 | $295,178 | $295,178 |
| 2019 | $131,308 | $130,000 | $0 | $261,308 | $261,308 |
| 2018 | $131,733 | $120,000 | $0 | $251,733 | $251,733 |
| 2017 | $134,198 | $120,000 | $0 | $254,198 | $101,679 |
| 2016 | $135,987 | $90,000 | $0 | $225,987 | $90,395 |
| 2015 | $137,777 | $90,000 | $0 | $227,777 | $91,111 |
| 2014 | $139,566 | $90,000 | $0 | $229,566 | $91,826 |
| 2013 | $141,356 | $85,000 | $0 | $226,356 | $90,542 |
| 2012 | $143,146 | $102,000 | $0 | $245,146 | $98,058 |
| 2011 | $153,776 | $120,000 | $0 | $273,776 | $109,510 |
| 2010 | $160,663 | $120,000 | $0 | $280,663 | $111,898 |
| 2009 | $167,539 | $90,000 | $0 | $257,539 | $103,016 |
| 2008 | $170,644 | $109,100 | $0 | $279,744 | $111,898 |
| 2007 | $171,548 | $110,200 | $0 | $281,748 | $281,748 |
Deed and Sales History
| 1 | 07/18/2024 | WD | Warranty Deed | NAFF, WILLIAM | BEAN, JOEY W | | | $600,000.00 | 60719 | 4574953 |
|   | |
| 2 | 04/18/2019 | WD | Warranty Deed | PIOTROWSKI, CLEMENTINE M | NAFF, WILLIAM | | | $325,000.00 | 38035 | 4461248 |
| 3 | 09/05/2007 | WD | Warranty Deed | EHLERS, SCOTT E | PIOTROWSKI, CLEMENTINE M | | | $280,000.00 | 73143 | 4211993 |
| 4 | 09/24/2004 | WD | Warranty Deed | TAYLOR, WESLEY J | EHLERS, SCOTT E | | | $184,700.00 | 44595 | 4114244 |
| 5 | 07/01/1993 | WD | Warranty Deed | MOODY, TERRY G | TAYLOR, WESLEY J | | | $25,000.00 | 32891 | 93014825 |
| 6 | 02/01/1992 | QCD | Quit Claim Deed | HAIG, JUNE M | MOODY, TERRY G | | | $0.00 | 20459 | 92002123 |
| 7 | 08/01/1983 | QCD | Quit Claim Deed | HAIG, JUNE M | HAIG, JUNE M | | | $0.00 | 32345 | 413798 |
| 8 | 07/01/1983 | WD | Warranty Deed | HAIG, JUNE M | HAIG, JUNE M | | | $8,600.00 | 31856 | 411814 |
| 9 | 07/01/1983 | QCD | Quit Claim Deed | COMPANY, LIMITED, T | HAIG, JUNE M | | | $0.00 | 32099 | 412734 |
| 10 | 05/01/1978 | TRUSTEED | Trustee's Deed | HARRY, H O | COMPANY, LIMITED, T | | | $6,750.00 | 82551 | 333893 |
| 11 | 01/01/1900 | OTHER | Other - Misc. Documents | Unknown | HARRY, H O | | | $0.00 | 0 | 0 |
Payout Agreement
| No payout information available.. |