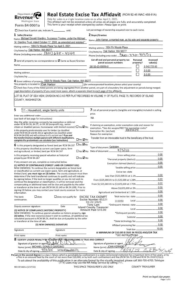
Property
Account |
| Property ID: | 384391 | Abbreviated Legal Description: | SEA VIEW 3 LOT 59 |
| Geographic ID: | S8135-03-00059-0 | Agent Code: | |
| Type: | Real | | |
| Tax Area: | 110 - APPRAISER-OH Schl Dist, outside OH, improved & 1 acre or less | Land Use Code | 11 |
| Open Space: | N | DFL | N |
| Historic Property: | N | Remodel Property: | N |
| Multi-Family Redevelopment: | N | | |
| Township: | | Section: | |
| Range: | |
Location |
| Address: | 1904 FIR WOODS PLACE OAK HARBOR, WA 98277 | Mapsco: | |
| Neighborhood: | Cycle 1 | Map ID: | 106 |
| Neighborhood CD: | 1 |
Owner |
| Name: | GIARDINO TTEE, MICHAEL | Owner ID: | 299682 |
| Mailing Address: | 4494 MONKEY HILL RD OAK HARBOR, WA 98277 | % Ownership: | 100.0000000000% |
| | | Exemptions: | |
Taxes and Assessment Details
Values
| (+) Improvement Homesite Value: | + | $0 | |
| (+) Improvement Non-Homesite Value: | + | $335,624 | |
| (+) Land Homesite Value: | + | $0 | |
| (+) Land Non-Homesite Value: | + | $230,000 | |
| (+) Curr Use (HS): | + | $0 | $0 |
| (+) Curr Use (NHS): | + | $0 | $0 |
| | | -------------------------- | |
| (=) Market Value: | = | $565,624 | |
| (–) Productivity Loss: | – | $0 | |
| | | -------------------------- | |
| (=) Subtotal: | = | $565,624 | |
| (+) Senior Appraised Value: | + | $0 | |
| (+) Non-Senior Appraised Value: | + | $565,624 | |
| | | -------------------------- | |
| (=) Total Appraised Value: | = | $565,624 | |
| (–) Senior Exemption Loss: | – | $0 | |
| (–) Exemption Loss: | – | $0 | |
| | | -------------------------- | |
| (=) Taxable Value: | = | $565,624 | |
Taxing Jurisdiction
| Owner: | GIARDINO TTEE, MICHAEL | | |
| % Ownership: | 100.0000000000% | | |
| Total Value: | $565,624 | | |
| Tax Area: | 110 - APPRAISER-OH Schl Dist, outside OH, improved & 1 acre or less |
| CF | Conservation Futures | 0.0313996660 | $565,624 | $565,624 | $17.76 | | |
| CEM1 | Cemetery #1 | 0.0040018856 | $565,624 | $565,624 | $2.26 | | |
| FIRE2 | Fire & Rescue Dist #2 N Whidbey GEN | 0.5381486274 | $565,624 | $565,624 | $304.39 | | |
| HOBOND | Hospital BOND | 0.1893405597 | $565,624 | $565,624 | $107.10 | | |
| HOGEN | Hospital GEN | 0.3848777722 | $565,624 | $565,624 | $217.70 | | |
| CE | County Current Expense | 0.3674210519 | $565,624 | $565,624 | $207.82 | | |
| CR | County Roads | 0.4614296361 | $565,624 | $565,624 | $261.00 | | |
| ISLANDEMS | Hospital GEN (EMS) | 0.4952018576 | $565,624 | $565,624 | $280.10 | | |
| LIB | Library Sno-Isle GEN | 0.3039084203 | $565,624 | $565,624 | $171.90 | | |
| NWHIDPRMT | P & R N Whidbey GEN | 0.1990272349 | $565,624 | $565,624 | $112.57 | | |
| SCH201MO | School 201 Enrichment | 2.3851112745 | $565,624 | $565,624 | $1,349.08 | | |
| ST | State School | 1.4761226122 | $565,624 | $565,624 | $834.93 | | |
| ST2 | State School Part 2 | 0.7953803475 | $565,624 | $565,624 | $449.89 | | |
| | Total Tax Rate: | 7.6313709459 | | | | | |
| | | | | Taxes w/Current Exemptions: | $4,316.50 | | |
| | | | | Taxes w/o Exemptions: | $4,316.50 | | |
Improvement / Building
| Improvement #1: | RESIDENTIAL | State Code: | Y | 2290.0 sqft | Value: | $335,624 |
| Bathrooms: | 3 | Bedrooms: | 4 | | Ceiling: | DRY WALL SPRAYED | Exterior Wall/Cover: | WOOD SIDING | | Floor Covering: | CARPET/VINYL 80-20 | Floor Structure: | WOOD W/SUBFLOOR | | Foundation: | CONCRETE | Heating: | BASEBOARD ELECTRIC | | Interior Finish: | DRYWALL PAINT | Plumbing Fixture Cnt: | 14 | | Roof Slope: | 5" IN 12" | Roof Structure/Cover: | CJ ASPHALT |
|
| | Type | Description | Class CD | Sub Class CD | Year Built | Area |
| | BAS | BASE/MAIN FLOOR | 3 | 0 | 1973 | 1502.5 |
| | BIG | BUILT IN GARAGE | 3 | 0 | 1973 | 627.0 |
| | OWP | OPEN WOOD PORCH W/STEPS | 3 | 0 | 1973 | 74.7 |
| | OWP | OPEN WOOD PORCH W/STEPS | 3 | 0 | 1973 | 406.0 |
| | DWN | DOWNSTAIRS LIVING AREA | 3 | 0 | 1973 | 787.5 |
| | DGR | DETACHED GARAGE | 3 | 0 | 1973 | 1280.0 |
Sketch
Property Image
Land
| 1 | 15 | SQ (12001-21780) | 0.0000 | 0.00 | 0.00 | 0.00 | 1.00 | $230,000 | $0 |
Roll Value History
| 2026 | N/A | N/A | N/A | N/A | N/A |
| 2025 | $335,624 | $230,000 | $0 | $565,624 | $565,624 |
| 2024 | $347,402 | $200,000 | $0 | $547,402 | $547,402 |
| 2023 | $342,723 | $200,000 | $0 | $542,723 | $542,723 |
| 2022 | $314,587 | $200,000 | $0 | $514,587 | $514,587 |
| 2021 | $277,238 | $150,000 | $0 | $427,238 | $427,238 |
| 2020 | $270,435 | $110,000 | $0 | $380,435 | $380,435 |
| 2019 | $206,420 | $150,000 | $0 | $356,420 | $356,420 |
| 2018 | $207,088 | $140,000 | $0 | $347,088 | $347,088 |
| 2017 | $166,017 | $120,000 | $0 | $286,017 | $286,017 |
| 2016 | $168,611 | $110,000 | $0 | $278,611 | $278,611 |
| 2015 | $171,206 | $75,000 | $0 | $246,206 | $246,206 |
| 2014 | $173,798 | $68,000 | $0 | $241,798 | $241,798 |
| 2013 | $176,393 | $68,000 | $0 | $244,393 | $244,393 |
| 2012 | $178,988 | $68,000 | $0 | $246,988 | $246,988 |
| 2011 | $190,194 | $80,000 | $0 | $270,194 | $270,194 |
| 2010 | $205,497 | $80,000 | $0 | $285,497 | $285,497 |
| 2009 | $213,687 | $100,000 | $0 | $313,687 | $313,687 |
| 2008 | $216,774 | $113,000 | $0 | $329,774 | $329,774 |
| 2007 | $219,811 | $95,500 | $0 | $315,311 | $315,311 |
Deed and Sales History
| 1 | 09/03/2025 | QCD | Quit Claim Deed | GIARDINO TTEE, MICHAEL | KERNER, JOHN | | | $0.00 | 65221 | 4592557 |
| 2 | 04/19/2021 | QCD | Quit Claim Deed | GIARDINO, MICHAEL | GIARDINO TTEE, MICHAEL | | | $0.00 | 48562 | 4521078 |
| 3 | 07/22/2013 | TRUSTEED | Trustee's Deed | SIMMONS, GEOFFREY M | GIARDINO, MICHAEL | | | $209,750.00 | 12503 | 4346790 |
| 4 | 03/21/2005 | WD | Warranty Deed | SFJV-2003-1, LLC, | SIMMONS, GEOFFREY M | | | $220,700.00 | 51531 | 4131082 |
| 5 | 07/15/2004 | TRUSTEED | Trustee's Deed | PERRY, JEFFREY L | SFJV-2003-1, LLC, | | | $164,993.00 | 43205 | 4107051 |
| 6 | 08/20/1998 | WD | Warranty Deed | FLOWERS, JAMES L | PERRY, JEFFREY L | | | $163,700.00 | 83451 | 98018024 |
| 7 | 05/01/1993 | WD | Warranty Deed | REGAN, MICHAEL J | FLOWERS, JAMES L | | | $145,000.00 | 31826 | 93009574 |
| 8 | 11/01/1979 | REC | Real Estate Contract | MCKINNEY, F L | REGAN, MICHAEL J | | | $67,000.00 | 95659 | 362299 |
| 9 | 08/01/1979 | REC | Real Estate Contract | OGLE, S G | MCKINNEY, F L | | | $65,000.00 | 93898 | 356983 |
| 10 | 01/01/1900 | OTHER | Other - Misc. Documents | Unknown | OGLE, S G | | | $0.00 | 0 | 0 |
Payout Agreement
| No payout information available.. |