Property
Account |
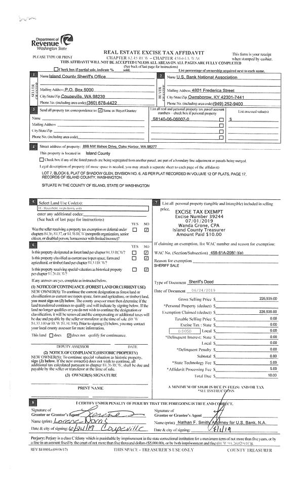
| Property ID: | 386530 | Abbreviated Legal Description: | SHAD GLN 6 LOT 7 BLK 6 |
| Geographic ID: | S8140-06-06007-0 | Agent Code: | |
| Type: | Real | | |
| Tax Area: | 100 - APPRAISER-OH Schl Dist, in OH | Land Use Code | 11 |
| Open Space: | N | DFL | N |
| Historic Property: | N | Remodel Property: | N |
| Multi-Family Redevelopment: | N | | |
| Township: | | Section: | |
| Range: | |
Location |
| Address: | 899 NW ILLAHEE DR OAK HARBOR, WA 98277 | Mapsco: | |
| Neighborhood: | Cycle 1 | Map ID: | 255 |
| Neighborhood CD: | 1 |
Owner |
| Name: | JOHNSON, PATRIELLE R | Owner ID: | 304036 |
| Mailing Address: | MICHAEL D HOWARD 899 NORTHWEST ILLAHEE DR OAK HARBOR, WA 98277 | % Ownership: | 100.0000000000% |
| | | Exemptions: | |
Taxes and Assessment Details
Values
| (+) Improvement Homesite Value: | + | $0 | |
| (+) Improvement Non-Homesite Value: | + | $274,363 | |
| (+) Land Homesite Value: | + | $0 | |
| (+) Land Non-Homesite Value: | + | $190,000 | |
| (+) Curr Use (HS): | + | $0 | $0 |
| (+) Curr Use (NHS): | + | $0 | $0 |
| | | -------------------------- | |
| (=) Market Value: | = | $464,363 | |
| (–) Productivity Loss: | – | $0 | |
| | | -------------------------- | |
| (=) Subtotal: | = | $464,363 | |
| (+) Senior Appraised Value: | + | $0 | |
| (+) Non-Senior Appraised Value: | + | $464,363 | |
| | | -------------------------- | |
| (=) Total Appraised Value: | = | $464,363 | |
| (–) Senior Exemption Loss: | – | $0 | |
| (–) Exemption Loss: | – | $0 | |
| | | -------------------------- | |
| (=) Taxable Value: | = | $464,363 | |
Taxing Jurisdiction
| Owner: | JOHNSON, PATRIELLE R | | |
| % Ownership: | 100.0000000000% | | |
| Total Value: | $464,363 | | |
| Tax Area: | 100 - APPRAISER-OH Schl Dist, in OH |
| CF | Conservation Futures | 0.0313996660 | $464,363 | $464,363 | $14.58 | | |
| CEM1 | Cemetery #1 | 0.0040018856 | $464,363 | $464,363 | $1.86 | | |
| COH | City of Oak Harbor | 2.3090730572 | $464,363 | $464,363 | $1,072.25 | | |
| OAKBOND | City of Oak Harbor BOND | 0.1902260131 | $464,363 | $464,363 | $88.33 | | |
| HOBOND | Hospital BOND | 0.1893405597 | $464,363 | $464,363 | $87.92 | | |
| HOGEN | Hospital GEN | 0.3848777722 | $464,363 | $464,363 | $178.72 | | |
| CE | County Current Expense | 0.3674210519 | $464,363 | $464,363 | $170.62 | | |
| ISLANDEMS | Hospital GEN (EMS) | 0.4952018576 | $464,363 | $464,363 | $229.95 | | |
| LIB | Library Sno-Isle GEN | 0.3039084203 | $464,363 | $464,363 | $141.12 | | |
| NWHIDPRMT | P & R N Whidbey GEN | 0.1990272349 | $464,363 | $464,363 | $92.42 | | |
| SCH201MO | School 201 Enrichment | 2.3851112745 | $464,363 | $464,363 | $1,107.56 | | |
| ST | State School | 1.4761226122 | $464,363 | $464,363 | $685.46 | | |
| ST2 | State School Part 2 | 0.7953803475 | $464,363 | $464,363 | $369.35 | | |
| | Total Tax Rate: | 9.1310917527 | | | | | |
| | | | | Taxes w/Current Exemptions: | $4,240.14 | | |
| | | | | Taxes w/o Exemptions: | $4,240.14 | | |
Improvement / Building
| Improvement #1: | RESIDENTIAL | State Code: | Y | 1682.0 sqft | Value: | $274,363 |
| Bathrooms: | 2.5 | Bedrooms: | 3 | | Ceiling: | DRY WALL SPRAYED | Exterior Wall/Cover: | WOOD SIDING | | Floor Covering: | CERAMIC TILE/HWD 40/60 | Floor Structure: | WOOD W/SUBFLOOR | | Foundation: | CONCRETE | Heating: | FHA ELECTRIC | | Interior Finish: | DRYWALL PAINT | Plumbing Fixture Cnt: | 11 | | Roof Slope: | 4" IN 12" | Roof Structure/Cover: | CJ ASPHALT |
|
| | Type | Description | Class CD | Sub Class CD | Year Built | Area |
| | BAS | BASE/MAIN FLOOR | 3 | 0 | 1976 | 1154.0 |
| | DWN | DOWNSTAIRS LIVING AREA | 3 | 0 | 1976 | 528.0 |
| | OP1 | OPEN PORCH SLAB | 3 | 0 | 1976 | 360.0 |
| | OP2 | OPEN PORCH W/STEPS | 3 | 0 | 1976 | 72.0 |
| | BGR | BASEMENT GARAGE | 3 | 0 | 1976 | 528.0 |
| | OWP | OPEN WOOD PORCH W/STEPS | 3 | 0 | 1976 | 100.0 |
Sketch
Property Image
Land
| 1 | 14 | SQ (08001-12000) | 0.0000 | 0.00 | 0.00 | 0.00 | 1.00 | $190,000 | $0 |
Roll Value History
| 2026 | N/A | N/A | N/A | N/A | N/A |
| 2025 | $274,363 | $190,000 | $0 | $464,363 | $464,363 |
| 2024 | $278,007 | $180,000 | $0 | $458,007 | $458,007 |
| 2023 | $281,655 | $190,000 | $0 | $471,655 | $471,655 |
| 2022 | $208,271 | $180,000 | $0 | $388,271 | $388,271 |
| 2021 | $183,762 | $130,000 | $0 | $313,762 | $313,762 |
| 2020 | $179,346 | $100,000 | $0 | $279,346 | $279,346 |
| 2019 | $130,931 | $150,000 | $0 | $280,931 | $280,931 |
| 2018 | $131,390 | $130,000 | $0 | $261,390 | $261,390 |
| 2017 | $108,510 | $110,000 | $0 | $218,510 | $218,510 |
| 2016 | $110,260 | $90,000 | $0 | $200,260 | $200,260 |
| 2015 | $112,011 | $70,000 | $0 | $182,011 | $182,011 |
| 2014 | $113,761 | $55,000 | $0 | $168,761 | $168,761 |
| 2013 | $115,510 | $55,000 | $0 | $170,510 | $170,510 |
| 2012 | $117,260 | $65,000 | $0 | $182,260 | $182,260 |
| 2011 | $116,425 | $65,000 | $0 | $181,425 | $181,425 |
| 2010 | $127,517 | $65,000 | $0 | $192,517 | $192,517 |
| 2009 | $133,048 | $87,150 | $0 | $220,198 | $220,198 |
| 2008 | $134,815 | $105,000 | $0 | $239,815 | $239,815 |
| 2007 | $136,629 | $105,000 | $0 | $241,629 | $241,629 |
Deed and Sales History
| 1 | 04/25/2022 | WD | Warranty Deed | GREGORY, WILLIAM HARRY | JOHNSON, PATRIELLE R | | | $485,000.00 | 52936 | 4544454 |
| 2 | 01/30/2020 | WD | Warranty Deed | SECRETARY OF VETERANS AFFAIRS | GREGORY, WILLIAM HARRY | | | $0.00 | 41987 | 4480618 |
| 3 | 07/02/2019 | WD | Warranty Deed | US BANK NATIONAL ASSOCIATION | SECRETARY OF VETERANS AFFAIRS | | | $0.00 | 39359 | 4467014 |
| 4 | 06/24/2019 | SHERIFFD | Sheriff Deed | CALDWELL, THOMAS A | US BANK NATIONAL ASSOCIATION | | | $0.00 | 39244 | 4458718 |
| 5 | 05/08/2007 | WD | Warranty Deed | GIBBONS, THOMAS L | CALDWELL, THOMAS A | | | $275,000.00 | 71566 | 4201790 |
| 6 | 07/01/1991 | WD | Warranty Deed | CAVANAUGH, RICHARD J | GIBBONS, THOMAS L | | | $95,000.00 | 12656 | 91011288 |
| 7 | 01/01/1900 | OTHER | Other - Misc. Documents | Unknown | CAVANAUGH, RICHARD J | | | $0.00 | 0 | 0 |
Payout Agreement
| No payout information available.. |