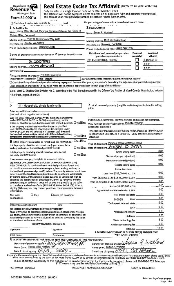
Property
Account |
| Property ID: | 386585 | Abbreviated Legal Description: | SHAD GLN 7 LOT 8 BLK 2 |
| Geographic ID: | S8140-07-02008-0 | Agent Code: | |
| Type: | Real | | |
| Tax Area: | 100 - APPRAISER-OH Schl Dist, in OH | Land Use Code | 11 |
| Open Space: | N | DFL | N |
| Historic Property: | N | Remodel Property: | N |
| Multi-Family Redevelopment: | N | | |
| Township: | | Section: | |
| Range: | |
Location |
| Address: | 766 NW HYAK DR OAK HARBOR, WA 98277 | Mapsco: | |
| Neighborhood: | Cycle 1 | Map ID: | 255 |
| Neighborhood CD: | 1 |
Owner |
| Name: | WOOLARD, SUSAN A | Owner ID: | 309977 |
| Mailing Address: | 1913 MONTECITO RD RAMONA, CA 92065 | % Ownership: | 100.0000000000% |
| | | Exemptions: | |
Taxes and Assessment Details
Values
| (+) Improvement Homesite Value: | + | $0 | |
| (+) Improvement Non-Homesite Value: | + | $252,043 | |
| (+) Land Homesite Value: | + | $0 | |
| (+) Land Non-Homesite Value: | + | $190,000 | |
| (+) Curr Use (HS): | + | $0 | $0 |
| (+) Curr Use (NHS): | + | $0 | $0 |
| | | -------------------------- | |
| (=) Market Value: | = | $442,043 | |
| (–) Productivity Loss: | – | $0 | |
| | | -------------------------- | |
| (=) Subtotal: | = | $442,043 | |
| (+) Senior Appraised Value: | + | $0 | |
| (+) Non-Senior Appraised Value: | + | $442,043 | |
| | | -------------------------- | |
| (=) Total Appraised Value: | = | $442,043 | |
| (–) Senior Exemption Loss: | – | $0 | |
| (–) Exemption Loss: | – | $0 | |
| | | -------------------------- | |
| (=) Taxable Value: | = | $442,043 | |
Taxing Jurisdiction
| Owner: | WOOLARD, SUSAN A | | |
| % Ownership: | 100.0000000000% | | |
| Total Value: | $442,043 | | |
| Tax Area: | 100 - APPRAISER-OH Schl Dist, in OH |
| CF | Conservation Futures | 0.0313996660 | $442,043 | $442,043 | $13.88 | | |
| CEM1 | Cemetery #1 | 0.0040018856 | $442,043 | $442,043 | $1.77 | | |
| COH | City of Oak Harbor | 2.3090730572 | $442,043 | $442,043 | $1,020.71 | | |
| OAKBOND | City of Oak Harbor BOND | 0.1902260131 | $442,043 | $442,043 | $84.09 | | |
| HOBOND | Hospital BOND | 0.1893405597 | $442,043 | $442,043 | $83.70 | | |
| HOGEN | Hospital GEN | 0.3848777722 | $442,043 | $442,043 | $170.13 | | |
| CE | County Current Expense | 0.3674210519 | $442,043 | $442,043 | $162.42 | | |
| ISLANDEMS | Hospital GEN (EMS) | 0.4952018576 | $442,043 | $442,043 | $218.90 | | |
| LIB | Library Sno-Isle GEN | 0.3039084203 | $442,043 | $442,043 | $134.34 | | |
| NWHIDPRMT | P & R N Whidbey GEN | 0.1990272349 | $442,043 | $442,043 | $87.98 | | |
| SCH201MO | School 201 Enrichment | 2.3851112745 | $442,043 | $442,043 | $1,054.32 | | |
| ST | State School | 1.4761226122 | $442,043 | $442,043 | $652.51 | | |
| ST2 | State School Part 2 | 0.7953803475 | $442,043 | $442,043 | $351.59 | | |
| | Total Tax Rate: | 9.1310917527 | | | | | |
| | | | | Taxes w/Current Exemptions: | $4,036.34 | | |
| | | | | Taxes w/o Exemptions: | $4,036.34 | | |
Improvement / Building
| Improvement #1: | RESIDENTIAL | State Code: | Y | 1616.0 sqft | Value: | $252,043 |
| Bathrooms: | 2 | Bedrooms: | 0 | | Ceiling: | DRY WALL SPRAYED | Exterior Wall/Cover: | PLY/HARDBOARD T-111 | | Floor Covering: | CARPET/VINYL 80-20 | Floor Structure: | WOOD W/SUBFLOOR | | Foundation: | CONCRETE | Heating: | FHA GAS | | Interior Finish: | DRYWALL PAINT | Plumbing Fixture Cnt: | 9 | | Roof Slope: | 4" IN 12" | Roof Structure/Cover: | CJ ASPHALT |
|
| | Type | Description | Class CD | Sub Class CD | Year Built | Area |
| | BAS | BASE/MAIN FLOOR | 3 | 0 | 1976 | 1616.0 |
| | OP1 | OPEN PORCH SLAB | 3 | 0 | 1976 | 180.0 |
| | OP3 | OPEN PORCH W/ROOF | 3 | 0 | 1976 | 32.0 |
| | AGR | ATTACHED GARAGE | 3 | 0 | 1976 | 336.0 |
Sketch
Property Image
Land
| 1 | 14 | SQ (08001-12000) | 0.0000 | 0.00 | 0.00 | 0.00 | 1.00 | $190,000 | $0 |
Roll Value History
| 2026 | N/A | N/A | N/A | N/A | N/A |
| 2025 | $252,043 | $190,000 | $0 | $442,043 | $442,043 |
| 2024 | $255,393 | $180,000 | $0 | $435,393 | $435,393 |
| 2023 | $252,043 | $190,000 | $0 | $442,043 | $442,043 |
| 2022 | $231,263 | $180,000 | $0 | $411,263 | $411,263 |
| 2021 | $203,743 | $130,000 | $0 | $333,743 | $333,743 |
| 2020 | $198,755 | $100,000 | $0 | $298,755 | $246,013 |
| 2019 | $145,553 | $150,000 | $0 | $295,553 | $246,013 |
| 2018 | $146,012 | $130,000 | $0 | $276,012 | $246,014 |
| 2017 | $114,429 | $110,000 | $0 | $224,429 | $224,429 |
| 2016 | $116,219 | $90,000 | $0 | $206,219 | $136,219 |
| 2015 | $118,006 | $70,000 | $0 | $188,006 | $122,204 |
| 2014 | $119,793 | $55,000 | $0 | $174,793 | $174,793 |
| 2013 | $121,582 | $55,000 | $0 | $176,582 | $176,582 |
| 2012 | $123,370 | $65,000 | $0 | $188,370 | $188,370 |
| 2011 | $122,490 | $65,000 | $0 | $187,490 | $187,490 |
| 2010 | $131,800 | $65,000 | $0 | $196,800 | $196,800 |
| 2009 | $137,501 | $87,150 | $0 | $224,651 | $224,651 |
| 2008 | $139,257 | $105,000 | $0 | $244,257 | $244,257 |
| 2007 | $141,013 | $105,000 | $0 | $246,013 | $246,013 |
Deed and Sales History
| 1 | 08/12/2023 | PRD | Personal Representatives Deed | MILLER, CHIEKO | WOOLARD, SUSAN A | | | $0.00 | 57896 | 4564405 |
| 2 | 05/12/2008 | PRD | Personal Representatives Deed | MILLER, HILTON D | MILLER, CHIEKO D | | | $0.00 | 81213 | 4228568 |
| 3 | 01/01/1900 | OTHER | Other - Misc. Documents | Unknown | MILLER, HILTON D | | | $0.00 | 0 | 0 |
Payout Agreement
| No payout information available.. |