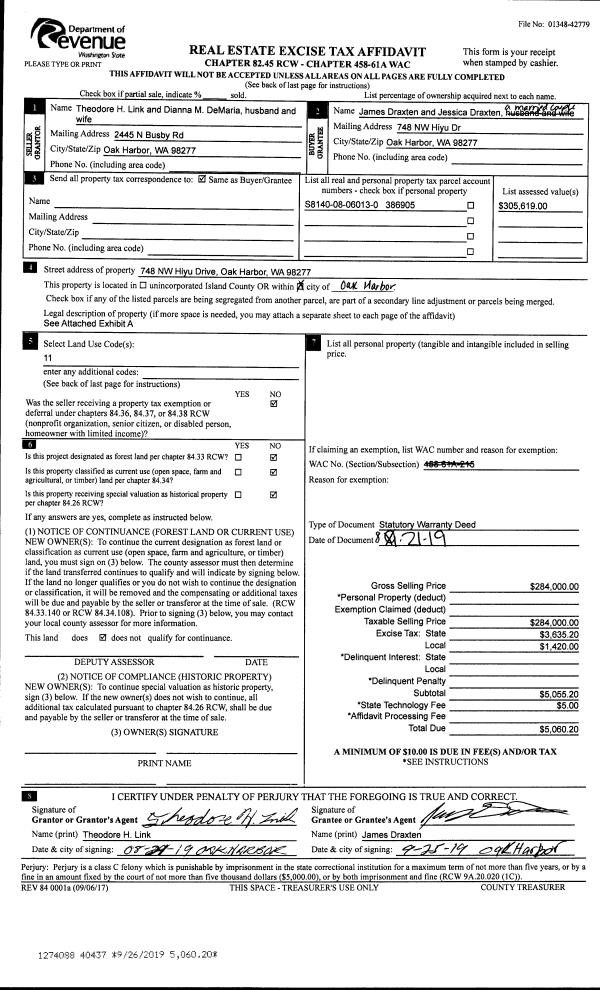
Property
Account |
| Property ID: | 386905 | Abbreviated Legal Description: | SHAD GLN 8 LOT 13 BLK 6 |
| Geographic ID: | S8140-08-06013-0 | Agent Code: | |
| Type: | Real | | |
| Tax Area: | 100 - APPRAISER-OH Schl Dist, in OH | Land Use Code | 11 |
| Open Space: | N | DFL | N |
| Historic Property: | N | Remodel Property: | N |
| Multi-Family Redevelopment: | N | | |
| Township: | | Section: | |
| Range: | |
Location |
| Address: | 748 NW HIYU DR OAK HARBOR, WA 98277 | Mapsco: | |
| Neighborhood: | Cycle 1 | Map ID: | 255 |
| Neighborhood CD: | 1 |
Owner |
| Name: | DRAXTEN, JAMES | Owner ID: | 291988 |
| Mailing Address: | JESSICA DRAXTEN 748 NW HIYU DR OAK HARBOR, WA 98277 | % Ownership: | 100.0000000000% |
| | | Exemptions: | |
Taxes and Assessment Details
Values
| (+) Improvement Homesite Value: | + | $0 | |
| (+) Improvement Non-Homesite Value: | + | $267,643 | |
| (+) Land Homesite Value: | + | $0 | |
| (+) Land Non-Homesite Value: | + | $190,000 | |
| (+) Curr Use (HS): | + | $0 | $0 |
| (+) Curr Use (NHS): | + | $0 | $0 |
| | | -------------------------- | |
| (=) Market Value: | = | $457,643 | |
| (–) Productivity Loss: | – | $0 | |
| | | -------------------------- | |
| (=) Subtotal: | = | $457,643 | |
| (+) Senior Appraised Value: | + | $0 | |
| (+) Non-Senior Appraised Value: | + | $457,643 | |
| | | -------------------------- | |
| (=) Total Appraised Value: | = | $457,643 | |
| (–) Senior Exemption Loss: | – | $0 | |
| (–) Exemption Loss: | – | $0 | |
| | | -------------------------- | |
| (=) Taxable Value: | = | $457,643 | |
Taxing Jurisdiction
| Owner: | DRAXTEN, JAMES | | |
| % Ownership: | 100.0000000000% | | |
| Total Value: | $457,643 | | |
| Tax Area: | 100 - APPRAISER-OH Schl Dist, in OH |
| CF | Conservation Futures | 0.0313996660 | $457,643 | $457,643 | $14.37 | | |
| CEM1 | Cemetery #1 | 0.0040018856 | $457,643 | $457,643 | $1.83 | | |
| COH | City of Oak Harbor | 2.3090730572 | $457,643 | $457,643 | $1,056.73 | | |
| OAKBOND | City of Oak Harbor BOND | 0.1902260131 | $457,643 | $457,643 | $87.06 | | |
| HOBOND | Hospital BOND | 0.1893405597 | $457,643 | $457,643 | $86.65 | | |
| HOGEN | Hospital GEN | 0.3848777722 | $457,643 | $457,643 | $176.14 | | |
| CE | County Current Expense | 0.3674210519 | $457,643 | $457,643 | $168.15 | | |
| ISLANDEMS | Hospital GEN (EMS) | 0.4952018576 | $457,643 | $457,643 | $226.63 | | |
| LIB | Library Sno-Isle GEN | 0.3039084203 | $457,643 | $457,643 | $139.08 | | |
| NWHIDPRMT | P & R N Whidbey GEN | 0.1990272349 | $457,643 | $457,643 | $91.08 | | |
| SCH201MO | School 201 Enrichment | 2.3851112745 | $457,643 | $457,643 | $1,091.53 | | |
| ST | State School | 1.4761226122 | $457,643 | $457,643 | $675.54 | | |
| ST2 | State School Part 2 | 0.7953803475 | $457,643 | $457,643 | $364.00 | | |
| | Total Tax Rate: | 9.1310917527 | | | | | |
| | | | | Taxes w/Current Exemptions: | $4,178.79 | | |
| | | | | Taxes w/o Exemptions: | $4,178.79 | | |
Improvement / Building
| Improvement #1: | RESIDENTIAL | State Code: | Y | 1564.0 sqft | Value: | $267,643 |
| Bathrooms: | 2.5 | Bedrooms: | 3 | | Ceiling: | DRYWALL PAINTED | Exterior Wall/Cover: | WOOD SIDING | | Floor Covering: | CERAMIC TILE/CPT 40-60 | Floor Structure: | WOOD W/SUBFLOOR | | Foundation: | CONCRETE | Heating: | BASEBOARD ELECTRIC | | Interior Finish: | DRYWALL PAINT | Plumbing Fixture Cnt: | 11 | | Roof Slope: | 4" IN 12" | Roof Structure/Cover: | CJ ASPHALT |
|
| | Type | Description | Class CD | Sub Class CD | Year Built | Area |
| | BAS | BASE/MAIN FLOOR | 3 | 0 | 1984 | 948.0 |
| | AGR | ATTACHED GARAGE | 3 | 0 | 1984 | 420.0 |
| | UPS | UPPER STORY | 3 | 0 | 1984 | 616.0 |
| | OWP | OPEN WOOD PORCH W/STEPS | 3 | 0 | 1984 | 300.0 |
| | OWP | OPEN WOOD PORCH W/STEPS | 3 | 0 | 1984 | 120.0 |
| | OWP | OPEN WOOD PORCH W/STEPS | 3 | 0 | 1984 | 60.0 |
Sketch
Property Image
Land
| 1 | 14 | SQ (08001-12000) | 0.0000 | 0.00 | 0.00 | 0.00 | 1.00 | $190,000 | $0 |
Roll Value History
| 2026 | N/A | N/A | N/A | N/A | N/A |
| 2025 | $267,643 | $190,000 | $0 | $457,643 | $457,643 |
| 2024 | $276,505 | $180,000 | $0 | $456,505 | $456,505 |
| 2023 | $272,971 | $190,000 | $0 | $462,971 | $462,971 |
| 2022 | $250,378 | $180,000 | $0 | $430,378 | $430,378 |
| 2021 | $220,498 | $130,000 | $0 | $350,498 | $350,498 |
| 2020 | $214,769 | $100,000 | $0 | $314,769 | $314,769 |
| 2019 | $155,619 | $150,000 | $0 | $305,619 | $305,619 |
| 2018 | $154,028 | $130,000 | $0 | $284,028 | $284,028 |
| 2017 | $137,939 | $110,000 | $0 | $247,939 | $247,939 |
| 2016 | $139,853 | $90,000 | $0 | $229,853 | $229,853 |
| 2015 | $141,770 | $70,000 | $0 | $211,770 | $211,770 |
| 2014 | $143,688 | $55,000 | $0 | $198,688 | $198,688 |
| 2013 | $145,600 | $55,000 | $0 | $200,600 | $200,600 |
| 2012 | $147,518 | $65,000 | $0 | $212,518 | $212,518 |
| 2011 | $149,685 | $65,000 | $0 | $214,685 | $214,685 |
| 2010 | $158,704 | $65,000 | $0 | $223,704 | $223,704 |
| 2009 | $165,478 | $87,150 | $0 | $252,628 | $252,628 |
| 2008 | $167,521 | $105,000 | $0 | $272,521 | $272,521 |
| 2007 | $169,575 | $105,000 | $0 | $274,575 | $274,575 |
Deed and Sales History
| 1 | 08/21/2019 | WD | Warranty Deed | LINK, THEODORE H | DRAXTEN, JAMES | | | $284,000.00 | 40437 | 4472187 |
| 2 | 08/21/2017 | WD | Warranty Deed | GULIZIA, STACIE M | LINK, THEODORE H | | | $281,500.00 | 30777 | 4428832 |
| 3 | 08/19/2005 | WD | Warranty Deed | ALDANA, REYNALDO S | GULIZIA, STACIE M | | | $275,000.00 | 54132 | 4145028 |
| 4 | 06/01/1984 | WD | Warranty Deed | V.E.C., CORPORATION | ALDANA, REYNALDO S | | | $73,000.00 | 41689 | 425781 |
| 5 | 02/01/1984 | WD | Warranty Deed | HOBDAY, WILLIAM J | V.E.C., CORPORATION | | | $14,500.00 | 40503 | 421506 |
| 6 | 01/01/1983 | QCD | Quit Claim Deed | HOBDAY, LEROY C | HOBDAY, WILLIAM J | | | $0.00 | 30084 | 404690 |
| 7 | 01/01/1900 | OTHER | Other - Misc. Documents | Unknown | HOBDAY, LEROY C | | | $0.00 | 0 | 0 |
Payout Agreement
| No payout information available.. |