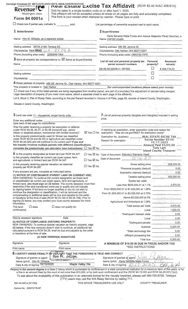
Property
Account |
| Property ID: | 387352 | Abbreviated Legal Description: | SHADY OAKS LOT 6 BLK 2 |
| Geographic ID: | S8145-00-02006-0 | Agent Code: | |
| Type: | Real | | |
| Tax Area: | 100 - APPRAISER-OH Schl Dist, in OH | Land Use Code | 11 |
| Open Space: | N | DFL | N |
| Historic Property: | N | Remodel Property: | N |
| Multi-Family Redevelopment: | N | | |
| Township: | | Section: | |
| Range: | |
Location |
| Address: | 485 SE JEROME ST OAK HARBOR, WA 98277 | Mapsco: | |
| Neighborhood: | Cycle 1 | Map ID: | 89 |
| Neighborhood CD: | 1 |
Owner |
| Name: | GILLISPIE, HIRO M | Owner ID: | 304057 |
| Mailing Address: | 485 SE JEROME ST OAK HARBOR, WA 98277 | % Ownership: | 100.0000000000% |
| | | Exemptions: | |
Taxes and Assessment Details
Values
| (+) Improvement Homesite Value: | + | $0 | |
| (+) Improvement Non-Homesite Value: | + | $168,716 | |
| (+) Land Homesite Value: | + | $0 | |
| (+) Land Non-Homesite Value: | + | $180,000 | |
| (+) Curr Use (HS): | + | $0 | $0 |
| (+) Curr Use (NHS): | + | $0 | $0 |
| | | -------------------------- | |
| (=) Market Value: | = | $348,716 | |
| (–) Productivity Loss: | – | $0 | |
| | | -------------------------- | |
| (=) Subtotal: | = | $348,716 | |
| (+) Senior Appraised Value: | + | $0 | |
| (+) Non-Senior Appraised Value: | + | $348,716 | |
| | | -------------------------- | |
| (=) Total Appraised Value: | = | $348,716 | |
| (–) Senior Exemption Loss: | – | $0 | |
| (–) Exemption Loss: | – | $0 | |
| | | -------------------------- | |
| (=) Taxable Value: | = | $348,716 | |
Taxing Jurisdiction
| Owner: | GILLISPIE, HIRO M | | |
| % Ownership: | 100.0000000000% | | |
| Total Value: | $348,716 | | |
| Tax Area: | 100 - APPRAISER-OH Schl Dist, in OH |
| CF | Conservation Futures | 0.0313996660 | $348,716 | $348,716 | $10.95 | | |
| CEM1 | Cemetery #1 | 0.0040018856 | $348,716 | $348,716 | $1.40 | | |
| COH | City of Oak Harbor | 2.3090730572 | $348,716 | $348,716 | $805.21 | | |
| OAKBOND | City of Oak Harbor BOND | 0.1902260131 | $348,716 | $348,716 | $66.33 | | |
| HOBOND | Hospital BOND | 0.1893405597 | $348,716 | $348,716 | $66.03 | | |
| HOGEN | Hospital GEN | 0.3848777722 | $348,716 | $348,716 | $134.21 | | |
| CE | County Current Expense | 0.3674210519 | $348,716 | $348,716 | $128.13 | | |
| ISLANDEMS | Hospital GEN (EMS) | 0.4952018576 | $348,716 | $348,716 | $172.68 | | |
| LIB | Library Sno-Isle GEN | 0.3039084203 | $348,716 | $348,716 | $105.98 | | |
| NWHIDPRMT | P & R N Whidbey GEN | 0.1990272349 | $348,716 | $348,716 | $69.40 | | |
| SCH201MO | School 201 Enrichment | 2.3851112745 | $348,716 | $348,716 | $831.73 | | |
| ST | State School | 1.4761226122 | $348,716 | $348,716 | $514.75 | | |
| ST2 | State School Part 2 | 0.7953803475 | $348,716 | $348,716 | $277.36 | | |
| | Total Tax Rate: | 9.1310917527 | | | | | |
| | | | | Taxes w/Current Exemptions: | $3,184.16 | | |
| | | | | Taxes w/o Exemptions: | $3,184.16 | | |
Improvement / Building
| Improvement #1: | RESIDENTIAL | State Code: | Y | 912.0 sqft | Value: | $168,716 |
| Bathrooms: | 1 | Bedrooms: | 3 | | Ceiling: | ACOUSTIC FURRED | Exterior Wall/Cover: | PLY/HARDBOARD T-111 | | Floor Covering: | CARPET/VINYL 80-20 | Floor Structure: | WOOD W/SUBFLOOR | | Foundation: | CONCRETE | Heating: | FLOOR/WALL GAS | | Interior Finish: | DRYWALL PAINT | Plumbing Fixture Cnt: | 6 | | Roof Slope: | 4" IN 12" | Roof Structure/Cover: | CJ ASPHALT |
|
| | Type | Description | Class CD | Sub Class CD | Year Built | Area |
| | BAS | BASE/MAIN FLOOR | 3 | 0 | 1946 | 912.0 |
| | ENP | ENCLOSED PORCH | 3 | 0 | 1946 | 84.0 |
| | DGR | DETACHED GARAGE | 3 | 0 | 1946 | 748.0 |
| | OP3 | OPEN PORCH W/ROOF | 3 | 0 | 1946 | 63.0 |
Sketch
Property Image
Land
| 1 | 14 | SQ (08001-12000) | 0.0000 | 0.00 | 0.00 | 0.00 | 1.00 | $180,000 | $0 |
Roll Value History
| 2026 | N/A | N/A | N/A | N/A | N/A |
| 2025 | $168,716 | $180,000 | $0 | $348,716 | $348,716 |
| 2024 | $171,117 | $170,000 | $0 | $341,117 | $22,954 |
| 2023 | $167,208 | $170,000 | $0 | $337,208 | $22,954 |
| 2022 | $153,591 | $160,000 | $0 | $313,591 | $22,954 |
| 2021 | $135,463 | $125,000 | $0 | $260,463 | $22,954 |
| 2020 | $132,144 | $100,000 | $0 | $232,144 | $22,954 |
| 2019 | $93,390 | $140,000 | $0 | $233,390 | $22,954 |
| 2018 | $93,708 | $125,000 | $0 | $218,708 | $22,954 |
| 2017 | $67,223 | $110,000 | $0 | $177,223 | $22,954 |
| 2016 | $68,515 | $90,000 | $0 | $158,515 | $22,954 |
| 2015 | $69,809 | $70,000 | $0 | $139,809 | $22,954 |
| 2014 | $71,101 | $55,000 | $0 | $126,101 | $32,954 |
| 2013 | $72,394 | $55,000 | $0 | $127,394 | $32,954 |
| 2012 | $73,687 | $60,000 | $0 | $133,687 | $32,954 |
| 2011 | $69,792 | $68,938 | $0 | $138,730 | $22,954 |
| 2010 | $79,081 | $68,938 | $0 | $148,019 | $22,954 |
| 2009 | $82,584 | $96,947 | $0 | $179,531 | $22,953 |
| 2008 | $83,732 | $120,493 | $0 | $204,225 | $22,953 |
| 2007 | $84,283 | $121,286 | $0 | $205,569 | $22,953 |
Deed and Sales History
| 1 | 10/16/2025 | WD | Warranty Deed | GILLISPIE, HIRO M | MEJIA FUNES, KARLA SENAIDA | | | $325,000.00 | 65191 | 4592383 |
| 2 | 06/08/2022 | CPADC | Comm Prop Agmnt & Death Cert | GILLISPIE, LANCE L | GILLISPIE, HIRO M | | | | 89286 | |
| 3 | 03/01/1986 | DECREE | Divorce Decree/Legal Separation | GILLISPIE, LANCE L | GILLISPIE, LANCE L | | | $0.00 | 61194 | 86005559 |
| 4 | 10/01/1980 | WD | Warranty Deed | NIENHUIS, PHILIP J | GILLISPIE, LANCE L | | | $43,500.00 | 3792 | 376218 |
| 5 | 01/01/1900 | OTHER | Other - Misc. Documents | Unknown | NIENHUIS, PHILIP J | | | $0.00 | 0 | 0 |
Payout Agreement
| No payout information available.. |