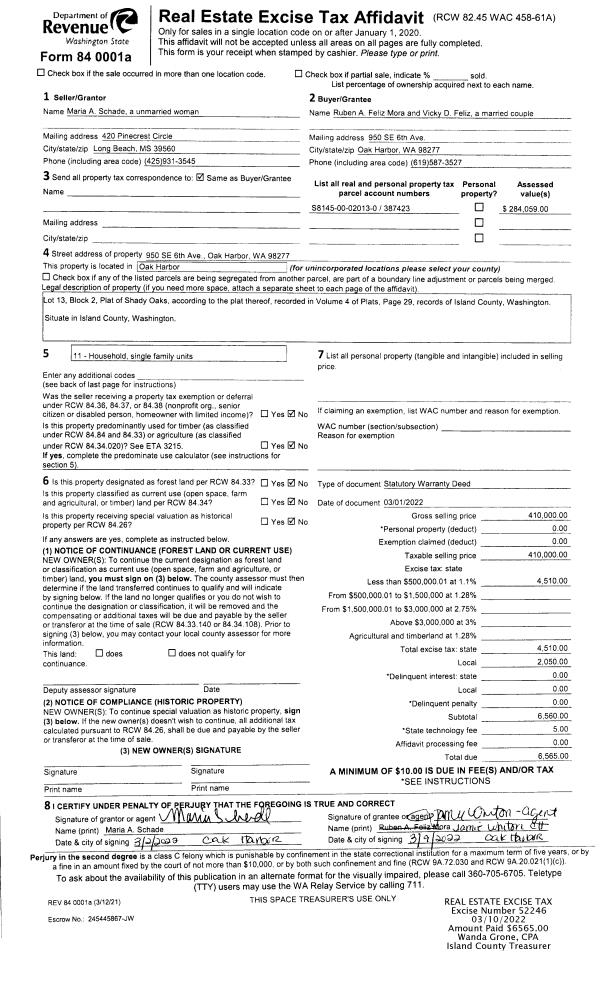
Property
Account |
| Property ID: | 387423 | Abbreviated Legal Description: | SHADY OAKS LOT 13 BLK 2 |
| Geographic ID: | S8145-00-02013-0 | Agent Code: | |
| Type: | Real | | |
| Tax Area: | 100 - APPRAISER-OH Schl Dist, in OH | Land Use Code | 11 |
| Open Space: | N | DFL | N |
| Historic Property: | N | Remodel Property: | N |
| Multi-Family Redevelopment: | N | | |
| Township: | | Section: | |
| Range: | |
Location |
| Address: | 950 SE 6TH AVE OAK HARBOR, WA 98277 | Mapsco: | |
| Neighborhood: | Cycle 1 | Map ID: | 89 |
| Neighborhood CD: | 1 |
Owner |
| Name: | FELIZ MORA, RUBEN A | Owner ID: | 303399 |
| Mailing Address: | VICKY D FELIZ 30568 THUNDERBIRD DR WESLEY CHAPEL, FL 33545 | % Ownership: | 100.0000000000% |
| | | Exemptions: | |
Taxes and Assessment Details
Values
| (+) Improvement Homesite Value: | + | $0 | |
| (+) Improvement Non-Homesite Value: | + | $223,680 | |
| (+) Land Homesite Value: | + | $0 | |
| (+) Land Non-Homesite Value: | + | $180,000 | |
| (+) Curr Use (HS): | + | $0 | $0 |
| (+) Curr Use (NHS): | + | $0 | $0 |
| | | -------------------------- | |
| (=) Market Value: | = | $403,680 | |
| (–) Productivity Loss: | – | $0 | |
| | | -------------------------- | |
| (=) Subtotal: | = | $403,680 | |
| (+) Senior Appraised Value: | + | $0 | |
| (+) Non-Senior Appraised Value: | + | $403,680 | |
| | | -------------------------- | |
| (=) Total Appraised Value: | = | $403,680 | |
| (–) Senior Exemption Loss: | – | $0 | |
| (–) Exemption Loss: | – | $0 | |
| | | -------------------------- | |
| (=) Taxable Value: | = | $403,680 | |
Taxing Jurisdiction
| Owner: | FELIZ MORA, RUBEN A | | |
| % Ownership: | 100.0000000000% | | |
| Total Value: | $403,680 | | |
| Tax Area: | 100 - APPRAISER-OH Schl Dist, in OH |
| CF | Conservation Futures | 0.0313996660 | $403,680 | $403,680 | $12.68 | | |
| CEM1 | Cemetery #1 | 0.0040018856 | $403,680 | $403,680 | $1.62 | | |
| COH | City of Oak Harbor | 2.3090730572 | $403,680 | $403,680 | $932.13 | | |
| OAKBOND | City of Oak Harbor BOND | 0.1902260131 | $403,680 | $403,680 | $76.79 | | |
| HOBOND | Hospital BOND | 0.1893405597 | $403,680 | $403,680 | $76.43 | | |
| HOGEN | Hospital GEN | 0.3848777722 | $403,680 | $403,680 | $155.37 | | |
| CE | County Current Expense | 0.3674210519 | $403,680 | $403,680 | $148.32 | | |
| ISLANDEMS | Hospital GEN (EMS) | 0.4952018576 | $403,680 | $403,680 | $199.90 | | |
| LIB | Library Sno-Isle GEN | 0.3039084203 | $403,680 | $403,680 | $122.68 | | |
| NWHIDPRMT | P & R N Whidbey GEN | 0.1990272349 | $403,680 | $403,680 | $80.34 | | |
| SCH201MO | School 201 Enrichment | 2.3851112745 | $403,680 | $403,680 | $962.82 | | |
| ST | State School | 1.4761226122 | $403,680 | $403,680 | $595.88 | | |
| ST2 | State School Part 2 | 0.7953803475 | $403,680 | $403,680 | $321.08 | | |
| | Total Tax Rate: | 9.1310917527 | | | | | |
| | | | | Taxes w/Current Exemptions: | $3,686.04 | | |
| | | | | Taxes w/o Exemptions: | $3,686.04 | | |
Improvement / Building
| Improvement #1: | RESIDENTIAL | State Code: | Y | 1174.0 sqft | Value: | $223,680 |
| Bathrooms: | 1.5 | Bedrooms: | 3 | | Ceiling: | DRYWALL PAINTED | Exterior Wall/Cover: | VINYL | | Floor Covering: | HARDWOOD 100% | Floor Structure: | WOOD W/SUBFLOOR | | Foundation: | CONCRETE BLOCKS | Heating: | FHA GAS | | Interior Finish: | DRYWALL PAINT | Plumbing Fixture Cnt: | 8 | | Roof Slope: | 4" IN 12" | Roof Structure/Cover: | CJ ASPHALT |
|
| | Type | Description | Class CD | Sub Class CD | Year Built | Area |
| | BAS | BASE/MAIN FLOOR | 3 | 0 | 1958 | 1174.0 |
| | AGR | ATTACHED GARAGE | 3 | 0 | 1958 | 360.0 |
Sketch
Property Image
Land
| 1 | 14 | SQ (08001-12000) | 0.0000 | 0.00 | 0.00 | 0.00 | 1.00 | $180,000 | $0 |
Roll Value History
| 2026 | N/A | N/A | N/A | N/A | N/A |
| 2025 | $223,680 | $180,000 | $0 | $403,680 | $403,680 |
| 2024 | $226,576 | $170,000 | $0 | $396,576 | $396,576 |
| 2023 | $218,744 | $170,000 | $0 | $388,744 | $388,744 |
| 2022 | $180,548 | $160,000 | $0 | $340,548 | $340,548 |
| 2021 | $159,059 | $125,000 | $0 | $284,059 | $284,059 |
| 2020 | $154,965 | $100,000 | $0 | $254,965 | $254,965 |
| 2019 | $109,539 | $140,000 | $0 | $249,539 | $249,539 |
| 2018 | $109,884 | $125,000 | $0 | $234,884 | $234,884 |
| 2017 | $81,109 | $110,000 | $0 | $191,109 | $191,109 |
| 2016 | $82,532 | $90,000 | $0 | $172,532 | $172,532 |
| 2015 | $83,954 | $70,000 | $0 | $153,954 | $153,954 |
| 2014 | $85,377 | $55,000 | $0 | $140,377 | $140,377 |
| 2013 | $86,801 | $55,000 | $0 | $141,801 | $141,801 |
| 2012 | $88,225 | $60,000 | $0 | $148,225 | $148,225 |
| 2011 | $77,680 | $68,938 | $0 | $146,618 | $146,618 |
| 2010 | $87,087 | $68,938 | $0 | $156,025 | $156,025 |
| 2009 | $91,162 | $97,000 | $0 | $188,162 | $188,162 |
| 2008 | $92,604 | $120,350 | $0 | $212,954 | $212,954 |
| 2007 | $94,046 | $120,350 | $0 | $214,396 | $214,396 |
Deed and Sales History
| 1 | 03/01/2022 | WD | Warranty Deed | MCCULLEY, MARIA A | FELIZ MORA, RUBEN A | | | $410,000.00 | 52246 | 4541267 |
| 2 | 02/24/2005 | WD | Warranty Deed | SHAFER, VERLA M | MCCULLEY, MARIA A | | | $165,000.00 | 50855 | 4127269 |
| 3 | 02/17/2005 | ESTSEPPROP | Establish Separate Property | MCCULLEY, MARIA A | MCCULLEY, MARIA A | | | $0.00 | 50856 | 4127271 |
| 4 | 03/01/1997 | OTHER | Other - Misc. Documents | SHAFER, CHARLES L | SHAFER, VERLA M | | | $0.00 | 67257 | 89012333 |
| 5 | 01/01/1900 | OTHER | Other - Misc. Documents | Unknown | SHAFER, CHARLES L | | | $0.00 | 0 | 0 |
Payout Agreement
| No payout information available.. |