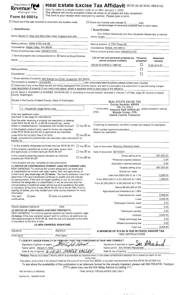
Property
Account |
| Property ID: | 388128 | Abbreviated Legal Description: | SHANG LA SH 2 LOT 20 BLK 3 |
| Geographic ID: | S8150-02-03020-0 | Agent Code: | |
| Type: | Real | | |
| Tax Area: | 310 - APPRAISER-Cpvl Schl Dist, outside Cpvl, improved & 1 acre or less | Land Use Code | 11 |
| Open Space: | N | DFL | N |
| Historic Property: | N | Remodel Property: | N |
| Multi-Family Redevelopment: | N | | |
| Township: | | Section: | |
| Range: | |
Location |
| Address: | 820 SHANGRI-LA CIR COUPEVILLE, WA 98239 | Mapsco: | |
| Neighborhood: | Cycle 2 | Map ID: | 466 |
| Neighborhood CD: | 2 |
Owner |
| Name: | MACDONALD, ERIC WILLIAM | Owner ID: | 299781 |
| Mailing Address: | AMY ZEUTSCHEL 2 170TH PL SE BOTHELL, WA 98012 | % Ownership: | 100.0000000000% |
| | | Exemptions: | |
Taxes and Assessment Details
Values
| (+) Improvement Homesite Value: | + | $0 | |
| (+) Improvement Non-Homesite Value: | + | $337,787 | |
| (+) Land Homesite Value: | + | $0 | |
| (+) Land Non-Homesite Value: | + | $220,000 | |
| (+) Curr Use (HS): | + | $0 | $0 |
| (+) Curr Use (NHS): | + | $0 | $0 |
| | | -------------------------- | |
| (=) Market Value: | = | $557,787 | |
| (–) Productivity Loss: | – | $0 | |
| | | -------------------------- | |
| (=) Subtotal: | = | $557,787 | |
| (+) Senior Appraised Value: | + | $0 | |
| (+) Non-Senior Appraised Value: | + | $557,787 | |
| | | -------------------------- | |
| (=) Total Appraised Value: | = | $557,787 | |
| (–) Senior Exemption Loss: | – | $0 | |
| (–) Exemption Loss: | – | $0 | |
| | | -------------------------- | |
| (=) Taxable Value: | = | $557,787 | |
Taxing Jurisdiction
| Owner: | MACDONALD, ERIC WILLIAM | | |
| % Ownership: | 100.0000000000% | | |
| Total Value: | $557,787 | | |
| Tax Area: | 310 - APPRAISER-Cpvl Schl Dist, outside Cpvl, improved & 1 acre or less |
| CF | Conservation Futures | 0.0313996660 | $557,787 | $557,787 | $17.51 | | |
| CEM2 | Cemetery #2 | 0.0092609791 | $557,787 | $557,787 | $5.17 | | |
| FIRE5 | Fire & Rescue Dist #5 C Whidbey GEN | 1.1892169230 | $557,787 | $557,787 | $663.33 | | |
| FIRE5BOND | Fire & Rescue Dist #5 C Whidbey BOND | 0.1394359503 | $557,787 | $557,787 | $77.78 | | |
| HOBOND | Hospital BOND | 0.1893405597 | $557,787 | $557,787 | $105.61 | | |
| HOGEN | Hospital GEN | 0.3848777722 | $557,787 | $557,787 | $214.68 | | |
| CE | County Current Expense | 0.3674210519 | $557,787 | $557,787 | $204.94 | | |
| CR | County Roads | 0.4614296361 | $557,787 | $557,787 | $257.38 | | |
| ISLANDEMS | Hospital GEN (EMS) | 0.4952018576 | $557,787 | $557,787 | $276.22 | | |
| LIB | Library Sno-Isle GEN | 0.3039084203 | $557,787 | $557,787 | $169.52 | | |
| LIBCAP | Library Sno-Isle BOND (Cap Fac Imp Area) | 0.0528562629 | $557,787 | $557,787 | $29.48 | | |
| POCOUP | Port of Coupeville GEN | 0.1065226063 | $557,787 | $557,787 | $59.42 | | |
| POCOUPIDD | Port of Coupeville IDD | 0.3353038577 | $557,787 | $557,787 | $187.03 | | |
| COUPSDTECH | School 204 CP (TECH) | 0.1215123397 | $557,787 | $557,787 | $67.78 | | |
| SCH204MO | School 204 Enrichment | 0.6416662518 | $557,787 | $557,787 | $357.91 | | |
| ST | State School | 1.4761226122 | $557,787 | $557,787 | $823.36 | | |
| ST2 | State School Part 2 | 0.7953803475 | $557,787 | $557,787 | $443.65 | | |
| | Total Tax Rate: | 7.1008570943 | | | | | |
| | | | | Taxes w/Current Exemptions: | $3,960.77 | | |
| | | | | Taxes w/o Exemptions: | $3,960.77 | | |
Improvement / Building
| Improvement #1: | RESIDENTIAL | State Code: | Y | 2100.0 sqft | Value: | $337,787 |
| Bathrooms: | 2 | Bedrooms: | 4 | | Ceiling: | DRYWALL PAINTED | Exterior Wall/Cover: | WOOD SIDING | | Floor Covering: | HARDWOOD/CARP 20-80 | Floor Structure: | WOOD W/SUBFLOOR | | Foundation: | CONCRETE | Heating: | BASEBOARD ELECTRIC | | Interior Finish: | DRYWALL PAINT | Plumbing Fixture Cnt: | 9 | | Roof Slope: | 3" IN 12" | Roof Structure/Cover: | BEAM ROLL COMPOSITION |
|
| | Type | Description | Class CD | Sub Class CD | Year Built | Area |
| | BAS | BASE/MAIN FLOOR | 4 | 0 | 1968 | 1050.0 |
| | OCP | OPEN CARPORT | 4 | 0 | 1968 | 594.0 |
| | OP1 | OPEN PORCH SLAB | 4 | 0 | 1968 | 630.0 |
| | DWN | DOWNSTAIRS LIVING AREA | 4 | 0 | 1968 | 1050.0 |
| | OWR | OPEN WOOD PORCH W/STEPS/ROOF | 4 | 0 | 1968 | 582.0 |
Sketch
Property Image
Land
| 1 | 14 | SQ (08001-12000) | 0.2300 | 10018.80 | 0.00 | 0.00 | 1.00 | $220,000 | $0 |
Roll Value History
| 2026 | N/A | N/A | N/A | N/A | N/A |
| 2025 | $337,787 | $220,000 | $0 | $557,787 | $557,787 |
| 2024 | $336,984 | $210,000 | $0 | $546,984 | $546,984 |
| 2023 | $341,183 | $210,000 | $0 | $551,183 | $551,183 |
| 2022 | $312,740 | $210,000 | $0 | $522,740 | $522,740 |
| 2021 | $206,428 | $150,000 | $0 | $356,428 | $356,428 |
| 2020 | $201,614 | $140,000 | $0 | $341,614 | $341,614 |
| 2019 | $154,735 | $200,000 | $0 | $354,735 | $354,735 |
| 2018 | $158,396 | $180,000 | $0 | $338,396 | $338,396 |
| 2017 | $159,392 | $150,000 | $0 | $309,392 | $309,392 |
| 2016 | $161,385 | $135,000 | $0 | $296,385 | $296,385 |
| 2015 | $163,376 | $100,000 | $0 | $263,376 | $263,376 |
| 2014 | $165,369 | $95,000 | $0 | $260,369 | $260,369 |
| 2013 | $167,361 | $95,000 | $0 | $262,361 | $262,361 |
| 2012 | $173,689 | $76,500 | $0 | $250,189 | $250,189 |
| 2011 | $175,938 | $85,000 | $0 | $260,938 | $260,938 |
| 2010 | $185,456 | $85,000 | $0 | $270,456 | $270,456 |
| 2009 | $193,364 | $100,000 | $0 | $293,364 | $293,364 |
| 2008 | $195,687 | $100,000 | $0 | $295,687 | $295,687 |
| 2007 | $186,671 | $100,000 | $0 | $286,671 | $286,671 |
Deed and Sales History
| 1 | 06/10/2021 | WD | Warranty Deed | HESS, STEVEN H | MACDONALD, ERIC WILLIAM | | | $607,000.00 | 48669 | 4521860 |
| 2 | 06/05/2008 | WD | Warranty Deed | HUFFINES, PHILIP D | HESS, STEVEN H | | | $320,000.00 | 81438 | 4230106 |
| 3 | 02/01/2006 | 5 | DNU - Marriage License/Name Change | HUFFINES TRUSTEES, PHILIP D | HUFFINES, PHILIP D | | | $0.00 | 60489 | 4161603 |
| 4 | 07/10/2003 | WD | Warranty Deed | WALTERS, NORMAN G | HUFFINES TRUSTEES, PHILIP D | | | $187,500.00 | 33148 | 4067800 |
| 5 | 08/01/1997 | WD | Warranty Deed | SCHIRMER, JOHNNIE S | WALTERS, NORMAN G | | | $145,000.00 | 72644 | 97012539 |
| 6 | 03/01/1997 | QCD | Quit Claim Deed | FERGUSON, JOHNNIE S | SCHIRMER, JOHNNIE S | | | $0.00 | 71028 | 97004628 |
| 7 | 11/01/1996 | QCD | Quit Claim Deed | FERGUSON, JOHNNIE S | FERGUSON, JOHNNIE S | | | $0.00 | 64189 | 96020427 |
| 8 | 04/01/1994 | WD | Warranty Deed | BOUCHARD, MARJORY J | FERGUSON, JOHNNIE S | | | $125,299.00 | 41614 | 94009804 |
| 9 | 02/01/1989 | EXECUTORD | Executor Deed | BOUCHARD, JERALD W | BOUCHARD, MARJORY J | | | $0.00 | 90792 | 89002675 |
| 10 | 01/01/1900 | OTHER | Other - Misc. Documents | Unknown | BOUCHARD, JERALD W | | | $0.00 | 0 | 0 |
Payout Agreement
| No payout information available.. |