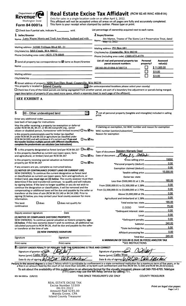
Property
Account |
| Property ID: | 388725 | Abbreviated Legal Description: | SIERRA LOT 4 BLK 1 |
| Geographic ID: | S8160-00-01004-0 | Agent Code: | |
| Type: | Real | | |
| Tax Area: | 339 - APPRAISER-Cpvl Schl Dist, Special Dist, vacant & 50 acres or less | Land Use Code | 99 |
| Open Space: | N | DFL | N |
| Historic Property: | N | Remodel Property: | N |
| Multi-Family Redevelopment: | N | | |
| Township: | | Section: | |
| Range: | |
Location |
| Address: | FORT EBEY RD COUPEVILLE, WA 98239 | Mapsco: | |
| Neighborhood: | Cycle 2 | Map ID: | 9 |
| Neighborhood CD: | 2 |
Owner |
| Name: | MARTYN TTEE, JIM | Owner ID: | 304525 |
| Mailing Address: | PO BOX 681 COUPEVILLE, WA 98239 | % Ownership: | 100.0000000000% |
| | | Exemptions: | |
Taxes and Assessment Details
Values
| (+) Improvement Homesite Value: | + | $0 | |
| (+) Improvement Non-Homesite Value: | + | $0 | |
| (+) Land Homesite Value: | + | $0 | |
| (+) Land Non-Homesite Value: | + | $20,000 | |
| (+) Curr Use (HS): | + | $0 | $0 |
| (+) Curr Use (NHS): | + | $0 | $0 |
| | | -------------------------- | |
| (=) Market Value: | = | $20,000 | |
| (–) Productivity Loss: | – | $0 | |
| | | -------------------------- | |
| (=) Subtotal: | = | $20,000 | |
| (+) Senior Appraised Value: | + | $0 | |
| (+) Non-Senior Appraised Value: | + | $20,000 | |
| | | -------------------------- | |
| (=) Total Appraised Value: | = | $20,000 | |
| (–) Senior Exemption Loss: | – | $0 | |
| (–) Exemption Loss: | – | $0 | |
| | | -------------------------- | |
| (=) Taxable Value: | = | $20,000 | |
Taxing Jurisdiction
| Owner: | MARTYN TTEE, JIM | | |
| % Ownership: | 100.0000000000% | | |
| Total Value: | $20,000 | | |
| Tax Area: | 339 - APPRAISER-Cpvl Schl Dist, Special Dist, vacant & 50 acres or less |
| CF | Conservation Futures | 0.0313996660 | $20,000 | $20,000 | $0.63 | | |
| CEM2 | Cemetery #2 | 0.0092609791 | $20,000 | $20,000 | $0.19 | | |
| HOBOND | Hospital BOND | 0.1893405597 | $20,000 | $20,000 | $3.79 | | |
| HOGEN | Hospital GEN | 0.3848777722 | $20,000 | $20,000 | $7.70 | | |
| CE | County Current Expense | 0.3674210519 | $20,000 | $20,000 | $7.35 | | |
| CR | County Roads | 0.4614296361 | $20,000 | $20,000 | $9.23 | | |
| ISLANDEMS | Hospital GEN (EMS) | 0.4952018576 | $20,000 | $20,000 | $9.90 | | |
| LIB | Library Sno-Isle GEN | 0.3039084203 | $20,000 | $20,000 | $6.08 | | |
| LIBCAP | Library Sno-Isle BOND (Cap Fac Imp Area) | 0.0528562629 | $20,000 | $20,000 | $1.06 | | |
| POCOUP | Port of Coupeville GEN | 0.1065226063 | $20,000 | $20,000 | $2.13 | | |
| POCOUPIDD | Port of Coupeville IDD | 0.3353038577 | $20,000 | $20,000 | $6.71 | | |
| COUPSDTECH | School 204 CP (TECH) | 0.1215123397 | $20,000 | $20,000 | $2.43 | | |
| SCH204MO | School 204 Enrichment | 0.6416662518 | $20,000 | $20,000 | $12.83 | | |
| ST | State School | 1.4761226122 | $20,000 | $20,000 | $29.52 | | |
| ST2 | State School Part 2 | 0.7953803475 | $20,000 | $20,000 | $15.91 | | |
| | Total Tax Rate: | 5.7722042210 | | | | | |
| | | | | Taxes w/Current Exemptions: | $115.46 | | |
| | | | | Taxes w/o Exemptions: | $115.46 | | |
Improvement / Building
Sketch
| No sketches available for this property. |
Property Image
Land
| 1 | 14 | SQ (08001-12000) | 0.2238 | 9748.73 | 0.00 | 0.00 | 1.00 | $20,000 | $0 |
Roll Value History
| 2026 | N/A | N/A | N/A | N/A | N/A |
| 2025 | $0 | $20,000 | $0 | $20,000 | $20,000 |
| 2024 | $0 | $17,000 | $0 | $17,000 | $17,000 |
| 2023 | $0 | $14,000 | $0 | $14,000 | $14,000 |
| 2022 | $0 | $14,000 | $0 | $14,000 | $14,000 |
| 2021 | $0 | $11,000 | $0 | $11,000 | $11,000 |
| 2020 | $0 | $6,500 | $0 | $6,500 | $6,500 |
| 2019 | $0 | $7,000 | $0 | $7,000 | $7,000 |
| 2018 | $0 | $7,000 | $0 | $7,000 | $7,000 |
| 2017 | $0 | $7,000 | $0 | $7,000 | $7,000 |
| 2016 | $0 | $7,000 | $0 | $7,000 | $7,000 |
| 2015 | $0 | $7,000 | $0 | $7,000 | $7,000 |
| 2014 | $0 | $7,000 | $0 | $7,000 | $7,000 |
| 2013 | $0 | $5,000 | $0 | $5,000 | $5,000 |
| 2012 | $0 | $6,000 | $0 | $6,000 | $6,000 |
| 2011 | $0 | $6,000 | $0 | $6,000 | $6,000 |
| 2010 | $0 | $6,000 | $0 | $6,000 | $6,000 |
| 2009 | $0 | $6,900 | $0 | $6,900 | $6,900 |
| 2008 | $0 | $6,200 | $0 | $6,200 | $6,200 |
| 2007 | $0 | $9,000 | $0 | $9,000 | $9,000 |
Deed and Sales History
| 1 | 05/31/2022 | WD | Warranty Deed | MORRIS, LARRY W | MARTYN TTEE, JIM | | | $15,000.00 | 53309 | 4546091 |
| 2 | 09/01/1983 | WD | Warranty Deed | MORRIS, RICHARD P | MORRIS, LARRY W | | | $0.00 | 32678 | 415044 |
| 3 | 01/01/1900 | OTHER | Other - Misc. Documents | Unknown | MORRIS, RICHARD P | | | $0.00 | 0 | 0 |
Payout Agreement
| No payout information available.. |