Property
Account |
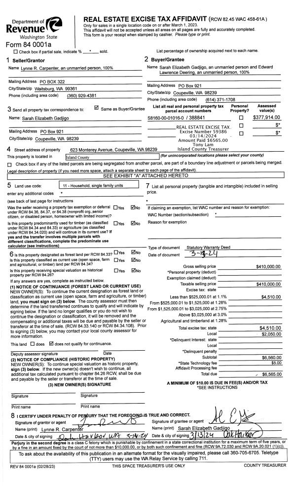
| Property ID: | 388841 | Abbreviated Legal Description: | SIERRA LOT 16 BLK 1 |
| Geographic ID: | S8160-00-01016-0 | Agent Code: | |
| Type: | Real | | |
| Tax Area: | 330 - APPRAISER-Cpvl Schl Dist, Special Dist, improved & less than 1 acre | Land Use Code | 11 |
| Open Space: | N | DFL | N |
| Historic Property: | N | Remodel Property: | N |
| Multi-Family Redevelopment: | N | | |
| Township: | | Section: | |
| Range: | |
Location |
| Address: | 623 MONTEREY AVE COUPEVILLE, WA 98239 | Mapsco: | |
| Neighborhood: | Cycle 2 | Map ID: | 9 |
| Neighborhood CD: | 2 |
Owner |
| Name: | GADJIGO, SARAH ELIZABETH | Owner ID: | 311643 |
| Mailing Address: | EDWARD LAWRENCE DEERING PO BOX 921 COUPEVILLE, WA 98239 | % Ownership: | 100.0000000000% |
| | | Exemptions: | |
Taxes and Assessment Details
Values
| (+) Improvement Homesite Value: | + | $0 | |
| (+) Improvement Non-Homesite Value: | + | $185,498 | |
| (+) Land Homesite Value: | + | $0 | |
| (+) Land Non-Homesite Value: | + | $240,000 | |
| (+) Curr Use (HS): | + | $0 | $0 |
| (+) Curr Use (NHS): | + | $0 | $0 |
| | | -------------------------- | |
| (=) Market Value: | = | $425,498 | |
| (–) Productivity Loss: | – | $0 | |
| | | -------------------------- | |
| (=) Subtotal: | = | $425,498 | |
| (+) Senior Appraised Value: | + | $0 | |
| (+) Non-Senior Appraised Value: | + | $425,498 | |
| | | -------------------------- | |
| (=) Total Appraised Value: | = | $425,498 | |
| (–) Senior Exemption Loss: | – | $0 | |
| (–) Exemption Loss: | – | $0 | |
| | | -------------------------- | |
| (=) Taxable Value: | = | $425,498 | |
Taxing Jurisdiction
| Owner: | GADJIGO, SARAH ELIZABETH | | |
| % Ownership: | 100.0000000000% | | |
| Total Value: | $425,498 | | |
| Tax Area: | 330 - APPRAISER-Cpvl Schl Dist, Special Dist, improved & less than 1 acre |
| CF | Conservation Futures | 0.0313996660 | $425,498 | $425,498 | $13.36 | | |
| CEM2 | Cemetery #2 | 0.0092609791 | $425,498 | $425,498 | $3.94 | | |
| FIRE2 | Fire & Rescue Dist #2 N Whidbey GEN | 0.5381486274 | $425,498 | $425,498 | $228.98 | | |
| HOBOND | Hospital BOND | 0.1893405597 | $425,498 | $425,498 | $80.56 | | |
| HOGEN | Hospital GEN | 0.3848777722 | $425,498 | $425,498 | $163.76 | | |
| CE | County Current Expense | 0.3674210519 | $425,498 | $425,498 | $156.34 | | |
| CR | County Roads | 0.4614296361 | $425,498 | $425,498 | $196.34 | | |
| ISLANDEMS | Hospital GEN (EMS) | 0.4952018576 | $425,498 | $425,498 | $210.71 | | |
| LIB | Library Sno-Isle GEN | 0.3039084203 | $425,498 | $425,498 | $129.31 | | |
| LIBCAP | Library Sno-Isle BOND (Cap Fac Imp Area) | 0.0528562629 | $425,498 | $425,498 | $22.49 | | |
| POCOUP | Port of Coupeville GEN | 0.1065226063 | $425,498 | $425,498 | $45.33 | | |
| POCOUPIDD | Port of Coupeville IDD | 0.3353038577 | $425,498 | $425,498 | $142.67 | | |
| COUPSDTECH | School 204 CP (TECH) | 0.1215123397 | $425,498 | $425,498 | $51.70 | | |
| SCH204MO | School 204 Enrichment | 0.6416662518 | $425,498 | $425,498 | $273.03 | | |
| ST | State School | 1.4761226122 | $425,498 | $425,498 | $628.09 | | |
| ST2 | State School Part 2 | 0.7953803475 | $425,498 | $425,498 | $338.43 | | |
| | Total Tax Rate: | 6.3103528484 | | | | | |
| | | | | Taxes w/Current Exemptions: | $2,685.04 | | |
| | | | | Taxes w/o Exemptions: | $2,685.04 | | |
Improvement / Building
| Improvement #1: | RESIDENTIAL | State Code: | Y | 1012.5 sqft | Value: | $185,498 |
| Bathrooms: | 1 | Bedrooms: | 2 | | Ceiling: | DRY WALL SPRAYED | Exterior Wall/Cover: | PLY/HARDBOARD T-111 | | Floor Covering: | VINYL 100% | Floor Structure: | WOOD W/SUBFLOOR | | Foundation: | CONCRETE BLOCKS | Heating: | BASEBOARD ELECTRIC | | Interior Finish: | DRYWALL PAINT | Plumbing Fixture Cnt: | 6 | | Roof Slope: | 4" IN 12" | Roof Structure/Cover: | CJ ASPHALT |
|
| | Type | Description | Class CD | Sub Class CD | Year Built | Area |
| | BAS | BASE/MAIN FLOOR | 3 | 0 | 1976 | 1012.5 |
| | DGR | DETACHED GARAGE | 3 | 0 | 1976 | 488.8 |
| | OWR | OPEN WOOD PORCH W/STEPS/ROOF | 3 | 0 | 1976 | 230.5 |
Sketch
Property Image
Land
| 1 | 14 | SQ (08001-12000) | 0.2335 | 10171.26 | 0.00 | 0.00 | 1.00 | $240,000 | $0 |
Roll Value History
| 2026 | N/A | N/A | N/A | N/A | N/A |
| 2025 | $185,498 | $240,000 | $0 | $425,498 | $425,498 |
| 2024 | $191,829 | $220,000 | $0 | $411,829 | $411,829 |
| 2023 | $177,914 | $200,000 | $0 | $377,914 | $377,914 |
| 2022 | $163,215 | $180,000 | $0 | $343,215 | $343,215 |
| 2021 | $143,761 | $150,000 | $0 | $293,761 | $293,761 |
| 2020 | $140,139 | $120,000 | $0 | $260,139 | $260,139 |
| 2019 | $99,632 | $150,000 | $0 | $249,632 | $249,632 |
| 2018 | $77,717 | $135,000 | $0 | $212,717 | $212,717 |
| 2017 | $78,301 | $100,000 | $0 | $178,301 | $178,301 |
| 2016 | $79,563 | $75,000 | $0 | $154,563 | $154,563 |
| 2015 | $80,826 | $55,000 | $0 | $135,826 | $135,826 |
| 2014 | $82,090 | $50,000 | $0 | $132,090 | $132,090 |
| 2013 | $83,353 | $50,000 | $0 | $133,353 | $133,353 |
| 2012 | $83,204 | $57,800 | $0 | $141,004 | $141,004 |
| 2011 | $84,512 | $68,000 | $0 | $152,512 | $152,512 |
| 2010 | $90,671 | $68,000 | $0 | $158,671 | $158,671 |
| 2009 | $94,669 | $88,320 | $0 | $182,989 | $182,989 |
| 2008 | $95,982 | $99,200 | $0 | $195,182 | $195,182 |
| 2007 | $97,295 | $116,000 | $0 | $213,295 | $213,295 |
Deed and Sales History
| 1 | 03/13/2024 | WD | Warranty Deed | CARPENTER, LYNNE R | GADJIGO, SARAH ELIZABETH | | | $410,000.00 | 59386 | 4570223 |
| 2 | 04/25/2003 | WD | Warranty Deed | CARPENTER, JOHN R | CARPENTER, LYNNE R | | | $150,000.00 | 31905 | 4057909 |
| 3 | 10/10/2001 | WD | Warranty Deed | BERG, ROBERT L | CARPENTER, JOHN R | | | $110,000.00 | 13997 | 4000134 |
| 4 | 07/01/1996 | WD | Warranty Deed | EARNHART, HOWARD M | BERG, ROBERT L | | | $99,000.00 | 62824 | 96013705 |
| 5 | 01/01/1994 | WD | Warranty Deed | OQUIST, ARVID W | EARNHART, HOWARD M | | | $92,500.00 | 40278 | 94001689 |
| 6 | 01/01/1900 | OTHER | Other - Misc. Documents | Unknown | OQUIST, ARVID W | | | $0.00 | 0 | 0 |
Payout Agreement
| No payout information available.. |