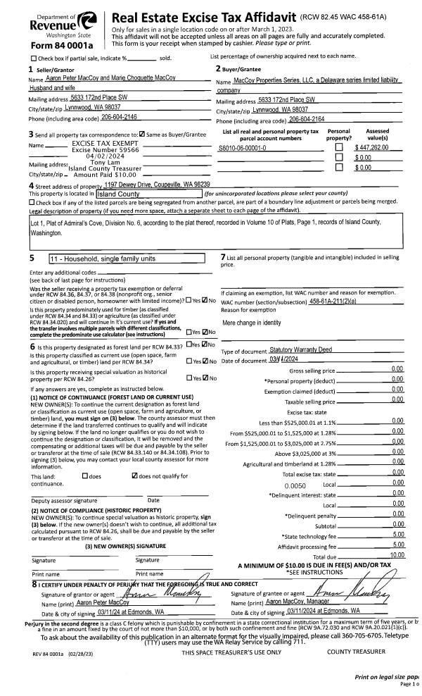
Property
Account |
| Property ID: | 389911 | Abbreviated Legal Description: | SIERRA LOT 10 BLK 9 |
| Geographic ID: | S8160-00-09010-0 | Agent Code: | |
| Type: | Real | | |
| Tax Area: | 330 - APPRAISER-Cpvl Schl Dist, Special Dist, improved & less than 1 acre | Land Use Code | 11 |
| Open Space: | N | DFL | N |
| Historic Property: | N | Remodel Property: | N |
| Multi-Family Redevelopment: | N | | |
| Township: | | Section: | |
| Range: | |
Location |
| Address: | 2564 SAN JUAN ST COUPEVILLE, WA 98239 | Mapsco: | |
| Neighborhood: | Cycle 2 | Map ID: | 10 |
| Neighborhood CD: | 2 |
Owner |
| Name: | NORRIS, LESLIE | Owner ID: | 313040 |
| Mailing Address: | CHRISTINE HAGEL 2564 SAN JUAN ST COUPEVILLE, WA 98239 | % Ownership: | 100.0000000000% |
| | | Exemptions: | |
Taxes and Assessment Details
Values
| (+) Improvement Homesite Value: | + | $0 | |
| (+) Improvement Non-Homesite Value: | + | $302,895 | |
| (+) Land Homesite Value: | + | $0 | |
| (+) Land Non-Homesite Value: | + | $240,000 | |
| (+) Curr Use (HS): | + | $0 | $0 |
| (+) Curr Use (NHS): | + | $0 | $0 |
| | | -------------------------- | |
| (=) Market Value: | = | $542,895 | |
| (–) Productivity Loss: | – | $0 | |
| | | -------------------------- | |
| (=) Subtotal: | = | $542,895 | |
| (+) Senior Appraised Value: | + | $0 | |
| (+) Non-Senior Appraised Value: | + | $542,895 | |
| | | -------------------------- | |
| (=) Total Appraised Value: | = | $542,895 | |
| (–) Senior Exemption Loss: | – | $0 | |
| (–) Exemption Loss: | – | $0 | |
| | | -------------------------- | |
| (=) Taxable Value: | = | $542,895 | |
Taxing Jurisdiction
| Owner: | NORRIS, LESLIE | | |
| % Ownership: | 100.0000000000% | | |
| Total Value: | $542,895 | | |
| Tax Area: | 330 - APPRAISER-Cpvl Schl Dist, Special Dist, improved & less than 1 acre |
| CF | Conservation Futures | 0.0313996660 | $542,895 | $542,895 | $17.05 | | |
| CEM2 | Cemetery #2 | 0.0092609791 | $542,895 | $542,895 | $5.03 | | |
| FIRE2 | Fire & Rescue Dist #2 N Whidbey GEN | 0.5381486274 | $542,895 | $542,895 | $292.16 | | |
| HOBOND | Hospital BOND | 0.1893405597 | $542,895 | $542,895 | $102.79 | | |
| HOGEN | Hospital GEN | 0.3848777722 | $542,895 | $542,895 | $208.95 | | |
| CE | County Current Expense | 0.3674210519 | $542,895 | $542,895 | $199.47 | | |
| CR | County Roads | 0.4614296361 | $542,895 | $542,895 | $250.51 | | |
| ISLANDEMS | Hospital GEN (EMS) | 0.4952018576 | $542,895 | $542,895 | $268.84 | | |
| LIB | Library Sno-Isle GEN | 0.3039084203 | $542,895 | $542,895 | $164.99 | | |
| LIBCAP | Library Sno-Isle BOND (Cap Fac Imp Area) | 0.0528562629 | $542,895 | $542,895 | $28.70 | | |
| POCOUP | Port of Coupeville GEN | 0.1065226063 | $542,895 | $542,895 | $57.83 | | |
| POCOUPIDD | Port of Coupeville IDD | 0.3353038577 | $542,895 | $542,895 | $182.03 | | |
| COUPSDTECH | School 204 CP (TECH) | 0.1215123397 | $542,895 | $542,895 | $65.97 | | |
| SCH204MO | School 204 Enrichment | 0.6416662518 | $542,895 | $542,895 | $348.36 | | |
| ST | State School | 1.4761226122 | $542,895 | $542,895 | $801.38 | | |
| ST2 | State School Part 2 | 0.7953803475 | $542,895 | $542,895 | $431.81 | | |
| | Total Tax Rate: | 6.3103528484 | | | | | |
| | | | | Taxes w/Current Exemptions: | $3,425.87 | | |
| | | | | Taxes w/o Exemptions: | $3,425.87 | | |
Improvement / Building
| Improvement #1: | RESIDENTIAL | State Code: | Y | 1622.5 sqft | Value: | $302,895 |
| Bathrooms: | 2 | Bedrooms: | 3 | | Ceiling: | DRYWALL PAINTED | Cooling: | HEAT PUMP/CONV/V | | Exterior Wall/Cover: | CEMENT FIBER | Floor Covering: | CARPET/VINYL 20-80 | | Floor Structure: | WOOD ON WOOD JOIST | Foundation: | CONCRETE | | Interior Finish: | DRYWALL PAINT | Plumbing Fixture Cnt: | 9 | | Roof Slope: | 5" IN 12" | Roof Structure/Cover: | CJ ASPHALT |
|
| | Type | Description | Class CD | Sub Class CD | Year Built | Area |
| | BAS | BASE/MAIN FLOOR | 3 | 0 | 2024 | 1622.5 |
| | AGR | ATTACHED GARAGE | 3 | 0 | 2024 | 330.0 |
| | OWP | OPEN WOOD PORCH W/STEPS | 3 | 0 | 2024 | 36.3 |
Sketch
Property Image
Land
| 1 | 13 | SQ (06001-08000) | 0.2009 | 8751.20 | 0.00 | 0.00 | 1.00 | $240,000 | $0 |
Roll Value History
| 2026 | N/A | N/A | N/A | N/A | N/A |
| 2025 | $302,895 | $240,000 | $0 | $542,895 | $542,895 |
| 2024 | $309,077 | $220,000 | $0 | $529,077 | $529,077 |
| 2023 | $0 | $60,000 | $0 | $60,000 | $60,000 |
| 2022 | $0 | $14,000 | $0 | $14,000 | $14,000 |
| 2021 | $0 | $11,000 | $0 | $11,000 | $11,000 |
| 2020 | $0 | $6,500 | $0 | $6,500 | $6,500 |
| 2019 | $0 | $7,000 | $0 | $7,000 | $7,000 |
| 2018 | $0 | $7,000 | $0 | $7,000 | $7,000 |
| 2017 | $0 | $7,000 | $0 | $7,000 | $7,000 |
| 2016 | $0 | $7,000 | $0 | $7,000 | $7,000 |
| 2015 | $0 | $7,000 | $0 | $7,000 | $7,000 |
| 2014 | $0 | $7,000 | $0 | $7,000 | $7,000 |
| 2013 | $0 | $5,000 | $0 | $5,000 | $5,000 |
| 2012 | $0 | $6,000 | $0 | $6,000 | $6,000 |
| 2011 | $0 | $6,000 | $0 | $6,000 | $6,000 |
| 2010 | $0 | $6,000 | $0 | $6,000 | $6,000 |
| 2009 | $0 | $6,900 | $0 | $6,900 | $6,900 |
| 2008 | $0 | $6,200 | $0 | $6,200 | $6,200 |
| 2007 | $0 | $9,000 | $0 | $9,000 | $9,000 |
Deed and Sales History
| 1 | 06/26/2024 | WD | Warranty Deed | WALDRON CONSTRUCTION, INC. | NORRIS, LESLIE | | | $579,900.00 | 60557 | 4574225 |
| 2 | 07/21/2023 | WD | Warranty Deed | ATKINSON, MONIKA | WALDRON CONSTRUCTION, INC. | | | $60,000.00 | 57407 | 4562642 |
| 3 | 04/21/1999 | QCD | Quit Claim Deed | SEBASTIANO, HELGA M | ATKINSON, MONIKA | | | $0.00 | 92202 | 99013642 |
| 4 | 08/01/1992 | OTHER | Other - Misc. Documents | SANDERS, HELGA M | SEBASTIANO, HELGA M | | | $0.00 | 65023 | 0 |
| 5 | 01/01/1900 | OTHER | Other - Misc. Documents | Unknown | SANDERS, HELGA M | | | $0.00 | 0 | 0 |
Payout Agreement
| No payout information available.. |