Property
Account |
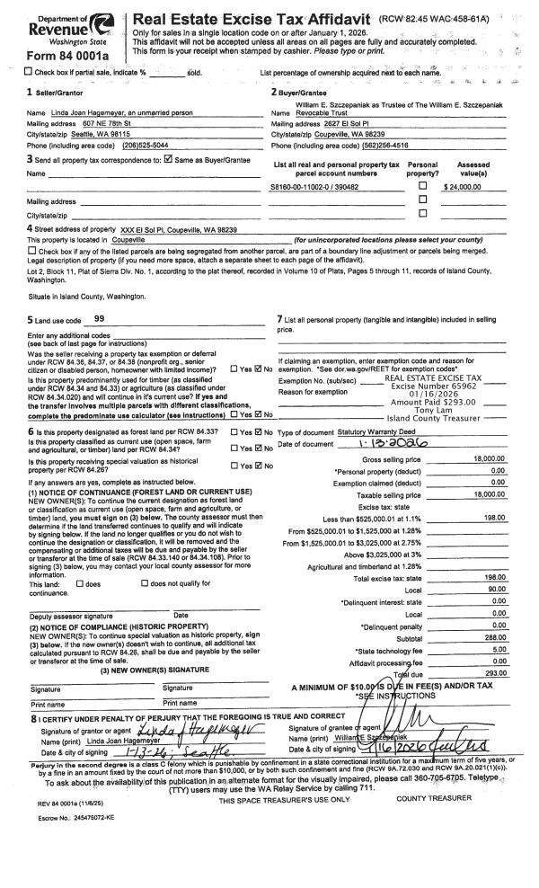
| Property ID: | 390482 | Abbreviated Legal Description: | SIERRA 1 LOT 2 BLK 11 |
| Geographic ID: | S8160-00-11002-0 | Agent Code: | |
| Type: | Real | | |
| Tax Area: | 339 - APPRAISER-Cpvl Schl Dist, Special Dist, vacant & 50 acres or less | Land Use Code | 99 |
| Open Space: | N | DFL | N |
| Historic Property: | N | Remodel Property: | N |
| Multi-Family Redevelopment: | N | | |
| Township: | | Section: | |
| Range: | |
Location |
| Address: | | Mapsco: | |
| Neighborhood: | Cycle 2 | Map ID: | 9 |
| Neighborhood CD: | 2 |
Owner |
| Name: | HAGEMEYER, LINDA JOAN | Owner ID: | 296099 |
| Mailing Address: | 607 NE 78TH ST SEATTLE, WA 98115 | % Ownership: | 100.0000000000% |
| | | Exemptions: | |
Taxes and Assessment Details
Values
| (+) Improvement Homesite Value: | + | $0 | |
| (+) Improvement Non-Homesite Value: | + | $0 | |
| (+) Land Homesite Value: | + | $0 | |
| (+) Land Non-Homesite Value: | + | $24,000 | |
| (+) Curr Use (HS): | + | $0 | $0 |
| (+) Curr Use (NHS): | + | $0 | $0 |
| | | -------------------------- | |
| (=) Market Value: | = | $24,000 | |
| (–) Productivity Loss: | – | $0 | |
| | | -------------------------- | |
| (=) Subtotal: | = | $24,000 | |
| (+) Senior Appraised Value: | + | $0 | |
| (+) Non-Senior Appraised Value: | + | $24,000 | |
| | | -------------------------- | |
| (=) Total Appraised Value: | = | $24,000 | |
| (–) Senior Exemption Loss: | – | $0 | |
| (–) Exemption Loss: | – | $0 | |
| | | -------------------------- | |
| (=) Taxable Value: | = | $24,000 | |
Taxing Jurisdiction
| Owner: | HAGEMEYER, LINDA JOAN | | |
| % Ownership: | 100.0000000000% | | |
| Total Value: | $24,000 | | |
| Tax Area: | 339 - APPRAISER-Cpvl Schl Dist, Special Dist, vacant & 50 acres or less |
| CF | Conservation Futures | 0.0313996660 | $24,000 | $24,000 | $0.75 | | |
| CEM2 | Cemetery #2 | 0.0092609791 | $24,000 | $24,000 | $0.22 | | |
| HOBOND | Hospital BOND | 0.1893405597 | $24,000 | $24,000 | $4.54 | | |
| HOGEN | Hospital GEN | 0.3848777722 | $24,000 | $24,000 | $9.24 | | |
| CE | County Current Expense | 0.3674210519 | $24,000 | $24,000 | $8.82 | | |
| CR | County Roads | 0.4614296361 | $24,000 | $24,000 | $11.07 | | |
| ISLANDEMS | Hospital GEN (EMS) | 0.4952018576 | $24,000 | $24,000 | $11.88 | | |
| LIB | Library Sno-Isle GEN | 0.3039084203 | $24,000 | $24,000 | $7.29 | | |
| LIBCAP | Library Sno-Isle BOND (Cap Fac Imp Area) | 0.0528562629 | $24,000 | $24,000 | $1.27 | | |
| POCOUP | Port of Coupeville GEN | 0.1065226063 | $24,000 | $24,000 | $2.56 | | |
| POCOUPIDD | Port of Coupeville IDD | 0.3353038577 | $24,000 | $24,000 | $8.05 | | |
| COUPSDTECH | School 204 CP (TECH) | 0.1215123397 | $24,000 | $24,000 | $2.92 | | |
| SCH204MO | School 204 Enrichment | 0.6416662518 | $24,000 | $24,000 | $15.40 | | |
| ST | State School | 1.4761226122 | $24,000 | $24,000 | $35.43 | | |
| ST2 | State School Part 2 | 0.7953803475 | $24,000 | $24,000 | $19.09 | | |
| | Total Tax Rate: | 5.7722042210 | | | | | |
| | | | | Taxes w/Current Exemptions: | $138.53 | | |
| | | | | Taxes w/o Exemptions: | $138.53 | | |
Improvement / Building
Sketch
| No sketches available for this property. |
Property Image
Land
| 1 | 13 | SQ (06001-08000) | 0.1680 | 7318.08 | 0.00 | 0.00 | 1.00 | $24,000 | $0 |
Roll Value History
| 2026 | N/A | N/A | N/A | N/A | N/A |
| 2025 | $0 | $24,000 | $0 | $24,000 | $24,000 |
| 2024 | $0 | $20,000 | $0 | $20,000 | $20,000 |
| 2023 | $0 | $14,000 | $0 | $14,000 | $14,000 |
| 2022 | $0 | $14,000 | $0 | $14,000 | $14,000 |
| 2021 | $0 | $11,000 | $0 | $11,000 | $11,000 |
| 2020 | $0 | $6,500 | $0 | $6,500 | $6,500 |
| 2019 | $0 | $7,000 | $0 | $7,000 | $7,000 |
| 2018 | $0 | $7,000 | $0 | $7,000 | $7,000 |
| 2017 | $0 | $7,000 | $0 | $7,000 | $7,000 |
| 2016 | $0 | $7,000 | $0 | $7,000 | $7,000 |
| 2015 | $0 | $7,000 | $0 | $7,000 | $7,000 |
| 2014 | $0 | $7,000 | $0 | $7,000 | $7,000 |
| 2013 | $0 | $5,000 | $0 | $5,000 | $5,000 |
| 2012 | $0 | $6,000 | $0 | $6,000 | $6,000 |
| 2011 | $0 | $6,000 | $0 | $6,000 | $6,000 |
| 2010 | $0 | $6,000 | $0 | $6,000 | $6,000 |
| 2009 | $0 | $6,900 | $0 | $6,900 | $6,900 |
| 2008 | $0 | $6,200 | $0 | $6,200 | $6,200 |
| 2007 | $0 | $9,000 | $0 | $9,000 | $9,000 |
Deed and Sales History
| 1 | 01/13/2026 | WD | Warranty Deed | HAGEMEYER, LINDA JOAN | SZCZEPANIAK REVOCABLE TRUST | | | $18,000.00 | 65962 | 4595779 |
| 2 | 09/14/2020 | TRUSTEED | Trustee's Deed | HAGEMEYER TRUSTEE, LINDA JOAN | HAGEMEYER, LINDA JOAN | | | $0.00 | 44756 | 4496639 |
| 3 | 08/23/2010 | PRD | Personal Representatives Deed | HAGEMEYER, JOHN H | HAGEMEYER TRUSTEE, LINDA JOAN | | | | 2224 | 4280454 |
Payout Agreement
| No payout information available.. |