Property
Account |
| Property ID: | 390525 | Abbreviated Legal Description: | SIERRA 1 LOT 6 BLK 11 TGW LOT 5 BLK 11 EX N40' MEAS ALG WLN LOT 5 TGW LOT 4 BLK 11 EX PT DESC: BG NWCR LOT 4 S2*W ALG WLN LOT 4 70' N74*E64.26' M/L TO ELN LOT 4 N2*E ALG SD ELN 40' TO NECR LOT 4 N87*W61.12' TPB |
| Geographic ID: | S8160-00-11006-0 | Agent Code: | |
| Type: | Real | | |
| Tax Area: | 330 - APPRAISER-Cpvl Schl Dist, Special Dist, improved & less than 1 acre | Land Use Code | 11 |
| Open Space: | N | DFL | N |
| Historic Property: | N | Remodel Property: | N |
| Multi-Family Redevelopment: | N | | |
| Township: | | Section: | |
| Range: | |
Location |
| Address: | 653 EL PRADO AVE COUPEVILLE, WA 98239 | Mapsco: | |
| Neighborhood: | Cycle 2 | Map ID: | 9 |
| Neighborhood CD: | 2 |
Owner |
| Name: | ADAMS, JAMES JAY | Owner ID: | 293198 |
| Mailing Address: | LORI TUTTLE ADAMS 653 EL PRADO AVE COUPEVILLE, WA 98239 | % Ownership: | 100.0000000000% |
| | | Exemptions: | |
Taxes and Assessment Details
Values
| (+) Improvement Homesite Value: | + | N/A | |
| (+) Improvement Non-Homesite Value: | + | N/A | |
| (+) Land Homesite Value: | + | N/A | |
| (+) Land Non-Homesite Value: | + | N/A | Ag / Timber Use Value |
| (+) Curr Use (HS): | + | N/A | N/A |
| (+) Curr Use (NHS): | + | N/A | N/A |
| | | -------------------------- | |
| (=) Market Value: | = | N/A | |
| (–) Productivity Loss: | – | N/A | |
| | | -------------------------- | |
| (=) Subtotal: | = | N/A | |
| (+) Senior Appraised Value: | + | N/A | |
| (+) Non-Senior Appraised Value: | + | N/A | |
| | | -------------------------- | |
| (=) Total Appraised Value: | = | N/A | |
| (–) Senior Exemption Loss: | – | N/A | |
| (–) Exemption Loss: | – | N/A | |
| | | -------------------------- | |
| (=) Taxable Value: | = | N/A | |
Taxing Jurisdiction
| Owner: | ADAMS, JAMES JAY | | |
| % Ownership: | 100.0000000000% | | |
| Total Value: | N/A | | |
| Tax Area: | 330 - APPRAISER-Cpvl Schl Dist, Special Dist, improved & less than 1 acre |
| CF | Conservation Futures | N/A | N/A | N/A | N/A | | |
| WCD | Whidbey Conservation District | N/A | N/A | N/A | N/A | | |
| CEM2 | Cemetery #2 | N/A | N/A | N/A | N/A | | |
| FIRE2 | Fire & Rescue Dist #2 N Whidbey GEN | N/A | N/A | N/A | N/A | | |
| HOBOND | Hospital BOND | N/A | N/A | N/A | N/A | | |
| HOGEN | Hospital GEN | N/A | N/A | N/A | N/A | | |
| CE | County Current Expense | N/A | N/A | N/A | N/A | | |
| CR | County Roads | N/A | N/A | N/A | N/A | | |
| ISLANDEMS | Hospital GEN (EMS) | N/A | N/A | N/A | N/A | | |
| LIB | Library Sno-Isle GEN | N/A | N/A | N/A | N/A | | |
| LIBCAP | Library Sno-Isle BOND (Cap Fac Imp Area) | N/A | N/A | N/A | N/A | | |
| POCOUP | Port of Coupeville GEN | N/A | N/A | N/A | N/A | | |
| COUPSDTECH | School 204 CP (TECH) | N/A | N/A | N/A | N/A | | |
| SCH204MO | School 204 Enrichment | N/A | N/A | N/A | N/A | | |
| ST | State School | N/A | N/A | N/A | N/A | | |
| ST2 | State School Part 2 | N/A | N/A | N/A | N/A | | |
| | Total Tax Rate: | N/A | | | | | |
| | | | | Taxes w/Current Exemptions: | N/A | | |
| | | | | Taxes w/o Exemptions: | N/A | | |
Improvement / Building
| Improvement #1: | RESIDENTIAL | State Code: | Y | 2019.8 sqft | Value: | N/A |
| Bathrooms: | 2 | Bedrooms: | 3 | | Ceiling: | DRYWALL PAINTED | Cooling: | HEAT PUMP/CONV/V | | Exterior Wall/Cover: | CEMENT FIBER | Floor Covering: | HARDWOOD/CARP 80-20 | | Floor Structure: | WOOD W/SUBFLOOR | Foundation: | CONCRETE | | Interior Finish: | DRYWALL PAINT | Plumbing Fixture Cnt: | 11 | | Roof Slope: | 6" IN 12" | Roof Structure/Cover: | CJ ASPHALT |
|
| | Type | Description | Class CD | Sub Class CD | Year Built | Area |
| | BAS | BASE/MAIN FLOOR | 3 | 0 | 2007 | 2019.8 |
| | AGR | ATTACHED GARAGE | 3 | 0 | 2007 | 612.5 |
| | OWP | OPEN WOOD PORCH W/STEPS | 3 | 0 | 2007 | 430.5 |
| | OWC | OPEN WOOD PORCH W/STEPS/ROOF/C | 3 | 0 | 2007 | 85.0 |
Sketch
Property Image
Land
| 1 | 15 | SQ (12001-21780) | 0.3700 | 16117.20 | 0.00 | 0.00 | 1.00 | N/A | N/A |
Roll Value History
| 2026 | N/A | N/A | N/A | N/A | N/A |
| 2025 | $403,289 | $310,000 | $0 | $713,289 | $713,289 |
| 2024 | $383,081 | $275,000 | $0 | $658,081 | $658,081 |
| 2023 | $387,522 | $275,000 | $0 | $662,522 | $662,522 |
| 2022 | $354,922 | $260,000 | $0 | $614,922 | $614,922 |
| 2021 | $312,132 | $175,000 | $0 | $487,132 | $487,132 |
| 2020 | $303,373 | $160,000 | $0 | $463,373 | $463,373 |
| 2019 | $275,450 | $185,000 | $0 | $460,450 | $460,450 |
| 2018 | $234,971 | $165,000 | $0 | $399,971 | $399,971 |
| 2017 | $236,227 | $140,000 | $0 | $376,227 | $376,227 |
| 2016 | $238,881 | $125,000 | $0 | $363,881 | $363,881 |
| 2015 | $241,535 | $125,000 | $0 | $366,535 | $366,535 |
| 2014 | $244,189 | $85,000 | $0 | $329,189 | $329,189 |
| 2013 | $246,843 | $75,000 | $0 | $321,843 | $321,843 |
| 2012 | $235,763 | $85,000 | $0 | $320,763 | $320,763 |
| 2011 | $238,153 | $100,000 | $0 | $338,153 | $338,153 |
| 2010 | $244,771 | $100,000 | $0 | $344,771 | $344,771 |
| 2009 | $254,690 | $138,000 | $0 | $392,690 | $392,690 |
| 2008 | $262,014 | $155,000 | $0 | $417,014 | $417,014 |
| 2007 | $245,117 | $155,000 | $0 | $400,117 | $400,117 |
Deed and Sales History
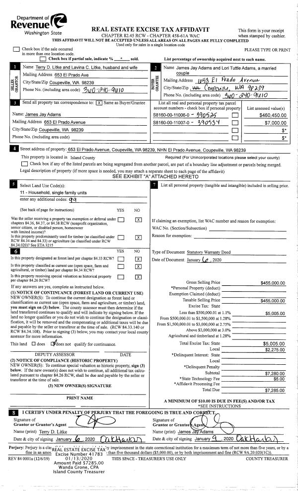
| 1 | 01/06/2020 | WD | Warranty Deed | LITKE, TERRY D | ADAMS, JAMES JAY | | | $455,000.00 | 41783 | 4479126 |
|   | |
| 2 | 06/06/2014 | WD | Warranty Deed | HERBERT, SAMUEL A | LITKE, TERRY D | | | $330,000.00 | 15637 | 4360822 |
|   | |
| 3 | 12/17/2012 | CCOMPROP | Create Community Property | HERBERT, SAMUEL A | HERBERT, SAMUEL A | | | $0.00 | 9836 | 4329632 |
| 4 | 01/23/2007 | WD | Warranty Deed | SELLGREN & CARYL CUSTOM BUILDE | HERBERT, SAMUEL A | | | $390,000.00 | 70283 | 4192826 |
| 5 | 11/02/2005 | BLA | DNU - Boundary Line Adjustment | CHURCHILL, SARAH | CHURCHILL, SARAH | | | $0.00 | 70743 | 4064052 |
| 6 | 06/22/2005 | WD | Warranty Deed | CHURCHILL, SARAH | SELLGREN & CARYL CUSTOM BUILDE | | | $70,000.00 | 52977 | 4138776 |
| 7 | 10/10/2003 | ESTSEPPROP | Establish Separate Property | CHURCHILL, SARAH | CHURCHILL, SARAH | | | $0.00 | 34802 | 4064052 |
| 8 | 01/22/2003 | WD | Warranty Deed | PEMBER, ANN MARIE | CHURCHILL, SARAH | | | $6,666.00 | 30452 | 4046680 |
| 9 | 11/20/2002 | WD | Warranty Deed | GIVENS, FLOYD W | PEMBER, ANN MARIE | | | $50,000.00 | 24945 | 4040180 |
| 10 | 01/01/1900 | OTHER | Other - Misc. Documents | Unknown | GIVENS, FLOYD W | | | $0.00 | 0 | 0 |
Payout Agreement
| No payout information available.. |