Property
Account |
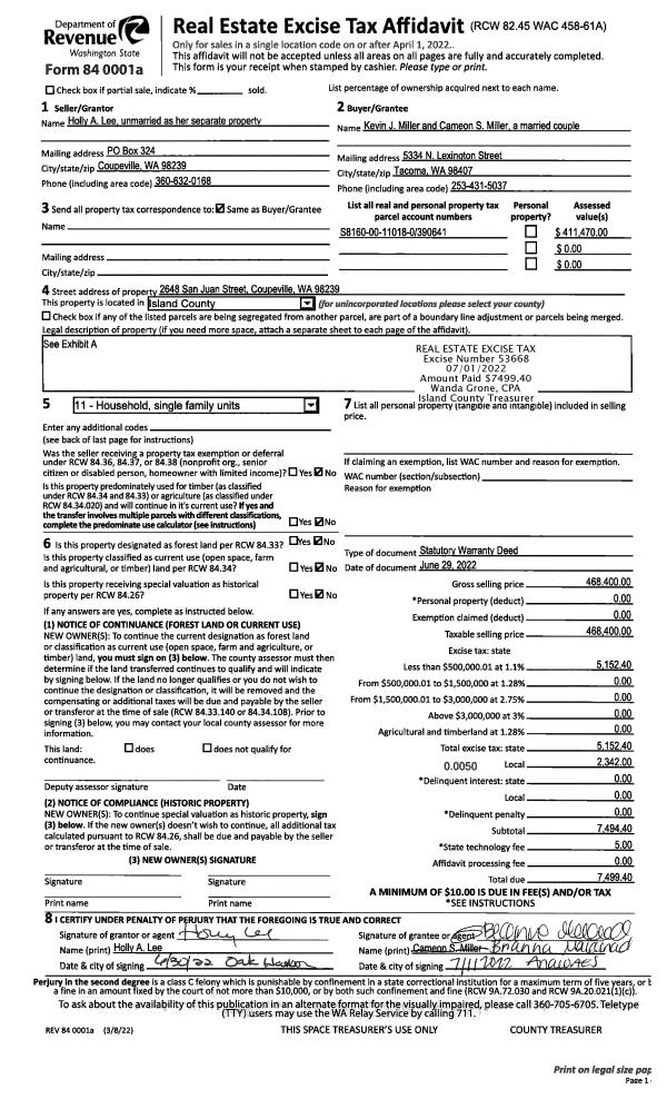
| Property ID: | 390641 | Abbreviated Legal Description: | SIERRA 1 LOT 18 BLK 11 |
| Geographic ID: | S8160-00-11018-0 | Agent Code: | |
| Type: | Real | | |
| Tax Area: | 330 - APPRAISER-Cpvl Schl Dist, Special Dist, improved & less than 1 acre | Land Use Code | 11 |
| Open Space: | N | DFL | N |
| Historic Property: | N | Remodel Property: | N |
| Multi-Family Redevelopment: | N | | |
| Township: | | Section: | |
| Range: | |
Location |
| Address: | 2648 SAN JUAN ST COUPEVILLE, WA 98239 | Mapsco: | |
| Neighborhood: | Cycle 2 | Map ID: | 9 |
| Neighborhood CD: | 2 |
Owner |
| Name: | MILLER, KEVIN J | Owner ID: | 305177 |
| Mailing Address: | CAMEON S MILLER 3015 N 12TH ST TACOMA, WA 98406 | % Ownership: | 100.0000000000% |
| | | Exemptions: | |
Taxes and Assessment Details
Values
| (+) Improvement Homesite Value: | + | $0 | |
| (+) Improvement Non-Homesite Value: | + | $171,373 | |
| (+) Land Homesite Value: | + | $0 | |
| (+) Land Non-Homesite Value: | + | $275,000 | |
| (+) Curr Use (HS): | + | $0 | $0 |
| (+) Curr Use (NHS): | + | $0 | $0 |
| | | -------------------------- | |
| (=) Market Value: | = | $446,373 | |
| (–) Productivity Loss: | – | $0 | |
| | | -------------------------- | |
| (=) Subtotal: | = | $446,373 | |
| (+) Senior Appraised Value: | + | $0 | |
| (+) Non-Senior Appraised Value: | + | $446,373 | |
| | | -------------------------- | |
| (=) Total Appraised Value: | = | $446,373 | |
| (–) Senior Exemption Loss: | – | $0 | |
| (–) Exemption Loss: | – | $0 | |
| | | -------------------------- | |
| (=) Taxable Value: | = | $446,373 | |
Taxing Jurisdiction
| Owner: | MILLER, KEVIN J | | |
| % Ownership: | 100.0000000000% | | |
| Total Value: | $446,373 | | |
| Tax Area: | 330 - APPRAISER-Cpvl Schl Dist, Special Dist, improved & less than 1 acre |
| CF | Conservation Futures | 0.0313996660 | $446,373 | $446,373 | $14.02 | | |
| CEM2 | Cemetery #2 | 0.0092609791 | $446,373 | $446,373 | $4.13 | | |
| FIRE2 | Fire & Rescue Dist #2 N Whidbey GEN | 0.5381486274 | $446,373 | $446,373 | $240.22 | | |
| HOBOND | Hospital BOND | 0.1893405597 | $446,373 | $446,373 | $84.52 | | |
| HOGEN | Hospital GEN | 0.3848777722 | $446,373 | $446,373 | $171.80 | | |
| CE | County Current Expense | 0.3674210519 | $446,373 | $446,373 | $164.01 | | |
| CR | County Roads | 0.4614296361 | $446,373 | $446,373 | $205.97 | | |
| ISLANDEMS | Hospital GEN (EMS) | 0.4952018576 | $446,373 | $446,373 | $221.04 | | |
| LIB | Library Sno-Isle GEN | 0.3039084203 | $446,373 | $446,373 | $135.66 | | |
| LIBCAP | Library Sno-Isle BOND (Cap Fac Imp Area) | 0.0528562629 | $446,373 | $446,373 | $23.59 | | |
| POCOUP | Port of Coupeville GEN | 0.1065226063 | $446,373 | $446,373 | $47.55 | | |
| POCOUPIDD | Port of Coupeville IDD | 0.3353038577 | $446,373 | $446,373 | $149.67 | | |
| COUPSDTECH | School 204 CP (TECH) | 0.1215123397 | $446,373 | $446,373 | $54.24 | | |
| SCH204MO | School 204 Enrichment | 0.6416662518 | $446,373 | $446,373 | $286.42 | | |
| ST | State School | 1.4761226122 | $446,373 | $446,373 | $658.90 | | |
| ST2 | State School Part 2 | 0.7953803475 | $446,373 | $446,373 | $355.04 | | |
| | Total Tax Rate: | 6.3103528484 | | | | | |
| | | | | Taxes w/Current Exemptions: | $2,816.78 | | |
| | | | | Taxes w/o Exemptions: | $2,816.78 | | |
Improvement / Building
| Improvement #1: | RESIDENTIAL | State Code: | Y | 914.0 sqft | Value: | $171,373 |
| Bathrooms: | 1 | Bedrooms: | 2 | | Ceiling: | DRYWALL PAINTED | Exterior Wall/Cover: | PLY/HARDBOARD T-111 | | Floor Covering: | VINYL 100% | Floor Structure: | WOOD W/SUBFLOOR | | Foundation: | CONCRETE | Heating: | WALL HEAT ELECTRIC | | Interior Finish: | DRYWALL PAINT | Plumbing Fixture Cnt: | 6 | | Roof Slope: | 4" IN 12" | Roof Structure/Cover: | CJ ASPHALT |
|
| | Type | Description | Class CD | Sub Class CD | Year Built | Area |
| | BAS | BASE/MAIN FLOOR | 3 | 0 | 1987 | 914.0 |
| | AGR | ATTACHED GARAGE | 3 | 0 | 1987 | 400.0 |
| | OWP | OPEN WOOD PORCH W/STEPS | 3 | 0 | 1987 | 126.5 |
Sketch
Property Image
Land
| 1 | 14 | SQ (08001-12000) | 0.1954 | 8511.62 | 0.00 | 0.00 | 1.00 | $275,000 | $0 |
Roll Value History
| 2026 | N/A | N/A | N/A | N/A | N/A |
| 2025 | $171,373 | $275,000 | $0 | $446,373 | $446,373 |
| 2024 | $173,592 | $275,000 | $0 | $448,592 | $448,592 |
| 2023 | $175,810 | $275,000 | $0 | $450,810 | $450,810 |
| 2022 | $151,470 | $260,000 | $0 | $411,470 | $411,470 |
| 2021 | $133,427 | $175,000 | $0 | $308,427 | $308,427 |
| 2020 | $129,954 | $160,000 | $0 | $289,954 | $289,954 |
| 2019 | $92,508 | $185,000 | $0 | $277,508 | $277,508 |
| 2018 | $82,382 | $135,000 | $0 | $217,382 | $217,382 |
| 2017 | $82,951 | $100,000 | $0 | $182,951 | $182,951 |
| 2016 | $84,103 | $75,000 | $0 | $159,103 | $159,103 |
| 2015 | $85,255 | $55,000 | $0 | $140,255 | $140,255 |
| 2014 | $86,407 | $50,000 | $0 | $136,407 | $136,407 |
| 2013 | $87,558 | $50,000 | $0 | $137,558 | $137,558 |
| 2012 | $82,318 | $57,800 | $0 | $140,118 | $140,118 |
| 2011 | $83,431 | $68,000 | $0 | $151,431 | $151,431 |
| 2010 | $86,119 | $68,000 | $0 | $154,119 | $154,119 |
| 2009 | $89,880 | $88,320 | $0 | $178,200 | $178,200 |
| 2008 | $90,998 | $99,200 | $0 | $190,198 | $190,198 |
| 2007 | $92,115 | $116,000 | $0 | $208,115 | $208,115 |
Deed and Sales History
| 1 | 06/29/2022 | WD | Warranty Deed | LEE, HOLLY A | MILLER, KEVIN J | | | $468,400.00 | 53668 | 4547501 |
| 2 | 01/21/2011 | QCD | Quit Claim Deed | LEE, HOLLY A | LEE, HOLLY A | | | $0.00 | 3429 | 4289278 |
| 3 | 09/29/2003 | WD | Warranty Deed | HART, THOMAS E | LEE, HOLLY A | | | $123,610.00 | 34549 | 4078377 |
| 4 | 06/01/1990 | WD | Warranty Deed | MACDONALD, ALEXANDRA J | HART, THOMAS E | | | $72,900.00 | 3990 | 90013041 |
| 5 | 06/01/1987 | WD | Warranty Deed | CAVE, KENNETH L | MACDONALD, ALEXANDRA J | | | $56,500.00 | 71875 | 87008665 |
| 6 | 08/01/1986 | WD | Warranty Deed | JOHNSON, ARTHUR B | CAVE, KENNETH L | | | $6,000.00 | 62209 | 86010219 |
| 7 | 11/01/1982 | QCD | Quit Claim Deed | GARRON, DALE G | JOHNSON, ARTHUR B | | | $0.00 | 22803 | 402901 |
| 8 | 08/01/1979 | QCD | Quit Claim Deed | GARRON, DALE G | GARRON, DALE G | | | $0.00 | 93914 | 357005 |
| 9 | 01/01/1979 | OTHER | Other - Misc. Documents | Unknown | GARRON, DALE G | | | $6,500.00 | 906110 | 3472480 |
Payout Agreement
| No payout information available.. |