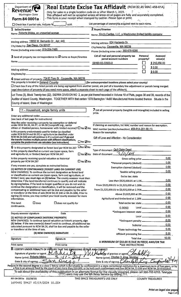
Property
Account |
| Property ID: | 392220 | Abbreviated Legal Description: | SIERRA 2 LOT 3 BLK 22 |
| Geographic ID: | S8160-02-22003-0 | Agent Code: | |
| Type: | Real | | |
| Tax Area: | 330 - APPRAISER-Cpvl Schl Dist, Special Dist, improved & less than 1 acre | Land Use Code | 11 |
| Open Space: | N | DFL | N |
| Historic Property: | N | Remodel Property: | N |
| Multi-Family Redevelopment: | N | | |
| Township: | | Section: | |
| Range: | |
Location |
| Address: | 724 EL TORO ST COUPEVILLE, WA 98239 | Mapsco: | |
| Neighborhood: | Cycle 2 | Map ID: | 10 |
| Neighborhood CD: | 2 |
Owner |
| Name: | KINGS LLC | Owner ID: | 89568 |
| Mailing Address: | 624 HACIENDA DR COUPEVILLE, WA 98239-9762 | % Ownership: | 100.0000000000% |
| | | Exemptions: | |
Taxes and Assessment Details
Values
| (+) Improvement Homesite Value: | + | $0 | |
| (+) Improvement Non-Homesite Value: | + | $16,449 | |
| (+) Land Homesite Value: | + | $0 | |
| (+) Land Non-Homesite Value: | + | $240,000 | |
| (+) Curr Use (HS): | + | $0 | $0 |
| (+) Curr Use (NHS): | + | $0 | $0 |
| | | -------------------------- | |
| (=) Market Value: | = | $256,449 | |
| (–) Productivity Loss: | – | $0 | |
| | | -------------------------- | |
| (=) Subtotal: | = | $256,449 | |
| (+) Senior Appraised Value: | + | $0 | |
| (+) Non-Senior Appraised Value: | + | $256,449 | |
| | | -------------------------- | |
| (=) Total Appraised Value: | = | $256,449 | |
| (–) Senior Exemption Loss: | – | $0 | |
| (–) Exemption Loss: | – | $0 | |
| | | -------------------------- | |
| (=) Taxable Value: | = | $256,449 | |
Taxing Jurisdiction
| Owner: | KINGS LLC | | |
| % Ownership: | 100.0000000000% | | |
| Total Value: | $256,449 | | |
| Tax Area: | 330 - APPRAISER-Cpvl Schl Dist, Special Dist, improved & less than 1 acre |
| CF | Conservation Futures | 0.0313996660 | $256,449 | $256,449 | $8.05 | | |
| CEM2 | Cemetery #2 | 0.0092609791 | $256,449 | $256,449 | $2.37 | | |
| FIRE2 | Fire & Rescue Dist #2 N Whidbey GEN | 0.5381486274 | $256,449 | $256,449 | $138.01 | | |
| HOBOND | Hospital BOND | 0.1893405597 | $256,449 | $256,449 | $48.56 | | |
| HOGEN | Hospital GEN | 0.3848777722 | $256,449 | $256,449 | $98.70 | | |
| CE | County Current Expense | 0.3674210519 | $256,449 | $256,449 | $94.22 | | |
| CR | County Roads | 0.4614296361 | $256,449 | $256,449 | $118.33 | | |
| ISLANDEMS | Hospital GEN (EMS) | 0.4952018576 | $256,449 | $256,449 | $126.99 | | |
| LIB | Library Sno-Isle GEN | 0.3039084203 | $256,449 | $256,449 | $77.94 | | |
| LIBCAP | Library Sno-Isle BOND (Cap Fac Imp Area) | 0.0528562629 | $256,449 | $256,449 | $13.55 | | |
| POCOUP | Port of Coupeville GEN | 0.1065226063 | $256,449 | $256,449 | $27.32 | | |
| POCOUPIDD | Port of Coupeville IDD | 0.3353038577 | $256,449 | $256,449 | $85.99 | | |
| COUPSDTECH | School 204 CP (TECH) | 0.1215123397 | $256,449 | $256,449 | $31.16 | | |
| SCH204MO | School 204 Enrichment | 0.6416662518 | $256,449 | $256,449 | $164.55 | | |
| ST | State School | 1.4761226122 | $256,449 | $256,449 | $378.55 | | |
| ST2 | State School Part 2 | 0.7953803475 | $256,449 | $256,449 | $203.97 | | |
| | Total Tax Rate: | 6.3103528484 | | | | | |
| | | | | Taxes w/Current Exemptions: | $1,618.26 | | |
| | | | | Taxes w/o Exemptions: | $1,618.26 | | |
Improvement / Building
| Improvement #1: | MANUFACTURED HOME | State Code: | Y | 924.0 sqft | Value: | $16,449 |
| Bathrooms: | 0 | Bedrooms: | 0 | | Ceiling: | PLASTER PAINTED | Cooling: | EVAP NO DUCT | | Exterior Wall/Cover: | VINYL | Floor Covering: | CARPET 100% | | Floor Structure: | SLAB ON GRADE | Foundation: | SLAB | | Heating: | FHA ELECTRIC | Interior Finish: | PLASTER | | Plumbing Fixture Cnt: | 1 | Roof Slope: | FLAT | | Roof Structure/Cover: | CJ ALUMINIUM HEAVY |   |   |
|
| | Type | Description | Class CD | Sub Class CD | Year Built | Area |
| | BAS | BASE/MAIN FLOOR | 2 | 0 | 1978 | 924.0 |
| | OWR | OPEN WOOD PORCH W/STEPS/ROOF | 2 | 0 | 1978 | 124.0 |
| | OWP | OPEN WOOD PORCH W/STEPS | 2 | 0 | 1978 | 120.0 |
Sketch
Property Image
Land
| 1 | 14 | SQ (08001-12000) | 0.1917 | 8350.45 | 0.00 | 0.00 | 1.00 | $240,000 | $0 |
Roll Value History
| 2026 | N/A | N/A | N/A | N/A | N/A |
| 2025 | $16,449 | $240,000 | $0 | $256,449 | $256,449 |
| 2024 | $16,449 | $220,000 | $0 | $236,449 | $236,449 |
| 2023 | $15,056 | $200,000 | $0 | $215,056 | $215,056 |
| 2022 | $14,316 | $180,000 | $0 | $194,316 | $194,316 |
| 2021 | $13,040 | $150,000 | $0 | $163,040 | $163,040 |
| 2020 | $13,236 | $120,000 | $0 | $133,236 | $133,236 |
| 2019 | $10,879 | $150,000 | $0 | $160,879 | $160,879 |
| 2018 | $10,828 | $135,000 | $0 | $145,828 | $145,828 |
| 2017 | $11,398 | $100,000 | $0 | $111,398 | $111,398 |
| 2016 | $11,968 | $75,000 | $0 | $86,968 | $86,968 |
| 2015 | $12,538 | $55,000 | $0 | $67,538 | $67,538 |
| 2014 | $13,108 | $50,000 | $0 | $63,108 | $63,108 |
| 2013 | $13,678 | $50,000 | $0 | $63,678 | $63,678 |
| 2012 | $14,400 | $57,800 | $0 | $72,200 | $72,200 |
| 2011 | $14,866 | $68,000 | $0 | $82,866 | $82,866 |
| 2010 | $11,524 | $68,000 | $0 | $79,524 | $79,524 |
| 2009 | $11,919 | $73,140 | $0 | $85,059 | $85,059 |
| 2008 | $12,572 | $82,150 | $0 | $94,722 | $94,722 |
| 2007 | $13,034 | $70,500 | $0 | $83,534 | $83,534 |
Deed and Sales History
| 1 | 10/01/2002 | WD | Warranty Deed | KING, CHARLES D | KINGS LLC, | | | $0.00 | 24015 | 4033441 |
| 2 | 12/01/1992 | OTHER | Other - Misc. Documents | KING, CHARLES D | KING, CHARLES D | | | $10,911.00 | 25114 | 0 |
| 3 | 12/01/1992 | WD | Warranty Deed | MELTON, JOEY W | KING, CHARLES D | | | $19,399.00 | 25115 | 92025197 |
| 4 | 10/01/1991 | OTHER | Other - Misc. Documents | MELTON, JOEY W | MELTON, JOEY W | | | $6,500.00 | 13707 | 0 |
| 5 | 10/01/1991 | WD | Warranty Deed | WHALBERG, DWIGHT E | MELTON, JOEY W | | | $20,500.00 | 13712 | 91015892 |
| 6 | 06/01/1986 | WD | Warranty Deed | MITCHELL, ROY W | WHALBERG, DWIGHT E | | | $12,075.00 | 61639 | 86007716 |
| 7 | 02/01/1983 | WD | Warranty Deed | POE, WALTER T | MITCHELL, ROY W | | | $10,000.00 | 30317 | 405653 |
| 8 | 01/01/1900 | OTHER | Other - Misc. Documents | Unknown | POE, WALTER T | | | $0.00 | 0 | 0 |
Payout Agreement
| No payout information available.. |