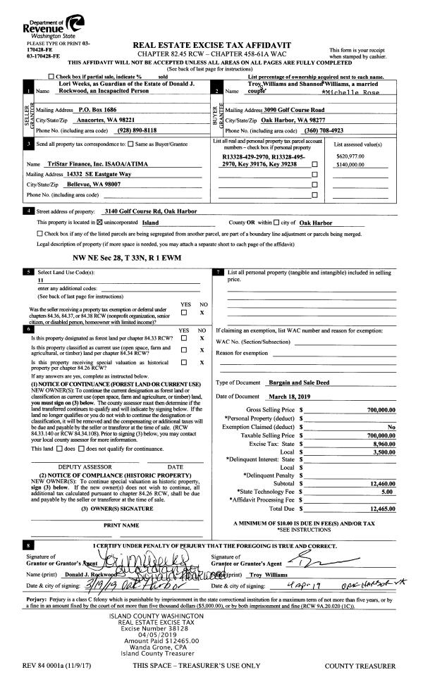
Property
Account |
| Property ID: | 39238 | Abbreviated Legal Description: | 63 - NW NW NE EX CO RD EX PT TO IS CO FOR R/W |
| Geographic ID: | R13328-495-2970 | Agent Code: | |
| Type: | Real | | |
| Tax Area: | 119 - APPRAISER-OH Schl Dist, outside OH, vacant & 50 acres or less | Land Use Code | 91 |
| Open Space: | N | DFL | N |
| Historic Property: | N | Remodel Property: | N |
| Multi-Family Redevelopment: | N | | |
| Township: | 33 | Section: | 28 |
| Range: | R1 |
Location |
| Address: | 3140 GOLF COURSE RD OAK HARBOR, WA 98277 | Mapsco: | |
| Neighborhood: | Cycle 6 | Map ID: | 241 |
| Neighborhood CD: | 6 |
Owner |
| Name: | WILLIAMS, TROY S | Owner ID: | 289399 |
| Mailing Address: | SHANNON MICHELLE ROSE WILLIAMS 3090 GOLF COURSE RD OAK HARBOR, WA 98277 | % Ownership: | 100.0000000000% |
| | | Exemptions: | |
Taxes and Assessment Details
Values
| (+) Improvement Homesite Value: | + | $0 | |
| (+) Improvement Non-Homesite Value: | + | $0 | |
| (+) Land Homesite Value: | + | $0 | |
| (+) Land Non-Homesite Value: | + | $170,000 | |
| (+) Curr Use (HS): | + | $0 | $0 |
| (+) Curr Use (NHS): | + | $0 | $0 |
| | | -------------------------- | |
| (=) Market Value: | = | $170,000 | |
| (–) Productivity Loss: | – | $0 | |
| | | -------------------------- | |
| (=) Subtotal: | = | $170,000 | |
| (+) Senior Appraised Value: | + | $0 | |
| (+) Non-Senior Appraised Value: | + | $170,000 | |
| | | -------------------------- | |
| (=) Total Appraised Value: | = | $170,000 | |
| (–) Senior Exemption Loss: | – | $0 | |
| (–) Exemption Loss: | – | $0 | |
| | | -------------------------- | |
| (=) Taxable Value: | = | $170,000 | |
Taxing Jurisdiction
| Owner: | WILLIAMS, TROY S | | |
| % Ownership: | 100.0000000000% | | |
| Total Value: | $170,000 | | |
| Tax Area: | 119 - APPRAISER-OH Schl Dist, outside OH, vacant & 50 acres or less |
| CF | Conservation Futures | 0.0313996660 | $170,000 | $170,000 | $5.34 | | |
| CEM1 | Cemetery #1 | 0.0040018856 | $170,000 | $170,000 | $0.68 | | |
| HOBOND | Hospital BOND | 0.1893405597 | $170,000 | $170,000 | $32.19 | | |
| HOGEN | Hospital GEN | 0.3848777722 | $170,000 | $170,000 | $65.43 | | |
| CE | County Current Expense | 0.3674210519 | $170,000 | $170,000 | $62.46 | | |
| CR | County Roads | 0.4614296361 | $170,000 | $170,000 | $78.44 | | |
| ISLANDEMS | Hospital GEN (EMS) | 0.4952018576 | $170,000 | $170,000 | $84.18 | | |
| LIB | Library Sno-Isle GEN | 0.3039084203 | $170,000 | $170,000 | $51.66 | | |
| NWHIDPRMT | P & R N Whidbey GEN | 0.1990272349 | $170,000 | $170,000 | $33.83 | | |
| SCH201MO | School 201 Enrichment | 2.3851112745 | $170,000 | $170,000 | $405.47 | | |
| ST | State School | 1.4761226122 | $170,000 | $170,000 | $250.94 | | |
| ST2 | State School Part 2 | 0.7953803475 | $170,000 | $170,000 | $135.21 | | |
| | Total Tax Rate: | 7.0932223185 | | | | | |
| | | | | Taxes w/Current Exemptions: | $1,205.83 | | |
| | | | | Taxes w/o Exemptions: | $1,205.83 | | |
Improvement / Building
Sketch
| No sketches available for this property. |
Property Image
Land
| 1 | 32 | AC (03.01-09.99) | 9.7200 | 423403.20 | 0.00 | 0.00 | 1.00 | $170,000 | $0 |
Roll Value History
| 2026 | N/A | N/A | N/A | N/A | N/A |
| 2025 | $0 | $170,000 | $0 | $170,000 | $170,000 |
| 2024 | $0 | $150,000 | $0 | $150,000 | $150,000 |
| 2023 | $0 | $140,000 | $0 | $140,000 | $140,000 |
| 2022 | $0 | $100,000 | $0 | $100,000 | $100,000 |
| 2021 | $0 | $90,000 | $0 | $90,000 | $90,000 |
| 2020 | $0 | $90,000 | $0 | $90,000 | $90,000 |
| 2019 | $0 | $140,000 | $0 | $140,000 | $140,000 |
| 2018 | $0 | $140,000 | $0 | $140,000 | $140,000 |
| 2017 | $0 | $110,000 | $0 | $110,000 | $110,000 |
| 2016 | $0 | $110,000 | $0 | $110,000 | $110,000 |
| 2015 | $0 | $110,000 | $0 | $110,000 | $110,000 |
| 2014 | $0 | $126,360 | $0 | $126,360 | $126,360 |
| 2013 | $0 | $126,360 | $0 | $126,360 | $126,360 |
| 2012 | $0 | $82,105 | $0 | $82,105 | $82,105 |
| 2011 | $0 | $82,105 | $0 | $82,105 | $82,105 |
| 2010 | $0 | $82,105 | $0 | $82,105 | $82,105 |
| 2009 | $0 | $162,105 | $0 | $162,105 | $162,105 |
| 2008 | $0 | $170,105 | $0 | $170,105 | $170,105 |
| 2007 | $0 | $84,281 | $0 | $84,281 | $84,281 |
Deed and Sales History
| 1 | 04/23/2019 | BARGSLD | Bargain And Sale Deed | ROCKWOOD, DONALD J | WILLIAMS, TROY S | | | $700,000.00 | 38128 | 4461642 |
|   | |
| 2 | 04/01/1987 | QCD | Quit Claim Deed | ROCKWOOD, DONALD J | ROCKWOOD, DONALD J | | | $1,680.00 | 62126 | 85007905 |
| 3 | 05/01/1978 | OTHER | Other - Misc. Documents | RO, | ROCKWOOD, DONALD J | | | $19,000.00 | 82512 | 333769 |
| 4 | 01/01/1900 | OTHER | Other - Misc. Documents | Unknown | RO, | | | $0.00 | 825120 | 33376900 |
Payout Agreement
| No payout information available.. |