Property
Account |
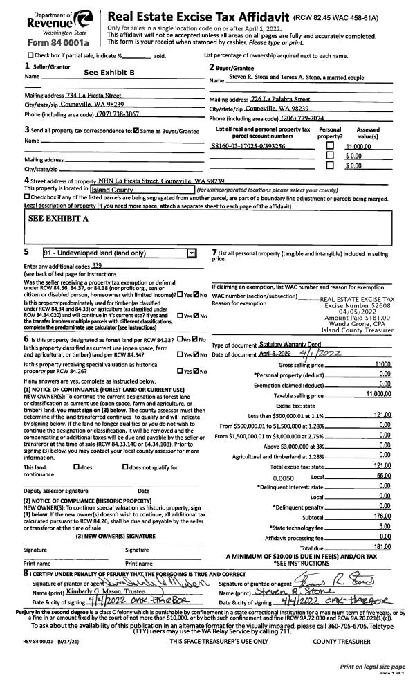
| Property ID: | 393256 | Abbreviated Legal Description: | SIERRA 3 LOT 25 BLK 17 |
| Geographic ID: | S8160-03-17025-0 | Agent Code: | |
| Type: | Real | | |
| Tax Area: | 339 - APPRAISER-Cpvl Schl Dist, Special Dist, vacant & 50 acres or less | Land Use Code | 99 |
| Open Space: | N | DFL | N |
| Historic Property: | N | Remodel Property: | N |
| Multi-Family Redevelopment: | N | | |
| Township: | | Section: | |
| Range: | |
Location |
| Address: | | Mapsco: | |
| Neighborhood: | Cycle 2 | Map ID: | 9 |
| Neighborhood CD: | 2 |
Owner |
| Name: | STONE, STEVEN R | Owner ID: | 303684 |
| Mailing Address: | TERESA A STONE 726 LA PALABRA ST COUPEVILLE, WA 98239 | % Ownership: | 100.0000000000% |
| | | Exemptions: | |
Taxes and Assessment Details
Values
| (+) Improvement Homesite Value: | + | $0 | |
| (+) Improvement Non-Homesite Value: | + | $0 | |
| (+) Land Homesite Value: | + | $0 | |
| (+) Land Non-Homesite Value: | + | $24,000 | |
| (+) Curr Use (HS): | + | $0 | $0 |
| (+) Curr Use (NHS): | + | $0 | $0 |
| | | -------------------------- | |
| (=) Market Value: | = | $24,000 | |
| (–) Productivity Loss: | – | $0 | |
| | | -------------------------- | |
| (=) Subtotal: | = | $24,000 | |
| (+) Senior Appraised Value: | + | $0 | |
| (+) Non-Senior Appraised Value: | + | $24,000 | |
| | | -------------------------- | |
| (=) Total Appraised Value: | = | $24,000 | |
| (–) Senior Exemption Loss: | – | $0 | |
| (–) Exemption Loss: | – | $0 | |
| | | -------------------------- | |
| (=) Taxable Value: | = | $24,000 | |
Taxing Jurisdiction
| Owner: | STONE, STEVEN R | | |
| % Ownership: | 100.0000000000% | | |
| Total Value: | $24,000 | | |
| Tax Area: | 339 - APPRAISER-Cpvl Schl Dist, Special Dist, vacant & 50 acres or less |
| CF | Conservation Futures | 0.0313996660 | $24,000 | $24,000 | $0.75 | | |
| CEM2 | Cemetery #2 | 0.0092609791 | $24,000 | $24,000 | $0.22 | | |
| HOBOND | Hospital BOND | 0.1893405597 | $24,000 | $24,000 | $4.54 | | |
| HOGEN | Hospital GEN | 0.3848777722 | $24,000 | $24,000 | $9.24 | | |
| CE | County Current Expense | 0.3674210519 | $24,000 | $24,000 | $8.82 | | |
| CR | County Roads | 0.4614296361 | $24,000 | $24,000 | $11.07 | | |
| ISLANDEMS | Hospital GEN (EMS) | 0.4952018576 | $24,000 | $24,000 | $11.88 | | |
| LIB | Library Sno-Isle GEN | 0.3039084203 | $24,000 | $24,000 | $7.29 | | |
| LIBCAP | Library Sno-Isle BOND (Cap Fac Imp Area) | 0.0528562629 | $24,000 | $24,000 | $1.27 | | |
| POCOUP | Port of Coupeville GEN | 0.1065226063 | $24,000 | $24,000 | $2.56 | | |
| POCOUPIDD | Port of Coupeville IDD | 0.3353038577 | $24,000 | $24,000 | $8.05 | | |
| COUPSDTECH | School 204 CP (TECH) | 0.1215123397 | $24,000 | $24,000 | $2.92 | | |
| SCH204MO | School 204 Enrichment | 0.6416662518 | $24,000 | $24,000 | $15.40 | | |
| ST | State School | 1.4761226122 | $24,000 | $24,000 | $35.43 | | |
| ST2 | State School Part 2 | 0.7953803475 | $24,000 | $24,000 | $19.09 | | |
| | Total Tax Rate: | 5.7722042210 | | | | | |
| | | | | Taxes w/Current Exemptions: | $138.53 | | |
| | | | | Taxes w/o Exemptions: | $138.53 | | |
Improvement / Building
Sketch
| No sketches available for this property. |
Property Image
Land
| 1 | 14 | SQ (08001-12000) | 0.2040 | 8886.24 | 0.00 | 0.00 | 1.00 | $24,000 | $0 |
Roll Value History
| 2026 | N/A | N/A | N/A | N/A | N/A |
| 2025 | $0 | $24,000 | $0 | $24,000 | $24,000 |
| 2024 | $0 | $20,000 | $0 | $20,000 | $20,000 |
| 2023 | $0 | $14,000 | $0 | $14,000 | $14,000 |
| 2022 | $0 | $14,000 | $0 | $14,000 | $14,000 |
| 2021 | $0 | $11,000 | $0 | $11,000 | $11,000 |
| 2020 | $0 | $6,500 | $0 | $6,500 | $6,500 |
| 2019 | $0 | $7,000 | $0 | $7,000 | $7,000 |
| 2018 | $0 | $7,000 | $0 | $7,000 | $7,000 |
| 2017 | $0 | $7,000 | $0 | $7,000 | $7,000 |
| 2016 | $0 | $7,000 | $0 | $7,000 | $7,000 |
| 2015 | $0 | $7,000 | $0 | $7,000 | $7,000 |
| 2014 | $0 | $7,000 | $0 | $7,000 | $7,000 |
| 2013 | $0 | $5,000 | $0 | $5,000 | $5,000 |
| 2012 | $0 | $6,000 | $0 | $6,000 | $6,000 |
| 2011 | $0 | $6,000 | $0 | $6,000 | $6,000 |
| 2010 | $0 | $6,000 | $0 | $6,000 | $6,000 |
| 2009 | $0 | $6,900 | $0 | $6,900 | $6,900 |
| 2008 | $0 | $6,200 | $0 | $6,200 | $6,200 |
| 2007 | $0 | $9,000 | $0 | $9,000 | $9,000 |
Deed and Sales History
| 1 | 04/01/2022 | WD | Warranty Deed | MASON TTEE, KIMBERLY G | STONE, STEVEN R | | | $11,000.00 | 52608 | 4542831 |
| 2 | 12/14/2018 | QCD | Quit Claim Deed | MURRAY, JAMES D | MASON TTEE, KIMBERLY G | | | $0.00 | 37048 | 4456922 |
| 3 | 12/14/2018 | QCD | Quit Claim Deed | MASON, KIMBERLY G | MASON TTEE, KIMBERLY G | | | $0.00 | 37065 | 4456921 |
| 4 | 12/08/2017 | WD | Warranty Deed | BUTSACK, STEVEN M | MASON, KIMBERLY G | | | $500,000.00 | 32208 | 4435489 |
|   | |
| 5 | 12/27/2005 | WD | Warranty Deed | MESFORD, AGNES | BUTSACK, STEVEN M | | | $5,000.00 | 60186 | 4159871 |
| 6 | 05/01/1978 | PACD | Purchaser's Assignment | MESFORD, HARVEY | MESFORD, AGNES | | | $0.00 | 59327 | 0 |
| 7 | 01/01/1900 | OTHER | Other - Misc. Documents | Unknown | MESFORD, HARVEY | | | $0.00 | 0 | 0 |
Payout Agreement
| No payout information available.. |