Property
Account |
| Property ID: | 393737 | Abbreviated Legal Description: | SIERRA 3 LOTS 10 & 11 BLK 26 COMB 9/91 |
| Geographic ID: | S8160-03-26010-0 | Agent Code: | |
| Type: | Real | | |
| Tax Area: | 330 - APPRAISER-Cpvl Schl Dist, Special Dist, improved & less than 1 acre | Land Use Code | 11 |
| Open Space: | N | DFL | N |
| Historic Property: | N | Remodel Property: | N |
| Multi-Family Redevelopment: | N | | |
| Township: | | Section: | |
| Range: | |
Location |
| Address: | 756 EL CINE ST COUPEVILLE, WA 98239 | Mapsco: | |
| Neighborhood: | Cycle 2 | Map ID: | 10 |
| Neighborhood CD: | 2 |
Owner |
| Name: | CHRISTENSEN, STEVEN K | Owner ID: | 309411 |
| Mailing Address: | OMMA CHRISTENSEN 756 EL CINE ST COUPEVILLE, WA 98239 | % Ownership: | 100.0000000000% |
| | | Exemptions: | |
Taxes and Assessment Details
Values
| (+) Improvement Homesite Value: | + | N/A | |
| (+) Improvement Non-Homesite Value: | + | N/A | |
| (+) Land Homesite Value: | + | N/A | |
| (+) Land Non-Homesite Value: | + | N/A | Ag / Timber Use Value |
| (+) Curr Use (HS): | + | N/A | N/A |
| (+) Curr Use (NHS): | + | N/A | N/A |
| | | -------------------------- | |
| (=) Market Value: | = | N/A | |
| (–) Productivity Loss: | – | N/A | |
| | | -------------------------- | |
| (=) Subtotal: | = | N/A | |
| (+) Senior Appraised Value: | + | N/A | |
| (+) Non-Senior Appraised Value: | + | N/A | |
| | | -------------------------- | |
| (=) Total Appraised Value: | = | N/A | |
| (–) Senior Exemption Loss: | – | N/A | |
| (–) Exemption Loss: | – | N/A | |
| | | -------------------------- | |
| (=) Taxable Value: | = | N/A | |
Taxing Jurisdiction
| Owner: | CHRISTENSEN, STEVEN K | | |
| % Ownership: | 100.0000000000% | | |
| Total Value: | N/A | | |
| Tax Area: | 330 - APPRAISER-Cpvl Schl Dist, Special Dist, improved & less than 1 acre |
| CF | Conservation Futures | N/A | N/A | N/A | N/A | | |
| WCD | Whidbey Conservation District | N/A | N/A | N/A | N/A | | |
| CEM2 | Cemetery #2 | N/A | N/A | N/A | N/A | | |
| FIRE2 | Fire & Rescue Dist #2 N Whidbey GEN | N/A | N/A | N/A | N/A | | |
| HOBOND | Hospital BOND | N/A | N/A | N/A | N/A | | |
| HOGEN | Hospital GEN | N/A | N/A | N/A | N/A | | |
| CE | County Current Expense | N/A | N/A | N/A | N/A | | |
| CR | County Roads | N/A | N/A | N/A | N/A | | |
| ISLANDEMS | Hospital GEN (EMS) | N/A | N/A | N/A | N/A | | |
| LIB | Library Sno-Isle GEN | N/A | N/A | N/A | N/A | | |
| LIBCAP | Library Sno-Isle BOND (Cap Fac Imp Area) | N/A | N/A | N/A | N/A | | |
| POCOUP | Port of Coupeville GEN | N/A | N/A | N/A | N/A | | |
| COUPSDTECH | School 204 CP (TECH) | N/A | N/A | N/A | N/A | | |
| SCH204MO | School 204 Enrichment | N/A | N/A | N/A | N/A | | |
| ST | State School | N/A | N/A | N/A | N/A | | |
| ST2 | State School Part 2 | N/A | N/A | N/A | N/A | | |
| | Total Tax Rate: | N/A | | | | | |
| | | | | Taxes w/Current Exemptions: | N/A | | |
| | | | | Taxes w/o Exemptions: | N/A | | |
Improvement / Building
| Improvement #1: | RESIDENTIAL | State Code: | Y | 2403.6 sqft | Value: | N/A |
| Bathrooms: | 3 | Bedrooms: | 0 | | Ceiling: | DRYWALL PAINTED | Cooling: | HEAT PUMP/CONV/V | | Exterior Wall/Cover: | WOOD SIDING | Floor Covering: | CARPET/VINYL 80-20 | | Floor Structure: | WOOD W/SUBFLOOR | Foundation: | CONCRETE | | Interior Finish: | DRYWALL PAINT | Plumbing Fixture Cnt: | 11 | | Roof Slope: | 5" IN 12" | Roof Structure/Cover: | CJ ASPHALT |
|
| | Type | Description | Class CD | Sub Class CD | Year Built | Area |
| | BAS | BASE/MAIN FLOOR | 3 | 0 | 1991 | 2403.6 |
| | DGR | DETACHED GARAGE | 3 | 0 | 1991 | 687.7 |
| | AGR | ATTACHED GARAGE | 3 | 0 | 1991 | 532.8 |
| | OWP | OPEN WOOD PORCH W/STEPS | 3 | 0 | 1991 | 534.6 |
Sketch
Property Image
Land
| 1 | 13 | SQ (06001-08000) | 0.3642 | 15864.55 | 0.00 | 0.00 | 1.00 | N/A | N/A |
Roll Value History
| 2026 | N/A | N/A | N/A | N/A | N/A |
| 2025 | $402,028 | $330,000 | $0 | $732,028 | $732,028 |
| 2024 | $387,184 | $310,000 | $0 | $697,184 | $697,184 |
| 2023 | $392,131 | $310,000 | $0 | $702,131 | $702,131 |
| 2022 | $359,563 | $310,000 | $0 | $669,563 | $669,563 |
| 2021 | $312,539 | $190,000 | $0 | $502,539 | $502,539 |
| 2020 | $305,174 | $160,000 | $0 | $465,174 | $465,174 |
| 2019 | $236,595 | $185,000 | $0 | $421,595 | $421,595 |
| 2018 | $205,754 | $165,000 | $0 | $370,754 | $370,754 |
| 2017 | $207,040 | $140,000 | $0 | $347,040 | $347,040 |
| 2016 | $209,730 | $125,000 | $0 | $334,730 | $334,730 |
| 2015 | $212,419 | $125,000 | $0 | $337,419 | $337,419 |
| 2014 | $215,107 | $85,000 | $0 | $300,107 | $300,107 |
| 2013 | $217,796 | $75,000 | $0 | $292,796 | $292,796 |
| 2012 | $218,484 | $85,000 | $0 | $303,484 | $303,484 |
| 2011 | $221,147 | $100,000 | $0 | $321,147 | $321,147 |
| 2010 | $224,018 | $100,000 | $0 | $324,018 | $324,018 |
| 2009 | $224,595 | $138,000 | $0 | $362,595 | $362,595 |
| 2008 | $227,225 | $155,000 | $0 | $382,225 | $382,225 |
| 2007 | $229,938 | $155,000 | $0 | $384,938 | $384,938 |
Deed and Sales History
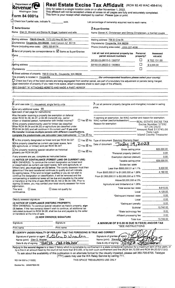
| 1 | 07/19/2023 | WD | Warranty Deed | WOOLEN, GLEN D | CHRISTENSEN, STEVEN K | | | $825,000.00 | 57392 | 4562585 |
|   | |
| 2 | 08/09/2011 | WD | Warranty Deed | DALLA SANTA, TERRY M | WOOLEN, GLEN D | | | $330,000.00 | 5567 | 4301269 |
| 3 | 04/24/2006 | WD | Warranty Deed | CRANDALL, STACY K | DELLA SANTA, TERRY M | | | $429,900.00 | 61860 | 4168948 |
| 4 | 05/05/1999 | DECREE | Divorce Decree/Legal Separation | CRANDALL, MICHAEL A | CRANDALL, STACY K | | | $0.00 | 91756 | 99011178 |
| 5 | 09/01/1991 | OTHER | Other - Misc. Documents | CRANDALL, MICHAEL A | CRANDALL, MICHAEL A | | | $0.00 | 64419 | 91012814 |
| 6 | 07/01/1991 | WD | Warranty Deed | MIRR, GREGORY S | CRANDALL, MICHAEL A | | | $25,000.00 | 12412 | 91010326 |
| 7 | 07/01/1985 | WD | Warranty Deed | SIERRA, | MIRR, GREGORY S | | | $4,500.00 | 51887 | 85007321 |
| 8 | 01/01/1900 | OTHER | Other - Misc. Documents | Unknown | SIERRA, | | | $0.00 | 0 | 0 |
Payout Agreement
| No payout information available.. |