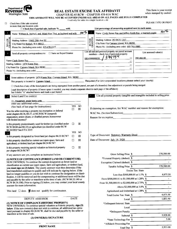
Property
Account |
| Property ID: | 394754 | Abbreviated Legal Description: | SIERRA PARK - LOT 4 & 5 COMB 3/87 |
| Geographic ID: | S8165-00-00005-0 | Agent Code: | |
| Type: | Real | | |
| Tax Area: | 540 - APPRAISER-Stan/Cam Schl Dist, Special Dist, improved & less than 1 acre | Land Use Code | 11 |
| Open Space: | N | DFL | N |
| Historic Property: | N | Remodel Property: | N |
| Multi-Family Redevelopment: | N | | |
| Township: | | Section: | |
| Range: | |
Location |
| Address: | 1474 KAREN WAY CAMANO ISLAND, WA 98282 | Mapsco: | |
| Neighborhood: | 58RecamS-East Cam | Map ID: | 866 |
| Neighborhood CD: | 58RecamS |
Owner |
| Name: | RAY, CINDY RENEE | Owner ID: | 295210 |
| Mailing Address: | JEFFREY KEITH RAY 1474 KAREN WAY CAMANO ISLAND, WA 98282 | % Ownership: | 100.0000000000% |
| | | Exemptions: | |
Taxes and Assessment Details
Values
| (+) Improvement Homesite Value: | + | $0 | |
| (+) Improvement Non-Homesite Value: | + | $241,710 | |
| (+) Land Homesite Value: | + | $0 | |
| (+) Land Non-Homesite Value: | + | $225,000 | |
| (+) Curr Use (HS): | + | $0 | $0 |
| (+) Curr Use (NHS): | + | $0 | $0 |
| | | -------------------------- | |
| (=) Market Value: | = | $466,710 | |
| (–) Productivity Loss: | – | $0 | |
| | | -------------------------- | |
| (=) Subtotal: | = | $466,710 | |
| (+) Senior Appraised Value: | + | $0 | |
| (+) Non-Senior Appraised Value: | + | $466,710 | |
| | | -------------------------- | |
| (=) Total Appraised Value: | = | $466,710 | |
| (–) Senior Exemption Loss: | – | $0 | |
| (–) Exemption Loss: | – | $0 | |
| | | -------------------------- | |
| (=) Taxable Value: | = | $466,710 | |
Taxing Jurisdiction
| Owner: | RAY, CINDY RENEE | | |
| % Ownership: | 100.0000000000% | | |
| Total Value: | $466,710 | | |
| Tax Area: | 540 - APPRAISER-Stan/Cam Schl Dist, Special Dist, improved & less than 1 acre |
| CF | Conservation Futures | 0.0313996660 | $466,710 | $466,710 | $14.65 | | |
| EMS1 | Fire & Rescue Dist #1 Camano GEN (EMS) | 0.4998471806 | $466,710 | $466,710 | $233.28 | | |
| FIRE1 | Fire & Rescue Dist #1 Camano GEN | 1.2496603404 | $466,710 | $466,710 | $583.23 | | |
| FIRE1BOND | Fire & Rescue Dist #1 Camano BOND | 0.1630371212 | $466,710 | $466,710 | $76.09 | | |
| CE | County Current Expense | 0.3674210519 | $466,710 | $466,710 | $171.48 | | |
| CR | County Roads | 0.4614296361 | $466,710 | $466,710 | $215.35 | | |
| LIB | Library Sno-Isle GEN | 0.3039084203 | $466,710 | $466,710 | $141.84 | | |
| SCH205_401 | School 205-401 Enrichment | 1.3697998934 | $466,710 | $466,710 | $639.30 | | |
| SCH205BOND | School 205-401 BOND | 0.9354199323 | $466,710 | $466,710 | $436.57 | | |
| ST | State School | 1.4761226122 | $466,710 | $466,710 | $688.92 | | |
| ST2 | State School Part 2 | 0.7953803475 | $466,710 | $466,710 | $371.21 | | |
| | Total Tax Rate: | 7.6534262019 | | | | | |
| | | | | Taxes w/Current Exemptions: | $3,571.92 | | |
| | | | | Taxes w/o Exemptions: | $3,571.92 | | |
Improvement / Building
| Improvement #1: | RESIDENTIAL | State Code: | Y | 1420.0 sqft | Value: | $241,710 |
| Bathrooms: | 2 | Bedrooms: | 3 | | Ceiling: | DRY WALL SPRAYED | Exterior Wall/Cover: | PLY/HARDBOARD T-111 | | Floor Covering: | CARPET/VINYL 80-20 | Floor Structure: | SLAB ON GRADE | | Foundation: | SLAB | Heating: | BASEBOARD ELECTRIC | | Interior Finish: | DRYWALL PAINT | Plumbing Fixture Cnt: | 9 | | Roof Slope: | 4" IN 12" | Roof Structure/Cover: | CJ ASPHALT |
|
| | Type | Description | Class CD | Sub Class CD | Year Built | Area |
| | BAS | BASE/MAIN FLOOR | 3 | 0 | 1983 | 1420.0 |
| | OCP | OPEN CARPORT | 3 | 0 | 1983 | 224.0 |
| | DGR | DETACHED GARAGE | 3 | 0 | 1983 | 528.0 |
| | OWP | OPEN WOOD PORCH W/STEPS | 3 | 0 | 1983 | 190.0 |
| | UTY | STORAGE/UTILITY | 3 | 0 | 1983 | 1071.3 |
Sketch
Property Image
Land
| 1 | 15 | SQ (12001-21780) | 0.0000 | 0.00 | 0.00 | 0.00 | 1.00 | $225,000 | $0 |
Roll Value History
| 2026 | N/A | N/A | N/A | N/A | N/A |
| 2025 | $241,710 | $225,000 | $0 | $466,710 | $466,710 |
| 2024 | $250,759 | $220,000 | $0 | $470,759 | $470,759 |
| 2023 | $254,090 | $220,000 | $0 | $474,090 | $474,090 |
| 2022 | $233,102 | $200,000 | $0 | $433,102 | $433,102 |
| 2021 | $205,322 | $140,000 | $0 | $345,322 | $345,322 |
| 2020 | $195,461 | $110,000 | $0 | $305,461 | $305,461 |
| 2019 | $140,466 | $140,000 | $0 | $280,466 | $280,466 |
| 2018 | $140,925 | $130,000 | $0 | $270,925 | $66,362 |
| 2017 | $141,846 | $110,000 | $0 | $251,846 | $66,362 |
| 2016 | $143,689 | $75,000 | $0 | $218,689 | $66,362 |
| 2015 | $126,856 | $50,000 | $0 | $176,856 | $66,362 |
| 2014 | $128,337 | $50,000 | $0 | $178,337 | $107,838 |
| 2013 | $129,813 | $50,000 | $0 | $179,813 | $179,813 |
| 2012 | $131,293 | $66,400 | $0 | $197,693 | $107,839 |
| 2011 | $132,770 | $83,000 | $0 | $215,770 | $107,839 |
| 2010 | $140,497 | $83,000 | $0 | $223,497 | $107,839 |
| 2009 | $147,138 | $79,228 | $0 | $226,366 | $107,838 |
| 2008 | $147,524 | $98,350 | $0 | $245,874 | $107,838 |
| 2007 | $150,813 | $96,421 | $0 | $247,234 | $165,905 |
Deed and Sales History
| 1 | 07/14/2020 | WD | Warranty Deed | MCNEAL, WILLIAM K | RAY, CINDY RENEE | | | $370,500.00 | 43824 | 4491380 |
| 2 | 06/03/2015 | TOD | Transfer On Death Deed | MCNEIL, NONA A | MCNEAL, WILLIAM K | | | $0.00 | 39713 | 4380267 |
| 3 | 10/11/2001 | 5 | DNU - Marriage License/Name Change | MCNEIL, KARL A | MCNEIL, NONA A | | | $0.00 | 69129 | 0 |
| 4 | 07/01/1983 | WD | Warranty Deed | MAHOOD, FERN F | MCNEIL, KARL A | | | $10,000.00 | 31897 | 411997 |
| 5 | 06/01/1979 | EXECUTORD | Executor Deed | BAYES, DONALD D | MAHOOD, FERN F | | | $9,000.00 | 92970 | 354234 |
| 6 | 01/01/1900 | OTHER | Other - Misc. Documents | Unknown | BAYES, DONALD D | | | $0.00 | 0 | 0 |
Payout Agreement
| No payout information available.. |