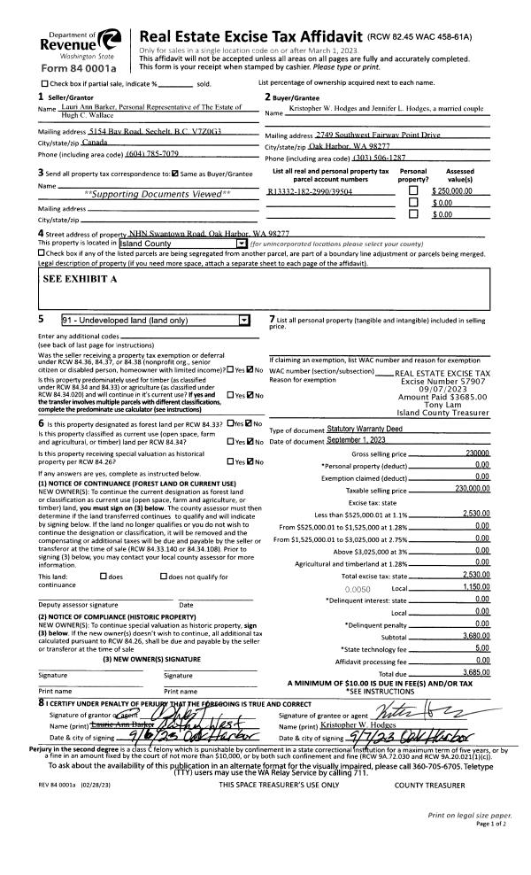
Property
Account |
| Property ID: | 39504 | Abbreviated Legal Description: | 27 - N/2 SW NW SE EX RD |
| Geographic ID: | R13332-182-2990 | Agent Code: | |
| Type: | Real | | |
| Tax Area: | 112 - APPRAISER-OH Schl Dist, outside OH, improved, greater than 1 acre | Land Use Code | 11 |
| Open Space: | N | DFL | N |
| Historic Property: | N | Remodel Property: | N |
| Multi-Family Redevelopment: | N | | |
| Township: | 33 | Section: | 32 |
| Range: | R1 |
Location |
| Address: | 1848 SWANTOWN RD OAK HARBOR, WA 98277 | Mapsco: | |
| Neighborhood: | Cycle 1 | Map ID: | 245 |
| Neighborhood CD: | 1 |
Owner |
| Name: | HODGES, KRISTOPHER W | Owner ID: | 309987 |
| Mailing Address: | JENNIFER L HODGES 2749 SOUTHWEST FAIRWAY POINT DR OAK HARBOR, WA 98277 | % Ownership: | 100.0000000000% |
| | | Exemptions: | |
Taxes and Assessment Details
Values
| (+) Improvement Homesite Value: | + | $0 | |
| (+) Improvement Non-Homesite Value: | + | $28,807 | |
| (+) Land Homesite Value: | + | $0 | |
| (+) Land Non-Homesite Value: | + | $267,500 | |
| (+) Curr Use (HS): | + | $0 | $0 |
| (+) Curr Use (NHS): | + | $0 | $0 |
| | | -------------------------- | |
| (=) Market Value: | = | $296,307 | |
| (–) Productivity Loss: | – | $0 | |
| | | -------------------------- | |
| (=) Subtotal: | = | $296,307 | |
| (+) Senior Appraised Value: | + | $0 | |
| (+) Non-Senior Appraised Value: | + | $296,307 | |
| | | -------------------------- | |
| (=) Total Appraised Value: | = | $296,307 | |
| (–) Senior Exemption Loss: | – | $0 | |
| (–) Exemption Loss: | – | $0 | |
| | | -------------------------- | |
| (=) Taxable Value: | = | $296,307 | |
Taxing Jurisdiction
| Owner: | HODGES, KRISTOPHER W | | |
| % Ownership: | 100.0000000000% | | |
| Total Value: | $296,307 | | |
| Tax Area: | 112 - APPRAISER-OH Schl Dist, outside OH, improved, greater than 1 acre |
| CF | Conservation Futures | 0.0313996660 | $296,307 | $296,307 | $9.30 | | |
| CEM1 | Cemetery #1 | 0.0040018856 | $296,307 | $296,307 | $1.19 | | |
| FIRE2 | Fire & Rescue Dist #2 N Whidbey GEN | 0.5381486274 | $296,307 | $296,307 | $159.46 | | |
| HOBOND | Hospital BOND | 0.1893405597 | $296,307 | $296,307 | $56.10 | | |
| HOGEN | Hospital GEN | 0.3848777722 | $296,307 | $296,307 | $114.04 | | |
| CE | County Current Expense | 0.3674210519 | $296,307 | $296,307 | $108.87 | | |
| CR | County Roads | 0.4614296361 | $296,307 | $296,307 | $136.72 | | |
| ISLANDEMS | Hospital GEN (EMS) | 0.4952018576 | $296,307 | $296,307 | $146.73 | | |
| LIB | Library Sno-Isle GEN | 0.3039084203 | $296,307 | $296,307 | $90.05 | | |
| NWHIDPRMT | P & R N Whidbey GEN | 0.1990272349 | $296,307 | $296,307 | $58.97 | | |
| SCH201MO | School 201 Enrichment | 2.3851112745 | $296,307 | $296,307 | $706.73 | | |
| ST | State School | 1.4761226122 | $296,307 | $296,307 | $437.39 | | |
| ST2 | State School Part 2 | 0.7953803475 | $296,307 | $296,307 | $235.68 | | |
| | Total Tax Rate: | 7.6313709459 | | | | | |
| | | | | Taxes w/Current Exemptions: | $2,261.23 | | |
| | | | | Taxes w/o Exemptions: | $2,261.23 | | |
Improvement / Building
| Improvement #1: | RESIDENTIAL | State Code: | Y | 4289.0 sqft | Value: | $28,807 |
| Bathrooms: | 5 | Bedrooms: | 4 | | Ceiling: | (NONE) | Exterior Wall/Cover: | (NONE) | | Floor Covering: | (NONE) | Floor Structure: | (NONE) | | Foundation: | CONCRETE | Heating: | HEAT PUMP | | Interior Finish: | (NONE) | Plumbing Fixture Cnt: | 21 | | Roof Slope: | 8" IN 12" | Roof Structure/Cover: | (NONE) |
|
| | Type | Description | Class CD | Sub Class CD | Year Built | Area |
| | BAS | BASE/MAIN FLOOR | 4 | 0 | 2025 | 4289.0 |
| | AGR | ATTACHED GARAGE | 4 | 0 | 2025 | 912.0 |
| | OP4 | OPEN PORCH W/CEILING-ROOF | 4 | 0 | 2025 | 150.0 |
| | OP4 | OPEN PORCH W/CEILING-ROOF | 4 | 0 | 2025 | 693.0 |
Sketch
| No sketches available for this property. |
Property Image
Land
| 1 | 32 | AC (03.01-09.99) | 4.7417 | 206548.52 | 327.60 | 630.49 | 1.00 | $267,500 | $0 |
Roll Value History
| 2026 | N/A | N/A | N/A | N/A | N/A |
| 2025 | $28,807 | $267,500 | $0 | $296,307 | $296,307 |
| 2024 | $0 | $250,000 | $0 | $250,000 | $250,000 |
| 2023 | $0 | $250,000 | $0 | $250,000 | $250,000 |
| 2022 | $0 | $210,000 | $0 | $210,000 | $210,000 |
| 2021 | $0 | $170,000 | $0 | $170,000 | $170,000 |
| 2020 | $0 | $180,000 | $0 | $180,000 | $180,000 |
| 2019 | $0 | $180,000 | $0 | $180,000 | $180,000 |
| 2018 | $0 | $180,000 | $0 | $180,000 | $180,000 |
| 2017 | $0 | $150,000 | $0 | $150,000 | $150,000 |
| 2016 | $0 | $110,000 | $0 | $110,000 | $110,000 |
| 2015 | $0 | $100,000 | $0 | $100,000 | $100,000 |
| 2014 | $0 | $100,000 | $0 | $100,000 | $100,000 |
| 2013 | $0 | $95,200 | $0 | $95,200 | $95,200 |
| 2012 | $0 | $95,200 | $0 | $95,200 | $95,200 |
| 2011 | $0 | $95,200 | $0 | $95,200 | $95,200 |
| 2010 | $0 | $95,200 | $0 | $95,200 | $95,200 |
| 2009 | $0 | $136,850 | $0 | $136,850 | $136,850 |
| 2008 | $0 | $136,850 | $0 | $136,850 | $136,850 |
| 2007 | $0 | $109,004 | $0 | $109,004 | $109,004 |
Deed and Sales History
| 1 | 09/01/2023 | WD | Warranty Deed | WALLACE, HUGH C | HODGES, KRISTOPHER W | | | $230,000.00 | 57907 | 4564423 |
| 2 | 01/01/1900 | OTHER | Other - Misc. Documents | Unknown | WALLACE, HUGH C | | | $0.00 | 0 | 0 |
Payout Agreement
| No payout information available.. |