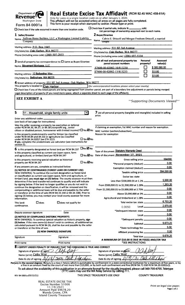
Property
Account |
| Property ID: | 395281 | Abbreviated Legal Description: | SIERRA VISTA LOT 30 |
| Geographic ID: | S8170-00-00030-0 | Agent Code: | |
| Type: | Real | | |
| Tax Area: | 540 - APPRAISER-Stan/Cam Schl Dist, Special Dist, improved & less than 1 acre | Land Use Code | 11 |
| Open Space: | N | DFL | N |
| Historic Property: | N | Remodel Property: | N |
| Multi-Family Redevelopment: | N | | |
| Township: | | Section: | |
| Range: | |
Location |
| Address: | 2909 VIEWMONT PLACE CAMANO ISLAND, WA 98282 | Mapsco: | |
| Neighborhood: | 58RecamS-East Cam | Map ID: | 866 |
| Neighborhood CD: | 58RecamS |
Owner |
| Name: | WOOD, MICHAEL SCOTT | Owner ID: | 268362 |
| Mailing Address: | LEA DARLENE WOOD 1305 S PROSPECT AVE REDONDO BEACH, CA 90277 | % Ownership: | 100.0000000000% |
| | | Exemptions: | |
Taxes and Assessment Details
Values
| (+) Improvement Homesite Value: | + | $0 | |
| (+) Improvement Non-Homesite Value: | + | $189,446 | |
| (+) Land Homesite Value: | + | $0 | |
| (+) Land Non-Homesite Value: | + | $260,000 | |
| (+) Curr Use (HS): | + | $0 | $0 |
| (+) Curr Use (NHS): | + | $0 | $0 |
| | | -------------------------- | |
| (=) Market Value: | = | $449,446 | |
| (–) Productivity Loss: | – | $0 | |
| | | -------------------------- | |
| (=) Subtotal: | = | $449,446 | |
| (+) Senior Appraised Value: | + | $0 | |
| (+) Non-Senior Appraised Value: | + | $449,446 | |
| | | -------------------------- | |
| (=) Total Appraised Value: | = | $449,446 | |
| (–) Senior Exemption Loss: | – | $0 | |
| (–) Exemption Loss: | – | $0 | |
| | | -------------------------- | |
| (=) Taxable Value: | = | $449,446 | |
Taxing Jurisdiction
| Owner: | WOOD, MICHAEL SCOTT | | |
| % Ownership: | 100.0000000000% | | |
| Total Value: | $449,446 | | |
| Tax Area: | 540 - APPRAISER-Stan/Cam Schl Dist, Special Dist, improved & less than 1 acre |
| CF | Conservation Futures | 0.0313996660 | $449,446 | $449,446 | $14.11 | | |
| EMS1 | Fire & Rescue Dist #1 Camano GEN (EMS) | 0.4998471806 | $449,446 | $449,446 | $224.65 | | |
| FIRE1 | Fire & Rescue Dist #1 Camano GEN | 1.2496603404 | $449,446 | $449,446 | $561.65 | | |
| FIRE1BOND | Fire & Rescue Dist #1 Camano BOND | 0.1630371212 | $449,446 | $449,446 | $73.28 | | |
| CE | County Current Expense | 0.3674210519 | $449,446 | $449,446 | $165.14 | | |
| CR | County Roads | 0.4614296361 | $449,446 | $449,446 | $207.39 | | |
| LIB | Library Sno-Isle GEN | 0.3039084203 | $449,446 | $449,446 | $136.59 | | |
| SCH205_401 | School 205-401 Enrichment | 1.3697998934 | $449,446 | $449,446 | $615.65 | | |
| SCH205BOND | School 205-401 BOND | 0.9354199323 | $449,446 | $449,446 | $420.42 | | |
| ST | State School | 1.4761226122 | $449,446 | $449,446 | $663.44 | | |
| ST2 | State School Part 2 | 0.7953803475 | $449,446 | $449,446 | $357.48 | | |
| | Total Tax Rate: | 7.6534262019 | | | | | |
| | | | | Taxes w/Current Exemptions: | $3,439.80 | | |
| | | | | Taxes w/o Exemptions: | $3,439.80 | | |
Improvement / Building
| Improvement #1: | RESIDENTIAL | State Code: | Y | 1472.0 sqft | Value: | $189,446 |
| Bathrooms: | 2 | Bedrooms: | 2 | | Ceiling: | TONGUE & GROOVE | Exterior Wall/Cover: | WOOD SIDING | | Floor Covering: | HARDWOOD/CARP 60-40 | Floor Structure: | WOOD W/SUBFLOOR | | Foundation: | CONCRETE | Heating: | BASEBOARD ELECTRIC | | Interior Finish: | DRYWALL PAINT | Plumbing Fixture Cnt: | 9 | | Roof Slope: | 3" IN 12" | Roof Structure/Cover: | BEAM WOOD SHINGLE |
|
| | Type | Description | Class CD | Sub Class CD | Year Built | Area |
| | BAS | BASE/MAIN FLOOR | 3 | 0 | 1967 | 806.0 |
| | OP1 | OPEN PORCH SLAB | 3 | 0 | 1967 | 401.0 |
| | OWP | OPEN WOOD PORCH W/STEPS | 3 | 0 | 1967 | 320.0 |
| | DWN | DOWNSTAIRS LIVING AREA | 3 | 0 | 1967 | 666.0 |
| | UTY | STORAGE/UTILITY | 3 | 0 | 1967 | 320.0 |
Sketch
Property Image
Land
| 1 | 14 | SQ (08001-12000) | 0.0000 | 0.00 | 0.00 | 0.00 | 1.00 | $260,000 | $0 |
Roll Value History
| 2026 | N/A | N/A | N/A | N/A | N/A |
| 2025 | $189,446 | $260,000 | $0 | $449,446 | $449,446 |
| 2024 | $196,305 | $260,000 | $0 | $456,305 | $456,305 |
| 2023 | $199,511 | $250,000 | $0 | $449,511 | $449,511 |
| 2022 | $183,562 | $220,000 | $0 | $403,562 | $403,562 |
| 2021 | $165,259 | $150,000 | $0 | $315,259 | $315,259 |
| 2020 | $169,304 | $140,000 | $0 | $309,304 | $309,304 |
| 2019 | $124,849 | $170,000 | $0 | $294,849 | $294,849 |
| 2018 | $125,307 | $130,000 | $0 | $255,307 | $255,307 |
| 2017 | $123,393 | $110,000 | $0 | $233,393 | $233,393 |
| 2016 | $125,177 | $75,000 | $0 | $200,177 | $200,177 |
| 2015 | $97,056 | $50,000 | $0 | $147,056 | $147,056 |
| 2014 | $98,765 | $50,000 | $0 | $148,765 | $148,765 |
| 2013 | $100,472 | $50,000 | $0 | $150,472 | $150,472 |
| 2012 | $102,181 | $66,400 | $0 | $168,581 | $168,581 |
| 2011 | $103,887 | $83,000 | $0 | $186,887 | $186,887 |
| 2010 | $114,326 | $83,000 | $0 | $197,326 | $197,326 |
| 2009 | $119,418 | $100,000 | $0 | $219,418 | $219,418 |
| 2008 | $121,164 | $100,000 | $0 | $221,164 | $221,164 |
| 2007 | $122,910 | $100,000 | $0 | $222,910 | $222,910 |
Deed and Sales History
| 1 | 10/31/2014 | QCD | Quit Claim Deed | COLLINS, LINA M | WOOD, MICHAEL SCOTT | | | $142,000.00 | 17471 | 4368062 |
| 2 | 09/28/2004 | 5 | DNU - Marriage License/Name Change | COLLINS, RICHARD S | COLLINS, LINA M | | | $0.00 | 44633 | 4114375 |
| 3 | 06/11/2002 | WD | Warranty Deed | LEE, HOWARD & | COLLINS, RICHARD S | | | $141,750.00 | 22303 | 4023093 |
| 4 | 10/01/1994 | WD | Warranty Deed | FULFORD, LLOYD S | LEE, HOWARD & | | | $112,500.00 | 44433 | 94022856 |
| 5 | 09/01/1987 | WD | Warranty Deed | MATZEN, W P | FULFORD, LLOYD S | | | $70,000.00 | 73137 | 87013905 |
| 6 | 01/01/1900 | OTHER | Other - Misc. Documents | Unknown | MATZEN, W P | | | $0.00 | 0 | 0 |
Payout Agreement
| No payout information available.. |