Property
Account |
| Property ID: | 395370 | Abbreviated Legal Description: | SIERRA VISTA LOT 39 |
| Geographic ID: | S8170-00-00039-0 | Agent Code: | |
| Type: | Real | | |
| Tax Area: | 540 - APPRAISER-Stan/Cam Schl Dist, Special Dist, improved & less than 1 acre | Land Use Code | 11 |
| Open Space: | N | DFL | N |
| Historic Property: | N | Remodel Property: | N |
| Multi-Family Redevelopment: | N | | |
| Township: | | Section: | |
| Range: | |
Location |
| Address: | 2906 VIEWMONT PLACE CAMANO ISLAND, WA 98282 | Mapsco: | |
| Neighborhood: | 58RecamS-East Cam | Map ID: | 866 |
| Neighborhood CD: | 58RecamS |
Owner |
| Name: | ROCK HOLDINGS LLC | Owner ID: | 315612 |
| Mailing Address: | 20635 MARINE VIEW DR SOUTHWEST NORMANDY PARK, WA 98166 | % Ownership: | 100.0000000000% |
| | | Exemptions: | |
Taxes and Assessment Details
Values
| (+) Improvement Homesite Value: | + | $0 | |
| (+) Improvement Non-Homesite Value: | + | $197,520 | |
| (+) Land Homesite Value: | + | $0 | |
| (+) Land Non-Homesite Value: | + | $230,000 | |
| (+) Curr Use (HS): | + | $0 | $0 |
| (+) Curr Use (NHS): | + | $0 | $0 |
| | | -------------------------- | |
| (=) Market Value: | = | $427,520 | |
| (–) Productivity Loss: | – | $0 | |
| | | -------------------------- | |
| (=) Subtotal: | = | $427,520 | |
| (+) Senior Appraised Value: | + | $0 | |
| (+) Non-Senior Appraised Value: | + | $427,520 | |
| | | -------------------------- | |
| (=) Total Appraised Value: | = | $427,520 | |
| (–) Senior Exemption Loss: | – | $0 | |
| (–) Exemption Loss: | – | $0 | |
| | | -------------------------- | |
| (=) Taxable Value: | = | $427,520 | |
Taxing Jurisdiction
| Owner: | ROCK HOLDINGS LLC | | |
| % Ownership: | 100.0000000000% | | |
| Total Value: | $427,520 | | |
| Tax Area: | 540 - APPRAISER-Stan/Cam Schl Dist, Special Dist, improved & less than 1 acre |
| CF | Conservation Futures | 0.0313996660 | $427,520 | $427,520 | $13.42 | | |
| EMS1 | Fire & Rescue Dist #1 Camano GEN (EMS) | 0.4998471806 | $427,520 | $427,520 | $213.69 | | |
| FIRE1 | Fire & Rescue Dist #1 Camano GEN | 1.2496603404 | $427,520 | $427,520 | $534.25 | | |
| FIRE1BOND | Fire & Rescue Dist #1 Camano BOND | 0.1630371212 | $427,520 | $427,520 | $69.70 | | |
| CE | County Current Expense | 0.3674210519 | $427,520 | $427,520 | $157.08 | | |
| CR | County Roads | 0.4614296361 | $427,520 | $427,520 | $197.27 | | |
| LIB | Library Sno-Isle GEN | 0.3039084203 | $427,520 | $427,520 | $129.93 | | |
| SCH205_401 | School 205-401 Enrichment | 1.3697998934 | $427,520 | $427,520 | $585.62 | | |
| SCH205BOND | School 205-401 BOND | 0.9354199323 | $427,520 | $427,520 | $399.91 | | |
| ST | State School | 1.4761226122 | $427,520 | $427,520 | $631.07 | | |
| ST2 | State School Part 2 | 0.7953803475 | $427,520 | $427,520 | $340.04 | | |
| | Total Tax Rate: | 7.6534262019 | | | | | |
| | | | | Taxes w/Current Exemptions: | $3,271.98 | | |
| | | | | Taxes w/o Exemptions: | $3,271.98 | | |
Improvement / Building
| Improvement #1: | RESIDENTIAL | State Code: | Y | 1269.6 sqft | Value: | $197,520 |
| Bathrooms: | 2 | Bedrooms: | 2 | | Ceiling: | DRYWALL PAINTED | Exterior Wall/Cover: | WOOD SIDING | | Floor Covering: | CARPET/VINYL 80-20 | Floor Structure: | WOOD W/SUBFLOOR | | Foundation: | CONCRETE | Heating: | WALL HEAT ELECTRIC | | Interior Finish: | DRYWALL PAINT | Plumbing Fixture Cnt: | 9 | | Roof Slope: | 5" IN 12" | Roof Structure/Cover: | CJ ASPHALT |
|
| | Type | Description | Class CD | Sub Class CD | Year Built | Area |
| | BAS | BASE/MAIN FLOOR | 3 | 0 | 1993 | 1269.6 |
| | AGR | ATTACHED GARAGE | 3 | 0 | 1993 | 415.5 |
| | OWP | OPEN WOOD PORCH W/STEPS | 3 | 0 | 1993 | 280.0 |
Sketch
Property Image
Land
| 1 | 14 | SQ (08001-12000) | 0.0000 | 0.00 | 0.00 | 0.00 | 1.00 | $230,000 | $0 |
Roll Value History
| 2026 | N/A | N/A | N/A | N/A | N/A |
| 2025 | $197,520 | $230,000 | $0 | $427,520 | $427,520 |
| 2024 | $200,414 | $220,000 | $0 | $420,414 | $420,414 |
| 2023 | $203,307 | $220,000 | $0 | $423,307 | $423,307 |
| 2022 | $186,717 | $200,000 | $0 | $386,717 | $386,717 |
| 2021 | $142,490 | $140,000 | $0 | $282,490 | $282,490 |
| 2020 | $138,856 | $110,000 | $0 | $248,856 | $248,856 |
| 2019 | $99,142 | $140,000 | $0 | $239,142 | $239,142 |
| 2018 | $99,476 | $130,000 | $0 | $229,476 | $229,476 |
| 2017 | $100,144 | $110,000 | $0 | $210,144 | $210,144 |
| 2016 | $101,479 | $75,000 | $0 | $176,479 | $176,479 |
| 2015 | $124,550 | $50,000 | $0 | $174,550 | $174,550 |
| 2014 | $126,158 | $50,000 | $0 | $176,158 | $176,158 |
| 2013 | $127,765 | $50,000 | $0 | $177,765 | $177,765 |
| 2012 | $129,374 | $66,400 | $0 | $195,774 | $195,774 |
| 2011 | $130,982 | $83,000 | $0 | $213,982 | $213,982 |
| 2010 | $138,480 | $83,000 | $0 | $221,480 | $221,480 |
| 2009 | $143,747 | $100,000 | $0 | $243,747 | $243,747 |
| 2008 | $145,462 | $100,000 | $0 | $245,462 | $245,462 |
| 2007 | $147,419 | $100,000 | $0 | $247,419 | $247,419 |
Deed and Sales History
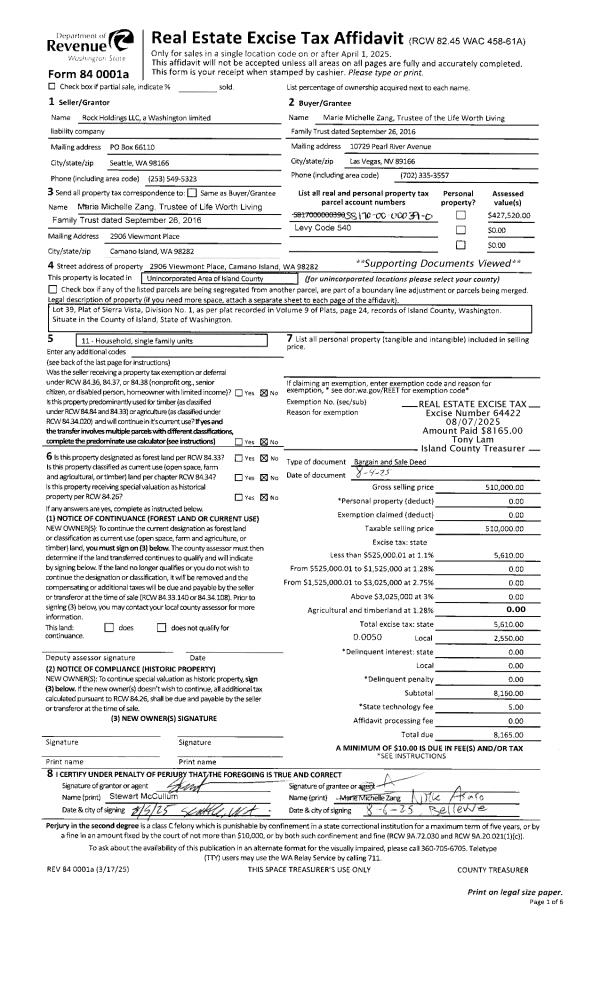
| 1 | 08/04/2025 | BARGSLD | Bargain And Sale Deed | ROCK HOLDINGS LLC | ZANG TTEE, MARIE MICHELLE | | | $510,000.00 | 64422 | 4589350 |
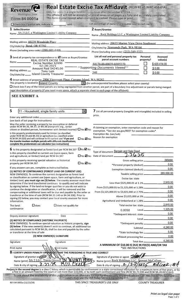
| 2 | 02/26/2025 | WD | Warranty Deed | SA 2, LLC | ROCK HOLDINGS LLC | | | $265,000.00 | 62690 | 4582771 |
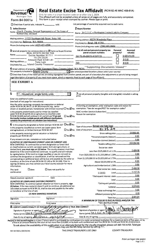
| 3 | 10/28/2024 | WD | Warranty Deed | ESTATE OF KATHRYN DAY | SA 2, LLC | | | $223,551.00 | 61711 | 4578813 |
| 4 | 03/01/1993 | WD | Warranty Deed | EUROCRAFT, | DAY, KATHRYN | | | $26,000.00 | 30988 | 93005223 |
| 5 | 05/01/1990 | WD | Warranty Deed | LAITENBERGER, ROLF & | EUROCRAFT, | | | $18,950.00 | 3151 | 90010206 |
| 6 | 05/01/1990 | WD | Warranty Deed | LAITENBERGER, ROLF & | LAITENBERGER, ROLF & | | | $0.00 | 5702 | 90019171 |
| 7 | 05/01/1990 | WD | Warranty Deed | LEISHMAN, GILBERT H | LAITENBERGER, ROLF & | | | $0.00 | 6151 | 90021001 |
| 8 | 10/01/1989 | WD | Warranty Deed | WILEY, SHARON L | LEISHMAN, GILBERT H | | | $5,250.00 | 94746 | 89015410 |
| 9 | 12/01/1976 | CD | DNU - Correction Deed | THOMPSON, ERNEST E | WILEY, SHARON L | | | $1.00 | 21134 | 396261 |
| 10 | 01/01/1900 | OTHER | Other - Misc. Documents | Unknown | THOMPSON, ERNEST E | | | $0.00 | 0 | 0 |
Payout Agreement
| No payout information available.. |