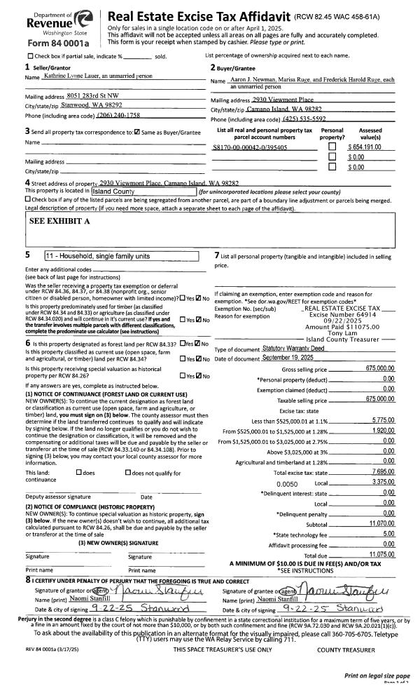
Property
Account |
| Property ID: | 395405 | Abbreviated Legal Description: | SIERRA VISTA LOT 42 |
| Geographic ID: | S8170-00-00042-0 | Agent Code: | |
| Type: | Real | | |
| Tax Area: | 540 - APPRAISER-Stan/Cam Schl Dist, Special Dist, improved & less than 1 acre | Land Use Code | 11 |
| Open Space: | N | DFL | N |
| Historic Property: | N | Remodel Property: | N |
| Multi-Family Redevelopment: | N | | |
| Township: | | Section: | |
| Range: | |
Location |
| Address: | 2930 VIEWMONT PLACE CAMANO ISLAND, WA 98282 | Mapsco: | |
| Neighborhood: | 58RecamS-East Cam | Map ID: | 866 |
| Neighborhood CD: | 58RecamS |
Owner |
| Name: | LAUER, KATHRINE LYNNE | Owner ID: | 313672 |
| Mailing Address: | 2930 VIEWMONT PL CAMANO ISLAND, WA 98282 | % Ownership: | 100.0000000000% |
| | | Exemptions: | |
Taxes and Assessment Details
Values
| (+) Improvement Homesite Value: | + | $0 | |
| (+) Improvement Non-Homesite Value: | + | $424,191 | |
| (+) Land Homesite Value: | + | $0 | |
| (+) Land Non-Homesite Value: | + | $230,000 | |
| (+) Curr Use (HS): | + | $0 | $0 |
| (+) Curr Use (NHS): | + | $0 | $0 |
| | | -------------------------- | |
| (=) Market Value: | = | $654,191 | |
| (–) Productivity Loss: | – | $0 | |
| | | -------------------------- | |
| (=) Subtotal: | = | $654,191 | |
| (+) Senior Appraised Value: | + | $0 | |
| (+) Non-Senior Appraised Value: | + | $654,191 | |
| | | -------------------------- | |
| (=) Total Appraised Value: | = | $654,191 | |
| (–) Senior Exemption Loss: | – | $0 | |
| (–) Exemption Loss: | – | $0 | |
| | | -------------------------- | |
| (=) Taxable Value: | = | $654,191 | |
Taxing Jurisdiction
| Owner: | LAUER, KATHRINE LYNNE | | |
| % Ownership: | 100.0000000000% | | |
| Total Value: | $654,191 | | |
| Tax Area: | 540 - APPRAISER-Stan/Cam Schl Dist, Special Dist, improved & less than 1 acre |
| CF | Conservation Futures | 0.0313996660 | $654,191 | $654,191 | $20.54 | | |
| EMS1 | Fire & Rescue Dist #1 Camano GEN (EMS) | 0.4998471806 | $654,191 | $654,191 | $327.00 | | |
| FIRE1 | Fire & Rescue Dist #1 Camano GEN | 1.2496603404 | $654,191 | $654,191 | $817.52 | | |
| FIRE1BOND | Fire & Rescue Dist #1 Camano BOND | 0.1630371212 | $654,191 | $654,191 | $106.66 | | |
| CE | County Current Expense | 0.3674210519 | $654,191 | $654,191 | $240.36 | | |
| CR | County Roads | 0.4614296361 | $654,191 | $654,191 | $301.86 | | |
| LIB | Library Sno-Isle GEN | 0.3039084203 | $654,191 | $654,191 | $198.81 | | |
| SCH205_401 | School 205-401 Enrichment | 1.3697998934 | $654,191 | $654,191 | $896.11 | | |
| SCH205BOND | School 205-401 BOND | 0.9354199323 | $654,191 | $654,191 | $611.94 | | |
| ST | State School | 1.4761226122 | $654,191 | $654,191 | $965.67 | | |
| ST2 | State School Part 2 | 0.7953803475 | $654,191 | $654,191 | $520.33 | | |
| | Total Tax Rate: | 7.6534262019 | | | | | |
| | | | | Taxes w/Current Exemptions: | $5,006.80 | | |
| | | | | Taxes w/o Exemptions: | $5,006.80 | | |
Improvement / Building
| Improvement #1: | RESIDENTIAL | State Code: | Y | 2622.0 sqft | Value: | $424,191 |
| Bathrooms: | 2.75 | Bedrooms: | 3 | | Ceiling: | DRYWALL PAINTED | Exterior Wall/Cover: | WOOD SIDING | | Floor Covering: | CARPET/VINYL 80-20 | Floor Structure: | WOOD W/SUBFLOOR | | Foundation: | CONCRETE | Heating: | FHA GAS | | Interior Finish: | DRYWALL PAINT | Plumbing Fixture Cnt: | 10 | | Roof Slope: | 6" IN 12" | Roof Structure/Cover: | CJ ASPHALT |
|
| | Type | Description | Class CD | Sub Class CD | Year Built | Area |
| | BAS | BASE/MAIN FLOOR | 4 | 0 | 1991 | 1494.4 |
| | DWN | DOWNSTAIRS LIVING AREA | 4 | 0 | 1991 | 1127.6 |
| | OP1 | OPEN PORCH SLAB | 4 | 0 | 1991 | 307.0 |
| | AGR | ATTACHED GARAGE | 4 | 0 | 1991 | 280.0 |
| | BIG | BUILT IN GARAGE | 4 | 0 | 1991 | 180.0 |
| | OWP | OPEN WOOD PORCH W/STEPS | 4 | 0 | 1991 | 32.0 |
| | OWP | OPEN WOOD PORCH W/STEPS | 4 | 0 | 1991 | 212.0 |
| | OWC | OPEN WOOD PORCH W/STEPS/ROOF/C | 4 | 0 | 1991 | 24.0 |
| | UB8 | BASEMENT UNFINISHED 8" | 4 | 0 | 1991 | 180.0 |
| | OWC | OPEN WOOD PORCH W/STEPS/ROOF/C | 4 | 0 | 1991 | 48.0 |
Sketch
Property Image
Land
| 1 | 14 | SQ (08001-12000) | 0.0000 | 0.00 | 0.00 | 0.00 | 1.00 | $230,000 | $0 |
Roll Value History
| 2026 | N/A | N/A | N/A | N/A | N/A |
| 2025 | $424,191 | $230,000 | $0 | $654,191 | $654,191 |
| 2024 | $429,414 | $220,000 | $0 | $649,414 | $649,414 |
| 2023 | $434,634 | $220,000 | $0 | $654,634 | $654,634 |
| 2022 | $398,285 | $200,000 | $0 | $598,285 | $598,285 |
| 2021 | $292,379 | $140,000 | $0 | $432,379 | $432,379 |
| 2020 | $285,126 | $110,000 | $0 | $395,126 | $395,126 |
| 2019 | $211,390 | $140,000 | $0 | $351,390 | $351,390 |
| 2018 | $212,025 | $130,000 | $0 | $342,025 | $342,025 |
| 2017 | $213,286 | $110,000 | $0 | $323,286 | $323,286 |
| 2016 | $215,824 | $75,000 | $0 | $290,824 | $290,824 |
| 2015 | $165,654 | $50,000 | $0 | $215,654 | $215,654 |
| 2014 | $167,861 | $50,000 | $0 | $217,861 | $217,861 |
| 2013 | $170,067 | $50,000 | $0 | $220,067 | $220,067 |
| 2012 | $172,279 | $66,400 | $0 | $238,679 | $238,679 |
| 2011 | $174,486 | $83,000 | $0 | $257,486 | $257,486 |
| 2010 | $184,067 | $83,000 | $0 | $267,067 | $267,067 |
| 2009 | $191,593 | $100,000 | $0 | $291,593 | $291,593 |
| 2008 | $193,835 | $100,000 | $0 | $293,835 | $293,835 |
| 2007 | $196,147 | $100,000 | $0 | $296,147 | $296,147 |
Deed and Sales History
| 1 | 09/19/2025 | WD | Warranty Deed | LAUER, KATHRINE LYNNE | NEWMAN, AARON J | | | $675,000.00 | 64914 | 4591301 |
| 2 | 08/07/2024 | PRD | Personal Representatives Deed | ESTATE OF ERIC SCOTT LAUER | LAUER, KATHRINE LYNNE | | | $0.00 | 61084 | 4576333 |
| 3 | 08/18/2015 | WD | Warranty Deed | CARTER, SUSANNA V | LAUER, ERIC S | | | $295,000.00 | 21234 | 4385364 |
| 4 | 09/13/2012 | DECREE | Divorce Decree/Legal Separation | CARTER, SCOTT H / SUSANNA V | CARTER, SUSANNA V | | | | 8175 | 4318970 |
| 5 | 11/01/1993 | WD | Warranty Deed | HENDREN, JOHN W | CARTER, SCOTT H | | | $147,000.00 | 34957 | 93025745 |
| 6 | 11/01/1990 | WD | Warranty Deed | GOLD, SEAL H | HENDREN, JOHN W | | | $20,000.00 | 6096 | 90020753 |
| 7 | 02/01/1990 | WD | Warranty Deed | HULL, IRVING W | GOLD, SEAL H | | | $10,500.00 | 1034 | 90003429 |
| 8 | 02/01/1980 | EXECUTORD | Executor Deed | PORTER, R L | HULL, IRVING W | | | $5,950.00 | 802 | 366128 |
| 9 | 01/01/1900 | OTHER | Other - Misc. Documents | Unknown | PORTER, R L | | | $0.00 | 0 | 0 |
Payout Agreement
| No payout information available.. |