Property
Account |
| Property ID: | 39611 | Abbreviated Legal Description: | 30 - IN GL3 INCL ADJ TIDELAND: SWLY 60'TR 38 UNREC WEST BCH VTA #1 |
| Geographic ID: | R13332-247-0220 | Agent Code: | |
| Type: | Real | | |
| Tax Area: | 110 - APPRAISER-OH Schl Dist, outside OH, improved & 1 acre or less | Land Use Code | 11 |
| Open Space: | N | DFL | N |
| Historic Property: | N | Remodel Property: | N |
| Multi-Family Redevelopment: | N | | |
| Township: | 33 | Section: | 32 |
| Range: | R1 |
Location |
| Address: | 2585 WEST BEACH RD OAK HARBOR, WA 98277 | Mapsco: | |
| Neighborhood: | Cycle 1 | Map ID: | 244 |
| Neighborhood CD: | 1 |
Owner |
| Name: | SAITAWDEKAR, SHRIKANT | Owner ID: | 306054 |
| Mailing Address: | KAVITA SHARMA 17739 NE 122ND ST REDMOND, WA 98052 | % Ownership: | 100.0000000000% |
| | | Exemptions: | |
Taxes and Assessment Details
Values
| (+) Improvement Homesite Value: | + | $0 | |
| (+) Improvement Non-Homesite Value: | + | $346,967 | |
| (+) Land Homesite Value: | + | $0 | |
| (+) Land Non-Homesite Value: | + | $500,000 | |
| (+) Curr Use (HS): | + | $0 | $0 |
| (+) Curr Use (NHS): | + | $0 | $0 |
| | | -------------------------- | |
| (=) Market Value: | = | $846,967 | |
| (–) Productivity Loss: | – | $0 | |
| | | -------------------------- | |
| (=) Subtotal: | = | $846,967 | |
| (+) Senior Appraised Value: | + | $0 | |
| (+) Non-Senior Appraised Value: | + | $846,967 | |
| | | -------------------------- | |
| (=) Total Appraised Value: | = | $846,967 | |
| (–) Senior Exemption Loss: | – | $0 | |
| (–) Exemption Loss: | – | $0 | |
| | | -------------------------- | |
| (=) Taxable Value: | = | $846,967 | |
Taxing Jurisdiction
| Owner: | SAITAWDEKAR, SHRIKANT | | |
| % Ownership: | 100.0000000000% | | |
| Total Value: | $846,967 | | |
| Tax Area: | 110 - APPRAISER-OH Schl Dist, outside OH, improved & 1 acre or less |
| CF | Conservation Futures | 0.0313996660 | $846,967 | $846,967 | $26.59 | | |
| CEM1 | Cemetery #1 | 0.0040018856 | $846,967 | $846,967 | $3.39 | | |
| FIRE2 | Fire & Rescue Dist #2 N Whidbey GEN | 0.5381486274 | $846,967 | $846,967 | $455.79 | | |
| HOBOND | Hospital BOND | 0.1893405597 | $846,967 | $846,967 | $160.37 | | |
| HOGEN | Hospital GEN | 0.3848777722 | $846,967 | $846,967 | $325.98 | | |
| CE | County Current Expense | 0.3674210519 | $846,967 | $846,967 | $311.19 | | |
| CR | County Roads | 0.4614296361 | $846,967 | $846,967 | $390.82 | | |
| ISLANDEMS | Hospital GEN (EMS) | 0.4952018576 | $846,967 | $846,967 | $419.42 | | |
| LIB | Library Sno-Isle GEN | 0.3039084203 | $846,967 | $846,967 | $257.40 | | |
| NWHIDPRMT | P & R N Whidbey GEN | 0.1990272349 | $846,967 | $846,967 | $168.57 | | |
| SCH201MO | School 201 Enrichment | 2.3851112745 | $846,967 | $846,967 | $2,020.11 | | |
| ST | State School | 1.4761226122 | $846,967 | $846,967 | $1,250.23 | | |
| ST2 | State School Part 2 | 0.7953803475 | $846,967 | $846,967 | $673.66 | | |
| | Total Tax Rate: | 7.6313709459 | | | | | |
| | | | | Taxes w/Current Exemptions: | $6,463.52 | | |
| | | | | Taxes w/o Exemptions: | $6,463.52 | | |
Improvement / Building
| Improvement #1: | RESIDENTIAL | State Code: | Y | 1744.0 sqft | Value: | $346,967 |
| Bathrooms: | 2 | Bedrooms: | 3 | | Ceiling: | DRYWALL PAINTED | Exterior Wall/Cover: | VINYL | | Floor Covering: | HARDWOOD/CARP 60-40 | Floor Structure: | WOOD W/SUBFLOOR | | Foundation: | CONCRETE | Heating: | FHA GAS | | Interior Finish: | DRYWALL PAINT | Plumbing Fixture Cnt: | 12 | | Roof Slope: | 6" IN 12" | Roof Structure/Cover: | CJ ASPHALT |
|
| | Type | Description | Class CD | Sub Class CD | Year Built | Area |
| | BAS | BASE/MAIN FLOOR | 3 | 0 | 1999 | 818.0 |
| | OP3 | OPEN PORCH W/ROOF | 3 | 0 | 1999 | 80.0 |
| | BIG | BUILT IN GARAGE | 3 | 0 | 1999 | 1000.0 |
| | UPS | UPPER STORY | 3 | 0 | 1999 | 926.0 |
| | OWP | OPEN WOOD PORCH W/STEPS | 3 | 0 | 1999 | 384.0 |
Sketch
Property Image
Land
| 1 | LB | LOW BANK | 0.1700 | 7405.20 | 60.00 | 0.00 | 1.00 | $500,000 | $0 |
Roll Value History
| 2026 | N/A | N/A | N/A | N/A | N/A |
| 2025 | $346,967 | $500,000 | $0 | $846,967 | $846,967 |
| 2024 | $351,238 | $450,000 | $0 | $801,238 | $801,238 |
| 2023 | $355,509 | $490,000 | $0 | $845,509 | $845,509 |
| 2022 | $306,656 | $450,000 | $0 | $756,656 | $756,656 |
| 2021 | $269,973 | $450,000 | $0 | $719,973 | $719,973 |
| 2020 | $263,003 | $250,000 | $0 | $513,003 | $513,003 |
| 2019 | $192,901 | $300,000 | $0 | $492,901 | $492,901 |
| 2018 | $193,480 | $250,000 | $0 | $443,480 | $443,480 |
| 2017 | $166,678 | $250,000 | $0 | $416,678 | $416,678 |
| 2016 | $168,662 | $250,000 | $0 | $418,662 | $418,662 |
| 2015 | $170,646 | $317,034 | $0 | $487,680 | $487,680 |
| 2014 | $172,631 | $317,034 | $0 | $489,665 | $489,665 |
| 2013 | $174,616 | $317,034 | $0 | $491,650 | $491,650 |
| 2012 | $176,599 | $317,034 | $0 | $493,633 | $493,633 |
| 2011 | $197,023 | $317,034 | $0 | $514,057 | $514,057 |
| 2010 | $203,776 | $317,034 | $0 | $520,810 | $520,810 |
| 2009 | $210,147 | $454,230 | $0 | $664,377 | $664,377 |
| 2008 | $212,500 | $263,880 | $0 | $476,380 | $476,380 |
| 2007 | $153,900 | $327,037 | $0 | $480,937 | $480,937 |
Deed and Sales History
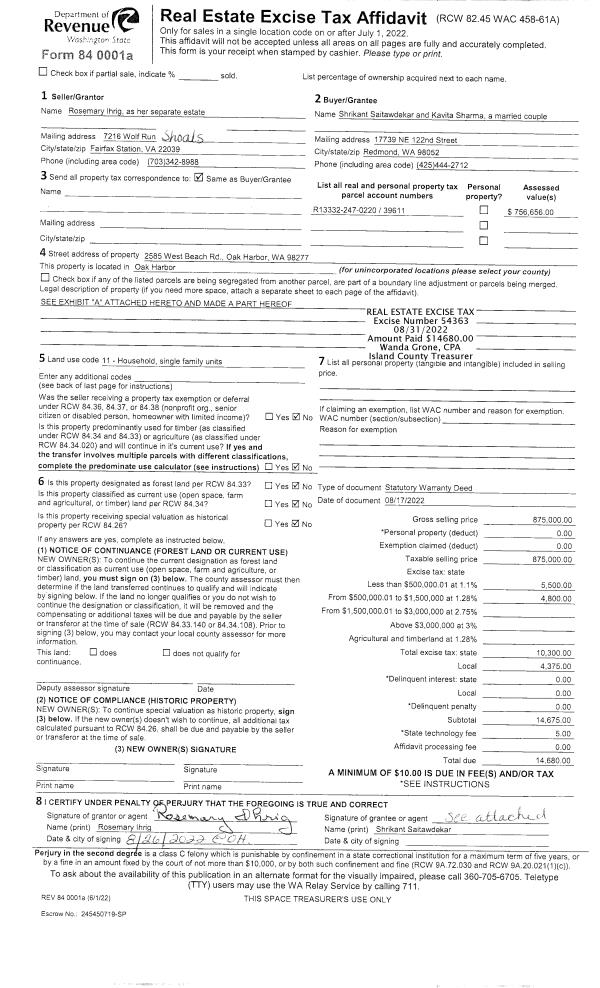
| 1 | 08/17/2022 | WD | Warranty Deed | IHRIG, ROSEMARY | SAITAWDEKAR, SHRIKANT | | | $875,000.00 | 54363 | 4550494 |
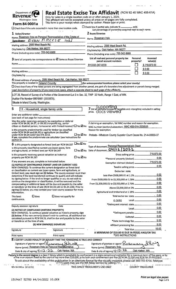
| 2 | 04/12/2022 | PRD | Personal Representatives Deed | REESE, EVAN P | IHRIG, ROSEMARY | | | $0.00 | 52700 | 4543334 |
| 3 | 01/01/1900 | OTHER | Other - Misc. Documents | Unknown | REESE, EVAN P | | | $0.00 | 0 | 0 |
Payout Agreement
| No payout information available.. |