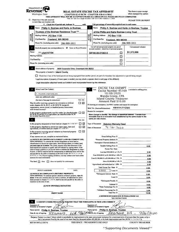
| 1 | 09/09/2020 | WD | Warranty Deed | BOSHAW TRUSTEE, PHILLIP A | BOSHAW TRUSTEE, PHILLIP A | | | $0.00 | 45169 | 4499013 |
| 2 | 10/02/2009 | QCD | Quit Claim Deed | BOSHAW, PHILLIP A | BOSHAW TRUSTEE, PHILLIP A | | | $0.00 | 92547 | 4262215 |
| 3 | 02/27/2008 | QCD | Quit Claim Deed | BOSHAW TTEE, PHILLIP A | BOSHAW, PHILLIP A | | | $0.00 | 80508 | 4223017 |
| 4 | 03/14/2007 | QCD | Quit Claim Deed | BOSHAW, PHILLIP A | BOSHAW TTEE, PHILLIP A | | | $0.00 | 70861 | 4196618 |
| 5 | 12/01/2006 | 5 | DNU - Marriage License/Name Change | BOSHAW TRUSTEE, PHILLIP A | BOSHAW, PHILLIP A | | | $0.00 | 65070 | 4188475 |
| 6 | 05/16/2006 | 5 | DNU - Marriage License/Name Change | BOSHAW, PHILLIP A | BOSHAW TRUSTEE, PHILLIP A | | | $0.00 | 62232 | 4171231 |
| 7 | 10/07/2005 | WD | Warranty Deed | LAAKMANN, CHRISTIANE | BOSHAW, PHILLIP A | | | $1,400,000.00 | 55209 | 4150792 |
| 8 | 11/18/2003 | WD | Warranty Deed | HARDIE, LARRY W | LAAKMANN, CHRISTIANE | | | $1,250,000.00 | 35391 | 4084523 |
| 9 | 01/07/2003 | QCD | Quit Claim Deed | HARDIE TRUSTEES, LARRY W | HARDIE, LARRY W | | | $0.00 | 30067 | 4043334 |
| 10 | 06/26/2000 | QCD | Quit Claim Deed | HARDIE, LARRY W | HARDIE TRUSTEES, LARRY W | | | $0.00 | 2387 | 20011456 |
| 11 | 09/14/1998 | QCD | Quit Claim Deed | HARDIE, LARRY W | HARDIE, LARRY W | | | $0.00 | 84026 | 98021672 |
| 12 | 11/01/1990 | QCD | Quit Claim Deed | HARDIE, LARRY W | HARDIE, LARRY W | | | $0.00 | 6463 | 90022383 |
| 13 | 01/01/1980 | EXECUTORD | Executor Deed | CHAPMAN, LAWRENCE E | HARDIE, LARRY W | | | $120,000.00 | 338 | 0 |
| 14 | 03/01/1979 | OTHER | Other - Misc. Documents | Unknown | CHAPMAN, LAWRENCE E | | | $106,000.00 | 91733 | 350944 |