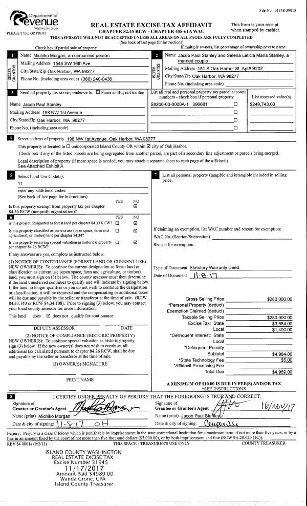
Property
Account |
| Property ID: | 396681 | Abbreviated Legal Description: | SPRING HILL 1 S140'OF E90'OF TRACT A |
| Geographic ID: | S8200-00-0000A-1 | Agent Code: | |
| Type: | Real | | |
| Tax Area: | 100 - APPRAISER-OH Schl Dist, in OH | Land Use Code | 11 |
| Open Space: | N | DFL | N |
| Historic Property: | N | Remodel Property: | N |
| Multi-Family Redevelopment: | N | | |
| Township: | | Section: | |
| Range: | |
Location |
| Address: | 198 NW 1ST AVE OAK HARBOR, WA 98277 | Mapsco: | |
| Neighborhood: | Cycle 1 | Map ID: | 253 |
| Neighborhood CD: | 1 |
Owner |
| Name: | STANLEY, JACOB PAUL | Owner ID: | 282941 |
| Mailing Address: | SELENA LETICIA MARIA STANLEY 198 NW 1ST AVE OAK HARBOR, WA 98277 | % Ownership: | 100.0000000000% |
| | | Exemptions: | |
Taxes and Assessment Details
Values
| (+) Improvement Homesite Value: | + | $0 | |
| (+) Improvement Non-Homesite Value: | + | $284,284 | |
| (+) Land Homesite Value: | + | $0 | |
| (+) Land Non-Homesite Value: | + | $190,000 | |
| (+) Curr Use (HS): | + | $0 | $0 |
| (+) Curr Use (NHS): | + | $0 | $0 |
| | | -------------------------- | |
| (=) Market Value: | = | $474,284 | |
| (–) Productivity Loss: | – | $0 | |
| | | -------------------------- | |
| (=) Subtotal: | = | $474,284 | |
| (+) Senior Appraised Value: | + | $0 | |
| (+) Non-Senior Appraised Value: | + | $474,284 | |
| | | -------------------------- | |
| (=) Total Appraised Value: | = | $474,284 | |
| (–) Senior Exemption Loss: | – | $0 | |
| (–) Exemption Loss: | – | $0 | |
| | | -------------------------- | |
| (=) Taxable Value: | = | $474,284 | |
Taxing Jurisdiction
| Owner: | STANLEY, JACOB PAUL | | |
| % Ownership: | 100.0000000000% | | |
| Total Value: | $474,284 | | |
| Tax Area: | 100 - APPRAISER-OH Schl Dist, in OH |
| CF | Conservation Futures | 0.0313996660 | $474,284 | $474,284 | $14.89 | | |
| CEM1 | Cemetery #1 | 0.0040018856 | $474,284 | $474,284 | $1.90 | | |
| COH | City of Oak Harbor | 2.3090730572 | $474,284 | $474,284 | $1,095.16 | | |
| OAKBOND | City of Oak Harbor BOND | 0.1902260131 | $474,284 | $474,284 | $90.22 | | |
| HOBOND | Hospital BOND | 0.1893405597 | $474,284 | $474,284 | $89.80 | | |
| HOGEN | Hospital GEN | 0.3848777722 | $474,284 | $474,284 | $182.54 | | |
| CE | County Current Expense | 0.3674210519 | $474,284 | $474,284 | $174.26 | | |
| ISLANDEMS | Hospital GEN (EMS) | 0.4952018576 | $474,284 | $474,284 | $234.87 | | |
| LIB | Library Sno-Isle GEN | 0.3039084203 | $474,284 | $474,284 | $144.14 | | |
| NWHIDPRMT | P & R N Whidbey GEN | 0.1990272349 | $474,284 | $474,284 | $94.40 | | |
| SCH201MO | School 201 Enrichment | 2.3851112745 | $474,284 | $474,284 | $1,131.22 | | |
| ST | State School | 1.4761226122 | $474,284 | $474,284 | $700.10 | | |
| ST2 | State School Part 2 | 0.7953803475 | $474,284 | $474,284 | $377.24 | | |
| | Total Tax Rate: | 9.1310917527 | | | | | |
| | | | | Taxes w/Current Exemptions: | $4,330.74 | | |
| | | | | Taxes w/o Exemptions: | $4,330.74 | | |
Improvement / Building
| Improvement #1: | RESIDENTIAL | State Code: | Y | 1950.0 sqft | Value: | $284,284 |
| Bathrooms: | 3 | Bedrooms: | 2 | | Ceiling: | DRYWALL PAINTED | Exterior Wall/Cover: | WOOD SIDING | | Floor Covering: | HARDWOOD/CARP 60-40 | Floor Structure: | WOOD W/SUBFLOOR | | Foundation: | CONCRETE | Heating: | FHA GAS | | Interior Finish: | DRYWALL PAINT | Plumbing Fixture Cnt: | 12 | | Roof Slope: | 4" IN 12" | Roof Structure/Cover: | CJ ALUMINIUM HEAVY |
|
| | Type | Description | Class CD | Sub Class CD | Year Built | Area |
| | BAS | BASE/MAIN FLOOR | 3 | 0 | 1977 | 1326.0 |
| | DWN | DOWNSTAIRS LIVING AREA | 3 | 0 | 1977 | 624.0 |
| | OP4 | OPEN PORCH W/CEILING-ROOF | 3 | 0 | 1977 | 24.0 |
| | BIG | BUILT IN GARAGE | 3 | 0 | 1977 | 676.0 |
| | BAR | BALCONY W/ROOF | 3 | 0 | 1977 | 72.0 |
| | OWP | OPEN WOOD PORCH W/STEPS | 3 | 0 | 1977 | 114.9 |
| | ENP | ENCLOSED PORCH | 3 | 0 | 1977 | 140.0 |
Sketch
Property Image
Land
| 1 | 15 | SQ (12001-21780) | 0.0000 | 0.00 | 0.00 | 0.00 | 1.00 | $190,000 | $0 |
Roll Value History
| 2026 | N/A | N/A | N/A | N/A | N/A |
| 2025 | $284,284 | $190,000 | $0 | $474,284 | $474,284 |
| 2024 | $288,331 | $180,000 | $0 | $468,331 | $468,331 |
| 2023 | $284,284 | $190,000 | $0 | $474,284 | $474,284 |
| 2022 | $261,097 | $180,000 | $0 | $441,097 | $441,097 |
| 2021 | $230,227 | $120,000 | $0 | $350,227 | $350,227 |
| 2020 | $224,855 | $100,000 | $0 | $324,855 | $324,855 |
| 2019 | $170,217 | $150,000 | $0 | $320,217 | $320,217 |
| 2018 | $170,790 | $130,000 | $0 | $300,790 | $300,790 |
| 2017 | $139,743 | $110,000 | $0 | $249,743 | $249,743 |
| 2016 | $141,960 | $90,000 | $0 | $231,960 | $231,960 |
| 2015 | $144,178 | $70,000 | $0 | $214,178 | $214,178 |
| 2014 | $146,399 | $55,000 | $0 | $201,399 | $201,399 |
| 2013 | $148,617 | $55,000 | $0 | $203,617 | $203,617 |
| 2012 | $150,832 | $65,000 | $0 | $215,832 | $215,832 |
| 2011 | $152,516 | $65,000 | $0 | $217,516 | $217,516 |
| 2010 | $166,100 | $65,000 | $0 | $231,100 | $231,100 |
| 2009 | $173,375 | $87,150 | $0 | $260,525 | $260,525 |
| 2008 | $175,679 | $105,000 | $0 | $280,679 | $280,679 |
| 2007 | $177,984 | $105,000 | $0 | $282,984 | $282,984 |
Deed and Sales History
| 1 | 11/08/2017 | WD | Warranty Deed | MORGAN, MICHIKO | STANLEY, JACOB PAUL | | | $280,000.00 | 31945 | 4434312 |
| 2 | 08/15/2017 | PRD | Personal Representatives Deed | MORGAN, WILLIAM F | MORGAN, MICHIKO | | | $0.00 | 30683 | 4428373 |
| 3 | 11/29/1999 | OTHER | Other - Misc. Documents | Unknown | MORGAN, WILLIAM F | | | $0.00 | 68490 | 404700 |
Payout Agreement
| No payout information available.. |