Property
Account |
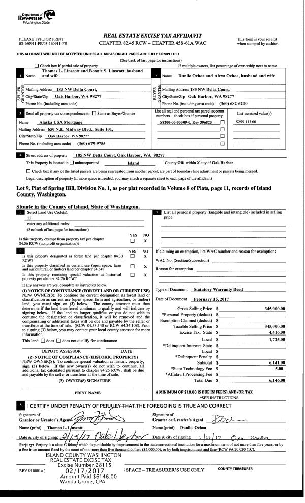
| Property ID: | 396823 | Abbreviated Legal Description: | SPRING HILL 1 LOT 9 |
| Geographic ID: | S8200-00-00009-0 | Agent Code: | |
| Type: | Real | | |
| Tax Area: | 100 - APPRAISER-OH Schl Dist, in OH | Land Use Code | 11 |
| Open Space: | N | DFL | N |
| Historic Property: | N | Remodel Property: | N |
| Multi-Family Redevelopment: | N | | |
| Township: | | Section: | |
| Range: | |
Location |
| Address: | 185 NW DELTA CT OAK HARBOR, WA 98277 | Mapsco: | |
| Neighborhood: | Cycle 1 | Map ID: | 253 |
| Neighborhood CD: | 1 |
Owner |
| Name: | OCHOA, DANILO | Owner ID: | 278552 |
| Mailing Address: | ALEXA OCHOA 185 NW DELTA COURT OAK HARBOR, WA 98277 | % Ownership: | 100.0000000000% |
| | | Exemptions: | |
Taxes and Assessment Details
Values
| (+) Improvement Homesite Value: | + | $0 | |
| (+) Improvement Non-Homesite Value: | + | $320,314 | |
| (+) Land Homesite Value: | + | $0 | |
| (+) Land Non-Homesite Value: | + | $190,000 | |
| (+) Curr Use (HS): | + | $0 | $0 |
| (+) Curr Use (NHS): | + | $0 | $0 |
| | | -------------------------- | |
| (=) Market Value: | = | $510,314 | |
| (–) Productivity Loss: | – | $0 | |
| | | -------------------------- | |
| (=) Subtotal: | = | $510,314 | |
| (+) Senior Appraised Value: | + | $0 | |
| (+) Non-Senior Appraised Value: | + | $510,314 | |
| | | -------------------------- | |
| (=) Total Appraised Value: | = | $510,314 | |
| (–) Senior Exemption Loss: | – | $0 | |
| (–) Exemption Loss: | – | $0 | |
| | | -------------------------- | |
| (=) Taxable Value: | = | $510,314 | |
Taxing Jurisdiction
| Owner: | OCHOA, DANILO | | |
| % Ownership: | 100.0000000000% | | |
| Total Value: | $510,314 | | |
| Tax Area: | 100 - APPRAISER-OH Schl Dist, in OH |
| CF | Conservation Futures | 0.0313996660 | $510,314 | $510,314 | $16.02 | | |
| CEM1 | Cemetery #1 | 0.0040018856 | $510,314 | $510,314 | $2.04 | | |
| COH | City of Oak Harbor | 2.3090730572 | $510,314 | $510,314 | $1,178.35 | | |
| OAKBOND | City of Oak Harbor BOND | 0.1902260131 | $510,314 | $510,314 | $97.07 | | |
| HOBOND | Hospital BOND | 0.1893405597 | $510,314 | $510,314 | $96.62 | | |
| HOGEN | Hospital GEN | 0.3848777722 | $510,314 | $510,314 | $196.41 | | |
| CE | County Current Expense | 0.3674210519 | $510,314 | $510,314 | $187.50 | | |
| ISLANDEMS | Hospital GEN (EMS) | 0.4952018576 | $510,314 | $510,314 | $252.71 | | |
| LIB | Library Sno-Isle GEN | 0.3039084203 | $510,314 | $510,314 | $155.09 | | |
| NWHIDPRMT | P & R N Whidbey GEN | 0.1990272349 | $510,314 | $510,314 | $101.57 | | |
| SCH201MO | School 201 Enrichment | 2.3851112745 | $510,314 | $510,314 | $1,217.16 | | |
| ST | State School | 1.4761226122 | $510,314 | $510,314 | $753.29 | | |
| ST2 | State School Part 2 | 0.7953803475 | $510,314 | $510,314 | $405.89 | | |
| | Total Tax Rate: | 9.1310917527 | | | | | |
| | | | | Taxes w/Current Exemptions: | $4,659.72 | | |
| | | | | Taxes w/o Exemptions: | $4,659.72 | | |
Improvement / Building
| Improvement #1: | RESIDENTIAL | State Code: | Y | 2340.0 sqft | Value: | $320,314 |
| Bathrooms: | 2.75 | Bedrooms: | 5 | | Ceiling: | DRY WALL SPRAYED | Exterior Wall/Cover: | CEMENT FIBER | | Floor Covering: | HARDWOOD/CARP 20-80 | Floor Structure: | WOOD W/SUBFLOOR | | Foundation: | CONCRETE | Heating: | FHA GAS | | Interior Finish: | DRYWALL PAINT | Plumbing Fixture Cnt: | 11 | | Roof Slope: | 4" IN 12" | Roof Structure/Cover: | CJ ASPHALT |
|
| | Type | Description | Class CD | Sub Class CD | Year Built | Area |
| | BAS | BASE/MAIN FLOOR | 3 | 0 | 1974 | 1170.0 |
| | OP3 | OPEN PORCH W/ROOF | 3 | 0 | 1974 | 108.0 |
| | OP3 | OPEN PORCH W/ROOF | 3 | 0 | 1974 | 180.0 |
| | AGR | ATTACHED GARAGE | 3 | 0 | 1974 | 504.0 |
| | UPS | UPPER STORY | 3 | 0 | 1974 | 1170.0 |
Sketch
Property Image
Land
| 1 | 15 | SQ (12001-21780) | 0.0000 | 0.00 | 0.00 | 0.00 | 1.00 | $190,000 | $0 |
Roll Value History
| 2026 | N/A | N/A | N/A | N/A | N/A |
| 2025 | $320,314 | $190,000 | $0 | $510,314 | $510,314 |
| 2024 | $324,306 | $180,000 | $0 | $504,306 | $504,306 |
| 2023 | $320,314 | $190,000 | $0 | $510,314 | $510,314 |
| 2022 | $293,670 | $180,000 | $0 | $473,670 | $473,670 |
| 2021 | $258,508 | $120,000 | $0 | $378,508 | $378,508 |
| 2020 | $252,277 | $100,000 | $0 | $352,277 | $352,277 |
| 2019 | $194,982 | $150,000 | $0 | $344,982 | $344,982 |
| 2018 | $195,560 | $130,000 | $0 | $325,560 | $325,560 |
| 2017 | $186,423 | $110,000 | $0 | $296,423 | $296,423 |
| 2016 | $165,113 | $90,000 | $0 | $255,113 | $255,113 |
| 2015 | $167,435 | $70,000 | $0 | $237,435 | $237,435 |
| 2014 | $169,754 | $55,000 | $0 | $224,754 | $224,754 |
| 2013 | $172,074 | $55,000 | $0 | $227,074 | $227,074 |
| 2012 | $174,396 | $65,000 | $0 | $239,396 | $239,396 |
| 2011 | $166,575 | $65,000 | $0 | $231,575 | $231,575 |
| 2010 | $174,571 | $65,000 | $0 | $239,571 | $239,571 |
| 2009 | $182,271 | $87,150 | $0 | $269,421 | $269,421 |
| 2008 | $202,054 | $105,000 | $0 | $307,054 | $307,054 |
| 2007 | $204,615 | $105,000 | $0 | $309,615 | $309,615 |
Deed and Sales History
| 1 | 02/15/2017 | WD | Warranty Deed | LINSCOTT, THOMAS L | OCHOA, DANILO | | | $345,000.00 | 28115 | 4417279 |
| 2 | 03/01/1988 | WD | Warranty Deed | RUSSELL, BERNARD T | LINSCOTT, THOMAS L | | | $94,000.00 | 80720 | 88002881 |
Payout Agreement
| No payout information available.. |