Property
Account |
| Property ID: | 397305 | Abbreviated Legal Description: | SPRINGTREE 1 LOT 6 |
| Geographic ID: | S8205-00-00006-0 | Agent Code: | |
| Type: | Real | | |
| Tax Area: | 100 - APPRAISER-OH Schl Dist, in OH | Land Use Code | 11 |
| Open Space: | N | DFL | N |
| Historic Property: | N | Remodel Property: | N |
| Multi-Family Redevelopment: | N | | |
| Township: | | Section: | |
| Range: | |
Location |
| Address: | 1163 SW 2ND AVE OAK HARBOR, WA 98277 | Mapsco: | |
| Neighborhood: | Cycle 1 | Map ID: | 252 |
| Neighborhood CD: | 1 |
Owner |
| Name: | GOFF, SAMUEL | Owner ID: | 303628 |
| Mailing Address: | 1163 SW 2ND AVE OAK HARBOR, WA 98277 | % Ownership: | 100.0000000000% |
| | | Exemptions: | |
Taxes and Assessment Details
Values
| (+) Improvement Homesite Value: | + | $0 | |
| (+) Improvement Non-Homesite Value: | + | $300,640 | |
| (+) Land Homesite Value: | + | $0 | |
| (+) Land Non-Homesite Value: | + | $200,000 | |
| (+) Curr Use (HS): | + | $0 | $0 |
| (+) Curr Use (NHS): | + | $0 | $0 |
| | | -------------------------- | |
| (=) Market Value: | = | $500,640 | |
| (–) Productivity Loss: | – | $0 | |
| | | -------------------------- | |
| (=) Subtotal: | = | $500,640 | |
| (+) Senior Appraised Value: | + | $0 | |
| (+) Non-Senior Appraised Value: | + | $500,640 | |
| | | -------------------------- | |
| (=) Total Appraised Value: | = | $500,640 | |
| (–) Senior Exemption Loss: | – | $0 | |
| (–) Exemption Loss: | – | $0 | |
| | | -------------------------- | |
| (=) Taxable Value: | = | $500,640 | |
Taxing Jurisdiction
| Owner: | GOFF, SAMUEL | | |
| % Ownership: | 100.0000000000% | | |
| Total Value: | $500,640 | | |
| Tax Area: | 100 - APPRAISER-OH Schl Dist, in OH |
| CF | Conservation Futures | 0.0313996660 | $500,640 | $500,640 | $15.72 | | |
| CEM1 | Cemetery #1 | 0.0040018856 | $500,640 | $500,640 | $2.00 | | |
| COH | City of Oak Harbor | 2.3090730572 | $500,640 | $500,640 | $1,156.01 | | |
| OAKBOND | City of Oak Harbor BOND | 0.1902260131 | $500,640 | $500,640 | $95.23 | | |
| HOBOND | Hospital BOND | 0.1893405597 | $500,640 | $500,640 | $94.79 | | |
| HOGEN | Hospital GEN | 0.3848777722 | $500,640 | $500,640 | $192.69 | | |
| CE | County Current Expense | 0.3674210519 | $500,640 | $500,640 | $183.95 | | |
| ISLANDEMS | Hospital GEN (EMS) | 0.4952018576 | $500,640 | $500,640 | $247.92 | | |
| LIB | Library Sno-Isle GEN | 0.3039084203 | $500,640 | $500,640 | $152.15 | | |
| NWHIDPRMT | P & R N Whidbey GEN | 0.1990272349 | $500,640 | $500,640 | $99.64 | | |
| SCH201MO | School 201 Enrichment | 2.3851112745 | $500,640 | $500,640 | $1,194.08 | | |
| ST | State School | 1.4761226122 | $500,640 | $500,640 | $739.01 | | |
| ST2 | State School Part 2 | 0.7953803475 | $500,640 | $500,640 | $398.20 | | |
| | Total Tax Rate: | 9.1310917527 | | | | | |
| | | | | Taxes w/Current Exemptions: | $4,571.39 | | |
| | | | | Taxes w/o Exemptions: | $4,571.39 | | |
Improvement / Building
| Improvement #1: | RESIDENTIAL | State Code: | Y | 2176.0 sqft | Value: | $300,640 |
| Bathrooms: | 2.5 | Bedrooms: | 4 | | Ceiling: | DRY WALL SPRAYED | Exterior Wall/Cover: | PLY/HARDBOARD T-111 | | Floor Covering: | CERAMIC TILE/CPT 40-60 | Floor Structure: | WOOD W/SUBFLOOR | | Foundation: | CONCRETE | Heating: | CEILING ELECTRIC | | Interior Finish: | DRYWALL PAINT | Plumbing Fixture Cnt: | 11 | | Roof Slope: | 4" IN 12" | Roof Structure/Cover: | CJ ASPHALT |
|
| | Type | Description | Class CD | Sub Class CD | Year Built | Area |
| | BAS | BASE/MAIN FLOOR | 3 | 0 | 1975 | 1072.0 |
| | OP2 | OPEN PORCH W/STEPS | 3 | 0 | 1975 | 16.0 |
| | OP4 | OPEN PORCH W/CEILING-ROOF | 3 | 0 | 1975 | 28.0 |
| | BIG | BUILT IN GARAGE | 3 | 0 | 1975 | 552.0 |
| | UPS | UPPER STORY | 3 | 0 | 1975 | 1104.0 |
| | OWP | OPEN WOOD PORCH W/STEPS | 3 | 0 | 1975 | 192.0 |
Sketch
Property Image
Land
| 1 | 14 | SQ (08001-12000) | 0.0000 | 0.00 | 0.00 | 0.00 | 1.00 | $200,000 | $0 |
Roll Value History
| 2026 | N/A | N/A | N/A | N/A | N/A |
| 2025 | $300,640 | $200,000 | $0 | $500,640 | $500,640 |
| 2024 | $304,745 | $190,000 | $0 | $494,745 | $494,745 |
| 2023 | $284,663 | $190,000 | $0 | $474,663 | $474,663 |
| 2022 | $261,289 | $180,000 | $0 | $441,289 | $441,289 |
| 2021 | $230,270 | $120,000 | $0 | $350,270 | $350,270 |
| 2020 | $224,910 | $100,000 | $0 | $324,910 | $324,910 |
| 2019 | $172,884 | $150,000 | $0 | $322,884 | $322,884 |
| 2018 | $173,442 | $130,000 | $0 | $303,442 | $303,442 |
| 2017 | $172,325 | $110,000 | $0 | $282,325 | $282,325 |
| 2016 | $134,305 | $90,000 | $0 | $224,305 | $224,305 |
| 2015 | $136,402 | $70,000 | $0 | $206,402 | $206,402 |
| 2014 | $138,501 | $55,000 | $0 | $193,501 | $193,501 |
| 2013 | $140,600 | $55,000 | $0 | $195,600 | $195,600 |
| 2012 | $142,698 | $65,000 | $0 | $207,698 | $207,698 |
| 2011 | $144,796 | $50,000 | $0 | $194,796 | $194,796 |
| 2010 | $157,007 | $50,000 | $0 | $207,007 | $207,007 |
| 2009 | $163,840 | $68,000 | $0 | $231,840 | $231,840 |
| 2008 | $165,962 | $68,000 | $0 | $233,962 | $233,962 |
| 2007 | $141,422 | $90,418 | $0 | $231,840 | $231,840 |
Deed and Sales History
| 1 | 03/30/2022 | QCD | Quit Claim Deed | GOFF, BROOKE | GOFF, SAMUEL | | | $0.00 | 52547 | 4542570 |
| 2 | 03/17/2022 | WD | Warranty Deed | POWELL, AMELIA | GOFF, SAMUEL | | | $525,000.00 | 52546 | 4542569 |
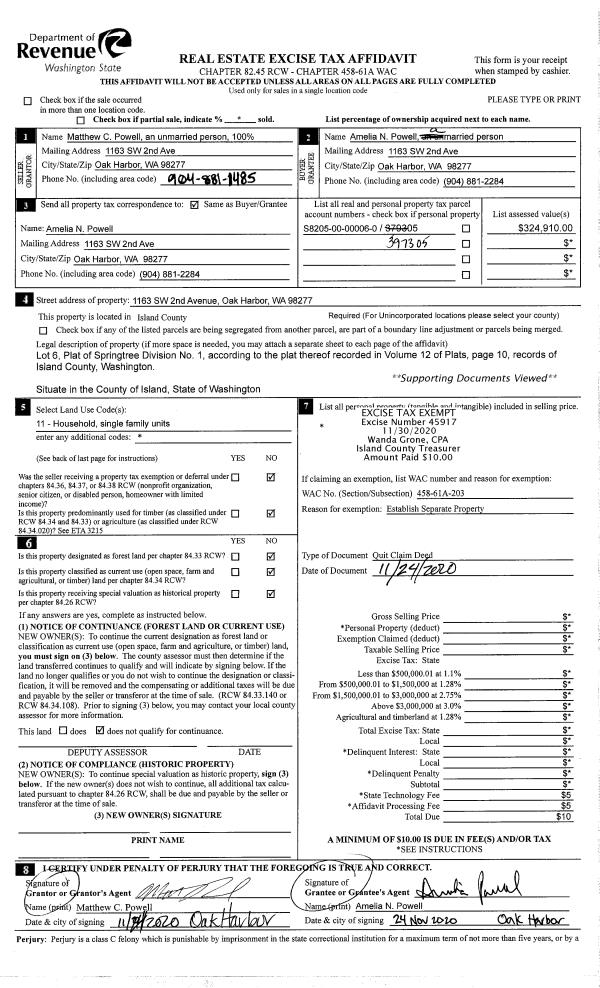
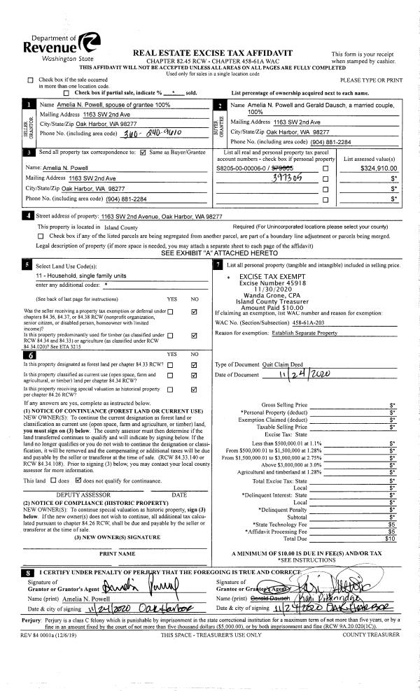
| 3 | 11/24/2020 | QCD | Quit Claim Deed | POWELL, AMELIA | POWELL, AMELIA | | | $0.00 | 45918 | 4503712 |
| 4 | 11/24/2020 | QCD | Quit Claim Deed | POWELL, MATTHEW C | POWELL, AMELIA | | | $0.00 | 45917 | 4503711 |
| 5 | 07/21/2016 | WD | Warranty Deed | CHANG, JOSEPH | POWELL, MATTHEW C | | | $286,000.00 | 25456 | 4404096 |
| 6 | 12/27/2012 | DECREE | Divorce Decree/Legal Separation | CHANG, JOSEPH | CHANG, JOSEPH | | | $0.00 | 9990 | 43330354 |
| 7 | 11/16/2007 | WD | Warranty Deed | ST CLOUD, LYNNE G | CHANG, JOSEPH | | | $251,000.00 | 73850 | 4216857 |
| 8 | 05/25/1999 | TRUSTEED | Trustee's Deed | SEC VETERAN'S AFFAIRS, | ST CLOUD, LYNNE G | | | $146,000.00 | 92119 | 99013250 |
| 9 | 01/21/1999 | TRUSTEED | Trustee's Deed | COLLICK, DIANE G | FIRST NATIONWIDE MTG CORP, | | | $123,086.00 | 90326 | 99002068 |
| 10 | 01/11/1999 | WD | Warranty Deed | FIRST NATIONWIDE MTG CORP, | SEC VETERAN'S AFFAIRS, | | | $123,086.00 | 90327 | 99002069 |
| 11 | 04/01/1997 | DECREE | Divorce Decree/Legal Separation | COLLICK, GORDON W | COLLICK, DIANE G | | | $0.00 | 71349 | 97006099 |
| 12 | 07/01/1994 | WD | Warranty Deed | DANLEY, DAVID C | COLLICK, GORDON W | | | $154,750.00 | 43104 | 94016742 |
| 13 | 12/01/1989 | WD | Warranty Deed | JONES, THOMAS L | DANLEY, DAVID C | | | $0.00 | 96050 | 89019498 |
| 14 | 09/01/1980 | WD | Warranty Deed | LAWLOR, JOHN C | JONES, THOMAS L | | | $77,000.00 | 3310 | 374618 |
Payout Agreement
| No payout information available.. |