Property
Account |
| Property ID: | 397430 | Abbreviated Legal Description: | SPRINGTREE 2 LOT 19 |
| Geographic ID: | S8205-02-00019-0 | Agent Code: | |
| Type: | Real | | |
| Tax Area: | 100 - APPRAISER-OH Schl Dist, in OH | Land Use Code | 11 |
| Open Space: | N | DFL | N |
| Historic Property: | N | Remodel Property: | N |
| Multi-Family Redevelopment: | N | | |
| Township: | | Section: | |
| Range: | |
Location |
| Address: | 1124 SW LESCHI DR OAK HARBOR, WA 98277 | Mapsco: | |
| Neighborhood: | Cycle 1 | Map ID: | 252 |
| Neighborhood CD: | 1 |
Owner |
| Name: | HAYES, JASON | Owner ID: | 300293 |
| Mailing Address: | AMANDA PHILLIPS-HAYES 1124 SW LESCJI DR OAK HARBOR, WA 98277 | % Ownership: | 100.0000000000% |
| | | Exemptions: | |
Taxes and Assessment Details
Values
| (+) Improvement Homesite Value: | + | $0 | |
| (+) Improvement Non-Homesite Value: | + | $318,540 | |
| (+) Land Homesite Value: | + | $0 | |
| (+) Land Non-Homesite Value: | + | $200,000 | |
| (+) Curr Use (HS): | + | $0 | $0 |
| (+) Curr Use (NHS): | + | $0 | $0 |
| | | -------------------------- | |
| (=) Market Value: | = | $518,540 | |
| (–) Productivity Loss: | – | $0 | |
| | | -------------------------- | |
| (=) Subtotal: | = | $518,540 | |
| (+) Senior Appraised Value: | + | $0 | |
| (+) Non-Senior Appraised Value: | + | $518,540 | |
| | | -------------------------- | |
| (=) Total Appraised Value: | = | $518,540 | |
| (–) Senior Exemption Loss: | – | $0 | |
| (–) Exemption Loss: | – | $0 | |
| | | -------------------------- | |
| (=) Taxable Value: | = | $518,540 | |
Taxing Jurisdiction
| Owner: | HAYES, JASON | | |
| % Ownership: | 100.0000000000% | | |
| Total Value: | $518,540 | | |
| Tax Area: | 100 - APPRAISER-OH Schl Dist, in OH |
| CF | Conservation Futures | 0.0313996660 | $518,540 | $518,540 | $16.28 | | |
| CEM1 | Cemetery #1 | 0.0040018856 | $518,540 | $518,540 | $2.08 | | |
| COH | City of Oak Harbor | 2.3090730572 | $518,540 | $518,540 | $1,197.35 | | |
| OAKBOND | City of Oak Harbor BOND | 0.1902260131 | $518,540 | $518,540 | $98.64 | | |
| HOBOND | Hospital BOND | 0.1893405597 | $518,540 | $518,540 | $98.18 | | |
| HOGEN | Hospital GEN | 0.3848777722 | $518,540 | $518,540 | $199.57 | | |
| CE | County Current Expense | 0.3674210519 | $518,540 | $518,540 | $190.52 | | |
| ISLANDEMS | Hospital GEN (EMS) | 0.4952018576 | $518,540 | $518,540 | $256.78 | | |
| LIB | Library Sno-Isle GEN | 0.3039084203 | $518,540 | $518,540 | $157.59 | | |
| NWHIDPRMT | P & R N Whidbey GEN | 0.1990272349 | $518,540 | $518,540 | $103.20 | | |
| SCH201MO | School 201 Enrichment | 2.3851112745 | $518,540 | $518,540 | $1,236.78 | | |
| ST | State School | 1.4761226122 | $518,540 | $518,540 | $765.43 | | |
| ST2 | State School Part 2 | 0.7953803475 | $518,540 | $518,540 | $412.44 | | |
| | Total Tax Rate: | 9.1310917527 | | | | | |
| | | | | Taxes w/Current Exemptions: | $4,734.84 | | |
| | | | | Taxes w/o Exemptions: | $4,734.84 | | |
Improvement / Building
| Improvement #1: | RESIDENTIAL | State Code: | Y | 1964.0 sqft | Value: | $318,540 |
| Bathrooms: | 2.75 | Bedrooms: | 3 | | Ceiling: | DRYWALL PAINTED | Cooling: | HEAT PUMP/CONV/V | | Exterior Wall/Cover: | VINYL | Floor Covering: | CARPET/VINYL 80-20 | | Floor Structure: | WOOD W/SUBFLOOR | Foundation: | CONCRETE | | Interior Finish: | DRYWALL PAINT | Plumbing Fixture Cnt: | 13 | | Roof Slope: | 4" IN 12" | Roof Structure/Cover: | CJ ASPHALT |
|
| | Type | Description | Class CD | Sub Class CD | Year Built | Area |
| | BAS | BASE/MAIN FLOOR | 3 | 0 | 1976 | 1340.0 |
| | DWN | DOWNSTAIRS LIVING AREA | 3 | 0 | 1976 | 624.0 |
| | OP4 | OPEN PORCH W/CEILING-ROOF | 3 | 0 | 1976 | 48.0 |
| | BIG | BUILT IN GARAGE | 3 | 0 | 1976 | 624.0 |
| | OWP | OPEN WOOD PORCH W/STEPS | 3 | 0 | 1976 | 117.0 |
Sketch
Property Image
Land
| 1 | 15 | SQ (12001-21780) | 0.0000 | 0.00 | 0.00 | 0.00 | 1.00 | $200,000 | $0 |
Roll Value History
| 2026 | N/A | N/A | N/A | N/A | N/A |
| 2025 | $318,540 | $200,000 | $0 | $518,540 | $518,540 |
| 2024 | $322,414 | $190,000 | $0 | $512,414 | $512,414 |
| 2023 | $358,971 | $190,000 | $0 | $548,971 | $548,971 |
| 2022 | $329,045 | $180,000 | $0 | $509,045 | $509,045 |
| 2021 | $217,529 | $120,000 | $0 | $337,529 | $337,529 |
| 2020 | $212,045 | $100,000 | $0 | $312,045 | $312,045 |
| 2019 | $159,414 | $150,000 | $0 | $309,414 | $309,414 |
| 2018 | $159,924 | $130,000 | $0 | $289,924 | $289,924 |
| 2017 | $163,101 | $110,000 | $0 | $273,101 | $273,101 |
| 2016 | $163,101 | $90,000 | $0 | $253,101 | $253,101 |
| 2015 | $165,165 | $70,000 | $0 | $235,165 | $235,165 |
| 2014 | $167,229 | $55,000 | $0 | $222,229 | $222,229 |
| 2013 | $140,391 | $55,000 | $0 | $195,391 | $195,391 |
| 2012 | $142,455 | $65,000 | $0 | $207,455 | $207,455 |
| 2011 | $142,921 | $50,000 | $0 | $192,921 | $192,921 |
| 2010 | $155,310 | $50,000 | $0 | $205,310 | $205,310 |
| 2009 | $162,264 | $68,000 | $0 | $230,264 | $230,264 |
| 2008 | $164,695 | $68,000 | $0 | $232,695 | $232,695 |
| 2007 | $143,427 | $91,699 | $0 | $235,126 | $235,126 |
Deed and Sales History
| 1 | 07/12/2021 | WD | Warranty Deed | MANDRELL, AARON G | HAYES, JASON | | | $505,000.00 | 49260 | 4524966 |
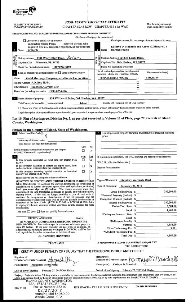
| 2 | 02/27/2017 | WD | Warranty Deed | PEREZ, JACQUELINE NICOLE | MANDRELL, AARON G | | | $280,000.00 | 28210 | 4417820 |
| 3 | 02/27/2017 | ESTSEPPROP | Establish Separate Property | PEREZ, JACQUELINE NICOLE | PEREZ, JACQUELINE NICOLE | | | $0.00 | 28209 | 4417819 |
| 4 | 02/29/2016 | DECREE | Divorce Decree/Legal Separation | ESPINOZA, JOEL | PEREZ, JACQUELINE NICOLE | | | $0.00 | 23330 | 4394964 |
| 5 | 03/05/2014 | WD | Warranty Deed | HELLMANN JR, JOHN L | ESPINOZA, JOEL | | | $250,000.00 | 14475 | 4356098 |
| 6 | 06/01/1988 | WD | Warranty Deed | GLENN, MICHEAL A | HELLMANN, JOHN L | | | $85,000.00 | 81688 | 88006344 |
Payout Agreement
| No payout information available.. |